Word je warm van ons verhaal? Laten we samen kennismaken!
Neem contact op- 196 m²
- 633 m²
- 5
- F
Omschrijving
Op markante centrumlocatie staat deze vooroorlogse halfvrijstaande woning. De woning is ruim uitgebouwd en heeft een fantastische diepe tuin op het westen gelegen. De woning met bouwjaar 1937 heeft nog diverse originele details!
De woning heeft achterstallig onderhoud en als koper dient u dan ook rekening te houden met een zeer grondige algehele renovatie. Wanneer u een woning zoals dit overweegt, is het aan te raden om uw eigen bouwtechnisch adviseur, aannemer en/of aankoopmakelaar mee te nemen bij de bezichtiging.
Deze woning biedt ook unieke kansen voor de juiste koper. U kunt het geheel naar eigen wensen verbouwen en verduurzamen om vervolgens op een prachtige plek in een als nieuwe woning te wonen.
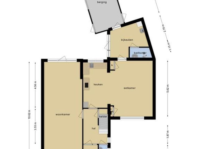
Parterre:
•Entree met meterkast en originele tochtdeuren naar de hal.
•Hal met trapopgang, toilet en toegang tot de kelder van circa 3x2m2. Vanuit de hal is de woonkeuken en de woonkamer te bereiken.
•Ruime woonkamer met door de vele raampartijen veel lichtinval. De vloer is een houten balklaag afgewerkt met een parketvloer.
•De eenvoudige keuken is ruim uitgebouwd en de uitbouw is voorzien van vloerverwarming.
•Vanuit de keuken heeft u toegang tot de praktische bijkeuken met douchegelegenheid (douchebak en wastafel) en opstelling van de cv-ketel. Tevens heeft u via de bijkeuken toegang tot de tuin en de achtergelegen berging.
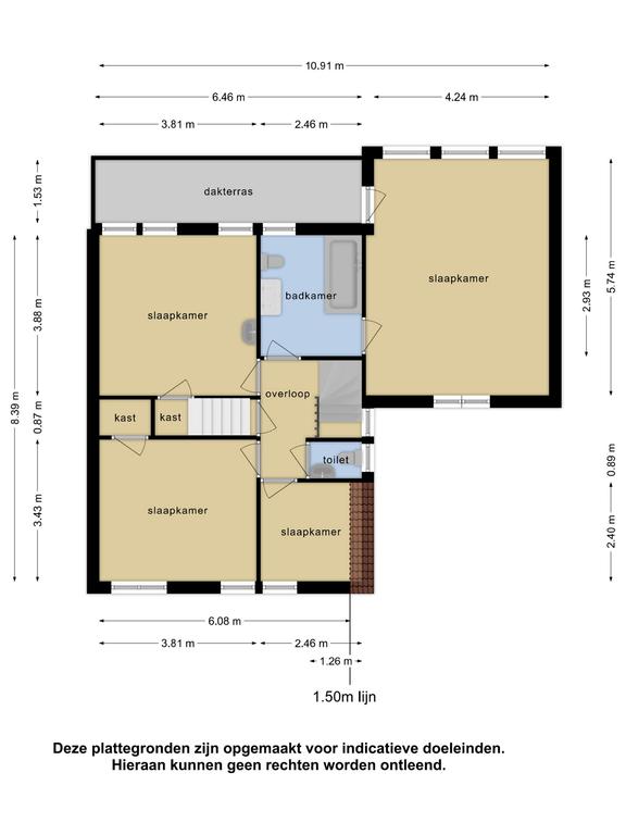
1ste verdieping, houten balklaag:
•Ruime overloop met toegang tot drie slaapvertrekken, de vaste trap naar de 2e verdieping, de royale badkamer en het separaat gelegen toilet.
•Badkamer met twee wastafels, een ligbad en een bidet.
•Vanuit de badkamer is de 4e slaapkamer op deze verdieping te bereiken. Deze kamer is boven de aanbouw in de keuken gesitueerd en is eveneens voorzien van vloerverwarming.
2e verdieping, houten balklaag:
•Ruime zolderruimte wat uitkomst zou kunnen bieden voor een 5e slaapkamer en als berging.
Buitenleven:
•Eigen oprit met voor- en zijtuin
•Zonnige tuin gelegen op het westen.
Specificaties:
Bouwjaar: 1937
Perceeloppervlak: 633m²
Woonoppervlak: 195,6m²
Overig inpandige ruimte: 20,20m²
Gebouwgebonden buitenruimte: 10m²
Externe bergruimte: 7m²
Inhoud van de woning: 774m³
Aanvaarding: in overleg
ENTHOUSIAST geworden over deze halfvrijstaande klus woning, gelegen in het centrum van Helvoirt?
Een juiste beoordeling van de woning komt het beste tot zijn recht bij een persoonlijke rondleiding, welke wij graag voor u verzorgen.
Wonen in de heerlijkheid Helvoirt, een buitenplaats van Vught!
Een typisch en idyllisch Brabants dorpje in de gemeente Vught. In Helvoirt leef je in het Groene Woud tussen de natuurgebieden Helvoirts Broek en Nationaal Park de Loonse & Drunense Duinen. Er zijn volop mogelijkheden om in de nabijheid van de woning in de prachtige natuur te fietsen en te wandelen, waarbij je eventueel een stop kunt maken in een van de gezellige restaurants en cafés in de buurt.
Helvoirt is een verrassend dorp met diverse faciliteiten, winkels en een actief verenigingsleven.
Een plaats, die juist door de vele faciliteiten al snel een thuisgevoel geeft voor jong en oud.
In het dorp en de omgeving wordt het hele jaar door van alles georganiseerd; van festivals, concerten, sportevenementen tot culturele activiteiten. Bourgondisch Brabant is echt van toepassing op deze regio met volop mooie kleine en wat grotere plaatsen.
Binnen een paar minuten ben je bovendien in het eveneens gezellige Vught of Oisterwijk en het is nog geen kwartier rijden naar Den Bosch of Tilburg. In Helvoirt woon je vooral heel comfortabel met scholen, sportvelden en supermarkten op loopafstand.
Toon meer
De woning heeft achterstallig onderhoud en als koper dient u dan ook rekening te houden met een zeer grondige algehele renovatie. Wanneer u een woning zoals dit overweegt, is het aan te raden om uw eigen bouwtechnisch adviseur, aannemer en/of aankoopmakelaar mee te nemen bij de bezichtiging.
Deze woning biedt ook unieke kansen voor de juiste koper. U kunt het geheel naar eigen wensen verbouwen en verduurzamen om vervolgens op een prachtige plek in een als nieuwe woning te wonen.
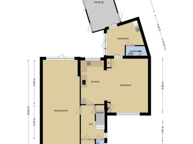
Parterre:
•Entree met meterkast en originele tochtdeuren naar de hal.
•Hal met trapopgang, toilet en toegang tot de kelder van circa 3x2m2. Vanuit de hal is de woonkeuken en de woonkamer te bereiken.
•Ruime woonkamer met door de vele raampartijen veel lichtinval. De vloer is een houten balklaag afgewerkt met een parketvloer.
•De eenvoudige keuken is ruim uitgebouwd en de uitbouw is voorzien van vloerverwarming.
•Vanuit de keuken heeft u toegang tot de praktische bijkeuken met douchegelegenheid (douchebak en wastafel) en opstelling van de cv-ketel. Tevens heeft u via de bijkeuken toegang tot de tuin en de achtergelegen berging.
1ste verdieping, houten balklaag:
•Ruime overloop met toegang tot drie slaapvertrekken, de vaste trap naar de 2e verdieping, de royale badkamer en het separaat gelegen toilet.
•Badkamer met twee wastafels, een ligbad en een bidet.
•Vanuit de badkamer is de 4e slaapkamer op deze verdieping te bereiken. Deze kamer is boven de aanbouw in de keuken gesitueerd en is eveneens voorzien van vloerverwarming.
2e verdieping, houten balklaag:
•Ruime zolderruimte wat uitkomst zou kunnen bieden voor een 5e slaapkamer en als berging.
Buitenleven:
•Eigen oprit met voor- en zijtuin
•Zonnige tuin gelegen op het westen.
Specificaties:
Bouwjaar: 1937
Perceeloppervlak: 633m²
Woonoppervlak: 195,6m²
Overig inpandige ruimte: 20,20m²
Gebouwgebonden buitenruimte: 10m²
Externe bergruimte: 7m²
Inhoud van de woning: 774m³
Aanvaarding: in overleg
ENTHOUSIAST geworden over deze halfvrijstaande klus woning, gelegen in het centrum van Helvoirt?
Een juiste beoordeling van de woning komt het beste tot zijn recht bij een persoonlijke rondleiding, welke wij graag voor u verzorgen.
Wonen in de heerlijkheid Helvoirt, een buitenplaats van Vught!
Een typisch en idyllisch Brabants dorpje in de gemeente Vught. In Helvoirt leef je in het Groene Woud tussen de natuurgebieden Helvoirts Broek en Nationaal Park de Loonse & Drunense Duinen. Er zijn volop mogelijkheden om in de nabijheid van de woning in de prachtige natuur te fietsen en te wandelen, waarbij je eventueel een stop kunt maken in een van de gezellige restaurants en cafés in de buurt.
Helvoirt is een verrassend dorp met diverse faciliteiten, winkels en een actief verenigingsleven.
Een plaats, die juist door de vele faciliteiten al snel een thuisgevoel geeft voor jong en oud.
In het dorp en de omgeving wordt het hele jaar door van alles georganiseerd; van festivals, concerten, sportevenementen tot culturele activiteiten. Bourgondisch Brabant is echt van toepassing op deze regio met volop mooie kleine en wat grotere plaatsen.
Binnen een paar minuten ben je bovendien in het eveneens gezellige Vught of Oisterwijk en het is nog geen kwartier rijden naar Den Bosch of Tilburg. In Helvoirt woon je vooral heel comfortabel met scholen, sportvelden en supermarkten op loopafstand.
Kenmerken
Overdracht
- Aangeboden sinds
- 4 augustus 2025
- Status
- Verkocht
- Aanvaarding
- In overleg
Bouw
- Soort woning
- Woonhuis
- Bouwjaar
- 1937
Oppervlakten en inhoud
- Oppervlakte wonen
- 196 m²
- Oppervlakte overige inpandige ruimte
- 20 m²
- Oppervlakte gebouwgebonden buitenruimte
- 10 m²
- Oppervlakte externe bergruimte
- 7 m²
- Perceel
- 633 m²
- Inhoud
- 774 m³
Indeling
- Aantal kamers
- 7
- Aantal slaapkamers
- 5
- Aantal badkamers
- 2
- Badkamervoorzieningen
- Ligbad, bidet, dubbele wastafel, douche en wastafel
- Aantal woonlagen
- 4
Energie
- Energielabel
- F
- Isolatie
- Gedeeltelijk dubbel glas
- Verwarming
- Cv-ketel
Buitenruimte
- Tuin
- Achtertuin, voortuin en zijtuin
- Achtertuin
- 387 m² gelegen op het westen met achterom
Garage
- Soort garage
- Garage mogelijk en geen garage