Word je warm van ons verhaal? Laten we samen kennismaken!
Neem contact op- 123 m²
- 305 m²
- 5
- D
Omschrijving
In een rustige (doodlopende) straat gesitueerde royale tussenwoning met garage, gelegen in een mooi gedeelte van het zeer gewilde Vught-Noord. Op loopafstand van de natuurgebieden Het Bossche Broek en De Gement, maar ook op slechts tien minuten fietsafstand van het centrum van 's-Hertogenbosch en op vijf minuten fietsen van het centrum van Vught. Daarnaast zijn ook de Vughtse Heide en recreatieplas De IJzeren Man op korte (fiets)afstand gelegen. In de directe nabijheid bevinden zich een speeltuintje met jeu de boules baan en andere speelterreinen. Kortom: door de gunstige ligging een ideale, rustige en zeer kindvriendelijke woonlocatie voor jong en oud.
Indeling
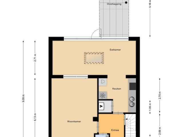
Begane grond
Via de hal kom je binnen in de woning, waar zich de meterkast, het toilet, de trapopgang naar de eerste verdieping én toegang tot de woonkamer en keuken bevinden.
De woonkamer is gesitueerd aan de voorzijde van de woning en voorzien van een houten vloer en grote raampartijen die zorgen voor een aangename lichtinval. Een klassieke kachel geeft de ruimte extra sfeer. Aan de achterzijde bevindt zich de serre, voorheen gebruikt als eetkamer, met een stenen vloer, lichtkoepel, grote raampartijen en radiatoren. Vanuit hier heb je direct toegang tot de achtertuin.
De keuken beschikt over een praktische stenen vloer, elektrische kookplaat, afzuigkap, dubbele spoelbak en voldoende opbergruimte in de boven- en onderkasten. Ook vind je hier de aansluiting voor de wasmachine en een handige provisiekast.
Eerste verdieping
Op de eerste verdieping bevinden zich drie slaapkamers, allen voorzien van een radiator en een wastafel. Eén van de slaapkamers beschikt daarnaast over een vaste kast én toegang tot het balkon aan de achterzijde met uitzicht op de tuin.
De badkamer is volledig wit betegeld en voorzien van een douche en een tweede toilet.
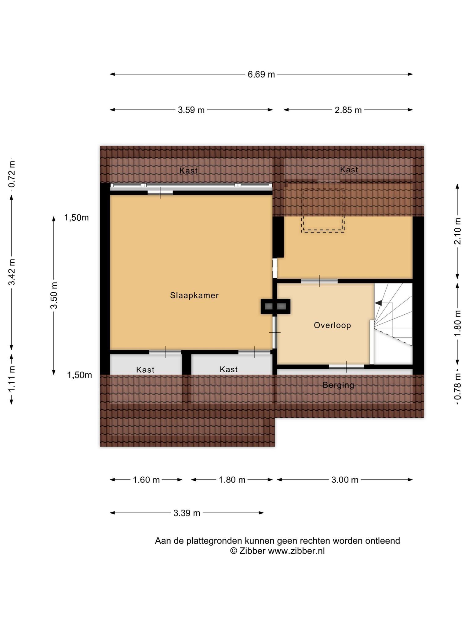
Tweede verdieping
De tweede verdieping is bereikbaar via een vaste trap en biedt toegang tot een overloop met extra opbergruimte en een wastafel. De slaapkamer op deze verdieping fungeerde voorheen als hoofdslaapkamer en beschikt over een aangrenzende kamer, ideaal als kantoor of hobbyruimte.
Tuin
De achtertuin is een waar pluspunt van deze woning! De tuin is diep en lang, biedt volop privacy en is gelegen op het oosten. Er zijn twee overkappingen aanwezig en een aparte, ruime garage, waardoor je veel vrijheid hebt om de tuin naar eigen wens in te richten.
Ook de bereikbaarheid is uitstekend. De NS-stations Vught en Den Bosch liggen beide op korte fietsafstand.
Met de auto ben je bovendien in no-time op de A2 en N65, waardoor steden als Utrecht, Eindhoven en Breda snel bereikbaar zijn.
Kortom, een ideale locatie voor wie centraal en comfortabel wil wonen met uitstekende voorzieningen én bereikbaarheid binnen handbereik.
Goed om te weten
- Liefde en aandacht nodig;
- De woning beschikt over een cv-ketel;
- De woning heeft liefde en aandacht nodig;
- Aanvaarding in overleg, maar het liefst op korte termijn;
Toon meer
Indeling
Begane grond
Via de hal kom je binnen in de woning, waar zich de meterkast, het toilet, de trapopgang naar de eerste verdieping én toegang tot de woonkamer en keuken bevinden.
De woonkamer is gesitueerd aan de voorzijde van de woning en voorzien van een houten vloer en grote raampartijen die zorgen voor een aangename lichtinval. Een klassieke kachel geeft de ruimte extra sfeer. Aan de achterzijde bevindt zich de serre, voorheen gebruikt als eetkamer, met een stenen vloer, lichtkoepel, grote raampartijen en radiatoren. Vanuit hier heb je direct toegang tot de achtertuin.
De keuken beschikt over een praktische stenen vloer, elektrische kookplaat, afzuigkap, dubbele spoelbak en voldoende opbergruimte in de boven- en onderkasten. Ook vind je hier de aansluiting voor de wasmachine en een handige provisiekast.
Eerste verdieping
Op de eerste verdieping bevinden zich drie slaapkamers, allen voorzien van een radiator en een wastafel. Eén van de slaapkamers beschikt daarnaast over een vaste kast én toegang tot het balkon aan de achterzijde met uitzicht op de tuin.
De badkamer is volledig wit betegeld en voorzien van een douche en een tweede toilet.
Tweede verdieping
De tweede verdieping is bereikbaar via een vaste trap en biedt toegang tot een overloop met extra opbergruimte en een wastafel. De slaapkamer op deze verdieping fungeerde voorheen als hoofdslaapkamer en beschikt over een aangrenzende kamer, ideaal als kantoor of hobbyruimte.
Tuin
De achtertuin is een waar pluspunt van deze woning! De tuin is diep en lang, biedt volop privacy en is gelegen op het oosten. Er zijn twee overkappingen aanwezig en een aparte, ruime garage, waardoor je veel vrijheid hebt om de tuin naar eigen wens in te richten.
Ook de bereikbaarheid is uitstekend. De NS-stations Vught en Den Bosch liggen beide op korte fietsafstand.
Met de auto ben je bovendien in no-time op de A2 en N65, waardoor steden als Utrecht, Eindhoven en Breda snel bereikbaar zijn.
Kortom, een ideale locatie voor wie centraal en comfortabel wil wonen met uitstekende voorzieningen én bereikbaarheid binnen handbereik.
Goed om te weten
- Liefde en aandacht nodig;
- De woning beschikt over een cv-ketel;
- De woning heeft liefde en aandacht nodig;
- Aanvaarding in overleg, maar het liefst op korte termijn;
Kenmerken
Overdracht
- Aangeboden sinds
- 4 augustus 2025
- Status
- Verkocht
- Aanvaarding
- In overleg
Bouw
- Soort woning
- Woonhuis
- Bouwjaar
- 1961
- Soort dak
- Zadeldak
Oppervlakten en inhoud
- Oppervlakte wonen
- 123 m²
- Oppervlakte gebouwgebonden buitenruimte
- 32 m²
- Oppervlakte externe bergruimte
- 23 m²
- Perceel
- 305 m²
- Inhoud
- 435 m³
Indeling
- Aantal kamers
- 6
- Aantal slaapkamers
- 5
- Aantal badkamers
- 1
- Badkamervoorzieningen
- Toilet en douche
- Aantal woonlagen
- 3
Energie
- Energielabel
- D
- Verwarming
- Cv-ketel
- Warm water
- Cv-ketel
- Cv-ketel
- HR-107 (combiketel uit 2017)
Buitenruimte
- Ligging
- In woonwijk
- Tuin
- Achtertuin en voortuin
- Achtertuin
- 177 m² gelegen op het oosten
Garage
- Soort garage
- Vrijstaand steen
- Capaciteit
- 1
- Voorzieningen
- Elektra