- 140 m²
- 252 m²
- 5
- C
Omschrijving
Fraaie geschakelde 2-onder-1-kapwoning met inpandige garage, dubbele dakkapel op zolder en grote woonkeuken aan de achterzijde.
Deze uitstekend onderhouden 2-onder-1-kapwoning met inpandig te bereiken garage verkeert in zeer goede staat en is de afgelopen jaren volledig gemoderniseerd. Hierbij is werkelijk alles vernieuwd: kozijnen, leidingwerk, elektra en vloerverwarming op de begane grond, inclusief de garage en badkamer. De woning, oorspronkelijk gebouwd in 1961, ligt op loopafstand van het dorpscentrum, scholen, kinderopvang, natuurgebieden en de Heidijk. Door de aanbouw van de keuken aan de achterzijde is er een royale en lichte woonkamer ontstaan met grote raampartijen aan weerszijden, die zorgen voor een prettige lichtinval.
Indeling
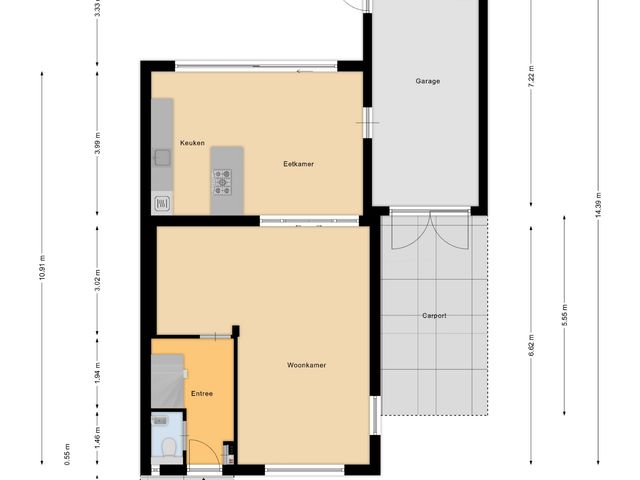
Begane grond
De entree met meterkast en eikenhouten vloer geeft toegang tot de woonkamer, het toilet en de trapopgang naar de eerste verdieping. De ruime woonkamer met open verbinding naar de leefkeuken biedt volop mogelijkheden voor een gezellige zithoek, werkplek en kastenwand. Via stijlvolle en-suite deuren bereikt u de royale woonkeuken met eethoek. De moderne leefkeuken beschikt over lichte kasten, een kunststof werkblad en diverse inbouwapparatuur, waaronder een 5-pits gaskookplaat, combi-oven, afzuigkap, vaatwasser en koelkast. De schuifpui geeft toegang tot de tuin en zorgt voor veel lichtinval.
Vanuit de keuken bereikt u de inpandige garage met bijkeuken, voorzien van aansluitingen voor witgoed. De garage is zeer ruim, geschikt voor auto, fietsen én extra bergruimte. Dankzij de openslaande deuren bereikt u eenvoudig de achtertuin en de oprit. De overdekte oprit beschikt over ingebouwde verlichting.
Eerste verdieping
Op de eerste verdieping bevinden zich twee ruime slaapkamers, een hobby-/werkkamer en een moderne badkamer. De hoofdslaapkamer van ca. 15 m² ligt aan de achterzijde en beschikt over een groot draai-kiepraam en elektrische rolluiken. De tweede slaapkamer (ca. 10 m²) ligt aan de voorzijde en biedt voldoende ruimte voor een volledig slaapkamerinterieur. De derde kamer is ideaal als inloopkast, kantoor of hobbyruimte.
De vernieuwde badkamer is uitgerust met een inloopdouche, zwevend closet, wastafelmeubel, vloerverwarming en modern tegelwerk.
De gehele verdieping is voorzien van rolluiken.
Tweede verdieping
De zolder is recent gemoderniseerd en beschikt over twee grote dakkapellen aan zowel voor- als achterzijde, voorzien van draai-kiepramen. Hier bevinden zich twee lichte slaapkamers (ca. 10 en 9 m²), een voorzolder met witgoedaansluitingen en de CV-installatie, keurig weggewerkt achter een schuifwand. De lichte laminaatvloer is doorgelegd in de gehele verdieping. Alle ramen op de tweede verdieping beschikken over elektrische zonnescreens.
Tuin
De fraai aangelegde achtertuin op het oosten is onderhoudsvriendelijk ingericht met veel groen, twee terrassen en een speelhoek. Hier geniet u van volop zon in de ochtend en middag, en in de avond op het achterste terras.
Bijzonderheden
- De woning is volledig gemoderniseerd en verkeert in uitstekende staat.
- Royale woonkamer met sfeervolle en-suite deuren en vloerverwarming.
- Moderne keuken en badkamer, uitgevoerd in eigentijdse kleurstelling.
- Slaapkamers met draai-/kiepramen, eerste verdieping voorzien van elektrische rolluiken.
- Twee grote dakkapellen zorgen voor veel licht en extra ruimte op zolder.
Toon meer
Deze uitstekend onderhouden 2-onder-1-kapwoning met inpandig te bereiken garage verkeert in zeer goede staat en is de afgelopen jaren volledig gemoderniseerd. Hierbij is werkelijk alles vernieuwd: kozijnen, leidingwerk, elektra en vloerverwarming op de begane grond, inclusief de garage en badkamer. De woning, oorspronkelijk gebouwd in 1961, ligt op loopafstand van het dorpscentrum, scholen, kinderopvang, natuurgebieden en de Heidijk. Door de aanbouw van de keuken aan de achterzijde is er een royale en lichte woonkamer ontstaan met grote raampartijen aan weerszijden, die zorgen voor een prettige lichtinval.
Indeling
Begane grond
De entree met meterkast en eikenhouten vloer geeft toegang tot de woonkamer, het toilet en de trapopgang naar de eerste verdieping. De ruime woonkamer met open verbinding naar de leefkeuken biedt volop mogelijkheden voor een gezellige zithoek, werkplek en kastenwand. Via stijlvolle en-suite deuren bereikt u de royale woonkeuken met eethoek. De moderne leefkeuken beschikt over lichte kasten, een kunststof werkblad en diverse inbouwapparatuur, waaronder een 5-pits gaskookplaat, combi-oven, afzuigkap, vaatwasser en koelkast. De schuifpui geeft toegang tot de tuin en zorgt voor veel lichtinval.
Vanuit de keuken bereikt u de inpandige garage met bijkeuken, voorzien van aansluitingen voor witgoed. De garage is zeer ruim, geschikt voor auto, fietsen én extra bergruimte. Dankzij de openslaande deuren bereikt u eenvoudig de achtertuin en de oprit. De overdekte oprit beschikt over ingebouwde verlichting.
Eerste verdieping
Op de eerste verdieping bevinden zich twee ruime slaapkamers, een hobby-/werkkamer en een moderne badkamer. De hoofdslaapkamer van ca. 15 m² ligt aan de achterzijde en beschikt over een groot draai-kiepraam en elektrische rolluiken. De tweede slaapkamer (ca. 10 m²) ligt aan de voorzijde en biedt voldoende ruimte voor een volledig slaapkamerinterieur. De derde kamer is ideaal als inloopkast, kantoor of hobbyruimte.
De vernieuwde badkamer is uitgerust met een inloopdouche, zwevend closet, wastafelmeubel, vloerverwarming en modern tegelwerk.
De gehele verdieping is voorzien van rolluiken.
Tweede verdieping
De zolder is recent gemoderniseerd en beschikt over twee grote dakkapellen aan zowel voor- als achterzijde, voorzien van draai-kiepramen. Hier bevinden zich twee lichte slaapkamers (ca. 10 en 9 m²), een voorzolder met witgoedaansluitingen en de CV-installatie, keurig weggewerkt achter een schuifwand. De lichte laminaatvloer is doorgelegd in de gehele verdieping. Alle ramen op de tweede verdieping beschikken over elektrische zonnescreens.
Tuin
De fraai aangelegde achtertuin op het oosten is onderhoudsvriendelijk ingericht met veel groen, twee terrassen en een speelhoek. Hier geniet u van volop zon in de ochtend en middag, en in de avond op het achterste terras.
Bijzonderheden
- De woning is volledig gemoderniseerd en verkeert in uitstekende staat.
- Royale woonkamer met sfeervolle en-suite deuren en vloerverwarming.
- Moderne keuken en badkamer, uitgevoerd in eigentijdse kleurstelling.
- Slaapkamers met draai-/kiepramen, eerste verdieping voorzien van elektrische rolluiken.
- Twee grote dakkapellen zorgen voor veel licht en extra ruimte op zolder.
Kenmerken
Overdracht
- Vraagprijs
- € 600.000 k.k.
- Vraagprijs per m²
- € 4.286
- Aangeboden sinds
- 29 augustus 2025
- Status
- Verkocht onder voorbehoud
- Aanvaarding
- In overleg
Bouw
- Soort woning
- Woonhuis
- Bouwjaar
- 1961
- Soort dak
- Zadeldak
Oppervlakten en inhoud
- Oppervlakte wonen
- 140 m²
- Oppervlakte overige inpandige ruimte
- 21 m²
- Oppervlakte gebouwgebonden buitenruimte
- 18 m²
- Oppervlakte externe bergruimte
- 2 m²
- Perceel
- 252 m²
- Inhoud
- 572 m³
Indeling
- Aantal kamers
- 7
- Aantal slaapkamers
- 5
- Aantal badkamers
- 1
- Badkamervoorzieningen
- Toilet, wastafelmeubel en inloopdouche
- Aantal woonlagen
- 3
- Voorzieningen
- Mechanische ventilatie, rolluiken, tv-kabel, buitenzonwering, airconditioning en schuifpui
Energie
- Energielabel
- C
- Verwarming
- Cv-ketel
- Warm water
- Cv-ketel
- Cv-ketel
- Combiketel uit 2021
Buitenruimte
- Ligging
- Aan rustige weg, in woonwijk en in bosrijke omgeving
- Tuin
- Achtertuin en voortuin
- Achtertuin
- 107 m² gelegen op het oosten
Garage
- Soort garage
- Aangebouwd steen en carport
- Capaciteit
- 1
- Voorzieningen
- Verwarming, elektra en water