Word je warm van ons verhaal? Laten we samen kennismaken!
Neem contact op- 125 m²
- 162 m²
- 4
- E
Omschrijving
Ruime uitgebouwde kluswoning met vier slaapkamers en grote tuin te koop.
Indeling
Begane grond
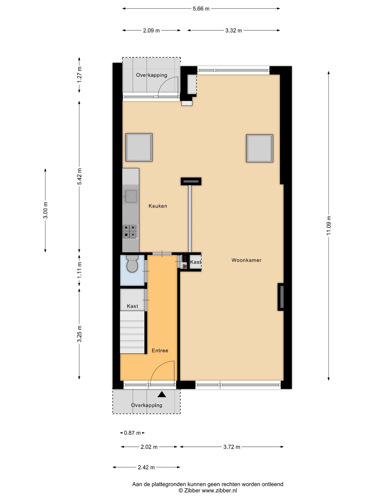
Bij binnenkomst word je verwelkomd in een ruime en lichte hal. Hier bevinden zich de meterkast, de vaste trap naar de eerste verdieping, een toilet, een voorraadkast en de doorgangen naar zowel de keuken als de woonkamer. De gehele begane grond is voorzien van een fraai aangelegde tegelvloer.
Deze ruime woonkamer met uitbouw kenmerkt zich door de grote raampartijen, waardoor er veel natuurlijk licht naar binnen stroomt. De ruimte biedt volop mogelijkheden voor een mooie inrichting. Aan de voorzijde kun je een gezellig woongedeelte creëren, terwijl je in het midden een open keuken met een fraai keuken eiland kunt plaatsen. Het eetgedeelte kan perfect aan de achterzijde van de woning worden gepositioneerd. Via de loopdeur is er direct toegang tot de tuin, wat zorgt voor een mooie verbinding tussen binnen en buiten.
De huidige opstelling van de keuken is voorzien van een gasfornuis, een oven, een ingebouwde koelkast en een afzuigkap. Deze functionele indeling biedt alles wat je nodig hebt voor het bereiden van heerlijke maaltijden. De keuken biedt volop mogelijkheden om naar wens te moderniseren of in te richten, afhankelijk van je voorkeuren.
Eerste verdieping
Op de eerste verdieping bevinden zich drie ruime slaapkamers. Twee daarvan liggen aan de achterzijde van de woning, waarbij één slaapkamer directe toegang heeft tot het dakterras. Alle slaapkamers zijn voorzien van ingebouwde kledingkasten, wat zorgt voor extra opbergruimte.
De kleine badkamer beschikt over een bad-douchecombinatie en een wastafel.
Tweede verdieping
Via een vaste trap bereik je de zolderverdieping. De ruime voorzolder biedt voldoende opbergruimte en is voorzien van een cv-ketel. De zolderkamer, met een dakkapel, is een lichte en veelzijdige ruimte die perfect geschikt is als vierde slaapkamer, thuiskantoor of hobbyruimte.
Tuin en berging
De ruime tuin is gelegen op het noordoosten en biedt volop mogelijkheden. De tuin beschikt over een vrijstaande stenen schuur, ideaal voor opslag of andere doeleinden. Er is achter het schuurtje een kleine kas gecreerd. Er is ook een achterom.
Locatie
De Bleekstraat ligt in een rustige en groene woonwijk tegen het dorp van Vught aangelegen, waar je kunt genieten van een prettige leefomgeving met alle voorzieningen binnen handbereik. Scholen, winkels en sportfaciliteiten bevinden zich op korte afstand, waardoor dit een ideale locatie is voor zowel gezinnen als stellen.
Daarnaast profiteer je van de uitstekende bereikbaarheid die Vught te bieden heeft. Met snelle verbindingen naar de A2 en N65 en een treinstation met directe lijnen naar 's-Hertogenbosch en Eindhoven, ben je binnen no-time op je bestemming.
Hier woon je in de rust van Vught, terwijl je de levendigheid van de stad binnen handbereik hebt. Een plek waar je écht thuis kunt komen!
Bijzonderheden
- Voorzijde van de woning is voorzien van elektrische rolluiken;
- Veel mogelijkheden;
- Aanvaarding in overleg;
Toon meer
Indeling
Begane grond
Bij binnenkomst word je verwelkomd in een ruime en lichte hal. Hier bevinden zich de meterkast, de vaste trap naar de eerste verdieping, een toilet, een voorraadkast en de doorgangen naar zowel de keuken als de woonkamer. De gehele begane grond is voorzien van een fraai aangelegde tegelvloer.
Deze ruime woonkamer met uitbouw kenmerkt zich door de grote raampartijen, waardoor er veel natuurlijk licht naar binnen stroomt. De ruimte biedt volop mogelijkheden voor een mooie inrichting. Aan de voorzijde kun je een gezellig woongedeelte creëren, terwijl je in het midden een open keuken met een fraai keuken eiland kunt plaatsen. Het eetgedeelte kan perfect aan de achterzijde van de woning worden gepositioneerd. Via de loopdeur is er direct toegang tot de tuin, wat zorgt voor een mooie verbinding tussen binnen en buiten.
De huidige opstelling van de keuken is voorzien van een gasfornuis, een oven, een ingebouwde koelkast en een afzuigkap. Deze functionele indeling biedt alles wat je nodig hebt voor het bereiden van heerlijke maaltijden. De keuken biedt volop mogelijkheden om naar wens te moderniseren of in te richten, afhankelijk van je voorkeuren.
Eerste verdieping
Op de eerste verdieping bevinden zich drie ruime slaapkamers. Twee daarvan liggen aan de achterzijde van de woning, waarbij één slaapkamer directe toegang heeft tot het dakterras. Alle slaapkamers zijn voorzien van ingebouwde kledingkasten, wat zorgt voor extra opbergruimte.
De kleine badkamer beschikt over een bad-douchecombinatie en een wastafel.
Tweede verdieping
Via een vaste trap bereik je de zolderverdieping. De ruime voorzolder biedt voldoende opbergruimte en is voorzien van een cv-ketel. De zolderkamer, met een dakkapel, is een lichte en veelzijdige ruimte die perfect geschikt is als vierde slaapkamer, thuiskantoor of hobbyruimte.
Tuin en berging
De ruime tuin is gelegen op het noordoosten en biedt volop mogelijkheden. De tuin beschikt over een vrijstaande stenen schuur, ideaal voor opslag of andere doeleinden. Er is achter het schuurtje een kleine kas gecreerd. Er is ook een achterom.
Locatie
De Bleekstraat ligt in een rustige en groene woonwijk tegen het dorp van Vught aangelegen, waar je kunt genieten van een prettige leefomgeving met alle voorzieningen binnen handbereik. Scholen, winkels en sportfaciliteiten bevinden zich op korte afstand, waardoor dit een ideale locatie is voor zowel gezinnen als stellen.
Daarnaast profiteer je van de uitstekende bereikbaarheid die Vught te bieden heeft. Met snelle verbindingen naar de A2 en N65 en een treinstation met directe lijnen naar 's-Hertogenbosch en Eindhoven, ben je binnen no-time op je bestemming.
Hier woon je in de rust van Vught, terwijl je de levendigheid van de stad binnen handbereik hebt. Een plek waar je écht thuis kunt komen!
Bijzonderheden
- Voorzijde van de woning is voorzien van elektrische rolluiken;
- Veel mogelijkheden;
- Aanvaarding in overleg;
Kenmerken
Overdracht
- Aangeboden sinds
- 31 juli 2025
- Status
- Verkocht
- Aanvaarding
- In overleg
Bouw
- Soort woning
- Woonhuis
- Bouwjaar
- 1962
- Soort dak
- Zadeldak
Oppervlakten en inhoud
- Oppervlakte wonen
- 125 m²
- Oppervlakte gebouwgebonden buitenruimte
- 28 m²
- Oppervlakte externe bergruimte
- 14 m²
- Perceel
- 162 m²
- Inhoud
- 441 m³
Indeling
- Aantal kamers
- 5
- Aantal slaapkamers
- 4
- Aantal badkamers
- 1
- Badkamervoorzieningen
- Ligbad en wastafel
- Aantal woonlagen
- 3
- Voorzieningen
- Rolluiken en tv-kabel
Energie
- Energielabel
- E
- Verwarming
- Cv-ketel
- Warm water
- Cv-ketel
- Cv-ketel
- Vaillant (combiketel uit 2000)
Buitenruimte
- Ligging
- In woonwijk
- Tuin
- Achtertuin en voortuin
- Achtertuin
- 36 m² gelegen op het noordwesten met achterom
Bergruimte
- Schuur/berging
- Aangebouwd steen
Garage
- Soort garage
- Geen garage