Word je warm van ons verhaal? Laten we samen kennismaken!
Neem contact op- 102 m²
- 2
- A
Omschrijving
Schitterend en ruim appartement met uitzicht over de vijver, een keurige afwerking, berging, wijnkelder en maar liefst 2 parkeerplaatsen!
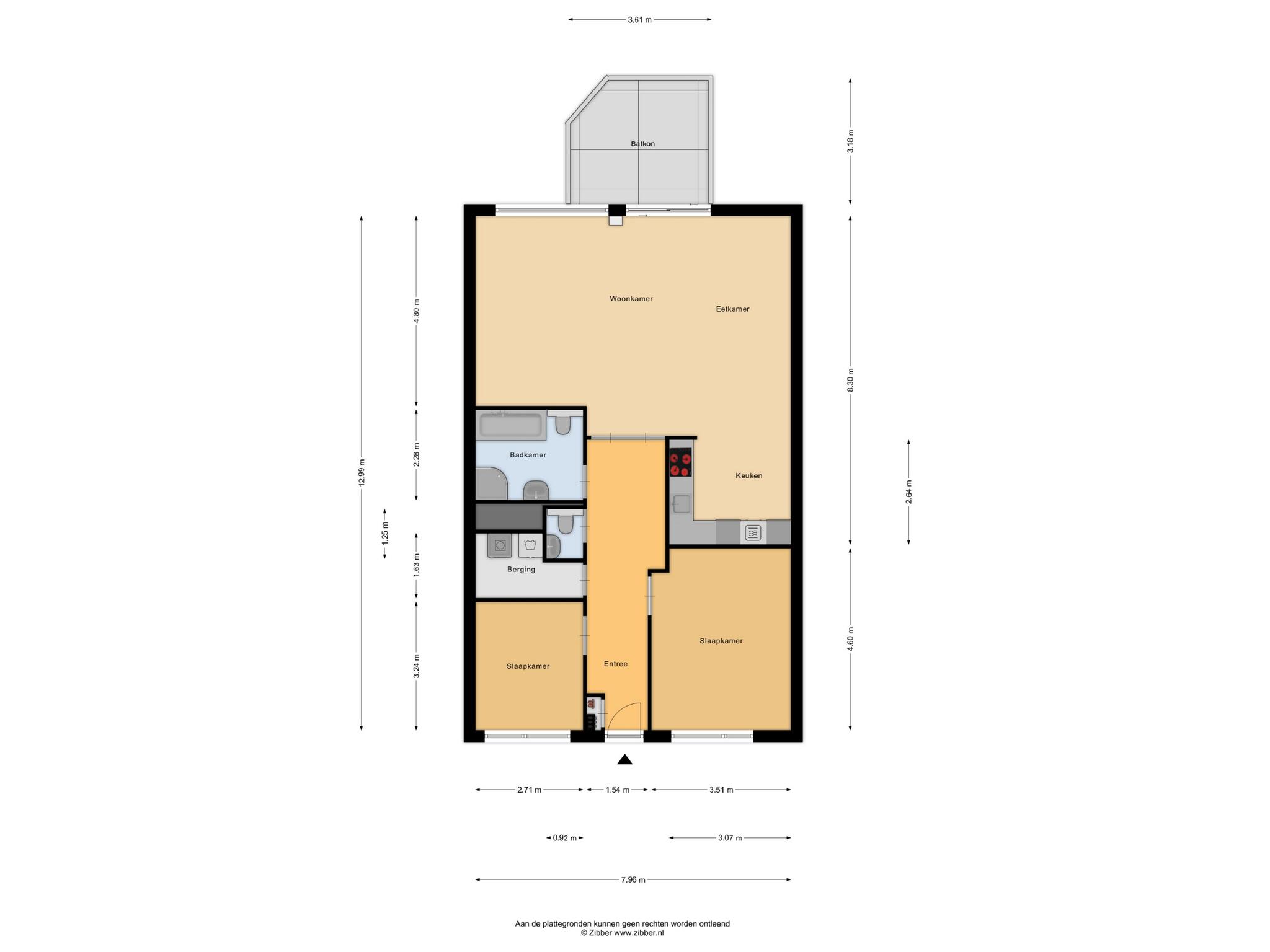
Het op de zesde verdieping gelegen appartement van deze Armada Tallhouse is ontworpen door de Engelse architect Anthony McQuirk en heeft een prachtig uitzicht over het groen en de vijver. Dit keurig afgewerkte 3-kamer appartement is voorzien van twee ruime slaapkamers, een royale woonkamer met een schuifpui naar het balkon en een luxe half open keuken. In het souterrain bevinden zich een berging, wijnkelder en de 2 parkeerplaatsen.
Het appartement is gelegen in het gewilde Paleiskwartier op loopafstand van diverse restaurants, cafés, terrassen, bioscoop, winkels, het Centraal Station en de Bourgondische binnenstad van
‘s-Hertogenbosch. De diverse uitvalswegen bieden u binnen enkele minuten toegang tot de A2 en A59.
Indeling:
Hal/ entree
De gezamenlijke entree is voorzien van postbussen, bellentableau en een videofoon-installatie. De centrale hal/entree biedt toegang tot het trappenhuis, de lift en het souterrain. In het souterrain bevindt zich op niveau -1 een royale berging en op niveau -2 maar liefst twee ruime ideaal gelegen parkeerplaatsen en een wijnkelder.
Indeling appartement:
De hal/entree biedt toegang tot de slaapkamers, woonkamer, badkamer, toiletruimte, berging/technische ruimte en meterkast.
De royale hal/entree is voorzien van fraaie dubbele deuren naar de woonkamer en afgewerkt met een fraaie pvc vloer welke is door gelegd in de woonkamer en slaapkamers.
Door de ligging op het zuiden en de grote raampartijen is er veel lichtinval in de woonkamer. De ruime woonkamer geeft middels een schuifpui toegang tot het heerlijke balkon gelegen op het zuiden. In de woonkamer is er door de hoeveelheid aan ruimte en speelse indeling van het appartement plaats voor een grote eethoek en royale zithoek. Op het balkon (11 m2) kan heerlijk worden genoten van de zon en het vrije uitzicht over de waterpartij.
De moderne halfopen matzwarte keuken is voorzien van diverse inbouwapparatuur, zoals een inductie kookplaat met ingbouwde afzuiging, vaatwasser, koelkast, vriezer, wijnklimaatkast en een praktische Quooker. Het geheel is afgewerkt met een fraai stenen werkblad.
Beide slaapkamers (16 m2 en 9 m2) bieden u meer dan voldoende ruimte. De ouderslaapkamer biedt plaats aan een tweepersoonsbed en een kledingkast. Slaapkamer 2 is ideaal te gebruiken als logeer-/ werkkamer.
De geheel betegelde badkamer is voorzien van een douchecabine, ligbad, wastafel, 2e toilet en een design radiator. De separate toiletruimte is voorzien van een hangend toilet en fonteintje.
Tevens is in het appartement een royale berging aanwezig met aansluitingen ten behoeve van de wasapparatuur, opstelling stadsverwarmingsunit en unit mechanische ventilatie.
Berging
Via de gemeenschappelijk hal/ entree is via het trappenhuis en de lift het bijbehorende souterrain met de twee separate parkeerplaatsen (verdieping -2), wijnkelder (verdieping -2) en royale berging (verdieping -1) bereikbaar.
Bijzonderheden
- Het appartement is gelegen op de zesde verdieping waardoor u een schitterend uitzicht over de vijver heeft.
- Ruim balkon op het zuiden.
- Heerlijk licht appartement omdat er geen balkon van de bovenburen overhangt.
- Gezonde VvE, servicekosten € 303,72 per maand
- Het appartement heeft een eigen berging, wijnkelder en 2 privé parkeerplaatsen in het souterrain.
- De geïsoleerde buitengevels zijn uitgevoerd in schoon metselwerk, gekeimd metselwerk en RVS gevelbekleding.
- De (binnen)kozijnen, ramen en deuren zijn uitgevoerd in hout. De ramen zijn draai- en kiepbaar en alle raamopeningen zijn voorzien van isolerende HR+ beglazing.
- Het appartement is gelegen nabij het Bourgondische centrum van ’s-Hertogenbosch.
Komt u eens vrijblijvend langs voor een bezichtiging en ervaar het comfort van deze woning!
Toon meer
Het op de zesde verdieping gelegen appartement van deze Armada Tallhouse is ontworpen door de Engelse architect Anthony McQuirk en heeft een prachtig uitzicht over het groen en de vijver. Dit keurig afgewerkte 3-kamer appartement is voorzien van twee ruime slaapkamers, een royale woonkamer met een schuifpui naar het balkon en een luxe half open keuken. In het souterrain bevinden zich een berging, wijnkelder en de 2 parkeerplaatsen.
Het appartement is gelegen in het gewilde Paleiskwartier op loopafstand van diverse restaurants, cafés, terrassen, bioscoop, winkels, het Centraal Station en de Bourgondische binnenstad van
‘s-Hertogenbosch. De diverse uitvalswegen bieden u binnen enkele minuten toegang tot de A2 en A59.
Indeling:
Hal/ entree
De gezamenlijke entree is voorzien van postbussen, bellentableau en een videofoon-installatie. De centrale hal/entree biedt toegang tot het trappenhuis, de lift en het souterrain. In het souterrain bevindt zich op niveau -1 een royale berging en op niveau -2 maar liefst twee ruime ideaal gelegen parkeerplaatsen en een wijnkelder.
Indeling appartement:
De hal/entree biedt toegang tot de slaapkamers, woonkamer, badkamer, toiletruimte, berging/technische ruimte en meterkast.
De royale hal/entree is voorzien van fraaie dubbele deuren naar de woonkamer en afgewerkt met een fraaie pvc vloer welke is door gelegd in de woonkamer en slaapkamers.
Door de ligging op het zuiden en de grote raampartijen is er veel lichtinval in de woonkamer. De ruime woonkamer geeft middels een schuifpui toegang tot het heerlijke balkon gelegen op het zuiden. In de woonkamer is er door de hoeveelheid aan ruimte en speelse indeling van het appartement plaats voor een grote eethoek en royale zithoek. Op het balkon (11 m2) kan heerlijk worden genoten van de zon en het vrije uitzicht over de waterpartij.
De moderne halfopen matzwarte keuken is voorzien van diverse inbouwapparatuur, zoals een inductie kookplaat met ingbouwde afzuiging, vaatwasser, koelkast, vriezer, wijnklimaatkast en een praktische Quooker. Het geheel is afgewerkt met een fraai stenen werkblad.
Beide slaapkamers (16 m2 en 9 m2) bieden u meer dan voldoende ruimte. De ouderslaapkamer biedt plaats aan een tweepersoonsbed en een kledingkast. Slaapkamer 2 is ideaal te gebruiken als logeer-/ werkkamer.
De geheel betegelde badkamer is voorzien van een douchecabine, ligbad, wastafel, 2e toilet en een design radiator. De separate toiletruimte is voorzien van een hangend toilet en fonteintje.
Tevens is in het appartement een royale berging aanwezig met aansluitingen ten behoeve van de wasapparatuur, opstelling stadsverwarmingsunit en unit mechanische ventilatie.
Berging
Via de gemeenschappelijk hal/ entree is via het trappenhuis en de lift het bijbehorende souterrain met de twee separate parkeerplaatsen (verdieping -2), wijnkelder (verdieping -2) en royale berging (verdieping -1) bereikbaar.
Bijzonderheden
- Het appartement is gelegen op de zesde verdieping waardoor u een schitterend uitzicht over de vijver heeft.
- Ruim balkon op het zuiden.
- Heerlijk licht appartement omdat er geen balkon van de bovenburen overhangt.
- Gezonde VvE, servicekosten € 303,72 per maand
- Het appartement heeft een eigen berging, wijnkelder en 2 privé parkeerplaatsen in het souterrain.
- De geïsoleerde buitengevels zijn uitgevoerd in schoon metselwerk, gekeimd metselwerk en RVS gevelbekleding.
- De (binnen)kozijnen, ramen en deuren zijn uitgevoerd in hout. De ramen zijn draai- en kiepbaar en alle raamopeningen zijn voorzien van isolerende HR+ beglazing.
- Het appartement is gelegen nabij het Bourgondische centrum van ’s-Hertogenbosch.
Komt u eens vrijblijvend langs voor een bezichtiging en ervaar het comfort van deze woning!
Kenmerken
Overdracht
- Aangeboden sinds
- 4 augustus 2025
- Status
- Verkocht
- Aanvaarding
- In overleg
- Bijdrage VvE
- € 303,72 per maand
Bouw
- Soort woning
- Appartement
- Soort appartement
- Bovenwoning
- Bouwjaar
- 2003
Oppervlakten en inhoud
- Oppervlakte wonen
- 102 m²
- Oppervlakte gebouwgebonden buitenruimte
- 11 m²
- Oppervlakte externe bergruimte
- 5 m²
- Inhoud
- 336 m³
Indeling
- Aantal kamers
- 3
- Aantal slaapkamers
- 2
- Aantal badkamers
- 1
- Badkamervoorzieningen
- Ligbad, toilet, douche en wastafel
- Aantal woonlagen
- 1
- Voorzieningen
- Mechanische ventilatie, lift, schuifpui en dakraam
Energie
- Energielabel
- A
- Isolatie
- Dakisolatie, muurisolatie, vloerisolatie en dubbel glas
- Verwarming
- Stadsverwarming
- Warm water
- Stadsverwarming
Buitenruimte
- Ligging
- Aan water en vrij uitzicht
- Tuin
- Geen tuin
Bergruimte
- Schuur/berging
- Inpandig
Garage
- Soort garage
- Geen garage
Vereniging van Eigenaren
- Inschrijving KvK
- Ja
- Jaarlijkse vergadering
- Ja
- Periodieke bijdrage
- Reservefonds aanwezig
- Ja
- Onderhoudsplan
- Ja
- Opstalverzekering
- Ja