Word je warm van ons verhaal? Laten we samen kennismaken!
Neem contact op- 106 m²
- 2
- A++
Omschrijving
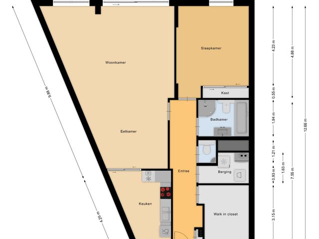
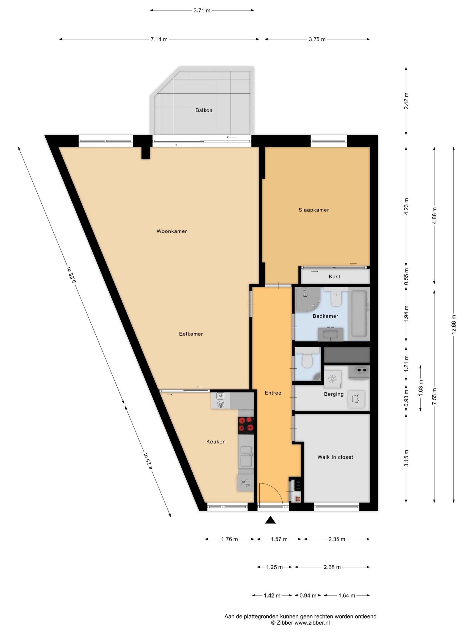
Dit op de eerste verdieping gelegen 3-kamer appartement van de Armada ‘longhouse’ is ontworpen door de Engelse architect Anthony McQuirk en heeft diverse internationale prijzen gewonnen. Het appartement is voorzien van twee ruime slaapkamers, een zeer royale woonkamer met een schuifpui naar het balkon en een luxe keuken. In het souterrain bevinden zich een berging, wijnkelder en een privé parkeerplaats. De grote raampartijen zorgen voor een weids uitzicht en een prettige lichtinval.
Het appartement is gelegen in het Paleiskwartier direct nabij het Centraal Station, op loopafstand van het Bourgondische centrum van ’s-Hertogenbosch, diverse natuurgebieden zoals ‘De Gement’, ‘De Moerputten’ en ‘Het Bossche Broek’ en op korte afstand van de diverse uitvalswegen (A50, A2). Tevens wordt er momenteel gewerkt aan de Hofvijver, Paleisbrug, Het Foodplein en diverse andere toevoegingen aan Paleiskwartier.
Indeling:
Hal/ entree
De gezamenlijke entree is voorzien van postbussen, bellentableau en een videofooninstallatie. De centrale hal/entree biedt toegang tot het trappenhuis, de lift en het souterrain. In het souterrain bevindt zich op niveau -1 een royale berging en wijnkelder en op niveau -2 een ruime parkeerplaats. Het souterrain is bereikbaar middels een gripvaste hellingbaan, afgesloten met een op afstand bedienbare speedgate.
Indeling appartement:
De hal/entree biedt toegang tot de slaapkamers, woonkamer, badkamer, toiletruimte, berging/technische ruimte en de meterkast.
De royale hal is voorzien van een garderobenis en een fraaie houten parketvloer in lichte kleurstelling, welke is doorgelegd in de woonkamer en de slaapkamers.
Ruime, lichte woonkamer met toegang tot het balkon gelegen op het zuid-westen. In de woonkamer is er door de hoeveelheid aan ruimte en speelse indeling van het appartement plaats voor een grote eethoek en royale zithoek. Op het balkon van bijna 9m2 (voorzien van hardhouten vlonders) kan heerlijk worden genoten van de zon. Door het openen van de schuifpui haalt u werkelijk het zonnetje en de frisse buitenlucht in huis.
De luxe keuken is door middel van een glazen schuifwand gescheiden van de woonkamer en voorzien van diverse hoogwaardige inbouwapparatuur, zoals een Siemens combimagnetron, 4-pits inductie kookplaat, vaatwasser, afzuigkap en een koelkast.
Het appartement is voorzien van twee slaapkamers. De hoofdslaapkamer (18 m2) is gelegen aan de voorzijde van het appartement en heeft hierdoor een geweldig uitzicht over de waterpartij en een private ligging doordat de slaapkamer niet aan de galerij grenst. In de slaapkamer is voldoende ruimte voor een grote (vaste) kledingkast en een tv-meubel of zitje. Slaapkamer twee is tevens ruim van opzet en kan worden gebruikt als tweede slaapkamer. De geheel betegelde luxe badkamer is voorzien van een douche, ligbad, bidet, wastafelmeubel en een design radiator. De toiletruimte is voorzien van een hangend toilet en fonteintje. Royale berging met aansluiting ten behoeve van de wasapparatuur, opstelling ketel en de mechanische ventilatie-unit.
Berging en parkeerplaats
Via de gemeenschappelijk hal/ entree is – via het trappenhuis en de lift – het bijbehorende souterrain met separate parkeerplaats, wijnkelder en royale berging bereikbaar. In de parkeerkelder wordt een basis laadstructuur aangebracht waardoor u een eigen laadpaal aan kunt vragen.
Locatie
Het appartementencomplex is gelegen in het Paleiskwartier. Deze nieuwbouwwijk is nog volop in ontwikkeling en kenmerkt zich onder andere door moderne bebouwing. Het Paleiskwartier is ontworpen als gemengd woon- en werkgebied: u vindt hier diverse appartementencomplexen, onderwijsinstellingen, het Paleis van Justitie, advocatenkantoren, bedrijven, cafés, bioscoop, supermarkt, restaurants, fitnesscentra, enkele winkels en een modern stadspark. Het bassin doet dienst als zonnewarmtecollector voor de gemeenschappelijke warmtevoorziening en kan in de winter als 400 meter schaatsbaan dienen.
Het Paleiskwartier is op loopafstand van het station van 's-Hertogenbosch gelegen en ligt vlakbij de aansluiting op de snelwegen A59 en A2. Voor de dagelijkse boodschappen is het stadswinkelcentrum
De Helftheuvel met een variatie van winkels en supermarkten eenvoudig te bereiken. Het nieuwe Jeroen Bosch ziekenhuis is op korte afstand gelegen. U woont in de nabijheid van toonaangevende natuurgebieden zoals het Bossche Broek, het Gement, de Moerputten en de Vughtse heide. Kortom: alle voorzieningen zijn gemakkelijk bereikbaar!
Bijzonderheden
- 3-kamer appartement, gelegen op de eerste verdieping
- Twee ruime slaapkamers
- Eigen privé parkeerplaats en berging
- Gelegen in het Paleiskwartier, nabij het bruisende stadscentrum van 's-Hertogenbosch
Toon meer
Het appartement is gelegen in het Paleiskwartier direct nabij het Centraal Station, op loopafstand van het Bourgondische centrum van ’s-Hertogenbosch, diverse natuurgebieden zoals ‘De Gement’, ‘De Moerputten’ en ‘Het Bossche Broek’ en op korte afstand van de diverse uitvalswegen (A50, A2). Tevens wordt er momenteel gewerkt aan de Hofvijver, Paleisbrug, Het Foodplein en diverse andere toevoegingen aan Paleiskwartier.
Indeling:
Hal/ entree
De gezamenlijke entree is voorzien van postbussen, bellentableau en een videofooninstallatie. De centrale hal/entree biedt toegang tot het trappenhuis, de lift en het souterrain. In het souterrain bevindt zich op niveau -1 een royale berging en wijnkelder en op niveau -2 een ruime parkeerplaats. Het souterrain is bereikbaar middels een gripvaste hellingbaan, afgesloten met een op afstand bedienbare speedgate.
Indeling appartement:
De hal/entree biedt toegang tot de slaapkamers, woonkamer, badkamer, toiletruimte, berging/technische ruimte en de meterkast.
De royale hal is voorzien van een garderobenis en een fraaie houten parketvloer in lichte kleurstelling, welke is doorgelegd in de woonkamer en de slaapkamers.
Ruime, lichte woonkamer met toegang tot het balkon gelegen op het zuid-westen. In de woonkamer is er door de hoeveelheid aan ruimte en speelse indeling van het appartement plaats voor een grote eethoek en royale zithoek. Op het balkon van bijna 9m2 (voorzien van hardhouten vlonders) kan heerlijk worden genoten van de zon. Door het openen van de schuifpui haalt u werkelijk het zonnetje en de frisse buitenlucht in huis.
De luxe keuken is door middel van een glazen schuifwand gescheiden van de woonkamer en voorzien van diverse hoogwaardige inbouwapparatuur, zoals een Siemens combimagnetron, 4-pits inductie kookplaat, vaatwasser, afzuigkap en een koelkast.
Het appartement is voorzien van twee slaapkamers. De hoofdslaapkamer (18 m2) is gelegen aan de voorzijde van het appartement en heeft hierdoor een geweldig uitzicht over de waterpartij en een private ligging doordat de slaapkamer niet aan de galerij grenst. In de slaapkamer is voldoende ruimte voor een grote (vaste) kledingkast en een tv-meubel of zitje. Slaapkamer twee is tevens ruim van opzet en kan worden gebruikt als tweede slaapkamer. De geheel betegelde luxe badkamer is voorzien van een douche, ligbad, bidet, wastafelmeubel en een design radiator. De toiletruimte is voorzien van een hangend toilet en fonteintje. Royale berging met aansluiting ten behoeve van de wasapparatuur, opstelling ketel en de mechanische ventilatie-unit.
Berging en parkeerplaats
Via de gemeenschappelijk hal/ entree is – via het trappenhuis en de lift – het bijbehorende souterrain met separate parkeerplaats, wijnkelder en royale berging bereikbaar. In de parkeerkelder wordt een basis laadstructuur aangebracht waardoor u een eigen laadpaal aan kunt vragen.
Locatie
Het appartementencomplex is gelegen in het Paleiskwartier. Deze nieuwbouwwijk is nog volop in ontwikkeling en kenmerkt zich onder andere door moderne bebouwing. Het Paleiskwartier is ontworpen als gemengd woon- en werkgebied: u vindt hier diverse appartementencomplexen, onderwijsinstellingen, het Paleis van Justitie, advocatenkantoren, bedrijven, cafés, bioscoop, supermarkt, restaurants, fitnesscentra, enkele winkels en een modern stadspark. Het bassin doet dienst als zonnewarmtecollector voor de gemeenschappelijke warmtevoorziening en kan in de winter als 400 meter schaatsbaan dienen.
Het Paleiskwartier is op loopafstand van het station van 's-Hertogenbosch gelegen en ligt vlakbij de aansluiting op de snelwegen A59 en A2. Voor de dagelijkse boodschappen is het stadswinkelcentrum
De Helftheuvel met een variatie van winkels en supermarkten eenvoudig te bereiken. Het nieuwe Jeroen Bosch ziekenhuis is op korte afstand gelegen. U woont in de nabijheid van toonaangevende natuurgebieden zoals het Bossche Broek, het Gement, de Moerputten en de Vughtse heide. Kortom: alle voorzieningen zijn gemakkelijk bereikbaar!
Bijzonderheden
- 3-kamer appartement, gelegen op de eerste verdieping
- Twee ruime slaapkamers
- Eigen privé parkeerplaats en berging
- Gelegen in het Paleiskwartier, nabij het bruisende stadscentrum van 's-Hertogenbosch
Kenmerken
Overdracht
- Vraagprijs
- € 549.000 k.k.
- Vraagprijs per m²
- € 5.179
- Aangeboden sinds
- 15 november 2025
- Status
- Beschikbaar
- Aanvaarding
- In overleg
- Bijdrage VvE
- € 327,80 per maand
Bouw
- Soort woning
- Appartement
- Soort appartement
- Galerijflat
- Bouwjaar
- 2003
- Soort dak
- Plat dak
Oppervlakten en inhoud
- Oppervlakte wonen
- 106 m²
- Oppervlakte gebouwgebonden buitenruimte
- 8 m²
- Oppervlakte externe bergruimte
- 23 m²
- Inhoud
- 350 m³
Indeling
- Aantal kamers
- 3
- Aantal slaapkamers
- 2
- Aantal badkamers
- 1
- Badkamervoorzieningen
- Ligbad, douche, bidet en wastafel
- Aantal woonlagen
- 1
- Voorzieningen
- Mechanische ventilatie, tv-kabel, lift, schuifpui, dakraam en natuurlijke ventilatie
Energie
- Energielabel
- A++
- Isolatie
- Dakisolatie, muurisolatie, vloerisolatie, dubbel glas en volledig geïsoleerd
- Verwarming
- Stadsverwarming
- Warm water
- Centrale voorziening
Buitenruimte
- Tuin
- Geen tuin
Bergruimte
- Schuur/berging
- Inpandig
- Voorzieningen
- Voorzien van elektra
Garage
- Soort garage
- Parkeerkelder en parkeerplaats
Vereniging van Eigenaren
- Inschrijving KvK
- Ja
- Jaarlijkse vergadering
- Ja
- Periodieke bijdrage
- Reservefonds aanwezig
- Ja
- Onderhoudsplan
- Ja
- Opstalverzekering
- Ja