Word je warm van ons verhaal? Laten we samen kennismaken!
Neem contact op- 103 m²
- 2
- A
Omschrijving
Lekker licht, instapklaar en royaal hoekappartement met zonnige buitenruimte, parkeerplaats (recht) en praktische berging gelegen in het dynamische Paleiskwartier!
Het appartement is gelegen op de 4e verdieping in complex "Het Kabinet" en heeft een gunstige ligging in het toonaangevende Paleiskwartier, in de buurt vindt u verschillende winkels waaronder een Jumbo supermarkt, bioscoop maar ook leuke cafés en restaurants. Het Bourgondische centrum van ’s-Hertogenbosch en het Centraal Station zijn op een steenworpafstand van het appartement gelegen. Daarnaast bieden de diverse uitvalswegen u binnen enkele minuten toegang tot de A2 en de A59.
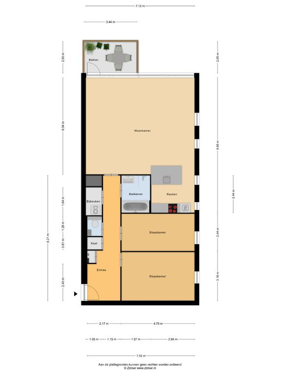
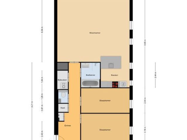
Indeling:
Hal/ entree
De gezamenlijke entree is voorzien van postbussen, bellentableau en een videofooninstallatie. De centrale hal/entree biedt toegang tot het trappenhuis, de liften en het souterrain. In het souterrain bevinden zich de praktische berging en een parkeerplaats (parkeerrecht). Met de auto bereikt u de parkeergarage middels een hellingbaan en een op afstand bedienbare toegangspoort.
Indeling appartement:
De hal/entree biedt toegang tot de slaapkamers, woonkamer, badkamer, toiletruimte, bergkast en een technische ruimte en de compleet uitgeruste meterkast. Het gehele appartement is voorzien van een mooie laminaatvloer.
De ruime, lichte woonkamer met toegang tot het zonnige balkon (7 m2) gelegen op het zuiden heeft door de grote raampartijen en de gunstige ligging op de hoek van het complex een zeer prettige lichtinval en een aangenaam uitzicht over de Bordeslaan. Vanaf het zonnige balkon kijkt u naar het prachtige schouwspel van de Armada’s, een groenrijke omgeving, en de waterpartij van het Paleiskwartier. De woonkamer is voorzien van een luxe open keuken ( ca. 2017) welke is voorzien van diverse hoogwaardige inbouwapparatuur zoals een combi-magnetron, vaatwasser, inductiekookplaat met ingebouwde afzuiging, koel-/ vriescombinatie en een spoelbak.
Het appartement is voorzien van twee ruime slaapkamers (15 m2 en 12 m2), beide voorzien van een laminaatvloer. De moderne badkamer uit 2018 is volledig betegeld met een luxe tegel en beschikt over een ruime inloopdouche, ligbad, breed wastafelmeubel en een designradiator. De separate toiletruimte is eveneens vernieuwd en voorzien van een zwevend closet met fonteintje. Royale berging met aansluiting ten behoeve van de wasapparatuur, opstelling ketel en unit mechanische ventilatie.
Berging en parkeerplaats
Via de gemeenschappelijke hal/entree is (via het trappenhuis en de lift) het bijbehorende souterrain met parkeerplaats (parkeerrecht) en berging bereikbaar.
Binnentuin en dakterras
De eigenaren van Het Kabinet kunnen tevens heerlijk genieten van het gezamenlijke zonnige dakterras gelegen op de 5e verdieping en de binnentuin gelegen op de begane grond.
Bijzonderheden
• Door de grote raampartijen en de ligging op de hoek van het complex is er een prettige
lichtinval en een prachtig uitzicht.
• Via de gemeenschappelijke hal/entree is (via het trappenhuis en de lift) het bijbehorende souterrain met
parkeerplaats (parkeerrecht) en berging bereikbaar.
• Bezoek kan al voor €0,05 cent per uur parkeren d.m.v. het aanwezige bezoekerspasje.
* De servicekosten bedragen € 206,- per maand.
• Vanuit de woonkamer is er toegang tot het zonnige balkon (7 m2) gelegen op het zuiden!
• Het complex is voorzien van een gezamenlijk dakterras op de 5e verdieping en een binnentuin waar de
eigenaren van ‘’Het Kabinet’’ heerlijk kunnen vertoeven.
• Het appartement is gelegen nabij het Bourgondische centrum van ’s-Hertogenbosch.
• Het appartement is gelegen in het toonaangevende Paleiskwartier opgebouwd uit hoogwaardige architectuur.
• Het gehele appartement is afgewerkt met een laminaatvloer.
Voor een bezichtiging kunt u contact opnemen met ons kantoor.
Toon meer
Het appartement is gelegen op de 4e verdieping in complex "Het Kabinet" en heeft een gunstige ligging in het toonaangevende Paleiskwartier, in de buurt vindt u verschillende winkels waaronder een Jumbo supermarkt, bioscoop maar ook leuke cafés en restaurants. Het Bourgondische centrum van ’s-Hertogenbosch en het Centraal Station zijn op een steenworpafstand van het appartement gelegen. Daarnaast bieden de diverse uitvalswegen u binnen enkele minuten toegang tot de A2 en de A59.
Indeling:
Hal/ entree
De gezamenlijke entree is voorzien van postbussen, bellentableau en een videofooninstallatie. De centrale hal/entree biedt toegang tot het trappenhuis, de liften en het souterrain. In het souterrain bevinden zich de praktische berging en een parkeerplaats (parkeerrecht). Met de auto bereikt u de parkeergarage middels een hellingbaan en een op afstand bedienbare toegangspoort.
Indeling appartement:
De hal/entree biedt toegang tot de slaapkamers, woonkamer, badkamer, toiletruimte, bergkast en een technische ruimte en de compleet uitgeruste meterkast. Het gehele appartement is voorzien van een mooie laminaatvloer.
De ruime, lichte woonkamer met toegang tot het zonnige balkon (7 m2) gelegen op het zuiden heeft door de grote raampartijen en de gunstige ligging op de hoek van het complex een zeer prettige lichtinval en een aangenaam uitzicht over de Bordeslaan. Vanaf het zonnige balkon kijkt u naar het prachtige schouwspel van de Armada’s, een groenrijke omgeving, en de waterpartij van het Paleiskwartier. De woonkamer is voorzien van een luxe open keuken ( ca. 2017) welke is voorzien van diverse hoogwaardige inbouwapparatuur zoals een combi-magnetron, vaatwasser, inductiekookplaat met ingebouwde afzuiging, koel-/ vriescombinatie en een spoelbak.
Het appartement is voorzien van twee ruime slaapkamers (15 m2 en 12 m2), beide voorzien van een laminaatvloer. De moderne badkamer uit 2018 is volledig betegeld met een luxe tegel en beschikt over een ruime inloopdouche, ligbad, breed wastafelmeubel en een designradiator. De separate toiletruimte is eveneens vernieuwd en voorzien van een zwevend closet met fonteintje. Royale berging met aansluiting ten behoeve van de wasapparatuur, opstelling ketel en unit mechanische ventilatie.
Berging en parkeerplaats
Via de gemeenschappelijke hal/entree is (via het trappenhuis en de lift) het bijbehorende souterrain met parkeerplaats (parkeerrecht) en berging bereikbaar.
Binnentuin en dakterras
De eigenaren van Het Kabinet kunnen tevens heerlijk genieten van het gezamenlijke zonnige dakterras gelegen op de 5e verdieping en de binnentuin gelegen op de begane grond.
Bijzonderheden
• Door de grote raampartijen en de ligging op de hoek van het complex is er een prettige
lichtinval en een prachtig uitzicht.
• Via de gemeenschappelijke hal/entree is (via het trappenhuis en de lift) het bijbehorende souterrain met
parkeerplaats (parkeerrecht) en berging bereikbaar.
• Bezoek kan al voor €0,05 cent per uur parkeren d.m.v. het aanwezige bezoekerspasje.
* De servicekosten bedragen € 206,- per maand.
• Vanuit de woonkamer is er toegang tot het zonnige balkon (7 m2) gelegen op het zuiden!
• Het complex is voorzien van een gezamenlijk dakterras op de 5e verdieping en een binnentuin waar de
eigenaren van ‘’Het Kabinet’’ heerlijk kunnen vertoeven.
• Het appartement is gelegen nabij het Bourgondische centrum van ’s-Hertogenbosch.
• Het appartement is gelegen in het toonaangevende Paleiskwartier opgebouwd uit hoogwaardige architectuur.
• Het gehele appartement is afgewerkt met een laminaatvloer.
Voor een bezichtiging kunt u contact opnemen met ons kantoor.
Kenmerken
Overdracht
- Aangeboden sinds
- 21 oktober 2025
- Status
- Verkocht
- Aanvaarding
- In overleg
- Bijdrage VvE
- € 206,00 per maand
Bouw
- Soort woning
- Appartement
- Soort appartement
- Portiekflat
- Bouwjaar
- 2009
- Soort dak
- Plat dak
Oppervlakten en inhoud
- Oppervlakte wonen
- 103 m²
- Oppervlakte gebouwgebonden buitenruimte
- 7 m²
- Oppervlakte externe bergruimte
- 4 m²
- Inhoud
- 339 m³
Indeling
- Aantal kamers
- 3
- Aantal slaapkamers
- 2
- Aantal woonlagen
- 1
- Voorzieningen
- Mechanische ventilatie en lift
Energie
- Energielabel
- A
- Isolatie
- Dakisolatie, muurisolatie, vloerisolatie, dubbel glas, gedeeltelijk dubbel glas, voorzetramen, volledig geïsoleerd, geen spouw, eco bouw, geen isolatie, grotendeels dubbelglas, driedubbel glas, kierdichting en hr glas
- Verwarming
- Stadsverwarming
- Warm water
- Stadsverwarming
Buitenruimte
- Ligging
- In woonwijk
- Tuin
- Geen tuin
Bergruimte
- Schuur/berging
- Inpandig
Garage
- Soort garage
- Parkeerplaats
Vereniging van Eigenaren
- Inschrijving KvK
- Ja
- Jaarlijkse vergadering
- Ja
- Periodieke bijdrage
- Reservefonds aanwezig
- Ja
- Onderhoudsplan
- Ja
- Opstalverzekering
- Ja