Word je warm van ons verhaal? Laten we samen kennismaken!
Neem contact op- 96 m²
- 2
- A+
Omschrijving
Ruim 3-kamerhoekappartement met terras en tuintje gelegen in het gewilde Paleiskwartier met een gezellige, lichte woonkamer, ruime keuken, badkamer en mooie buitenruimte. Dit appartement heeft een geweldige ligging en is voorzien van een eigen parkeerplaats en berging.
Locatie:
Het appartement bevindt zich op de begane grond van deze statige Armada ''Longhouse''. De Armada’s bevinden zich centraal in Het Paleiskwartier aan de waterpartij. Op loopafstand van o.a. de Bourgondische binnenstad van ’s-Hertogenbosch, het Centraal Station, bioscoop, een supermarkt voor de dagelijkse boodschappen en diverse restaurants en cafés. Het Paleiskwartier heeft een uitstekende bereikbaarheid en biedt middels de diverse uitvalswegen binnen enkele minuten toegang tot de A59 en de A2.
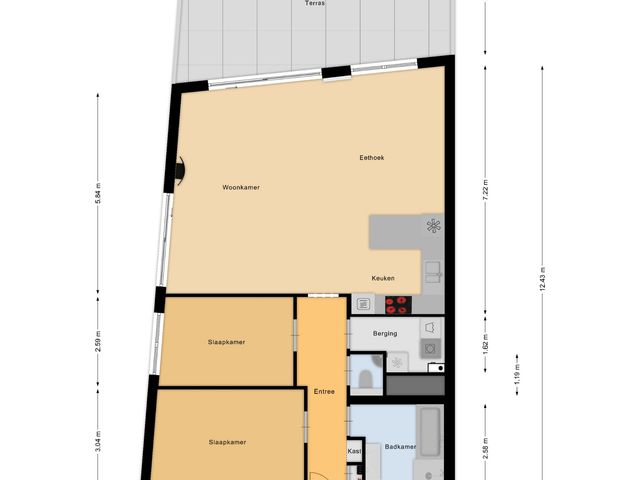
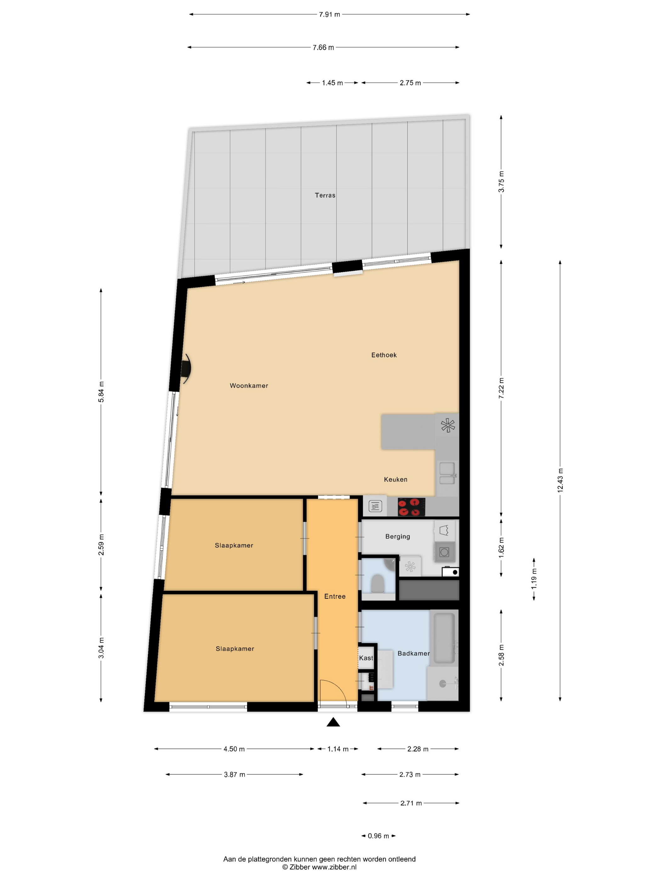
Indeling
Hal/entree:
De eigen entree met omheind terras bevindt zich op de begane grond van een van de markante Armada’s. Via de lift en traphuis zijn de inpandige berging, wijnkelder en parkeergarage te bereiken.
Appartement:
De hal biedt toegang tot de meterkast, technische ruimte, beide slaapkamers, de badkamer en de woonkamer. In de technische ruimte vinden we de stadsverwarmingsunit, aansluitingen voor wasmachine en droger en de warmte terugwin-installatie.
Het appartement is voorzien van een mooie houten vloer welke doorloopt in de hal en woonkamer. De slaapkamers zijn voorzien van een laminaatvloer.
De ruime ouderslaapkamer bevindt zich aan de voorzijde van het appartement en is voorzien van een laminaatvloer en een praktische kast. Er is meer dan voldoende ruimte voor een tweepersoons bed en een flinke kastenwand. Door de grote raampartijen is er een fijne lichtinval. De tweede slaapkamer is eveneens lekker ruim en is ideaal in gebruik te nemen als kantoor of logeerkamer. De volledig betegelde badkamer is voorzien van een wastafel, ruime douchecabine en een heerlijk ligbad. Een raam biedt daglicht en ventilatie. Het moderne toilet is voorzien van een wandcloset en een fonteintje.
De lichte en ruime woonkamer is praktisch in te delen met een gezellige zit-en eethoek en is voorzien van grote raampartijen. De moderne, open keuken is in een u-opstelling geplaatst en voorzien van een tegelvloer en van diverse inbouwapparatuur, waaronder een koelkast, combi-oven, vaatwasser, inductiekookplaat en een afzuigkap.
Via de grote schuifpui is de tuin bereikbaar. De tuin is voorzien van een terras en een plantenborder. Men kan hier heerlijk genieten van de zon en kijkt gezellig uit over de vijverpartij en de levendige omgeving.
Parkeerplaats en berging:
Vanuit de gemeenschappelijke entree is middels het trappenhuis of de lift het souterrain bereikbaar. In het souterrain (op -2) bevindt zich de parkeergarage, waar u de beschikking heeft over uw eigen parkeerplaats. Met de auto bereikt u het souterrain middels een hellingbaan en een op afstand bedienbare toegangspoort. Uw eigen parkeerplaats bevindt zich nabij de hellingbaan en de toegangsdeur tot de lift. Uw praktische eigen berging bevindt zich eveneens in het souterrain (op -1).
Bijzonderheden:
- 3-kamerappartement met twee ruime slaapkamers
- Ruime living met open keuken en eethoek
- Grote raampartijen en ligging op het zuidwesten zorgt voor veel lichtinval
- Privé terras op het zuidwesten
- Eigen entree vanaf straatzijde (begane grond)
- Supermarkt Jumbo, restaurants en terrasjes letterlijk om de hoek
- Gelegen in het levendige Paleiskwartier met het stadscentrum op loopafstand
- Inclusief eigen parkeerplaats én berging in het souterrain
- Toegang tot een gemeenschappelijke wijnkelder op niveau -2
Toon meer
Locatie:
Het appartement bevindt zich op de begane grond van deze statige Armada ''Longhouse''. De Armada’s bevinden zich centraal in Het Paleiskwartier aan de waterpartij. Op loopafstand van o.a. de Bourgondische binnenstad van ’s-Hertogenbosch, het Centraal Station, bioscoop, een supermarkt voor de dagelijkse boodschappen en diverse restaurants en cafés. Het Paleiskwartier heeft een uitstekende bereikbaarheid en biedt middels de diverse uitvalswegen binnen enkele minuten toegang tot de A59 en de A2.
Indeling
Hal/entree:
De eigen entree met omheind terras bevindt zich op de begane grond van een van de markante Armada’s. Via de lift en traphuis zijn de inpandige berging, wijnkelder en parkeergarage te bereiken.
Appartement:
De hal biedt toegang tot de meterkast, technische ruimte, beide slaapkamers, de badkamer en de woonkamer. In de technische ruimte vinden we de stadsverwarmingsunit, aansluitingen voor wasmachine en droger en de warmte terugwin-installatie.
Het appartement is voorzien van een mooie houten vloer welke doorloopt in de hal en woonkamer. De slaapkamers zijn voorzien van een laminaatvloer.
De ruime ouderslaapkamer bevindt zich aan de voorzijde van het appartement en is voorzien van een laminaatvloer en een praktische kast. Er is meer dan voldoende ruimte voor een tweepersoons bed en een flinke kastenwand. Door de grote raampartijen is er een fijne lichtinval. De tweede slaapkamer is eveneens lekker ruim en is ideaal in gebruik te nemen als kantoor of logeerkamer. De volledig betegelde badkamer is voorzien van een wastafel, ruime douchecabine en een heerlijk ligbad. Een raam biedt daglicht en ventilatie. Het moderne toilet is voorzien van een wandcloset en een fonteintje.
De lichte en ruime woonkamer is praktisch in te delen met een gezellige zit-en eethoek en is voorzien van grote raampartijen. De moderne, open keuken is in een u-opstelling geplaatst en voorzien van een tegelvloer en van diverse inbouwapparatuur, waaronder een koelkast, combi-oven, vaatwasser, inductiekookplaat en een afzuigkap.
Via de grote schuifpui is de tuin bereikbaar. De tuin is voorzien van een terras en een plantenborder. Men kan hier heerlijk genieten van de zon en kijkt gezellig uit over de vijverpartij en de levendige omgeving.
Parkeerplaats en berging:
Vanuit de gemeenschappelijke entree is middels het trappenhuis of de lift het souterrain bereikbaar. In het souterrain (op -2) bevindt zich de parkeergarage, waar u de beschikking heeft over uw eigen parkeerplaats. Met de auto bereikt u het souterrain middels een hellingbaan en een op afstand bedienbare toegangspoort. Uw eigen parkeerplaats bevindt zich nabij de hellingbaan en de toegangsdeur tot de lift. Uw praktische eigen berging bevindt zich eveneens in het souterrain (op -1).
Bijzonderheden:
- 3-kamerappartement met twee ruime slaapkamers
- Ruime living met open keuken en eethoek
- Grote raampartijen en ligging op het zuidwesten zorgt voor veel lichtinval
- Privé terras op het zuidwesten
- Eigen entree vanaf straatzijde (begane grond)
- Supermarkt Jumbo, restaurants en terrasjes letterlijk om de hoek
- Gelegen in het levendige Paleiskwartier met het stadscentrum op loopafstand
- Inclusief eigen parkeerplaats én berging in het souterrain
- Toegang tot een gemeenschappelijke wijnkelder op niveau -2
Kenmerken
Overdracht
- Vraagprijs
- € 589.500 k.k.
- Vraagprijs per m²
- € 6.141
- Aangeboden sinds
- 6 november 2025
- Status
- Beschikbaar
- Aanvaarding
- In overleg
- Bijdrage VvE
- € 259,00 per maand
Bouw
- Soort woning
- Appartement
- Soort appartement
- Benedenwoning
- Bouwjaar
- 2005
Oppervlakten en inhoud
- Oppervlakte wonen
- 96 m²
- Oppervlakte gebouwgebonden buitenruimte
- 32 m²
- Oppervlakte externe bergruimte
- 17 m²
- Inhoud
- 317 m³
Indeling
- Aantal kamers
- 3
- Aantal slaapkamers
- 2
- Aantal badkamers
- 1
- Badkamervoorzieningen
- Ligbad, douche, dubbele wastafel en wastafelmeubel
- Aantal woonlagen
- 1
- Voorzieningen
- Mechanische ventilatie en schuifpui
Energie
- Energielabel
- A+
- Isolatie
- Volledig geïsoleerd
- Verwarming
- Stadsverwarming
- Warm water
- Centrale voorziening
Buitenruimte
- Ligging
- Aan water en in centrum
- Tuin
- Zonneterras
Bergruimte
- Schuur/berging
- Inpandig
- Voorzieningen
- Voorzien van elektra
Garage
- Soort garage
- Parkeerkelder
Vereniging van Eigenaren
- Inschrijving KvK
- Ja
- Jaarlijkse vergadering
- Ja
- Periodieke bijdrage
- Reservefonds aanwezig
- Ja
- Onderhoudsplan
- Ja
- Opstalverzekering
- Ja