Word je warm van ons verhaal? Laten we samen kennismaken!
Neem contact op- 104 m²
- 218 m²
- 3
- C
Omschrijving
Op zoek naar een gezinswoning met ruimte en comfort? Deze prachtige 2-onder-1-kapwoning heeft alles wat je nodig hebt! Met drie ruime slaapkamers en de mogelijkheid voor een vierde, een goed verzorgde tuin en een rustige ligging aan de rand van Drunen, is dit de ideale plek voor een jong gezin of mensen die rust en ruimte zoeken. Geniet van de perfecte combinatie van een fijne woning en een prachtige locatie.
INDELING
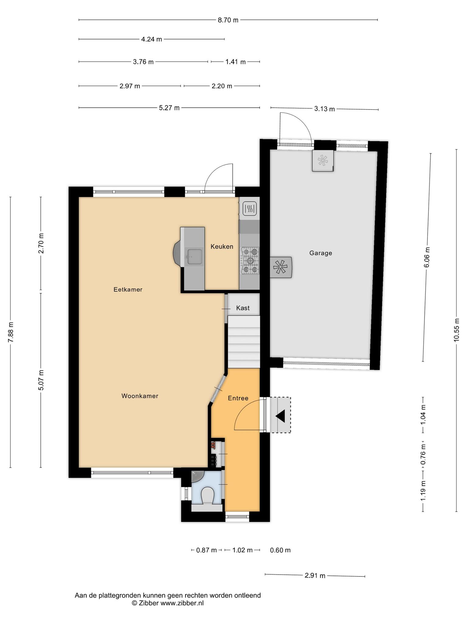
BEGANE GROND
Parkeer je auto op de oprit en stap de woning binnen via de entreehal, die toegang biedt tot de meterkast, het toilet, de trap naar de eerste verdieping en de woonkamer. De ruime woonkamer heeft veel lichtinval door de grote raampartijen en biedt ruimte voor zowel een gezellige zithoek als een eettafel. De sfeervolle ethanol kachel zorgt voor extra sfeer en warmte. De halfopen keuken (uit 2011) is voorzien van een 5-pits gasfornuis, oven, koelkast en vaatwasser. Via de keuken heb je direct toegang tot de verzorgde tuin. Daarnaast is er een ruime garage, perfect voor extra opslag of het parkeren van je fiets.
EERSTE VERDIEPING
Je betreed de eerste verdieping via de overloop welke toegang biedt tot drie ruime slaapkamers. De hoofdslaapkamer is groot genoeg voor een tweepersoonsbed en een ruime kledingkast. De andere twee slaapkamers zijn eveneens ruim en flexibel in te richten, bijvoorbeeld als kantoor, hobbyruimte of gewoon als kinderkamer. De badkamer is uitgerust met een toilet, ligbad, douche en wastafel, waardoor je hier in alle comfort kunt ontspannen. Kortom, de eerste verdieping biedt volop ruimte en mogelijkheden voor het hele gezin.
TWEEDE VERDIEPING
De tweede verdieping is te bereiken via een vaste trap en biedt momenteel ruimte als berging. Hier vind je de opstelplaats voor de wasmachine, wasdroger en de cv-ketel uit 2020. Verder is deze verdieping voorzien van een nieuw Velux dakraam uit 2024, wat zorgt voor extra daglicht. De ruimte leent zich echter ook perfect voor de aanleg van een vierde slaapkamer, zodat je nog meer ruimte hebt voor het hele gezin. De tweede verdieping biedt dus volop mogelijkheden om de woning naar wens in te richten.
TUIN
De ruime, goed onderhouden tuin is perfect voor wie op zoek is naar een onderhoudsvriendelijke buitenruimte. Dankzij de ligging op het noordwesten geniet je van zowel zonnige als schaduwrijke plekken, ideaal voor verschillende zitgedeeltes. Of je nu in de zon wilt relaxen of in de schaduw een boek wilt lezen, de tuin biedt volop mogelijkheden om te genieten van het buitenleven. De tuin is geheel naar eigen smaak in te richten.
LOCATIE
Gelegen aan de rand van Drunen, in een kindvriendelijke wijk, biedt deze woning de ideale balans tussen rust en bereikbaarheid. Je woont dichtbij de Heidijk en de prachtige Loonse en Drunense Duinen, perfect voor wandel- en fietsliefhebbers. Bovendien bevindt zich tegenover de woning een speeltuin, ideaal voor de kinderen om veilig te spelen. Voor de dagelijkse boodschappen kun je terecht in het centrum van Drunen. Daarnaast ben je met de A59 in de buurt binnen 15 minuten in het centrum van Den Bosch waar gezellige terrassen en leuke winkels te vinden zijn.
BIJZONDERHEDEN
- Ruime woonkamer met veel lichtinval;
- Begane grond voorzien van vloerverwarming;
- Sfeervolle ethanol kachel;
- Ruime garage;
- Drie ruime slaapkamers met mogelijkheid tot een vierde slaapkamer;
- Onderhoudsvriendelijke tuin op het Noordwesten;
- Dichtbij de Loonse en Drunense duinen;
- Goede bereikbaarheid.
Toon meer
INDELING
BEGANE GROND
Parkeer je auto op de oprit en stap de woning binnen via de entreehal, die toegang biedt tot de meterkast, het toilet, de trap naar de eerste verdieping en de woonkamer. De ruime woonkamer heeft veel lichtinval door de grote raampartijen en biedt ruimte voor zowel een gezellige zithoek als een eettafel. De sfeervolle ethanol kachel zorgt voor extra sfeer en warmte. De halfopen keuken (uit 2011) is voorzien van een 5-pits gasfornuis, oven, koelkast en vaatwasser. Via de keuken heb je direct toegang tot de verzorgde tuin. Daarnaast is er een ruime garage, perfect voor extra opslag of het parkeren van je fiets.
EERSTE VERDIEPING
Je betreed de eerste verdieping via de overloop welke toegang biedt tot drie ruime slaapkamers. De hoofdslaapkamer is groot genoeg voor een tweepersoonsbed en een ruime kledingkast. De andere twee slaapkamers zijn eveneens ruim en flexibel in te richten, bijvoorbeeld als kantoor, hobbyruimte of gewoon als kinderkamer. De badkamer is uitgerust met een toilet, ligbad, douche en wastafel, waardoor je hier in alle comfort kunt ontspannen. Kortom, de eerste verdieping biedt volop ruimte en mogelijkheden voor het hele gezin.
TWEEDE VERDIEPING
De tweede verdieping is te bereiken via een vaste trap en biedt momenteel ruimte als berging. Hier vind je de opstelplaats voor de wasmachine, wasdroger en de cv-ketel uit 2020. Verder is deze verdieping voorzien van een nieuw Velux dakraam uit 2024, wat zorgt voor extra daglicht. De ruimte leent zich echter ook perfect voor de aanleg van een vierde slaapkamer, zodat je nog meer ruimte hebt voor het hele gezin. De tweede verdieping biedt dus volop mogelijkheden om de woning naar wens in te richten.
TUIN
De ruime, goed onderhouden tuin is perfect voor wie op zoek is naar een onderhoudsvriendelijke buitenruimte. Dankzij de ligging op het noordwesten geniet je van zowel zonnige als schaduwrijke plekken, ideaal voor verschillende zitgedeeltes. Of je nu in de zon wilt relaxen of in de schaduw een boek wilt lezen, de tuin biedt volop mogelijkheden om te genieten van het buitenleven. De tuin is geheel naar eigen smaak in te richten.
LOCATIE
Gelegen aan de rand van Drunen, in een kindvriendelijke wijk, biedt deze woning de ideale balans tussen rust en bereikbaarheid. Je woont dichtbij de Heidijk en de prachtige Loonse en Drunense Duinen, perfect voor wandel- en fietsliefhebbers. Bovendien bevindt zich tegenover de woning een speeltuin, ideaal voor de kinderen om veilig te spelen. Voor de dagelijkse boodschappen kun je terecht in het centrum van Drunen. Daarnaast ben je met de A59 in de buurt binnen 15 minuten in het centrum van Den Bosch waar gezellige terrassen en leuke winkels te vinden zijn.
BIJZONDERHEDEN
- Ruime woonkamer met veel lichtinval;
- Begane grond voorzien van vloerverwarming;
- Sfeervolle ethanol kachel;
- Ruime garage;
- Drie ruime slaapkamers met mogelijkheid tot een vierde slaapkamer;
- Onderhoudsvriendelijke tuin op het Noordwesten;
- Dichtbij de Loonse en Drunense duinen;
- Goede bereikbaarheid.
Kenmerken
Overdracht
- Aangeboden sinds
- 19 juni 2025
- Status
- Verkocht
- Aanvaarding
- In overleg
Bouw
- Soort woning
- Woonhuis
- Bouwjaar
- 1988
- Soort dak
- Zadeldak
Oppervlakten en inhoud
- Oppervlakte wonen
- 104 m²
- Oppervlakte overige inpandige ruimte
- 18 m²
- Oppervlakte gebouwgebonden buitenruimte
- 1 m²
- Perceel
- 218 m²
- Inhoud
- 432 m³
Indeling
- Aantal kamers
- 4
- Aantal slaapkamers
- 3
- Aantal badkamers
- 1
- Badkamervoorzieningen
- Ligbad, toilet, douche en wastafel
- Aantal woonlagen
- 3
- Voorzieningen
- Tv-kabel, buitenzonwering, dakraam, glasvezel kabel en natuurlijke ventilatie
Energie
- Energielabel
- C
- Isolatie
- Dakisolatie, muurisolatie, vloerisolatie en dubbel glas
- Verwarming
- Cv-ketel en vloerverwarming gedeeltelijk
- Warm water
- Cv-ketel
- Cv-ketel
- Nefit Pro-Line (combiketel uit 2020)
Buitenruimte
- Ligging
- Aan rustige weg, in woonwijk en in bosrijke omgeving
- Tuin
- Achtertuin en voortuin
- Achtertuin
- 109 m² gelegen op het noordwesten
Garage
- Soort garage
- Aangebouwd steen
- Capaciteit
- 1