Word je warm van ons verhaal? Laten we samen kennismaken!
Neem contact op- 92 m²
- 267 m²
- 4
- D
Omschrijving
Leuke tweekapper met prachtige tuin en enorm veel mogelijkheden!
Welkom in deze ruime twee-onder-een-kapwoning in het gezellige Vlijmen! De woning beschikt over vier slaapkamers (mogelijk 5e slaapkamer), een royale garage en een prachtig onderhouden tuin op het zonnige zuiden. Met een indrukwekkende afmeting van 15 bij 10 meter is de tuin uniek voor dit type huis – ideaal voor gezinnen die van buitenruimte houden. Binnen is het huis praktisch ingedeeld en keurig onderhouden. Tegelijkertijd biedt het volop mogelijkheden om naar eigen smaak aan te passen. De rustige ligging in een kindvriendelijke straat zorgt voor een fijne woonomgeving. Zowel binnen als buiten voelt deze woning direct als thuis. Laat je verrassen door de ruimte en het comfort dat deze woning te bieden heeft!
INDELING
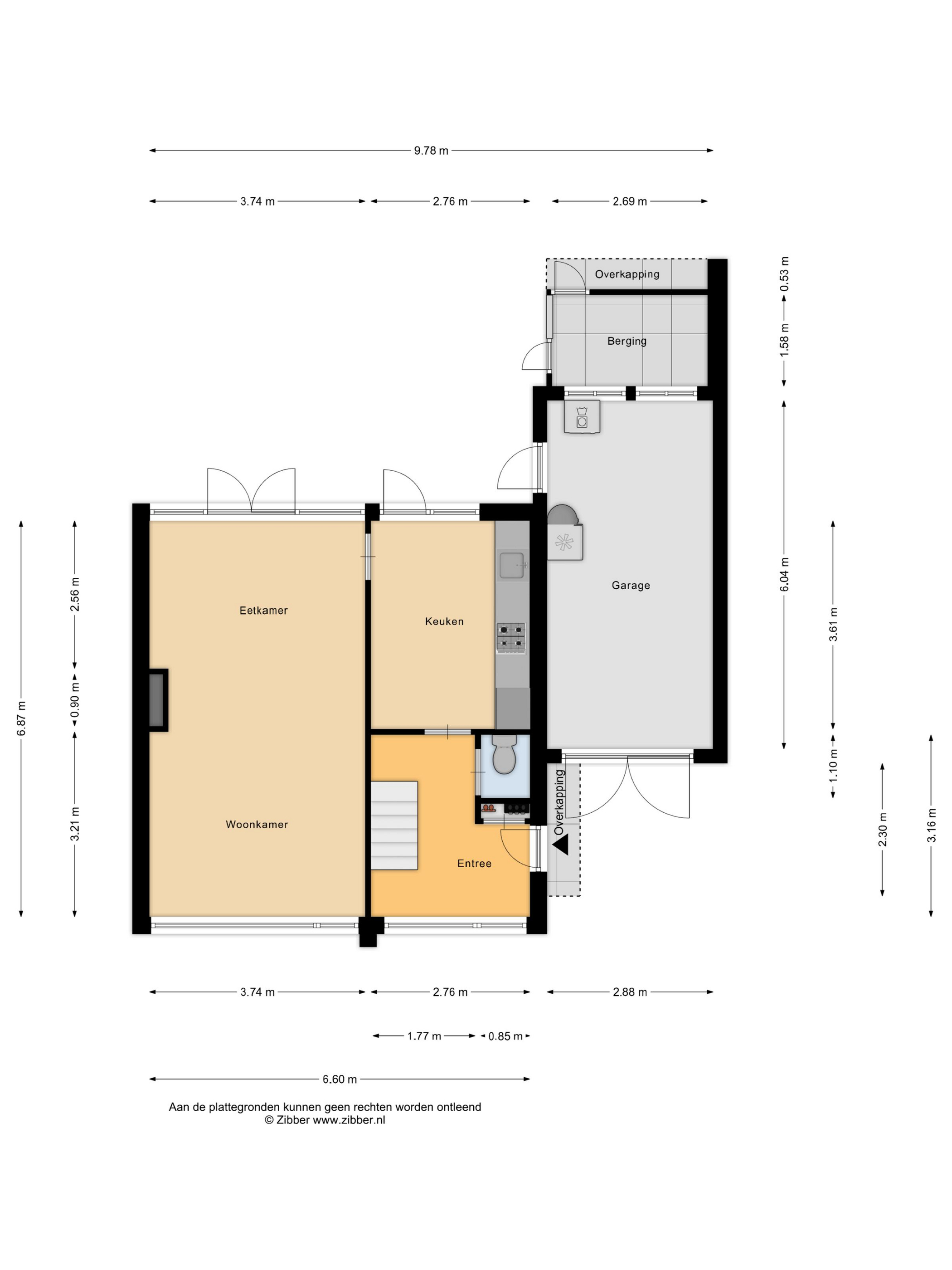
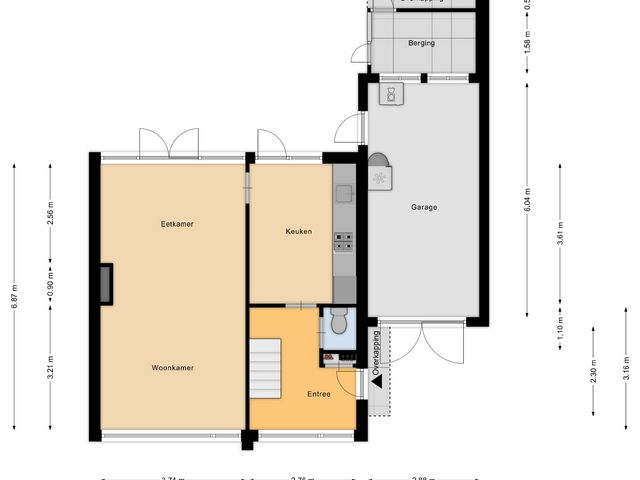
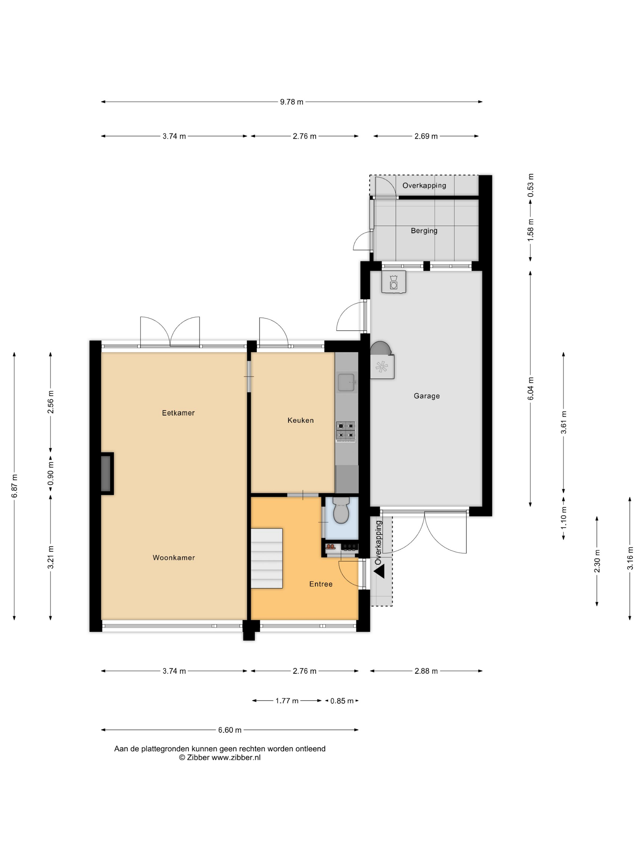
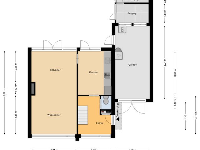
Begane grond
Je parkeert je auto gemakkelijk op de eigen oprit en betreedt de woning via de voordeur. In de entreehal vinden we de meterkast, het toilet, de trap naar boven en de toegang tot de keuken. De keuken is functioneel ingericht en voorzien van diverse inbouwapparatuur, waaronder een koelkast, combi-oven en elektrische kookplaat. Vanuit de keuken is zowel de tuin als de woonkamer bereikbaar. De woonkamer is heerlijk licht dankzij de grote raampartijen en de dubbele tuindeuren. Er is voldoende ruimte voor een gezellige zithoek én een eettafel, perfect voor gezellige avonden met familie of vrienden. De aanwezige airconditioning zorgt ervoor dat het hier ook tijdens warme zomerdagen aangenaam blijft.
Eerste verdieping
Via de trap in de hal komen we op de overloop van de eerste verdieping. Hier bevinden zich vier slaapkamers, een badkamer en een handige bergkast. De hoofdslaapkamer is ruim en biedt voldoende plaats voor een tweepersoonsbed en een kledingkast. De andere twee slaapkamers zijn perfect geschikt als kinderkamer, werkkamer of hobbyruimte. De kamer aan de achterzijde beschikt over een balkon én de trap naar de tweede verdieping. Deze ruimte is ook te gebruiken als bijvoorbeeld slaapkamer of inloopkast Ook hier weer volop ruimte en mogelijkheden om de verdieping naar eigen wens in te delen.
Tweede verdieping
De tweede verdieping is op dit moment in gebruik als bergruimte, maar biedt tal van mogelijkheden. Dankzij het grote dakkapel aan de achterzijde is er volop lichtinval en extra ruimte ontstaan. Hier is het goed denkbaar om een extra slaapkamer te creëren, bijvoorbeeld voor een thuiswonend kind die graag wat meer privacy heeft. Daarnaast is er op deze verdieping de opstelplaats van de cv-ketel. Een verdieping die zich makkelijk aanpast aan jouw woonwensen.
GARAGE
Aan de woning is een ruime, aangebouwde garage aanwezig. Perfect voor het stallen van een auto, fietsen, een motor of als extra opslagruimte. De garage is voorzien van elektra, wat het mogelijk maakt om hier bijvoorbeeld een tweede koelkast of vriezer te plaatsen. Ook treffen we hier de opstelplaats van wasmachine en droger. Ook is het denkbaar om de garage deels in te richten als werkruimte of klusplek. Een fijne en functionele toevoeging aan de woning die veel extra mogelijkheden biedt, ook door deze bijvoorbeeld bij de woning te betrekken.
TUIN
De zonnige, op het zuiden gelegen tuin is met veel zorg en liefde aangelegd en bijna 15 meter diep. Het groen is weelderig en perfect onderhouden, waardoor de tuin een rustgevende, natuurlijke sfeer uitstraalt. Dankzij de royale afmetingen is er volop ruimte voor meerdere zitplekken of een speelplek voor kinderen. De tuin biedt veel privacy en voelt als een verlengstuk van de woonkamer. Overal waar je kijkt, zie je groen – van bloeiende planten tot volgroeide struiken. Hier geniet je van ochtendzon tot avondlicht in een oase van rust. Een praktische berging zorgt voor extra gemak bij het opbergen van tuinspullen. Of je nu wilt loungen, tuinieren of buiten eten, deze tuin biedt alle mogelijkheden.
LOCATIE
Deze woning is ideaal gelegen, met alle voorzieningen binnen handbereik. Supermarkten en andere voorzieningen voor de dagelijkse boodschappen zijn binnen een minuut te bereiken. Ook de A59 is snel bereikbaar, en wil je de stad opzoeken? Binnen 15 minuten ben je in het centrum van Den Bosch. Voor de nodige ontspanning kun je heerlijk wandelen of fietsen in de Drunense Duinen, waar je kunt genieten van de natuur en rust. De perfecte locatie voor zowel gemak als ontspanning!
BIJZONDERHEDEN
- Ruime, lichte woonkamer;
- Vier slaapkamers, mogelijkheden voor meer;
- Zonnige, goed onderhouden tuin op het zuiden;
- Aangebouwde garage;
- Eigen oprit;
- Alle voorzieningen in de buurt;
- Dichtbij oprit A59.
Toon meer
Welkom in deze ruime twee-onder-een-kapwoning in het gezellige Vlijmen! De woning beschikt over vier slaapkamers (mogelijk 5e slaapkamer), een royale garage en een prachtig onderhouden tuin op het zonnige zuiden. Met een indrukwekkende afmeting van 15 bij 10 meter is de tuin uniek voor dit type huis – ideaal voor gezinnen die van buitenruimte houden. Binnen is het huis praktisch ingedeeld en keurig onderhouden. Tegelijkertijd biedt het volop mogelijkheden om naar eigen smaak aan te passen. De rustige ligging in een kindvriendelijke straat zorgt voor een fijne woonomgeving. Zowel binnen als buiten voelt deze woning direct als thuis. Laat je verrassen door de ruimte en het comfort dat deze woning te bieden heeft!
INDELING
Begane grond
Je parkeert je auto gemakkelijk op de eigen oprit en betreedt de woning via de voordeur. In de entreehal vinden we de meterkast, het toilet, de trap naar boven en de toegang tot de keuken. De keuken is functioneel ingericht en voorzien van diverse inbouwapparatuur, waaronder een koelkast, combi-oven en elektrische kookplaat. Vanuit de keuken is zowel de tuin als de woonkamer bereikbaar. De woonkamer is heerlijk licht dankzij de grote raampartijen en de dubbele tuindeuren. Er is voldoende ruimte voor een gezellige zithoek én een eettafel, perfect voor gezellige avonden met familie of vrienden. De aanwezige airconditioning zorgt ervoor dat het hier ook tijdens warme zomerdagen aangenaam blijft.
Eerste verdieping
Via de trap in de hal komen we op de overloop van de eerste verdieping. Hier bevinden zich vier slaapkamers, een badkamer en een handige bergkast. De hoofdslaapkamer is ruim en biedt voldoende plaats voor een tweepersoonsbed en een kledingkast. De andere twee slaapkamers zijn perfect geschikt als kinderkamer, werkkamer of hobbyruimte. De kamer aan de achterzijde beschikt over een balkon én de trap naar de tweede verdieping. Deze ruimte is ook te gebruiken als bijvoorbeeld slaapkamer of inloopkast Ook hier weer volop ruimte en mogelijkheden om de verdieping naar eigen wens in te delen.
Tweede verdieping
De tweede verdieping is op dit moment in gebruik als bergruimte, maar biedt tal van mogelijkheden. Dankzij het grote dakkapel aan de achterzijde is er volop lichtinval en extra ruimte ontstaan. Hier is het goed denkbaar om een extra slaapkamer te creëren, bijvoorbeeld voor een thuiswonend kind die graag wat meer privacy heeft. Daarnaast is er op deze verdieping de opstelplaats van de cv-ketel. Een verdieping die zich makkelijk aanpast aan jouw woonwensen.
GARAGE
Aan de woning is een ruime, aangebouwde garage aanwezig. Perfect voor het stallen van een auto, fietsen, een motor of als extra opslagruimte. De garage is voorzien van elektra, wat het mogelijk maakt om hier bijvoorbeeld een tweede koelkast of vriezer te plaatsen. Ook treffen we hier de opstelplaats van wasmachine en droger. Ook is het denkbaar om de garage deels in te richten als werkruimte of klusplek. Een fijne en functionele toevoeging aan de woning die veel extra mogelijkheden biedt, ook door deze bijvoorbeeld bij de woning te betrekken.
TUIN
De zonnige, op het zuiden gelegen tuin is met veel zorg en liefde aangelegd en bijna 15 meter diep. Het groen is weelderig en perfect onderhouden, waardoor de tuin een rustgevende, natuurlijke sfeer uitstraalt. Dankzij de royale afmetingen is er volop ruimte voor meerdere zitplekken of een speelplek voor kinderen. De tuin biedt veel privacy en voelt als een verlengstuk van de woonkamer. Overal waar je kijkt, zie je groen – van bloeiende planten tot volgroeide struiken. Hier geniet je van ochtendzon tot avondlicht in een oase van rust. Een praktische berging zorgt voor extra gemak bij het opbergen van tuinspullen. Of je nu wilt loungen, tuinieren of buiten eten, deze tuin biedt alle mogelijkheden.
LOCATIE
Deze woning is ideaal gelegen, met alle voorzieningen binnen handbereik. Supermarkten en andere voorzieningen voor de dagelijkse boodschappen zijn binnen een minuut te bereiken. Ook de A59 is snel bereikbaar, en wil je de stad opzoeken? Binnen 15 minuten ben je in het centrum van Den Bosch. Voor de nodige ontspanning kun je heerlijk wandelen of fietsen in de Drunense Duinen, waar je kunt genieten van de natuur en rust. De perfecte locatie voor zowel gemak als ontspanning!
BIJZONDERHEDEN
- Ruime, lichte woonkamer;
- Vier slaapkamers, mogelijkheden voor meer;
- Zonnige, goed onderhouden tuin op het zuiden;
- Aangebouwde garage;
- Eigen oprit;
- Alle voorzieningen in de buurt;
- Dichtbij oprit A59.
Kenmerken
Overdracht
- Vraagprijs
- € 449.000 k.k.
- Vraagprijs per m²
- € 4.880
- Aangeboden sinds
- 21 augustus 2025
- Status
- Beschikbaar
- Aanvaarding
- In overleg
Bouw
- Soort woning
- Woonhuis
- Bouwjaar
- 1969
- Soort dak
- Zadeldak
Oppervlakten en inhoud
- Oppervlakte wonen
- 92 m²
- Oppervlakte overige inpandige ruimte
- 33 m²
- Oppervlakte gebouwgebonden buitenruimte
- 3 m²
- Perceel
- 267 m²
- Inhoud
- 445 m³
Indeling
- Aantal kamers
- 5
- Aantal slaapkamers
- 4
- Aantal badkamers
- 1
- Badkamervoorzieningen
- Toilet, douche en wastafel
- Aantal woonlagen
- 3
- Voorzieningen
- Tv-kabel, airconditioning en natuurlijke ventilatie
Energie
- Energielabel
- D
- Isolatie
- Muurisolatie en hr glas
- Verwarming
- Cv-ketel
- Warm water
- Elektrische boiler eigendom
- Cv-ketel
- 2004
Buitenruimte
- Ligging
- Aan rustige weg, in woonwijk en in bosrijke omgeving
- Tuin
- Achtertuin en voortuin
- Achtertuin
- 155 m² gelegen op het zuiden
Bergruimte
- Schuur/berging
- Aangebouwd hout
Garage
- Soort garage
- Aangebouwd steen
- Capaciteit
- 1
- Voorzieningen
- Verwarming, elektra en water