- 103 m²
- 90 m²
- 2
- A+
Omschrijving
Kantoor met woning en patio gelegen midden in het centrum van Vught. Het object biedt volop mogelijkheden om te transformeren naar een comfortabele en unieke woonruimte. Of de woon-werk situatie zo te laten zoals deze is. De beide functies hebben een gezamenlijke deur naar een gezamenlijke entree, vanuit de hal heeft ieder een eigen voordeur naar een zelfstandige ruimte.
Indeling
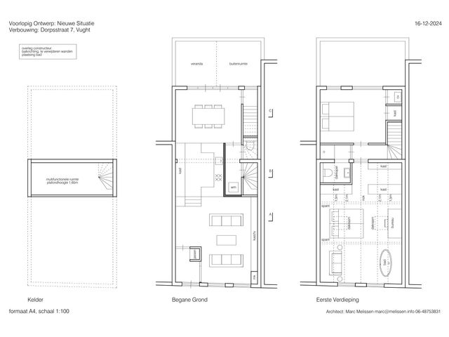
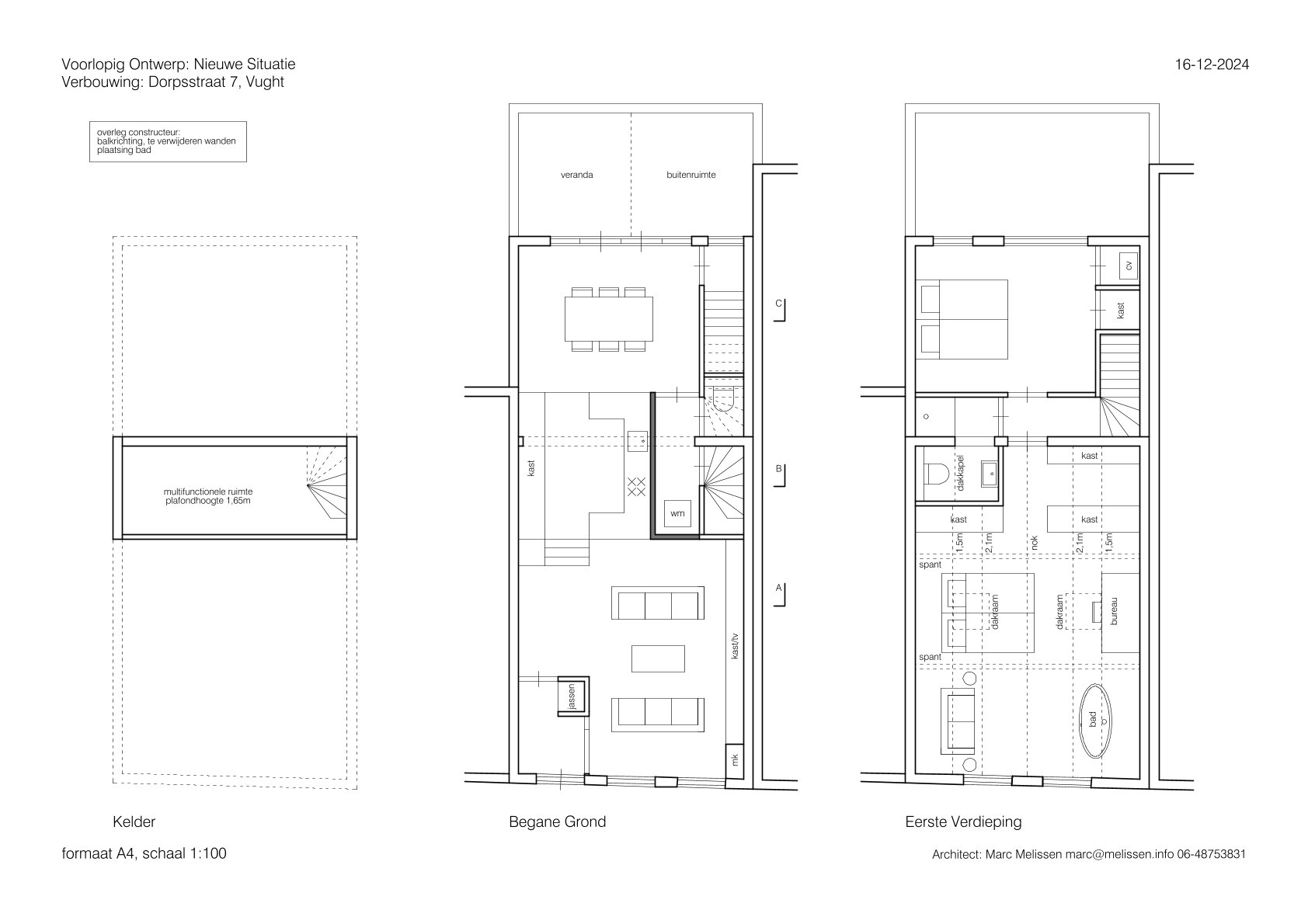
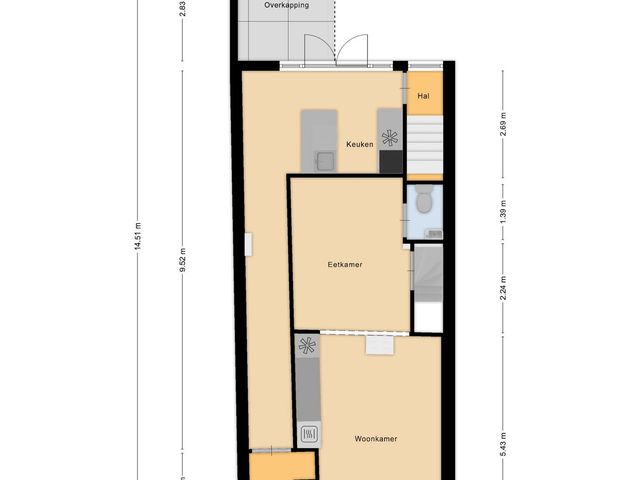
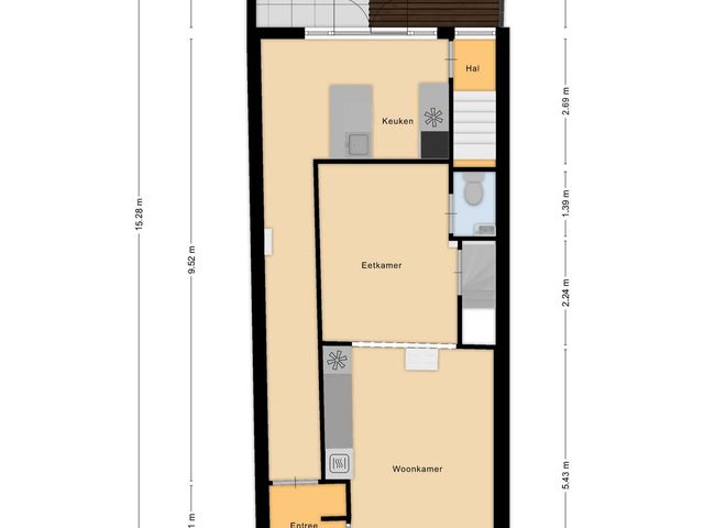
Begane grond
Bij binnenkomst in het centrale halletje heb je toegang tot zowel het woongedeelte als de kantoorruimte.
Huidige indeling
Woning
Via de lange hal bereik je de keuken op de begane grond, die is uitgerust met een elektrische kookplaat, afzuigkap en oven. Vanuit de keuken is er toegang tot een beschutte patio welke deels overkapt is, ideaal om een rustige buitenplek te creëren. Via een vaste trap kom je op de eerste verdieping.
Eerste verdieping
Hier bevinden zich de woonkamer, eethoek, slaapkamer en de badkamer. De woonkamer ligt aan de voorzijde van de woning en is voorzien van twee raampartijen en een karakteristiek schuin dak, wat zorgt voor een fijne lichtinval en knusse sfeer.
De slaapkamer bevindt zich aan de achterzijde en beschikt over twee inpandige provisieruimtes: één met de opstelling van de cv-ketel en één met de wasmachineaansluiting.
De badkamer, bereikbaar via de overloop, is voorzien van een douche, wastafel en een toilet.
Kantoorruimte
Aan de rechterzijde van de hal bevindt zich het voormalige kantoor. Deze ruimte beschikt over een balieruite en een keukenblok met spoelbak en opbergkasten. Via de glazen deur kom je in de vergaderruimte of kantoorruimte, met toegang tot het toilet en de kelder.
Nieuwe indeling
Zoals op de art impressions en nieuwe plattegronden te zien is, biedt deze woning volop mogelijkheden om volledig te gebruiken als woonhuis. De begane grond leent zich perfect voor het realiseren van een royale woonkamer, een open keuken, eethoek en een fijne zithoek buiten in de beschutte patio.
Op de eerste verdieping is er dan ruimte voor twee comfortabele slaapkamers, waarvan één met een stijlvolle ensuite badkamer. Een unieke kans om dit karaktervolle pand om te toveren tot een eigentijds en sfeervol thuis!
Locatie
Dorpsstraat 7 en 7a is gelegen op een toplocatie midden in het centrum van Vught. Hier woon je letterlijk op loopafstand van alle voorzieningen: gezellige cafés, winkels, supermarkten, speciaalzaken en terrassen bevinden zich om de hoek. De levendige dorpskern biedt de perfecte mix van comfort, sfeer en gemak.
Ook de bereikbaarheid is uitstekend. Het NS-station Vught ligt op slechts enkele minuten lopen en biedt directe treinverbindingen richting ’s-Hertogenbosch, Eindhoven en Tilburg. Met de auto ben je via de nabijgelegen A2 en N65 in no-time op weg naar steden als Utrecht, Eindhoven of Breda.
Bestemming:
De bestemming van het pand betreft 'Centrum - 3', de aangewezen gronden zijn volgens het bestemmingsplan te gebruiken als:
detailhandel, met uitzondering van een supermarkt;
kantoor;
dienstverlening;
wonen en de daarbij behorende voorzieningen.
Kortom: een locatie met karakter én alle gemakken binnen handbereik – ideaal voor wie centraal, goed bereikbaar wil wonen of werken.
Toon meer
Indeling
Begane grond
Bij binnenkomst in het centrale halletje heb je toegang tot zowel het woongedeelte als de kantoorruimte.
Huidige indeling
Woning
Via de lange hal bereik je de keuken op de begane grond, die is uitgerust met een elektrische kookplaat, afzuigkap en oven. Vanuit de keuken is er toegang tot een beschutte patio welke deels overkapt is, ideaal om een rustige buitenplek te creëren. Via een vaste trap kom je op de eerste verdieping.
Eerste verdieping
Hier bevinden zich de woonkamer, eethoek, slaapkamer en de badkamer. De woonkamer ligt aan de voorzijde van de woning en is voorzien van twee raampartijen en een karakteristiek schuin dak, wat zorgt voor een fijne lichtinval en knusse sfeer.
De slaapkamer bevindt zich aan de achterzijde en beschikt over twee inpandige provisieruimtes: één met de opstelling van de cv-ketel en één met de wasmachineaansluiting.
De badkamer, bereikbaar via de overloop, is voorzien van een douche, wastafel en een toilet.
Kantoorruimte
Aan de rechterzijde van de hal bevindt zich het voormalige kantoor. Deze ruimte beschikt over een balieruite en een keukenblok met spoelbak en opbergkasten. Via de glazen deur kom je in de vergaderruimte of kantoorruimte, met toegang tot het toilet en de kelder.
Nieuwe indeling
Zoals op de art impressions en nieuwe plattegronden te zien is, biedt deze woning volop mogelijkheden om volledig te gebruiken als woonhuis. De begane grond leent zich perfect voor het realiseren van een royale woonkamer, een open keuken, eethoek en een fijne zithoek buiten in de beschutte patio.
Op de eerste verdieping is er dan ruimte voor twee comfortabele slaapkamers, waarvan één met een stijlvolle ensuite badkamer. Een unieke kans om dit karaktervolle pand om te toveren tot een eigentijds en sfeervol thuis!
Locatie
Dorpsstraat 7 en 7a is gelegen op een toplocatie midden in het centrum van Vught. Hier woon je letterlijk op loopafstand van alle voorzieningen: gezellige cafés, winkels, supermarkten, speciaalzaken en terrassen bevinden zich om de hoek. De levendige dorpskern biedt de perfecte mix van comfort, sfeer en gemak.
Ook de bereikbaarheid is uitstekend. Het NS-station Vught ligt op slechts enkele minuten lopen en biedt directe treinverbindingen richting ’s-Hertogenbosch, Eindhoven en Tilburg. Met de auto ben je via de nabijgelegen A2 en N65 in no-time op weg naar steden als Utrecht, Eindhoven of Breda.
Bestemming:
De bestemming van het pand betreft 'Centrum - 3', de aangewezen gronden zijn volgens het bestemmingsplan te gebruiken als:
detailhandel, met uitzondering van een supermarkt;
kantoor;
dienstverlening;
wonen en de daarbij behorende voorzieningen.
Kortom: een locatie met karakter én alle gemakken binnen handbereik – ideaal voor wie centraal, goed bereikbaar wil wonen of werken.
Kenmerken
Overdracht
- Vraagprijs
- € 525.000 k.k.
- Vraagprijs per m²
- € 5.097
- Aangeboden sinds
- 19 juni 2025
- Status
- Beschikbaar
- Aanvaarding
- In overleg
Bouw
- Soort woning
- Woonhuis
- Bouwjaar
- Soort dak
- Zadeldak
Oppervlakten en inhoud
- Oppervlakte wonen
- 103 m²
- Oppervlakte overige inpandige ruimte
- 10 m²
- Oppervlakte gebouwgebonden buitenruimte
- 7 m²
- Perceel
- 90 m²
- Inhoud
- 397 m³
Indeling
- Aantal kamers
- 4
- Aantal slaapkamers
- 2
- Aantal badkamers
- 1
- Badkamervoorzieningen
- Toilet en douche
- Aantal woonlagen
- 2
- Voorzieningen
- Airconditioning
Energie
- Energielabel
- A+
- Isolatie
- Dubbel glas
- Verwarming
- Cv-ketel
- Warm water
- Cv-ketel
- Cv-ketel
- Combiketel
Buitenruimte
- Ligging
- In centrum
- Tuin
- Patio/atrium
Garage
- Soort garage
- Geen garage