Word je warm van ons verhaal? Laten we samen kennismaken!
Neem contact op- 157 m²
- 125 m²
- 3
- C
Omschrijving
Wandelen over de groene stadswallen, genieten van de gezellige sfeer in het historische centrum en wakker worden met uitzicht over de Maas! Op de begane grond van deze karakteristieke woning is ruimte voor een praktijk aan huis, kantoor, atelier, sportruimte of inpandige garage. Woon jij binnenkort in Heusden, een van de mooiste plekjes van Nederland? Gezellige terrassen, restaurants en winkels liggen op loopafstand. Ook zijn er diverse restaurants, scholen, sportverenigingen en fitnessmogelijkheden in de buurt. De ligging is bovendien ideaal, binnen 15 minuten ben in het 's-Hertogenbosch of Waalwijk. Daarnaast is de A2 richting Utrecht of Eindhoven uitstekend bereikbaar.
INDELING
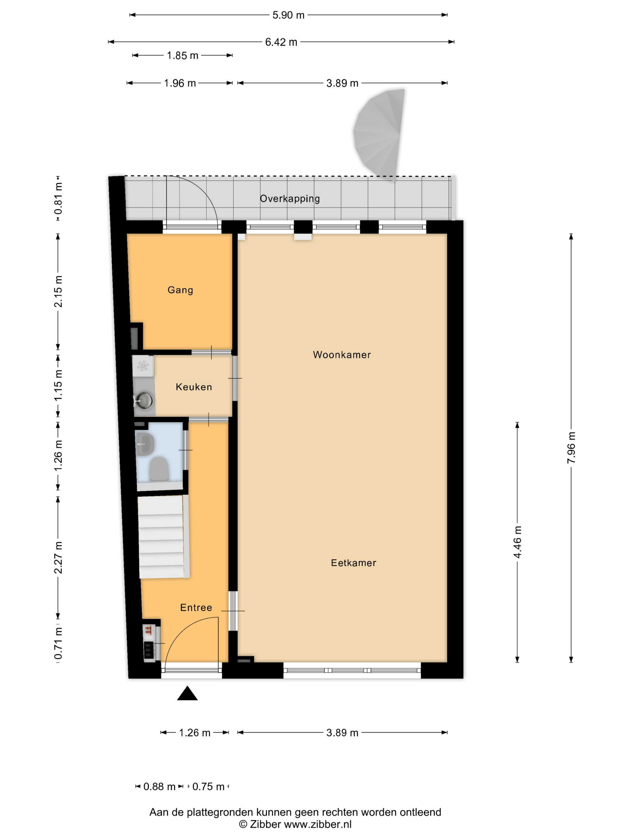
BEGANE GROND
Bij binnenkomst via de ruime hal, betreden we direct de multifunctionele woonkamer. Vanwege de flexibele indeling biedt dezes ruimte een tal van mogelijkheden. Denk hierbij aan een ontspanningsruimte of zit- en eetkamer. Deze ruimte is daarnaast uitermate geschikt als kantoor aan huis, ideaal voor wie werk en privé gescheiden wil houden zonder in te leveren op comfort of uitstraling. Kortom, deze ruimte is volledig naar eigen wens in te delen! Door de grote ramen komt er enorm veel daglicht binnen en de stijlvolle tegelvloer met vloerverwarming biedt comfort in ieder seizoen. Aansluitend bevindt zich de pantry met plek voor extra apparatuur, die op zich zelf toegang geeft tot een praktische berging met toegang naar de tuin. Tot slot is er een keurig afgewerkt toilet met fonteintje aanwezig in de hal.
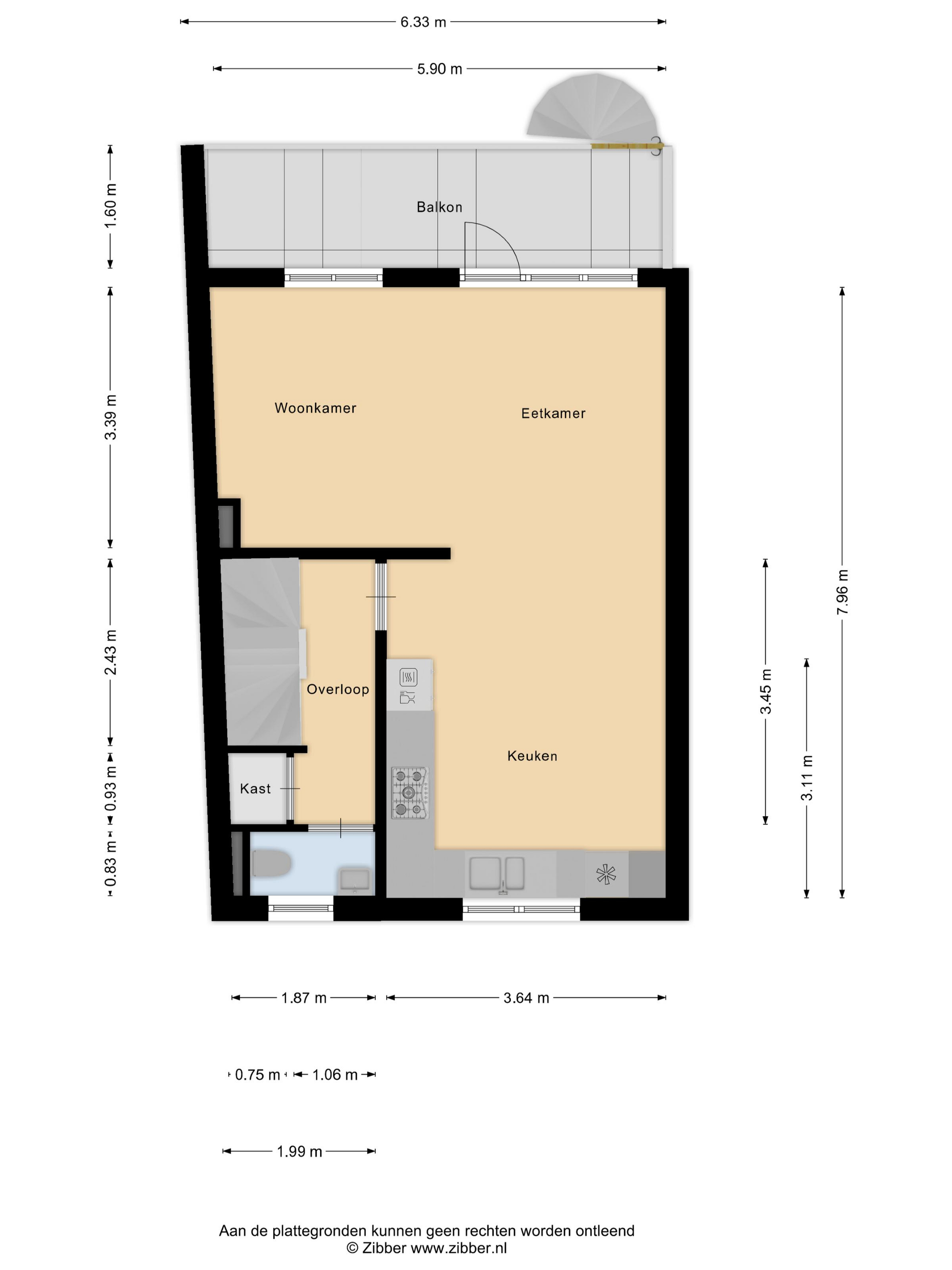
EERSTE VERDIEPING
De woonverdieping bestaat uit een lichte woonkamer met sfeervolle hardhouten vloer en open keuken met moderne inbouwapparatuur. Dubbele deuren leiden naar een ruim zonneterras met prachtig uitzicht op de jachthaven en de Maas. Een vaste wenteltrap verbindt het terras direct met de tuin. Verder vindt je op deze verdieping een royale overloop die toegang biedt tot een apart toilet en kastruimte.
TWEEDE VERDIEPING
De tweede verdieping beschikt over twee ruime en lichte slaapkamers die veel privacy bieden. De achterkamer beschikt over een vaste kast en heeft ook weer een prachtig uitzicht op de groene stadswallen en de Maas. De slaapkamer aan de voorzijde biedt ruimte voor een tweepersoonsbed en andere meubels of een werkplek. De luxe badkamer is uitgerust met ligbad, inloopdouche, toilet, dubbele wastafel, designradiator en vloerverwarming. Ook hier is extra kastruimte op de overloop.
DERDE VERDIEPING
Een lichte en ruime extra slaapkamer met dakkapel en inbouwkasten onder knieschotten bevindt zich op de derde verdieping. Perfect als logeer-, werk-, of studeerkamer. De was- en stookruimte biedt plek voor witgoedapparatuur en de cv-installatie, netjes gescheiden van het woongedeelte.
BUITENRUIMTE
De achtertuin grenst direct aan de natuur en biedt rust, privacy en groen. De ideale plek om te ontspannen. Een houten berging met achterom maakt de tuin compleet. Via de achterom sta je direct in het natuurgebied langs de Maas, ideaal voor wandelaars en fietsers. Je kunt hier ook heerlijk met de hond lopen en een flinke wandeltocht maken.
Bijzonderheden:
- Wonen in een karakteristieke woning in Heusden vesting;
- Multifunctionele ruimte begane grond, ideaal voor bijvoorbeeld een kantoor aan huis of als extra woonkamer;
- Drie slaapkamers met een ruime badkamer;
- Ruime woonkeuken op de eerste verdieping;
- Schitterend zonneterras met een adembenemend uitzicht over de Maas;
- Prachtige achtertuin met een houten schuur en een praktische achterom;
- Oplevering in overleg.
Toon meer
INDELING
BEGANE GROND
Bij binnenkomst via de ruime hal, betreden we direct de multifunctionele woonkamer. Vanwege de flexibele indeling biedt dezes ruimte een tal van mogelijkheden. Denk hierbij aan een ontspanningsruimte of zit- en eetkamer. Deze ruimte is daarnaast uitermate geschikt als kantoor aan huis, ideaal voor wie werk en privé gescheiden wil houden zonder in te leveren op comfort of uitstraling. Kortom, deze ruimte is volledig naar eigen wens in te delen! Door de grote ramen komt er enorm veel daglicht binnen en de stijlvolle tegelvloer met vloerverwarming biedt comfort in ieder seizoen. Aansluitend bevindt zich de pantry met plek voor extra apparatuur, die op zich zelf toegang geeft tot een praktische berging met toegang naar de tuin. Tot slot is er een keurig afgewerkt toilet met fonteintje aanwezig in de hal.
EERSTE VERDIEPING
De woonverdieping bestaat uit een lichte woonkamer met sfeervolle hardhouten vloer en open keuken met moderne inbouwapparatuur. Dubbele deuren leiden naar een ruim zonneterras met prachtig uitzicht op de jachthaven en de Maas. Een vaste wenteltrap verbindt het terras direct met de tuin. Verder vindt je op deze verdieping een royale overloop die toegang biedt tot een apart toilet en kastruimte.
TWEEDE VERDIEPING
De tweede verdieping beschikt over twee ruime en lichte slaapkamers die veel privacy bieden. De achterkamer beschikt over een vaste kast en heeft ook weer een prachtig uitzicht op de groene stadswallen en de Maas. De slaapkamer aan de voorzijde biedt ruimte voor een tweepersoonsbed en andere meubels of een werkplek. De luxe badkamer is uitgerust met ligbad, inloopdouche, toilet, dubbele wastafel, designradiator en vloerverwarming. Ook hier is extra kastruimte op de overloop.
DERDE VERDIEPING
Een lichte en ruime extra slaapkamer met dakkapel en inbouwkasten onder knieschotten bevindt zich op de derde verdieping. Perfect als logeer-, werk-, of studeerkamer. De was- en stookruimte biedt plek voor witgoedapparatuur en de cv-installatie, netjes gescheiden van het woongedeelte.
BUITENRUIMTE
De achtertuin grenst direct aan de natuur en biedt rust, privacy en groen. De ideale plek om te ontspannen. Een houten berging met achterom maakt de tuin compleet. Via de achterom sta je direct in het natuurgebied langs de Maas, ideaal voor wandelaars en fietsers. Je kunt hier ook heerlijk met de hond lopen en een flinke wandeltocht maken.
Bijzonderheden:
- Wonen in een karakteristieke woning in Heusden vesting;
- Multifunctionele ruimte begane grond, ideaal voor bijvoorbeeld een kantoor aan huis of als extra woonkamer;
- Drie slaapkamers met een ruime badkamer;
- Ruime woonkeuken op de eerste verdieping;
- Schitterend zonneterras met een adembenemend uitzicht over de Maas;
- Prachtige achtertuin met een houten schuur en een praktische achterom;
- Oplevering in overleg.
Kenmerken
Overdracht
- Aangeboden sinds
- 21 oktober 2025
- Status
- Verkocht
- Aanvaarding
- In overleg
Bouw
- Soort woning
- Woonhuis
- Bouwjaar
- 1955
- Soort dak
- Zadeldak
Oppervlakten en inhoud
- Oppervlakte wonen
- 157 m²
- Oppervlakte gebouwgebonden buitenruimte
- 15 m²
- Oppervlakte externe bergruimte
- 7 m²
- Perceel
- 125 m²
- Inhoud
- 555 m³
Indeling
- Aantal kamers
- 6
- Aantal slaapkamers
- 3
- Aantal woonlagen
- 5
- Voorzieningen
- Mechanische ventilatie, schuifpui, dakraam en natuurlijke ventilatie
Energie
- Energielabel
- C
- Isolatie
- Dakisolatie, vloerisolatie en dubbel glas
- Verwarming
- Cv-ketel en vloerverwarming gedeeltelijk
- Warm water
- Cv-ketel
- Cv-ketel
- Combiketel uit 2017
Buitenruimte
- Ligging
- Aan water, aan rustige weg, in centrum, in woonwijk, vrij uitzicht, open ligging en in bosrijke omgeving
- Tuin
- Achtertuin en zonneterras
- Achtertuin
- 50 m² gelegen op het westen met achterom
Bergruimte
- Schuur/berging
- Vrijstaand hout
- Voorzieningen
- Voorzien van elektra
Garage
- Soort garage
- Geen garage