Word je warm van ons verhaal? Laten we samen kennismaken!
Neem contact op- 119 m²
- 838 m²
- 4
- C
Omschrijving
Aan de Eerste Zeine in Waalwijk staat dit karakteristieke jaren '30 pand, boordevol charme én mogelijkheden. De woning is gelegen op een royaal perceel met een indrukwekkend vloeroppervlak, ideaal voor grote gezinnen of mensen die wonen en werken willen combineren. Met vier slaapkamers, een grote tuin, een enorm achterhuis én carport met plek voor meerdere auto's, biedt dit huis alles wat je zoekt op je eigen terrein. De karakteristieke elementen van de jaren '30 zijn behouden, zoals glas in lood raampjes, terwijl moderne voorzieningen voor hedendaags comfort zorgen. De kunststof kozijnen (gedeeltelijk) zijn in 2022 geplaatst en voorzien van triple glas, wat bijdraagt aan een goede isolatie. Dankzij de grote buitenruimte en royale berging aan de achterzijde van de woning zijn er talloze invullingen mogelijk. Een kantoor aan huis, hobbyruimte of zelfs een mantelzorgwoning? Het kan hier allemaal. Deze woning is zeer goed onderhouden en biedt een unieke kans in Waalwijk.
INDELING
Voorhuis
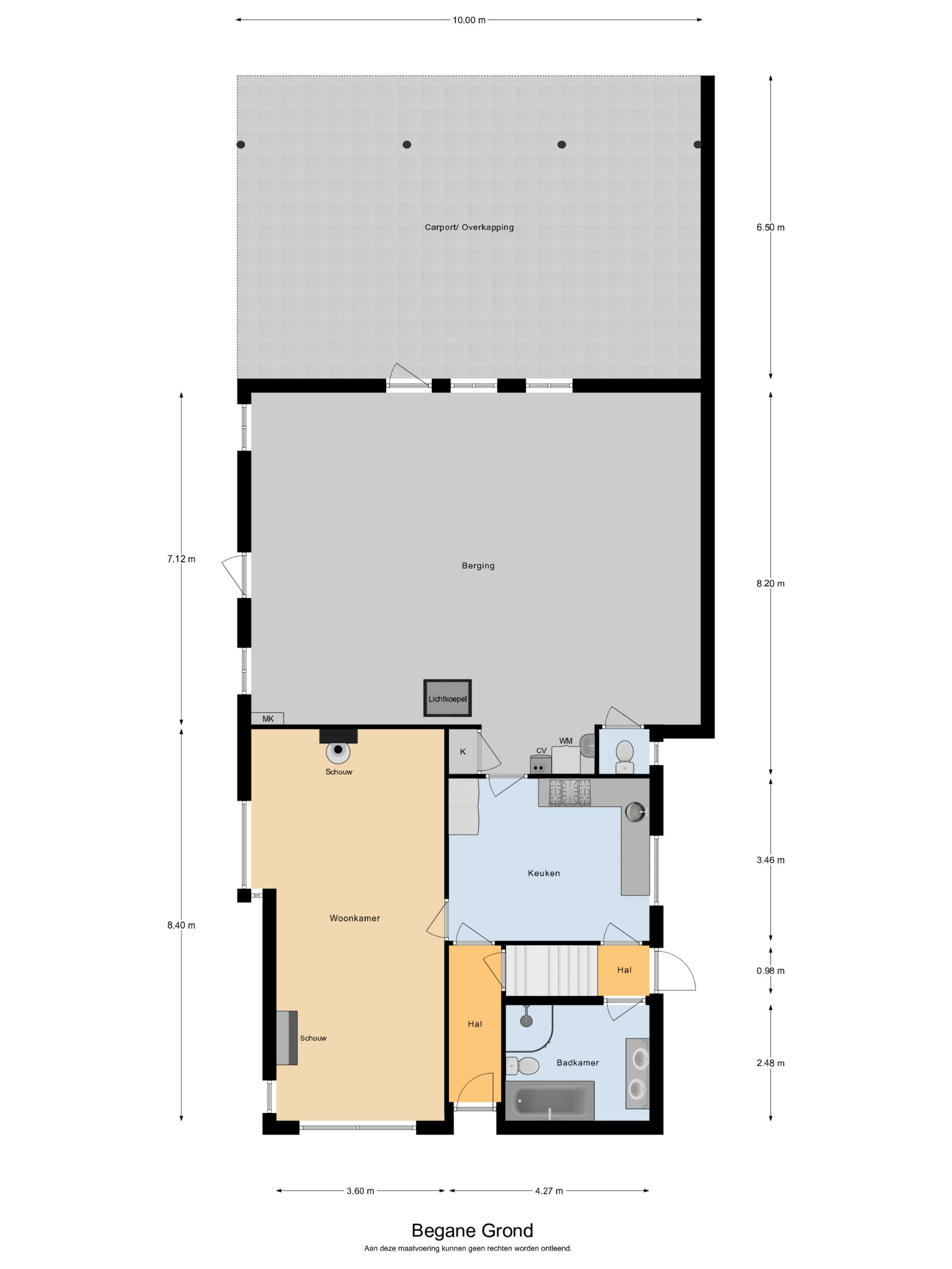
Begane grond
Parkeer je auto veilig op je eigen afgesloten terrein en betreed de woning via de voordeur. In de entree/hal vind je toegang tot de kelder – ideaal als extra provisieruimte – en de ruime woonkeuken. De keuken, vernieuwd in 2015, is van alle gemakken voorzien: een oven, vaatwasser, koel-vriescombinatie en voldoende ruimte voor een eettafel. Vanuit de keuken loop je door naar de sfeervolle woonkamer, waar grote raampartijen zorgen voor veel daglicht en een ruime blik op de tuin. De gaskachel brengt warmte en gezelligheid, terwijl de airco zorgt voor een aangenaam binnenklimaat, ook in de zomer. Vanuit de keuken bereik je tevens een extra hal die leidt naar de badkamer en de trap naar boven. De badkamer is compleet uitgerust met een dubbele wastafel, ligbad, douche en toilet. Kortom: comfortabel en functioneel wonen op de begane grond.
Eerste verdieping
Via de trap in de hal bereik je de overloop van de eerste verdieping. Vanuit hier heb je toegang tot vier slaapkamers, een kledingkast en een ruime bergkast. Drie van de slaapkamers zijn van een royaal formaat en bieden allemaal voldoende ruimte voor een groot tweepersoonsbed en een kledingkast. De vierde kamer is perfect als kinderkamer of studeerkamer. Daarnaast is er een ingebouwde kledingkast en een aparte bergruimte voor extra opslag. Dankzij de airco op de overloop is ook deze verdieping aangenaam in elk seizoen.
Tweede verdieping
De tweede verdieping is te bereiken via een vlizotrap en doet momenteel dienst als ruime bergzolder. Hier is meer dan voldoende plek voor de opslag van seizoensspullen zoals kerstdecoratie, koffers of archieven. Dankzij de omvang van deze zolder blijft de rest van het huis heerlijk opgeruimd.
Achterhuis
Via de keuken op de begane grond bereik je het indrukwekkende achterhuis aan de achterzijde van de woning, waar vanuit vroeger in vervlogen tijden het vee stond in de stallen. In deze multifunctionele ruimte zijn nu onder andere de wasmachine, droger, cv-ketel en een extra toilet geplaatst. Maar deze ruimte biedt zoveel meer: perfect als werkplaats, kantoor aan huis of zelfs als hobbyruimte of mantelzorgwoning. Boven deze berging bevinden zich nog twee verdiepingen die momenteel worden gebruikt als opslag, maar eenvoudig omgebouwd kunnen worden tot extra kamers. Wat ook een groot pluspunt is voor deze ruimte is dat er krachtstroom aanwezig is geschikt voor zware machines. Of je nu droomt van een eigen atelier, gastenverblijf of kroeg aan huis: hier kan het allemaal.
Tuin
De tuin is grotendeels verhard en daarmee onderhoudsvriendelijk én praktisch in gebruik. Achter de berging vind je een grote carport waar met gemak meerdere auto's onder kunnen staan. Aan de westzijde van de tuin staat een sfeervolle overkapping, compleet met verwarming, waardoor je hier het hele jaar door heerlijk kunt zitten. Zet er een loungebank neer en geniet van lange zomeravonden of knusse herfstmiddagen. De tuin is bovendien groot genoeg voor speeltoestellen, een grasveld of zelfs een moestuin. Dankzij de elektrische poort rijd je eenvoudig het terrein op, wat zorgt voor gemak en veiligheid. Een heerlijke buitenruimte met volop mogelijkheden voor jong en oud.
LOCATIE
De woning is gelegen aan de Eerste Zeine 10b in Waalwijk, een rustige en geliefde woonwijk. Deze locatie biedt een fijne combinatie van rust en bereikbaarheid. Op korte afstand vind je diverse winkels, scholen en sportfaciliteiten. Ook het gezellige centrum van Waalwijk is snel te bereiken, zowel met de fiets als de auto. De buurt is kindvriendelijk en omgeven door veel groen. Openbaar vervoer is goed geregeld, met bushaltes op loopafstand. Daarnaast is de woning gunstig gelegen ten opzichte van uitvalswegen richting Tilburg, ’s-Hertogenbosch en Breda. Kortom, een ideale plek voor wie comfortabel en centraal wil wonen.
BIJZONDERHEDEN
- Karakteristiek jaren '30 pand;
- Royaal perceel;
- Vier ruime slaapkamers;
- Grote multifunctioneel achterhuis;
- Kunststof kozijnen met deels tripel glas;
- Grote carport aan de achterzijde;
- Prachtige overkapping in de tuin;
- Rustige ligging.
Toon meer
INDELING
Voorhuis
Begane grond
Parkeer je auto veilig op je eigen afgesloten terrein en betreed de woning via de voordeur. In de entree/hal vind je toegang tot de kelder – ideaal als extra provisieruimte – en de ruime woonkeuken. De keuken, vernieuwd in 2015, is van alle gemakken voorzien: een oven, vaatwasser, koel-vriescombinatie en voldoende ruimte voor een eettafel. Vanuit de keuken loop je door naar de sfeervolle woonkamer, waar grote raampartijen zorgen voor veel daglicht en een ruime blik op de tuin. De gaskachel brengt warmte en gezelligheid, terwijl de airco zorgt voor een aangenaam binnenklimaat, ook in de zomer. Vanuit de keuken bereik je tevens een extra hal die leidt naar de badkamer en de trap naar boven. De badkamer is compleet uitgerust met een dubbele wastafel, ligbad, douche en toilet. Kortom: comfortabel en functioneel wonen op de begane grond.
Eerste verdieping
Via de trap in de hal bereik je de overloop van de eerste verdieping. Vanuit hier heb je toegang tot vier slaapkamers, een kledingkast en een ruime bergkast. Drie van de slaapkamers zijn van een royaal formaat en bieden allemaal voldoende ruimte voor een groot tweepersoonsbed en een kledingkast. De vierde kamer is perfect als kinderkamer of studeerkamer. Daarnaast is er een ingebouwde kledingkast en een aparte bergruimte voor extra opslag. Dankzij de airco op de overloop is ook deze verdieping aangenaam in elk seizoen.
Tweede verdieping
De tweede verdieping is te bereiken via een vlizotrap en doet momenteel dienst als ruime bergzolder. Hier is meer dan voldoende plek voor de opslag van seizoensspullen zoals kerstdecoratie, koffers of archieven. Dankzij de omvang van deze zolder blijft de rest van het huis heerlijk opgeruimd.
Achterhuis
Via de keuken op de begane grond bereik je het indrukwekkende achterhuis aan de achterzijde van de woning, waar vanuit vroeger in vervlogen tijden het vee stond in de stallen. In deze multifunctionele ruimte zijn nu onder andere de wasmachine, droger, cv-ketel en een extra toilet geplaatst. Maar deze ruimte biedt zoveel meer: perfect als werkplaats, kantoor aan huis of zelfs als hobbyruimte of mantelzorgwoning. Boven deze berging bevinden zich nog twee verdiepingen die momenteel worden gebruikt als opslag, maar eenvoudig omgebouwd kunnen worden tot extra kamers. Wat ook een groot pluspunt is voor deze ruimte is dat er krachtstroom aanwezig is geschikt voor zware machines. Of je nu droomt van een eigen atelier, gastenverblijf of kroeg aan huis: hier kan het allemaal.
Tuin
De tuin is grotendeels verhard en daarmee onderhoudsvriendelijk én praktisch in gebruik. Achter de berging vind je een grote carport waar met gemak meerdere auto's onder kunnen staan. Aan de westzijde van de tuin staat een sfeervolle overkapping, compleet met verwarming, waardoor je hier het hele jaar door heerlijk kunt zitten. Zet er een loungebank neer en geniet van lange zomeravonden of knusse herfstmiddagen. De tuin is bovendien groot genoeg voor speeltoestellen, een grasveld of zelfs een moestuin. Dankzij de elektrische poort rijd je eenvoudig het terrein op, wat zorgt voor gemak en veiligheid. Een heerlijke buitenruimte met volop mogelijkheden voor jong en oud.
LOCATIE
De woning is gelegen aan de Eerste Zeine 10b in Waalwijk, een rustige en geliefde woonwijk. Deze locatie biedt een fijne combinatie van rust en bereikbaarheid. Op korte afstand vind je diverse winkels, scholen en sportfaciliteiten. Ook het gezellige centrum van Waalwijk is snel te bereiken, zowel met de fiets als de auto. De buurt is kindvriendelijk en omgeven door veel groen. Openbaar vervoer is goed geregeld, met bushaltes op loopafstand. Daarnaast is de woning gunstig gelegen ten opzichte van uitvalswegen richting Tilburg, ’s-Hertogenbosch en Breda. Kortom, een ideale plek voor wie comfortabel en centraal wil wonen.
BIJZONDERHEDEN
- Karakteristiek jaren '30 pand;
- Royaal perceel;
- Vier ruime slaapkamers;
- Grote multifunctioneel achterhuis;
- Kunststof kozijnen met deels tripel glas;
- Grote carport aan de achterzijde;
- Prachtige overkapping in de tuin;
- Rustige ligging.
Kenmerken
Overdracht
- Aangeboden sinds
- 22 augustus 2025
- Status
- Verkocht
- Aanvaarding
- In overleg
Bouw
- Soort woning
- Woonhuis
- Bouwjaar
- 1936
- Soort dak
- Zadeldak
Oppervlakten en inhoud
- Oppervlakte wonen
- 119 m²
- Oppervlakte overige inpandige ruimte
- 178 m²
- Oppervlakte gebouwgebonden buitenruimte
- 65 m²
- Oppervlakte externe bergruimte
- 22 m²
- Perceel
- 838 m²
- Inhoud
- 999 m³
Indeling
- Aantal kamers
- 6
- Aantal slaapkamers
- 4
- Aantal badkamers
- 1
- Badkamervoorzieningen
- Ligbad, toilet, douche, dubbele wastafel en wastafelmeubel
- Aantal woonlagen
- 3
- Voorzieningen
- Mechanische ventilatie, rolluiken, tv-kabel, airconditioning, rookkanaal, dakraam en glasvezel kabel
Energie
- Energielabel
- C
- Isolatie
- Muurisolatie, dubbel glas en driedubbel glas
- Verwarming
- Cv-ketel
- Warm water
- Cv-ketel
- Cv-ketel
- Remeha Calenta (combiketel uit 2012)
Buitenruimte
- Ligging
- Aan rustige weg, in woonwijk, vrij uitzicht, open ligging en in bosrijke omgeving
- Tuin
- Achtertuin en zijtuin
- Achtertuin
- 345 m² gelegen op het noorden met achterom
Bergruimte
- Schuur/berging
- Aangebouwd steen
- Voorzieningen
- Voorzien van elektra en met vliering
Garage
- Soort garage
- Carport en geen garage