Word je warm van ons verhaal? Laten we samen kennismaken!
Neem contact op- 139 m²
- 353 m²
- 4
- C
Omschrijving
Deze zeer ruime woning op groot perceel is gelegen in het gemoedelijke dorp Vlijmen. Deze riante woning met vier slaapkamers, badkamer, woonkamer, voor- en achtertuin biedt een zee van ruimte. Dit huis kenmerkt zich door haar formaat en beschikt over maar liefst een woonoppervlakte van 139 m² en bevindt zich op een perceel van 353 m².
In deze woonstraat treft u enkel bestemmingsverkeer, de eigen oprit biedt parkeergelegenheid aan twee auto’s. De woning is goed bereikbaar en de voorzieningen van Vlijmen liggen op loopafstand.
INDELING:
Begane grond:
Na het parkeren van uw auto op de oprit voor de garage, komt u via de voordeur binnen in de entreehal. Deze hal met meterkast en toilet met fonteintje geeft toegang tot de royale woonkamer.
De woonkamer is ruim opgezet en heeft veel natuurlijke lichtinval door de grote raampartijen. Zowel aan de voor- als achterzijde zijn gezellige hoeken te creëren. Het eetgedeelte is momenteel ingericht aan de achterzijde van de woning die aansluit op de keuken. Deze L-keuken is voorzien van verschillende opbergkasten en apparatuur.
Eerste verdieping:
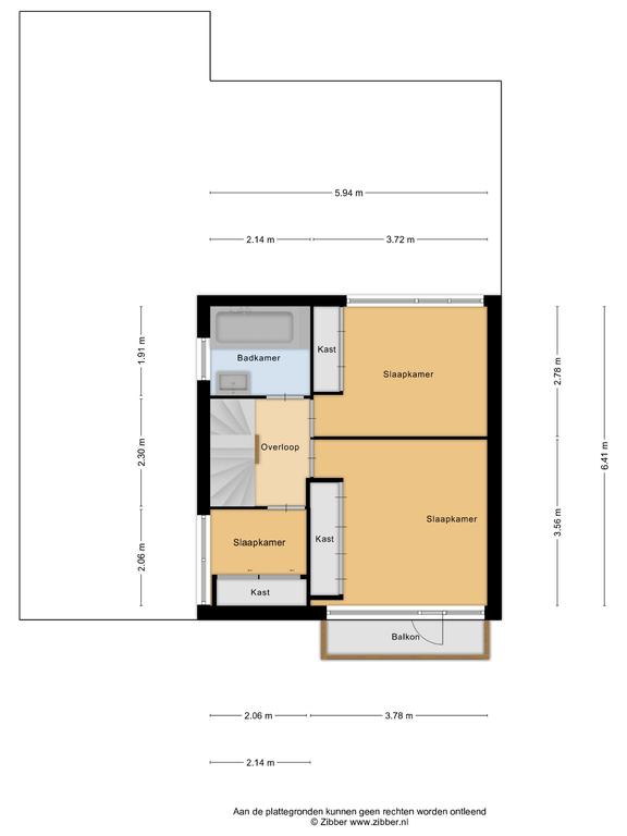
Via de vaste trap in de entreehal komen we op de overloop van de eerste verdieping. De overloop geeft toegang tot drie slaapkamers, de badkamer en de vaste trapopgang naar de tweede verdieping.
De grootste slaapkamer met vaste kast is aan de voorzijde van de woning gelegen, die ook toegang geeft tot het balkon. Deze kamer is voorzien van een airconditioning voor in de warme zomerdagen. Tevens aan de voorzijde van de woning is de tweede slaapkamer gelegen die voorzien is van een vaste kast. De slaapkamer aan de achterzijde van de woning is eveneens ruim te noemen en is voorzien van een rolluik waardoor deze kamer donker en koel blijft.
De badkamer is volledig betegeld en voorzien van een ligbad. De badkamer is gedateerd en dient gemoderniseerd te worden.
Tweede verdieping:
Via de vaste trap bereikt u de overloop op de tweede verdieping. Op deze overloop vinden we de cv-opstelling (bouwjaar 2018). Op deze verdieping vinden we de vierde slaapkamer, die vanwege de dakkapel voorzien wordt van veel lichtinval.
Tuin:
De achtertuin is gelegen op het oosten. Deze diepe tuin kent veel diversiteit van zowel kleurrijke beplanting als mooie bestrating. Vanwege de ruimte in de tuin kunnen meerdere gezellige zithoeken gecreëerd worden.
Werkplaats:
Aan de achterzijde vinden we een vrijstaand houten tuinhuis, voor de opslag van uw tuinspullen en mogelijk klusplaats. Deze ruimte is voorzien van zowel elektra en verlichting.
Bijzonderheden:
- Geschakelde woning in een wijk met veel rust;
- Woonkamer met veel ruimte voor meerdere zithoeken;
- Voorzien van 4 ruime slaapkamers;
- Kleurrijke tuin met tuinhuis op het oosten;
- CV-ketel uit het jaar 2018;
- Energielabel C;
- Aanvaarding in overleg.
Toon meer
In deze woonstraat treft u enkel bestemmingsverkeer, de eigen oprit biedt parkeergelegenheid aan twee auto’s. De woning is goed bereikbaar en de voorzieningen van Vlijmen liggen op loopafstand.
INDELING:
Begane grond:
Na het parkeren van uw auto op de oprit voor de garage, komt u via de voordeur binnen in de entreehal. Deze hal met meterkast en toilet met fonteintje geeft toegang tot de royale woonkamer.
De woonkamer is ruim opgezet en heeft veel natuurlijke lichtinval door de grote raampartijen. Zowel aan de voor- als achterzijde zijn gezellige hoeken te creëren. Het eetgedeelte is momenteel ingericht aan de achterzijde van de woning die aansluit op de keuken. Deze L-keuken is voorzien van verschillende opbergkasten en apparatuur.
Eerste verdieping:
Via de vaste trap in de entreehal komen we op de overloop van de eerste verdieping. De overloop geeft toegang tot drie slaapkamers, de badkamer en de vaste trapopgang naar de tweede verdieping.
De grootste slaapkamer met vaste kast is aan de voorzijde van de woning gelegen, die ook toegang geeft tot het balkon. Deze kamer is voorzien van een airconditioning voor in de warme zomerdagen. Tevens aan de voorzijde van de woning is de tweede slaapkamer gelegen die voorzien is van een vaste kast. De slaapkamer aan de achterzijde van de woning is eveneens ruim te noemen en is voorzien van een rolluik waardoor deze kamer donker en koel blijft.
De badkamer is volledig betegeld en voorzien van een ligbad. De badkamer is gedateerd en dient gemoderniseerd te worden.
Tweede verdieping:
Via de vaste trap bereikt u de overloop op de tweede verdieping. Op deze overloop vinden we de cv-opstelling (bouwjaar 2018). Op deze verdieping vinden we de vierde slaapkamer, die vanwege de dakkapel voorzien wordt van veel lichtinval.
Tuin:
De achtertuin is gelegen op het oosten. Deze diepe tuin kent veel diversiteit van zowel kleurrijke beplanting als mooie bestrating. Vanwege de ruimte in de tuin kunnen meerdere gezellige zithoeken gecreëerd worden.
Werkplaats:
Aan de achterzijde vinden we een vrijstaand houten tuinhuis, voor de opslag van uw tuinspullen en mogelijk klusplaats. Deze ruimte is voorzien van zowel elektra en verlichting.
Bijzonderheden:
- Geschakelde woning in een wijk met veel rust;
- Woonkamer met veel ruimte voor meerdere zithoeken;
- Voorzien van 4 ruime slaapkamers;
- Kleurrijke tuin met tuinhuis op het oosten;
- CV-ketel uit het jaar 2018;
- Energielabel C;
- Aanvaarding in overleg.
Kenmerken
Overdracht
- Aangeboden sinds
- 21 oktober 2025
- Status
- Verkocht
- Aanvaarding
- In overleg
Bouw
- Soort woning
- Woonhuis
- Bouwjaar
- 1962
- Soort dak
- Zadeldak
Oppervlakten en inhoud
- Oppervlakte wonen
- 139 m²
- Oppervlakte overige inpandige ruimte
- 19 m²
- Oppervlakte gebouwgebonden buitenruimte
- 5 m²
- Oppervlakte externe bergruimte
- 34 m²
- Perceel
- 353 m²
- Inhoud
- 553 m³
Indeling
- Aantal kamers
- 6
- Aantal slaapkamers
- 4
- Aantal badkamers
- 1
- Badkamervoorzieningen
- Ligbad en wastafelmeubel
- Aantal woonlagen
- 3
- Voorzieningen
- Tv-kabel, buitenzonwering, rookkanaal, schuifpui en dakraam
Energie
- Energielabel
- C
- Isolatie
- Dakisolatie, muurisolatie en gedeeltelijk dubbel glas
- Verwarming
- Cv-ketel
- Warm water
- Cv-ketel
- Cv-ketel
- Combiketel uit 2020
Buitenruimte
- Ligging
- Aan rustige weg, in woonwijk, vrij uitzicht en in bosrijke omgeving
- Tuin
- Achtertuin en voortuin
- Achtertuin
- 160 m² gelegen op het oosten
Bergruimte
- Schuur/berging
- Vrijstaand hout
- Voorzieningen
- Voorzien van elektra
Garage
- Soort garage
- Aangebouwd steen
- Capaciteit
- 1
- Voorzieningen
- Verwarming, elektra en water