Word je warm van ons verhaal? Laten we samen kennismaken!
Neem contact op- 118 m²
- 269 m²
- 4
- D
Omschrijving
Welkom in deze zeer goed onderhouden 2-onder-1-kapwoning in een rustige straat van het dorp Haaren. De woning is dichtbij de voorzieningen van Haaren gelegen en met maar liefst vier slaapkamers, een heerlijke tuin op het zuidoosten en een eigen oprit met carport en garage zijn hier volop mogelijkheden.
De huidige eigenaren wonen al ruim 40 jaar in de woning wat wel aangeeft dat het een fijne woning en straat is. De woning heeft een zeer groene tuin met een diversiteit aan beplanting en een royale overkapping waar het hele jaar gebruik van kan worden gemaakt.
Highlights:
- Vier slaapkamers;
- Moderne keuken uit 2021;
- Prachtige tuin met een zonnige ligging
- Eigen oprit met carport en garage.
INDELING
Begane grond:
Je komt aan op de royale oprit waar moeiteloos meerdere auto's geparkeerd kunnen worden. Direct tegen de woning bevindt zich een praktische carport, hierdoor staat je auto altijd droog. De woning betreed je vervolgens middels de voordeur of de poort ten behoeve van de achterom. Entree tot de hal waar je toegang krijgt tot de meterkast, het toilet, de trap naar de eerste verdieping en de deur naar de keuken. Via de keuken loop je de ruime woonkamer in. Dankzij de grote raampartijen aan beide zijden van de woning valt het daglicht rijkelijk naar binnen en kun je aan de achterkant heerlijk de tuin in kijken. De woonkamer biedt volop plek voor een gezellige zithoek en eethoek.
De keuken die vernieuwd is in 2021 is voorzien van 5-pits gaskookplaat, oven, afzuigkap, en vaatwasser (Miele). Er is voldoende ruimte voor een eettafel en dankzij de praktische trapkast is er altijd plek voor extra voorraad. Aansluitend aan de keuken bevindt zich een bijkeuken met fraaie ingebouwde kast waarin de aansluitingen de wasmachine en wasdroger zijn weggewerkt. Via deze bijkeuken heb je directe toegang tot de achtertuin en de fijne overkapping waar veelvuldig gebruik van kan worden gemaakt, je zit hier immers altijd droog.
Eerste verdieping:
Op de eerste verdieping kom je uit op de overloop die toegang biedt tot drie slaapkamers en de badkamer. Twee van de drie slaapkamers zijn royaal van formaat en bieden voldoende ruimte voor een tweepersoonsbed en een grote kledingkast. De derde slaapkamer is perfect als kinderkamer of rustige thuiswerkplek. Vanuit deze kamer heb je toegang tot het platte dak. De keurige en nette badkamer is volledig betegeld wat zorgt voor een verzorgde uitstraling. Hier vind je een inloopdouche, een toilet en een wastafel. Alles wat je nodig hebt binnen handbereik en overzichtelijk ingedeeld.
Tweede verdieping:
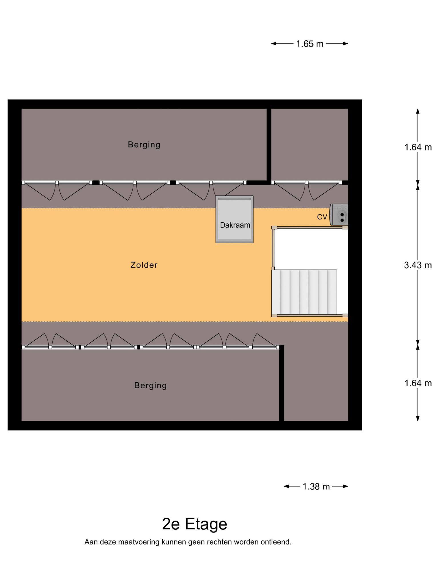
Via een vaste trap bereik je de tweede verdieping waar je uitkomt op een royale zolderkamer. Deze ruimte leent zich uitstekend als extra slaapkamer of hobbyruimte. Dankzij het dakraam valt het daglicht hier prettig naar binnen wat zorgt voor een lichte en aangename sfeer. Achter de knieschotten vind je volop bergruimte, ideaal voor koffers, seizoensspullen of alles wat je niet dagelijks nodig hebt. Tot slot vindt je op deze verdieping ook de cv-ketel.
Buitenleven:
De achtertuin is een heerlijke plek om tot rust te komen en volop van het buitenleven te genieten. Dankzij de nagenoeg zuidelijke ligging profiteer je hier vrijwel de hele dag van de zon. De tuin heeft een groene en natuurlijke uitstraling met volop planten en bloemen. Als je door de tuin loopt ontdek je pas de echt schoonheid van deze tuin. Een zitkuil, fraaie bestrating en diverse zitjes zorgen voor een heerlijk buitenleven. Direct grenzend aan de woning bevindt zich een overkapping met twee lichtstraten waardoor je hier beschut zit en geniet van natuurlijk licht. Deze plek nodigt uit om te blijven zitten.
De woning beschikt over een ruime garage die zowel via de tuin als via de oprit toegankelijk is. De garage is voorzien van elektra en biedt alle mogelijkheden voor opslag, een werkplaats of het stallen van fietsen. Tot slot is er nog een praktische achterom aanwezig.
Specificaties:
Bouwjaar: 1972
Perceeloppervlakte: 269m²
Inhoud van de woning: 431m³
Woonoppervlak: 118m²
Externe bergruimte: 23m²
Aanvaarding: in overleg
ENTHOUSIAST geworden over deze 2^1 kapwoning gelegen op een fraaie en rustige locatie met een heerlijke tuin?
Een juiste beoordeling van de woning komt het beste tot zijn recht bij een persoonlijke rondleiding, welke ik graag voor u verzorg.
Wonen in Haaren!
Haaren staat ook bekend als ‘de tuin van Brabant’.
Een gemoedelijk groen dorp centraal gelegen ten opzichte van uitvalswegen, natuur (duinen, bossen en vennen), dorpen en steden. Haaren beschikt over diverse voorzieningen op het gebied van scholing, sport en winkels.
Kortom een plaats waar het heerlijk wonen is.
Toon meer
De huidige eigenaren wonen al ruim 40 jaar in de woning wat wel aangeeft dat het een fijne woning en straat is. De woning heeft een zeer groene tuin met een diversiteit aan beplanting en een royale overkapping waar het hele jaar gebruik van kan worden gemaakt.
Highlights:
- Vier slaapkamers;
- Moderne keuken uit 2021;
- Prachtige tuin met een zonnige ligging
- Eigen oprit met carport en garage.
INDELING
Begane grond:
Je komt aan op de royale oprit waar moeiteloos meerdere auto's geparkeerd kunnen worden. Direct tegen de woning bevindt zich een praktische carport, hierdoor staat je auto altijd droog. De woning betreed je vervolgens middels de voordeur of de poort ten behoeve van de achterom. Entree tot de hal waar je toegang krijgt tot de meterkast, het toilet, de trap naar de eerste verdieping en de deur naar de keuken. Via de keuken loop je de ruime woonkamer in. Dankzij de grote raampartijen aan beide zijden van de woning valt het daglicht rijkelijk naar binnen en kun je aan de achterkant heerlijk de tuin in kijken. De woonkamer biedt volop plek voor een gezellige zithoek en eethoek.
De keuken die vernieuwd is in 2021 is voorzien van 5-pits gaskookplaat, oven, afzuigkap, en vaatwasser (Miele). Er is voldoende ruimte voor een eettafel en dankzij de praktische trapkast is er altijd plek voor extra voorraad. Aansluitend aan de keuken bevindt zich een bijkeuken met fraaie ingebouwde kast waarin de aansluitingen de wasmachine en wasdroger zijn weggewerkt. Via deze bijkeuken heb je directe toegang tot de achtertuin en de fijne overkapping waar veelvuldig gebruik van kan worden gemaakt, je zit hier immers altijd droog.
Eerste verdieping:
Op de eerste verdieping kom je uit op de overloop die toegang biedt tot drie slaapkamers en de badkamer. Twee van de drie slaapkamers zijn royaal van formaat en bieden voldoende ruimte voor een tweepersoonsbed en een grote kledingkast. De derde slaapkamer is perfect als kinderkamer of rustige thuiswerkplek. Vanuit deze kamer heb je toegang tot het platte dak. De keurige en nette badkamer is volledig betegeld wat zorgt voor een verzorgde uitstraling. Hier vind je een inloopdouche, een toilet en een wastafel. Alles wat je nodig hebt binnen handbereik en overzichtelijk ingedeeld.
Tweede verdieping:
Via een vaste trap bereik je de tweede verdieping waar je uitkomt op een royale zolderkamer. Deze ruimte leent zich uitstekend als extra slaapkamer of hobbyruimte. Dankzij het dakraam valt het daglicht hier prettig naar binnen wat zorgt voor een lichte en aangename sfeer. Achter de knieschotten vind je volop bergruimte, ideaal voor koffers, seizoensspullen of alles wat je niet dagelijks nodig hebt. Tot slot vindt je op deze verdieping ook de cv-ketel.
Buitenleven:
De achtertuin is een heerlijke plek om tot rust te komen en volop van het buitenleven te genieten. Dankzij de nagenoeg zuidelijke ligging profiteer je hier vrijwel de hele dag van de zon. De tuin heeft een groene en natuurlijke uitstraling met volop planten en bloemen. Als je door de tuin loopt ontdek je pas de echt schoonheid van deze tuin. Een zitkuil, fraaie bestrating en diverse zitjes zorgen voor een heerlijk buitenleven. Direct grenzend aan de woning bevindt zich een overkapping met twee lichtstraten waardoor je hier beschut zit en geniet van natuurlijk licht. Deze plek nodigt uit om te blijven zitten.
De woning beschikt over een ruime garage die zowel via de tuin als via de oprit toegankelijk is. De garage is voorzien van elektra en biedt alle mogelijkheden voor opslag, een werkplaats of het stallen van fietsen. Tot slot is er nog een praktische achterom aanwezig.
Specificaties:
Bouwjaar: 1972
Perceeloppervlakte: 269m²
Inhoud van de woning: 431m³
Woonoppervlak: 118m²
Externe bergruimte: 23m²
Aanvaarding: in overleg
ENTHOUSIAST geworden over deze 2^1 kapwoning gelegen op een fraaie en rustige locatie met een heerlijke tuin?
Een juiste beoordeling van de woning komt het beste tot zijn recht bij een persoonlijke rondleiding, welke ik graag voor u verzorg.
Wonen in Haaren!
Haaren staat ook bekend als ‘de tuin van Brabant’.
Een gemoedelijk groen dorp centraal gelegen ten opzichte van uitvalswegen, natuur (duinen, bossen en vennen), dorpen en steden. Haaren beschikt over diverse voorzieningen op het gebied van scholing, sport en winkels.
Kortom een plaats waar het heerlijk wonen is.
Kenmerken
Overdracht
- Aangeboden sinds
- 19 juni 2025
- Status
- Verkocht
- Aanvaarding
- In overleg
Bouw
- Soort woning
- Woonhuis
- Bouwjaar
- 1972
- Soort dak
- Zadeldak
Oppervlakten en inhoud
- Oppervlakte wonen
- 118 m²
- Oppervlakte gebouwgebonden buitenruimte
- 34 m²
- Oppervlakte externe bergruimte
- 23 m²
- Perceel
- 269 m²
- Inhoud
- 431 m³
Indeling
- Aantal kamers
- 5
- Aantal slaapkamers
- 4
- Aantal badkamers
- 1
- Badkamervoorzieningen
- Toilet, wastafel en inloopdouche
- Aantal woonlagen
- 3
- Voorzieningen
- Alarminstallatie, tv-kabel, dakraam en glasvezel kabel
Energie
- Energielabel
- D
- Isolatie
- Dakisolatie en hr glas
- Verwarming
- Cv-ketel
- Warm water
- Cv-ketel
- Cv-ketel
- Atag (combiketel uit 2015)
Buitenruimte
- Ligging
- Aan rustige weg
- Tuin
- Achtertuin en voortuin
- Achtertuin
- 69 m² gelegen op het zuidoosten met achterom
Garage
- Soort garage
- Vrijstaand steen
- Capaciteit
- 1
- Voorzieningen
- Elektra en water