Word je warm van ons verhaal? Laten we samen kennismaken!
Neem contact op- 101 m²
- 162 m²
- 4
- C
Omschrijving
Deze verzorgde tussenwoning in Drunen biedt een heerlijke combinatie van ruimte, comfort en praktisch woongenot. Met vier slaapkamers, een sfeervolle woonkamer en een serre die de woning mooi verbindt met de tuin, is dit een plek waar je je snel thuis zult voelen. De tuin op het oosten en de grote berging zorgen bovendien voor extra gebruiksgemak. Dankzij energielabel C woon je hier prettig en toekomstgericht. De woning is netjes afgewerkt en biedt volop mogelijkheden om deze geheel naar eigen wens in te richten. Een ideale keuze voor gezinnen, stellen of iedereen die op zoek is naar een comfortabele woning op een fijne locatie.
INLEIDING
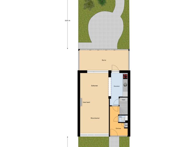
Begane grond
Betreed de woning via de entreehal. Hier hebben we toegang tot de meterkast, het toilet, de trap naar de eerste verdieping en de keuken. De keuken is voorzien van diverse inbouwapparatuur waaronder een elektrische kookplaat, koelkast, oven en Quooker. Via de keuken is de ruime woonkamer te betreden. Hier is genoeg plaats voor een gezellige zithoek en eettafel. Dankzij de grote raampartijen komt er veel daglicht naar binnen. De haard zorgt voor extra sfeer in de ruimte. Via de keuken is ook een heerlijke serre te bereiken waar je het hele jaar door fijn kunt zitten, met een goede verbinding met de tuin.
Eerste verdieping
Via de trap in de entreehal is de overloop te bereiken. Hier tref je drie slaapkamers en een badkamer. De hoofdslaapkamer is ruim en groot genoeg voor een tweepersoonsbed en een grote kledingkast. De slaapkamer aan de voorzijde is eveneens geschikt voor een groot bed en vormt zo een ideale kinderkamer. De slaapkamer aan de achterzijde is ook uitstekend te gebruiken als kantoor of inloopkast. De badkamer is voorzien van een toilet, douche en een wastafel met meubel.
Tweede verdieping
De tweede verdieping is te bereiken middels een vaste trap. We komen terecht op een overloop met toegang tot een ruime slaapkamer. De slaapkamer is groot genoeg voor een tweepersoonsbed, mede dankzij de grote dakkapel. In de knieschotten is nog voldoende ruimte voor berging. Op de overloop treffen we tot slot de opstelplaats van de cv-ketel.
TUIN
De tuin is heerlijk gelegen op het oosten. Dankzij de serre voelt de tuin echt als een verlengstuk van de woning. De buitenruimte is geheel naar eigen smaak in te richten, of je nu wil tuinieren of vooral een plek zoekt waar kinderen kunnen spelen. Achterin de tuin treffen we nog een grote berging. Deze is uitstekend geschikt om fietsen, scooters of een motor te stallen, of om tuingereedschap op te bergen. Via de berging beschikt de tuin ook over een eigen achterom.
LOCATIE
De woning ligt in een rustige en kindvriendelijke woonwijk van Drunen, op korte afstand van diverse voorzieningen. Supermarkten, scholen en sportfaciliteiten zijn gemakkelijk bereikbaar, net als wandel- en fietsroutes in de groene omgeving. Dankzij de goede verbinding met uitvalswegen ben je snel onderweg richting omliggende plaatsen en steden. Hierdoor combineer je hier het beste van centraal en rustig wonen.
BIJZONDERHEDEN
- Vier slaapkamers;
- Tuin op het oosten;
- Grote berging;
- energielabel C;
- Kindviendelijke woonomgeving;
- Voorzieningen dichtbij.
Toon meer
INLEIDING
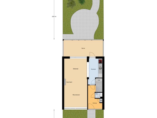
Begane grond
Betreed de woning via de entreehal. Hier hebben we toegang tot de meterkast, het toilet, de trap naar de eerste verdieping en de keuken. De keuken is voorzien van diverse inbouwapparatuur waaronder een elektrische kookplaat, koelkast, oven en Quooker. Via de keuken is de ruime woonkamer te betreden. Hier is genoeg plaats voor een gezellige zithoek en eettafel. Dankzij de grote raampartijen komt er veel daglicht naar binnen. De haard zorgt voor extra sfeer in de ruimte. Via de keuken is ook een heerlijke serre te bereiken waar je het hele jaar door fijn kunt zitten, met een goede verbinding met de tuin.
Eerste verdieping
Via de trap in de entreehal is de overloop te bereiken. Hier tref je drie slaapkamers en een badkamer. De hoofdslaapkamer is ruim en groot genoeg voor een tweepersoonsbed en een grote kledingkast. De slaapkamer aan de voorzijde is eveneens geschikt voor een groot bed en vormt zo een ideale kinderkamer. De slaapkamer aan de achterzijde is ook uitstekend te gebruiken als kantoor of inloopkast. De badkamer is voorzien van een toilet, douche en een wastafel met meubel.
Tweede verdieping
De tweede verdieping is te bereiken middels een vaste trap. We komen terecht op een overloop met toegang tot een ruime slaapkamer. De slaapkamer is groot genoeg voor een tweepersoonsbed, mede dankzij de grote dakkapel. In de knieschotten is nog voldoende ruimte voor berging. Op de overloop treffen we tot slot de opstelplaats van de cv-ketel.
TUIN
De tuin is heerlijk gelegen op het oosten. Dankzij de serre voelt de tuin echt als een verlengstuk van de woning. De buitenruimte is geheel naar eigen smaak in te richten, of je nu wil tuinieren of vooral een plek zoekt waar kinderen kunnen spelen. Achterin de tuin treffen we nog een grote berging. Deze is uitstekend geschikt om fietsen, scooters of een motor te stallen, of om tuingereedschap op te bergen. Via de berging beschikt de tuin ook over een eigen achterom.
LOCATIE
De woning ligt in een rustige en kindvriendelijke woonwijk van Drunen, op korte afstand van diverse voorzieningen. Supermarkten, scholen en sportfaciliteiten zijn gemakkelijk bereikbaar, net als wandel- en fietsroutes in de groene omgeving. Dankzij de goede verbinding met uitvalswegen ben je snel onderweg richting omliggende plaatsen en steden. Hierdoor combineer je hier het beste van centraal en rustig wonen.
BIJZONDERHEDEN
- Vier slaapkamers;
- Tuin op het oosten;
- Grote berging;
- energielabel C;
- Kindviendelijke woonomgeving;
- Voorzieningen dichtbij.
Kenmerken
Overdracht
- Vraagprijs
- € 350.000 k.k.
- Vraagprijs per m²
- € 3.465
- Aangeboden sinds
- 28 november 2025
- Status
- Beschikbaar
- Aanvaarding
- In overleg
Bouw
- Soort woning
- Woonhuis
- Bouwjaar
- 1965
- Soort dak
- Zadeldak
Oppervlakten en inhoud
- Oppervlakte wonen
- 101 m²
- Oppervlakte gebouwgebonden buitenruimte
- 14 m²
- Oppervlakte externe bergruimte
- 30 m²
- Perceel
- 162 m²
- Inhoud
- 354 m³
Indeling
- Aantal kamers
- 5
- Aantal slaapkamers
- 4
- Aantal badkamers
- 1
- Badkamervoorzieningen
- Toilet, douche, wastafel en wastafelmeubel
- Aantal woonlagen
- 3
- Voorzieningen
- Mechanische ventilatie, rolluiken, tv-kabel, buitenzonwering, airconditioning, rookkanaal en glasvezel kabel
Energie
- Energielabel
- C
- Isolatie
- Dakisolatie en hr glas
- Verwarming
- Cv-ketel
- Warm water
- Cv-ketel
- Cv-ketel
- Combiketel
Buitenruimte
- Ligging
- Aan rustige weg, in woonwijk en in bosrijke omgeving
- Tuin
- Achtertuin en voortuin
- Achtertuin
- 41 m² gelegen op het oosten met achterom
Bergruimte
- Schuur/berging
- Vrijstaand steen
- Voorzieningen
- Voorzien van elektra
Garage
- Soort garage
- Geen garage