Word je warm van ons verhaal? Laten we samen kennismaken!
Neem contact op- 250 m²
- 813 m²
- 7
- D
Omschrijving
Binnenkort wonen op misschien wel het mooiste plekje van Vlijmen? Dankzij de toekomstige afsluiting van de op- en afrit van de A59 is dit de ultieme kans om op deze unieke plek deze schitterende woning te bewonen. Dankzij de afsluiting van de op- en afrit van de A59 zal dit een autoluw stuk straat worden aan de rand van het centrum van Vlijmen.
Welkom in De Plataan, een charmant vrijstaand jaren '30 herenhuis aan de rand van het centrum van Vlijmen. Deze woning is ideaal voor gezinnen die op zoek zijn naar hun droomhuis, met vijf ruime slaapkamers en de mogelijkheid om er zelfs meer te creëren, afhankelijk van uw wensen. De woning beschikt over een groot bijgebouw dat tal van mogelijkheden biedt, van opslagruimte tot werkplaats of zelfs een hobbykamer of mantelzorgwoning. De woning is ook voorzien van 18 zonnepanelen, waardoor er ook aan duurzaamheid is gedacht. Qua onderhoud komt deze woning ook niets te kort. Zo zijn de buitenkozijnen vorig jaar september nog geschilderd en is de uitstekende bouwkundige staat van de woning bewezen. De naam van de woning is geïnspireerd door de prachtige monumentale boom die trots in de voortuin staat, en die de woning zijn bijzondere karakter geeft.
INDELING
BEGANE GROND
Bij aankomst in De Plataan parkeert u uw auto's op de ruime oprit, die plaats biedt aan meerdere voertuigen. Via de entreehal betreedt u de woning, die toegang biedt tot verschillende vertrekken. De hal leidt u naar de meterkast, een handige kelder, een aparte toilet, de ruime woonkamer, de keuken en de trap naar de eerste verdieping.
De woonkamer strekt zich over de volledige lengte van het huis en is voorzien van een prachtige, eikenhouten vloer, die het karakter van de woning benadrukt. De ruimte biedt voldoende plek voor meerdere zithoeken en een grote eettafel, waardoor het de ideale plek is voor gezinsmomenten of om gasten te ontvangen. Direct bij binnenkomst voelt u de warmte van de ruimte, die uitnodigt tot ontspanning. De dubbele tuindeuren aan de achterzijde zorgen ervoor dat u in de zomer de woonkamer moeiteloos met de tuin kunt verbinden, voor een optimaal binnen-buitengevoel. Tot slot is de woonkamer voorzien van een airco dat zorgt voor extra comfort.
De keuken is in een praktische T-opstelling geplaatst en uitgerust met moderne inbouwapparatuur, zoals een koelvriescombinatie, vaatwasser, oven en magnetron. Ook hier zijn dubbele tuindeuren aanwezig, die toegang bieden tot de achtertuin en zo het buitenleven uitnodigen. Aan de voorzijde van de woning bevindt zich een extra kamer, die perfect kan dienen als logeerkamer, hobbyruimte of een kantoor voor thuiswerken.
MULTIFUNCTIONEEL BIJGEBOUW
Via de keuken komt u in een heerlijke lichte doorgang die toegang geeft tot het bijgebouw, een veelzijdige ruimte die tal van mogelijkheden biedt. In deze doorgang vindt u de opstelplaats voor de wasmachine en wasdroger, wat zorgt voor extra gemak en een efficiënte indeling van de woning. Wanneer u het bijgebouw betreedt, komt u in een ruime berging, perfect voor het opslaan van allerlei spullen, van seizoensgebonden items tot fietsen of tuinaccessoires. Aan de achterzijde van het bijgebouw bevindt zich een extra ruimte die momenteel als fitnessruimte in gebruik is, maar ook uitstekend kan dienen als hobbykamer of extra werkruimte. Dit bijgebouw is volledig naar eigen wens in te richten en biedt enorm veel potentie. Of u nu op zoek bent naar ruimte voor mantelzorg, een plek voor uw hobby's, een gezellige kroeg of zelfs een werkplaats, de mogelijkheden zijn eindeloos. Het bijgebouw vormt zo een waardevolle aanvulling op de woning, met ruimte voor al uw dromen en ideeën.
EERSTE VERDIEPING
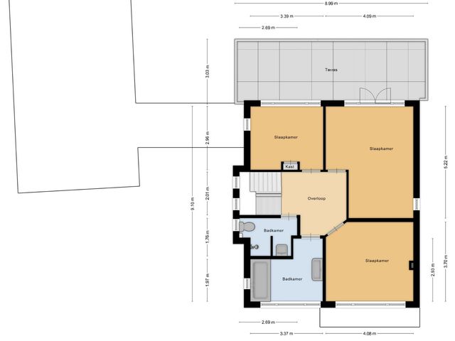
Via de trap in de entreehal bereiken we de eerste verdieping, waar we terechtkomen op de overloop. De verdieping is voorzien van drie ruime slaapkamers, die elk voldoende ruimte bieden voor een comfortabele inrichting. De hoofdslaapkamer is uitgerust met een airco, waardoor u het hele jaar door kunt genieten van een aangename temperatuur. Vanuit de hoofdslaapkamer heeft u toegang tot een ruim dakterras, waar u in alle privacy kunt genieten van de buitenlucht en het uitzicht. Er is bovendien voldoende ruimte in de kamer om een inloopkast te realiseren, wat deze slaapkamer nog praktischer maakt. De eerste verdieping beschikt daarnaast over twee aparte badkamers. De ene badkamer is voorzien van een ligbad en een wastafel, ideaal voor ontspanning na een lange dag. De andere badkamer heeft een douche, toilet en wastafel, en is daarmee perfect voor het dagelijks gebruik. Deze indeling zorgt ervoor dat de verdieping zowel praktisch als luxe is, en geschikt voor het hele gezin. In de woning ziet u verschillende elementen die verwijzen naar de prachtige jaren '30 stijl, denk hierbij aan bijvoorbeeld de glas in lood ramen en hoge plafonds.
TWEEDE VERDIEPING
De tweede verdieping is bereikbaar via een vaste trap. We treffen hier een ruime vierde slaapkamer, compleet met een bergkast voor extra opbergruimte. Dankzij de twee dakramen komt er veel daglicht de kamer binnen, wat zorgt voor een frisse en open uitstraling. Deze slaapkamer heeft tevens een kleine vliering, bereikbaar via een ladder. Dit extra niveau biedt de mogelijkheid om hier een bed te plaatsen of het in te richten als extra bergruimte, afhankelijk van uw wensen.
Daarnaast is er op deze verdieping nog een extra kamer, die ideaal kan dienen als logeerkamer voor gasten of als kantoorruimte voor thuiswerken. Tot slot is er ook een berging met de opstelplaats van de CV-ketel uit 2020. Deze verdieping biedt zoveel mogelijkheden, van extra slaapruimte tot werkplek of opslagruimte, en is perfect in te richten naar uw eigen behoeften.
TUIN
De tuin van De Plataan ligt op het noorden, maar biedt ondanks deze ligging een heerlijke ochtend- en middagzon. Dit zorgt ervoor dat u het hele seizoen door kunt genieten van het buitenleven, ongeacht het tijdstip van de dag. Tegen het bijgebouw vindt u een gezellige overkapping, de perfecte plek om in de zomer te ontspannen of een gezellige BBQ te houden met familie en vrienden. Deze overkapping biedt zowel schaduw als bescherming, zodat u het hele jaar door van de tuin kunt genieten. Daarnaast beschikt de woning over een fijne zijtuin, die geheel naar eigen smaak is in te richten. Er is meer dan voldoende ruimte voor speeltoestellen voor de kinderen of een zithoek om heerlijk te genieten van de buitenlucht. Of u nu wilt spelen, ontspannen of een gezellige tijd met anderen wilt doorbrengen, de tuin biedt volop mogelijkheden om te creëren wat u wenst.
LOCATIE
De Plataan bevindt zich aan de rand van het centrum van Vlijmen. De dagelijkse boodschappen zijn binnen handbereik, met winkels op slechts een steenworp afstand. De A59 is binnen één minuut bereikbaar, wat zorgt voor een snelle en gemakkelijke verbinding naar zowel Den Bosch als Waalwijk. Deze centrale ligging biedt het beste van twee werelden: rustige woonomgeving en uitstekende bereikbaarheid.
BIJZONDERHEDEN
- 250 m2 woonoppervlakte;
- 813 m2 perceel;
- Ruime en veelzijdige indeling;
- Karakteristieke details;
- Mogelijkheid voor extra slaapkamers;
- Groot bijgebouw met veel mogelijkheden;
- 18 zonnepanelen;
- Fijne tuin op het noorden met veel zonlicht;
- Goede bereikbaarheid;
- Dichtbij voorzieningen;
- Prachtige Plataan in de voortuin.
Toon meer
Welkom in De Plataan, een charmant vrijstaand jaren '30 herenhuis aan de rand van het centrum van Vlijmen. Deze woning is ideaal voor gezinnen die op zoek zijn naar hun droomhuis, met vijf ruime slaapkamers en de mogelijkheid om er zelfs meer te creëren, afhankelijk van uw wensen. De woning beschikt over een groot bijgebouw dat tal van mogelijkheden biedt, van opslagruimte tot werkplaats of zelfs een hobbykamer of mantelzorgwoning. De woning is ook voorzien van 18 zonnepanelen, waardoor er ook aan duurzaamheid is gedacht. Qua onderhoud komt deze woning ook niets te kort. Zo zijn de buitenkozijnen vorig jaar september nog geschilderd en is de uitstekende bouwkundige staat van de woning bewezen. De naam van de woning is geïnspireerd door de prachtige monumentale boom die trots in de voortuin staat, en die de woning zijn bijzondere karakter geeft.
INDELING
BEGANE GROND
Bij aankomst in De Plataan parkeert u uw auto's op de ruime oprit, die plaats biedt aan meerdere voertuigen. Via de entreehal betreedt u de woning, die toegang biedt tot verschillende vertrekken. De hal leidt u naar de meterkast, een handige kelder, een aparte toilet, de ruime woonkamer, de keuken en de trap naar de eerste verdieping.
De woonkamer strekt zich over de volledige lengte van het huis en is voorzien van een prachtige, eikenhouten vloer, die het karakter van de woning benadrukt. De ruimte biedt voldoende plek voor meerdere zithoeken en een grote eettafel, waardoor het de ideale plek is voor gezinsmomenten of om gasten te ontvangen. Direct bij binnenkomst voelt u de warmte van de ruimte, die uitnodigt tot ontspanning. De dubbele tuindeuren aan de achterzijde zorgen ervoor dat u in de zomer de woonkamer moeiteloos met de tuin kunt verbinden, voor een optimaal binnen-buitengevoel. Tot slot is de woonkamer voorzien van een airco dat zorgt voor extra comfort.
De keuken is in een praktische T-opstelling geplaatst en uitgerust met moderne inbouwapparatuur, zoals een koelvriescombinatie, vaatwasser, oven en magnetron. Ook hier zijn dubbele tuindeuren aanwezig, die toegang bieden tot de achtertuin en zo het buitenleven uitnodigen. Aan de voorzijde van de woning bevindt zich een extra kamer, die perfect kan dienen als logeerkamer, hobbyruimte of een kantoor voor thuiswerken.
MULTIFUNCTIONEEL BIJGEBOUW
Via de keuken komt u in een heerlijke lichte doorgang die toegang geeft tot het bijgebouw, een veelzijdige ruimte die tal van mogelijkheden biedt. In deze doorgang vindt u de opstelplaats voor de wasmachine en wasdroger, wat zorgt voor extra gemak en een efficiënte indeling van de woning. Wanneer u het bijgebouw betreedt, komt u in een ruime berging, perfect voor het opslaan van allerlei spullen, van seizoensgebonden items tot fietsen of tuinaccessoires. Aan de achterzijde van het bijgebouw bevindt zich een extra ruimte die momenteel als fitnessruimte in gebruik is, maar ook uitstekend kan dienen als hobbykamer of extra werkruimte. Dit bijgebouw is volledig naar eigen wens in te richten en biedt enorm veel potentie. Of u nu op zoek bent naar ruimte voor mantelzorg, een plek voor uw hobby's, een gezellige kroeg of zelfs een werkplaats, de mogelijkheden zijn eindeloos. Het bijgebouw vormt zo een waardevolle aanvulling op de woning, met ruimte voor al uw dromen en ideeën.
EERSTE VERDIEPING
Via de trap in de entreehal bereiken we de eerste verdieping, waar we terechtkomen op de overloop. De verdieping is voorzien van drie ruime slaapkamers, die elk voldoende ruimte bieden voor een comfortabele inrichting. De hoofdslaapkamer is uitgerust met een airco, waardoor u het hele jaar door kunt genieten van een aangename temperatuur. Vanuit de hoofdslaapkamer heeft u toegang tot een ruim dakterras, waar u in alle privacy kunt genieten van de buitenlucht en het uitzicht. Er is bovendien voldoende ruimte in de kamer om een inloopkast te realiseren, wat deze slaapkamer nog praktischer maakt. De eerste verdieping beschikt daarnaast over twee aparte badkamers. De ene badkamer is voorzien van een ligbad en een wastafel, ideaal voor ontspanning na een lange dag. De andere badkamer heeft een douche, toilet en wastafel, en is daarmee perfect voor het dagelijks gebruik. Deze indeling zorgt ervoor dat de verdieping zowel praktisch als luxe is, en geschikt voor het hele gezin. In de woning ziet u verschillende elementen die verwijzen naar de prachtige jaren '30 stijl, denk hierbij aan bijvoorbeeld de glas in lood ramen en hoge plafonds.
TWEEDE VERDIEPING
De tweede verdieping is bereikbaar via een vaste trap. We treffen hier een ruime vierde slaapkamer, compleet met een bergkast voor extra opbergruimte. Dankzij de twee dakramen komt er veel daglicht de kamer binnen, wat zorgt voor een frisse en open uitstraling. Deze slaapkamer heeft tevens een kleine vliering, bereikbaar via een ladder. Dit extra niveau biedt de mogelijkheid om hier een bed te plaatsen of het in te richten als extra bergruimte, afhankelijk van uw wensen.
Daarnaast is er op deze verdieping nog een extra kamer, die ideaal kan dienen als logeerkamer voor gasten of als kantoorruimte voor thuiswerken. Tot slot is er ook een berging met de opstelplaats van de CV-ketel uit 2020. Deze verdieping biedt zoveel mogelijkheden, van extra slaapruimte tot werkplek of opslagruimte, en is perfect in te richten naar uw eigen behoeften.
TUIN
De tuin van De Plataan ligt op het noorden, maar biedt ondanks deze ligging een heerlijke ochtend- en middagzon. Dit zorgt ervoor dat u het hele seizoen door kunt genieten van het buitenleven, ongeacht het tijdstip van de dag. Tegen het bijgebouw vindt u een gezellige overkapping, de perfecte plek om in de zomer te ontspannen of een gezellige BBQ te houden met familie en vrienden. Deze overkapping biedt zowel schaduw als bescherming, zodat u het hele jaar door van de tuin kunt genieten. Daarnaast beschikt de woning over een fijne zijtuin, die geheel naar eigen smaak is in te richten. Er is meer dan voldoende ruimte voor speeltoestellen voor de kinderen of een zithoek om heerlijk te genieten van de buitenlucht. Of u nu wilt spelen, ontspannen of een gezellige tijd met anderen wilt doorbrengen, de tuin biedt volop mogelijkheden om te creëren wat u wenst.
LOCATIE
De Plataan bevindt zich aan de rand van het centrum van Vlijmen. De dagelijkse boodschappen zijn binnen handbereik, met winkels op slechts een steenworp afstand. De A59 is binnen één minuut bereikbaar, wat zorgt voor een snelle en gemakkelijke verbinding naar zowel Den Bosch als Waalwijk. Deze centrale ligging biedt het beste van twee werelden: rustige woonomgeving en uitstekende bereikbaarheid.
BIJZONDERHEDEN
- 250 m2 woonoppervlakte;
- 813 m2 perceel;
- Ruime en veelzijdige indeling;
- Karakteristieke details;
- Mogelijkheid voor extra slaapkamers;
- Groot bijgebouw met veel mogelijkheden;
- 18 zonnepanelen;
- Fijne tuin op het noorden met veel zonlicht;
- Goede bereikbaarheid;
- Dichtbij voorzieningen;
- Prachtige Plataan in de voortuin.
Kenmerken
Overdracht
- Vraagprijs
- € 925.000 k.k.
- Vraagprijs per m²
- € 3.700
- Aangeboden sinds
- 7 augustus 2025
- Status
- Beschikbaar
- Aanvaarding
- In overleg
Bouw
- Soort woning
- Woonhuis
- Bouwjaar
- 1934
- Soort dak
- Tentdak
Oppervlakten en inhoud
- Oppervlakte wonen
- 250 m²
- Oppervlakte overige inpandige ruimte
- 1 m²
- Oppervlakte gebouwgebonden buitenruimte
- 48 m²
- Perceel
- 813 m²
- Inhoud
- 933 m³
Indeling
- Aantal kamers
- 9
- Aantal slaapkamers
- 7
- Aantal badkamers
- 2
- Badkamervoorzieningen
- Ligbad, wastafel, toilet en douche
- Aantal woonlagen
- 4
- Voorzieningen
- Tv-kabel, airconditioning, rookkanaal, dakraam, glasvezel kabel, zonnepanelen en natuurlijke ventilatie
Energie
- Energielabel
- D
- Isolatie
- Dakisolatie, muurisolatie, voorzetramen en hr glas
- Verwarming
- Cv-ketel
- Warm water
- Cv-ketel
- Cv-ketel
- Intergas (combiketel uit 2020)
Buitenruimte
- Ligging
- In centrum, in woonwijk en in bosrijke omgeving
- Tuin
- Achtertuin, voortuin, zijtuin en tuin rondom
- Achtertuin
- 277 m² gelegen op het noorden met achterom
Bergruimte
- Schuur/berging
- Aangebouwd steen
- Voorzieningen
- Voorzien van verwarming en voorzien van elektra
Garage
- Soort garage
- Geen garage