Word je warm van ons verhaal? Laten we samen kennismaken!
Neem contact op- 167 m²
- 334 m²
- 4
- A
Omschrijving
Op zoek naar een grootse maar knusse eengezinswoning van formaat? Zoek dan niet meer verder!
Zeer ruime twee-onder-één-kapwoning in jaren ’30-stijl en voorzien van eigen oprit voor een tweetal auto’s, een inpandig bereikbare multifunctionele ruimte en een zonnige tuin op het zuidwesten met overkapping en achterom.
De woning is gelegen in de jonge en kindvriendelijke nieuwbouwstraat de Hauwkes in Haarsteeg. Aan de voorzijde zijn een groenstrook en een speeltuintje gerealiseerd. Op 25 meter aan de overzijde bevinden zich pas weer woningen, waardoor u geniet van een vrij uitzicht. De straat kenmerkt zich door zijn ruime en groenrijke opzet, waardoor u zowel in als om de woning een prettige hoeveelheid rust en privacy ervaart.
De woning kent een ideale ligging in het dorp Haarsteeg, welke grenst aan het dorp Vlijmen. U kunt gemakkelijk gebruik maken van de vele voorzieningen die Haarsteeg en Vlijmen op loop- en fietsafstand te bieden hebben, zoals diverse winkels, sportvoorzieningen, scholen en uiteraard een bushalte. Tevens is de Bourgondische binnenstad van ’s-Hertogenbosch uitstekend te bereiken. Met de auto bevindt u zich binnen enkele minuten op de diverse uitvalswegen.
INDELING:
Begane grond: entree/hal, meterkast, wandtoilet met fontein, toegang tot de woonkamer en trapopgang. De woonkamer heeft een zitgedeelte aan de voorzijde en daarbij een fraaie erker. De eetkamer is gelegen aan de tuinzijde. Open de tuindeuren en je hebt toegang tot het terras. De woonkamer en eetkamer zijn voorzien van een fraaie eikenhouten vloer.
De woonkeuken is uitgerust met een L-vormige keukeninrichting met inbouwapparatuur zoals een gaskookplaat, afzuigkap, oven, vaatwasser en koelkast. Vanuit de keuken loopt u zo de multifunctionele ruimte in, welke nu in gebruik is als game-room/speelkamer.
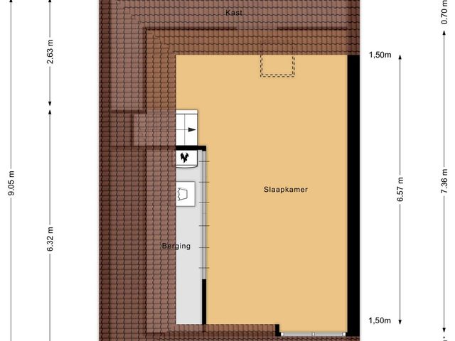
Eerste verdieping
Overloop met toegang tot 3 slaapkamers en 2 badkamers. De slaapkamers zijn allemaal voorzien van een laminaatvloer. De hoofdslaapkamer heeft een vaste kastenwand ne en-suite badkamer met bad-/douchecombinatie en luxe wastafelmeubel. De andere (kinder-)badkamer is vanuit de overloop te bereiken en beschikt over een toilet, wastafelmeubel en inloopdouche. De slaapkamers aan de achterzijde beschikken over een rolluik.
Tweede verdieping
Ruime open zolder welke momenteel in gebruik is als zolderkamer. De ruimte aan de achterzijde van de zolder met dakraam is ruim genoeg om in te richten als werkplek. De zolder biedt ruimte voor het bergen van spullen onder de dakschuinte en tevens treffen we hier de opstelling van de cv-combiketel (Nefit Ecomline HR, 20@@). De zolderkamer is aan de voorzijde van de woning gelegen met een dakkapel en laminaatvloer.
TUIN
De achtertuin is fraai aangelegd met sierbestrating en een gazon, gelegen op het westen. Achterin de tuin is een houten berging met overkapping voor de fietsen en naast het huis is een achterom naar de ruime oprit. De oprit biedt voldoende ruimte voor het stallen van twee auto's.
Bijzonderheden:
- Zeer ruime tuin op het zonnige westen en met achterom;
- Vier ruime slaapkamers (vijf mogelijk);
- De zonnige, fraai aangelegde achtertuin is gelegen op het westen;
- HR CV-combiketel van het merk Vaillant uit het jaar 2022;
- Eigen oprit voor een tweetal auto’s;
- De woning is ideaal gelegen in de kindvriendelijke woonstraat Hauwkes.
Toon meer
Zeer ruime twee-onder-één-kapwoning in jaren ’30-stijl en voorzien van eigen oprit voor een tweetal auto’s, een inpandig bereikbare multifunctionele ruimte en een zonnige tuin op het zuidwesten met overkapping en achterom.
De woning is gelegen in de jonge en kindvriendelijke nieuwbouwstraat de Hauwkes in Haarsteeg. Aan de voorzijde zijn een groenstrook en een speeltuintje gerealiseerd. Op 25 meter aan de overzijde bevinden zich pas weer woningen, waardoor u geniet van een vrij uitzicht. De straat kenmerkt zich door zijn ruime en groenrijke opzet, waardoor u zowel in als om de woning een prettige hoeveelheid rust en privacy ervaart.
De woning kent een ideale ligging in het dorp Haarsteeg, welke grenst aan het dorp Vlijmen. U kunt gemakkelijk gebruik maken van de vele voorzieningen die Haarsteeg en Vlijmen op loop- en fietsafstand te bieden hebben, zoals diverse winkels, sportvoorzieningen, scholen en uiteraard een bushalte. Tevens is de Bourgondische binnenstad van ’s-Hertogenbosch uitstekend te bereiken. Met de auto bevindt u zich binnen enkele minuten op de diverse uitvalswegen.
INDELING:
Begane grond: entree/hal, meterkast, wandtoilet met fontein, toegang tot de woonkamer en trapopgang. De woonkamer heeft een zitgedeelte aan de voorzijde en daarbij een fraaie erker. De eetkamer is gelegen aan de tuinzijde. Open de tuindeuren en je hebt toegang tot het terras. De woonkamer en eetkamer zijn voorzien van een fraaie eikenhouten vloer.
De woonkeuken is uitgerust met een L-vormige keukeninrichting met inbouwapparatuur zoals een gaskookplaat, afzuigkap, oven, vaatwasser en koelkast. Vanuit de keuken loopt u zo de multifunctionele ruimte in, welke nu in gebruik is als game-room/speelkamer.
Eerste verdieping
Overloop met toegang tot 3 slaapkamers en 2 badkamers. De slaapkamers zijn allemaal voorzien van een laminaatvloer. De hoofdslaapkamer heeft een vaste kastenwand ne en-suite badkamer met bad-/douchecombinatie en luxe wastafelmeubel. De andere (kinder-)badkamer is vanuit de overloop te bereiken en beschikt over een toilet, wastafelmeubel en inloopdouche. De slaapkamers aan de achterzijde beschikken over een rolluik.
Tweede verdieping
Ruime open zolder welke momenteel in gebruik is als zolderkamer. De ruimte aan de achterzijde van de zolder met dakraam is ruim genoeg om in te richten als werkplek. De zolder biedt ruimte voor het bergen van spullen onder de dakschuinte en tevens treffen we hier de opstelling van de cv-combiketel (Nefit Ecomline HR, 20@@). De zolderkamer is aan de voorzijde van de woning gelegen met een dakkapel en laminaatvloer.
TUIN
De achtertuin is fraai aangelegd met sierbestrating en een gazon, gelegen op het westen. Achterin de tuin is een houten berging met overkapping voor de fietsen en naast het huis is een achterom naar de ruime oprit. De oprit biedt voldoende ruimte voor het stallen van twee auto's.
Bijzonderheden:
- Zeer ruime tuin op het zonnige westen en met achterom;
- Vier ruime slaapkamers (vijf mogelijk);
- De zonnige, fraai aangelegde achtertuin is gelegen op het westen;
- HR CV-combiketel van het merk Vaillant uit het jaar 2022;
- Eigen oprit voor een tweetal auto’s;
- De woning is ideaal gelegen in de kindvriendelijke woonstraat Hauwkes.
Kenmerken
Overdracht
- Aangeboden sinds
- 4 augustus 2025
- Status
- Verkocht
- Aanvaarding
- In overleg
Bouw
- Soort woning
- Woonhuis
- Bouwjaar
- 2003
- Soort dak
- Schilddak
Oppervlakten en inhoud
- Oppervlakte wonen
- 167 m²
- Oppervlakte externe bergruimte
- 15 m²
- Perceel
- 334 m²
- Inhoud
- 590 m³
Indeling
- Aantal kamers
- 6
- Aantal slaapkamers
- 4
- Aantal badkamers
- 2
- Badkamervoorzieningen
- Toilet, douche, wastafel, ligbad en wastafelmeubel
- Aantal woonlagen
- 3
- Voorzieningen
- Mechanische ventilatie, rolluiken, tv-kabel, dakraam en glasvezel kabel
Energie
- Energielabel
- A
- Verwarming
- Cv-ketel
- Warm water
- Cv-ketel
- Cv-ketel
- Combiketel
Buitenruimte
- Ligging
- Aan rustige weg, in woonwijk, vrij uitzicht, open ligging en in bosrijke omgeving
- Tuin
- Achtertuin, voortuin en zijtuin
- Achtertuin
- 129 m² gelegen op het westen
Bergruimte
- Schuur/berging
- Vrijstaand hout
Garage
- Soort garage
- Aangebouwd steen
- Capaciteit
- 1
- Voorzieningen
- Elektra