Word je warm van ons verhaal? Laten we samen kennismaken!
Neem contact op- 86 m²
- 182 m²
- 3
- D
Omschrijving
Ruime tussenwoning met garage, drie slaapkamers, berging en zonnige achtertuin op loopafstand van het centrum van Vlijmen
Op een fijne locatie, op loopafstand van het centrum van Vlijmen, staat deze ruime tussenwoning met aanbouw, vrijstaande garage en een zonnige achtertuin op het westen. De woning beschikt over 86 m² woonoppervlakte en aanvullend 14 m² overige inpandige ruimte, doordat de zolderverdieping niet voldoet aan de minimale hoogte-eisen voor woonoppervlakte. De woning is netjes bewoond, maar biedt tegelijkertijd volop kansen om het geheel naar eigen wensen en voorkeuren te maken. Met drie slaapkamers, een lichte woonkamer en praktische garage is dit een zeer prettige gezinswoning met potentie.
INDELING
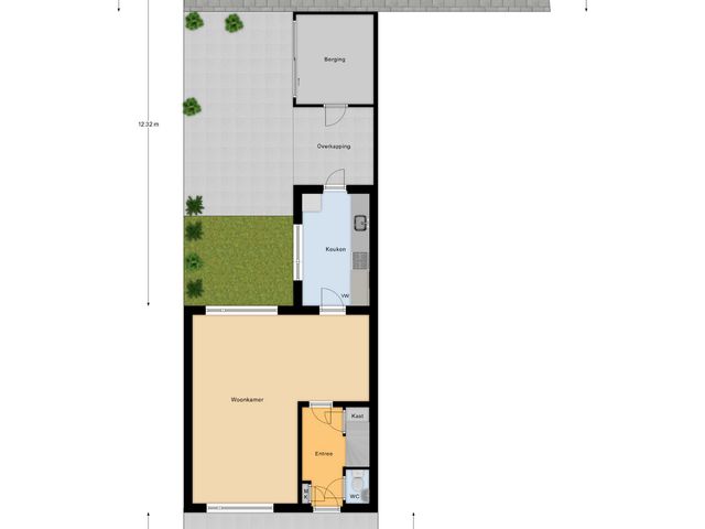
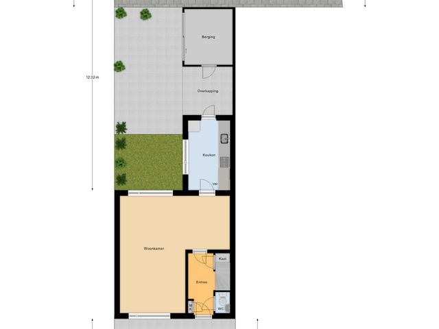
Begane grond:
De hal is afgewerkt met karakteristieke zwart-witte dominotegels en biedt toegang tot het toilet, de woonkamer en de trapopgang naar de eerste verdieping. Het toilet is voorzien van een groene tegelwand en een fonteintje. In de hal is ruimte voor een kapstok en schoenenopbergmeubel, waardoor dit een praktische entree is van de woning. Onder de trap bevindt zich bovendien een handige bergruimte.
De woonkamer is ruim en licht, voorzien van een laminaatvloer Aan de voorzijde bevindt zich een prettig zitgedeelte met een grote raampartij, waardoor er veel daglicht binnenvalt. Verderop in de woonkamer is een sfeervol eetgedeelte gecreëerd, met voldoende ruimte voor een eettafel.
De keuken bevindt zich in de aangebouwde, afgesloten ruimte en biedt volop mogelijkheden om deze geheel naar eigen smaak te moderniseren of anders in te delen. Dankzij het grote raam aan de linkerzijde is de keuken opvallend licht. De keukenopstelling bevindt zich aan de rechterzijde en is uitgerust met een gasfornuis en afzuigkap. Vanuit de keuken leidt een deur direct naar de achtertuin.
Eerste verdieping:
De eerste verdieping is voorzien van een laminaatvloer en telt twee slaapkamers, een badkamer en een aparte wasruimte.
De hoofdslaapkamer biedt voldoende ruimte voor een tweepersoonsbed en een royale kastenwand. De tweede slaapkamer wordt nu gebruikt als kantoorruimte, maar leent zich uitstekend als kinderkamer, logeerplek, hobbyruimte of ideale thuiswerkplek.
De badkamer is verrassend ruim en uitgerust met een douchecabine, een ligbad en een wastafel. De wanden zijn betegeld met een combinatie van blauwe en witte tegels. Op deze verdieping bevindt zich daarnaast een aparte ruimte met aansluiting voor de wasmachine.
Tweede verdieping:
Via een vaste trap bereik je de zolderverdieping. Dankzij de dakkapel is hier een volwaardige derde slaapkamer ontstaan. Onder de knieschotten is veel bergruimte aanwezig. Op deze verdieping bevindt zich tevens de cv-ketel (bouwjaar 2001). De ruimte biedt verder nog mogelijkheden voor extra opslag of het creëren van een werkhoek.
Buitenruimte:
Direct achter de keuken bevindt zich een gezellige overkapping met een comfortabele zithoek. Aansluitend staat een praktische berging.
De tuin heeft een combinatie van bestrating en een groene strook én is gunstig gelegen op het westen, waardoor je hier in de middag en avond heerlijk van de zon kunt genieten.
Garage:
Via de poort aan de achterzijde is de achterom bereikbaar. Deze leidt door naar de garage van de woning, die eenvoudig toegankelijk is en veel extra bergruimte biedt voor hobbyspullen, gereedschap, fietsen en meer.
Locatie:
De woning ligt in een prettige straat, op korte loopafstand van het centrum van Vlijmen. Alle dagelijkse voorzieningen bevinden zich in de directe omgeving: supermarkten, winkels, basisscholen en sportfaciliteiten zijn eenvoudig te bereiken. Ook ligt de woning gunstig ten opzichte van diverse uitvalswegen. Binnen enkele minuten rijd je de A59 op, waardoor steden als ’s-Hertogenbosch en Waalwijk snel bereikbaar zijn. De combinatie van een rustige woonomgeving, veel voorzieningen nabij en een centrale ligging maakt dit een zeer aantrekkelijke locatie voor diverse doelgroepen.
Bijzonderheden:
- Ruime tussenwoning met vrijstaande garage en praktische berging;
- Drie slaapkamers, waaronder één met dakkapel;
- Achtertuin op het westen met overkapping;
- Afgesloten keuken met potentie voor eigen invulling;
- Ruime badkamer met ligbad en douchecabine;
- Aparte wasruimte op de eerste verdieping;
- Voorzien van kunststof kozijnen en deels voorzien van HR+-beglazing;
- Energielabel D;
- Gunstige ligging nabij het centrum en uitvalswegen.
Toon meer
Op een fijne locatie, op loopafstand van het centrum van Vlijmen, staat deze ruime tussenwoning met aanbouw, vrijstaande garage en een zonnige achtertuin op het westen. De woning beschikt over 86 m² woonoppervlakte en aanvullend 14 m² overige inpandige ruimte, doordat de zolderverdieping niet voldoet aan de minimale hoogte-eisen voor woonoppervlakte. De woning is netjes bewoond, maar biedt tegelijkertijd volop kansen om het geheel naar eigen wensen en voorkeuren te maken. Met drie slaapkamers, een lichte woonkamer en praktische garage is dit een zeer prettige gezinswoning met potentie.
INDELING
Begane grond:
De hal is afgewerkt met karakteristieke zwart-witte dominotegels en biedt toegang tot het toilet, de woonkamer en de trapopgang naar de eerste verdieping. Het toilet is voorzien van een groene tegelwand en een fonteintje. In de hal is ruimte voor een kapstok en schoenenopbergmeubel, waardoor dit een praktische entree is van de woning. Onder de trap bevindt zich bovendien een handige bergruimte.
De woonkamer is ruim en licht, voorzien van een laminaatvloer Aan de voorzijde bevindt zich een prettig zitgedeelte met een grote raampartij, waardoor er veel daglicht binnenvalt. Verderop in de woonkamer is een sfeervol eetgedeelte gecreëerd, met voldoende ruimte voor een eettafel.
De keuken bevindt zich in de aangebouwde, afgesloten ruimte en biedt volop mogelijkheden om deze geheel naar eigen smaak te moderniseren of anders in te delen. Dankzij het grote raam aan de linkerzijde is de keuken opvallend licht. De keukenopstelling bevindt zich aan de rechterzijde en is uitgerust met een gasfornuis en afzuigkap. Vanuit de keuken leidt een deur direct naar de achtertuin.
Eerste verdieping:
De eerste verdieping is voorzien van een laminaatvloer en telt twee slaapkamers, een badkamer en een aparte wasruimte.
De hoofdslaapkamer biedt voldoende ruimte voor een tweepersoonsbed en een royale kastenwand. De tweede slaapkamer wordt nu gebruikt als kantoorruimte, maar leent zich uitstekend als kinderkamer, logeerplek, hobbyruimte of ideale thuiswerkplek.
De badkamer is verrassend ruim en uitgerust met een douchecabine, een ligbad en een wastafel. De wanden zijn betegeld met een combinatie van blauwe en witte tegels. Op deze verdieping bevindt zich daarnaast een aparte ruimte met aansluiting voor de wasmachine.
Tweede verdieping:
Via een vaste trap bereik je de zolderverdieping. Dankzij de dakkapel is hier een volwaardige derde slaapkamer ontstaan. Onder de knieschotten is veel bergruimte aanwezig. Op deze verdieping bevindt zich tevens de cv-ketel (bouwjaar 2001). De ruimte biedt verder nog mogelijkheden voor extra opslag of het creëren van een werkhoek.
Buitenruimte:
Direct achter de keuken bevindt zich een gezellige overkapping met een comfortabele zithoek. Aansluitend staat een praktische berging.
De tuin heeft een combinatie van bestrating en een groene strook én is gunstig gelegen op het westen, waardoor je hier in de middag en avond heerlijk van de zon kunt genieten.
Garage:
Via de poort aan de achterzijde is de achterom bereikbaar. Deze leidt door naar de garage van de woning, die eenvoudig toegankelijk is en veel extra bergruimte biedt voor hobbyspullen, gereedschap, fietsen en meer.
Locatie:
De woning ligt in een prettige straat, op korte loopafstand van het centrum van Vlijmen. Alle dagelijkse voorzieningen bevinden zich in de directe omgeving: supermarkten, winkels, basisscholen en sportfaciliteiten zijn eenvoudig te bereiken. Ook ligt de woning gunstig ten opzichte van diverse uitvalswegen. Binnen enkele minuten rijd je de A59 op, waardoor steden als ’s-Hertogenbosch en Waalwijk snel bereikbaar zijn. De combinatie van een rustige woonomgeving, veel voorzieningen nabij en een centrale ligging maakt dit een zeer aantrekkelijke locatie voor diverse doelgroepen.
Bijzonderheden:
- Ruime tussenwoning met vrijstaande garage en praktische berging;
- Drie slaapkamers, waaronder één met dakkapel;
- Achtertuin op het westen met overkapping;
- Afgesloten keuken met potentie voor eigen invulling;
- Ruime badkamer met ligbad en douchecabine;
- Aparte wasruimte op de eerste verdieping;
- Voorzien van kunststof kozijnen en deels voorzien van HR+-beglazing;
- Energielabel D;
- Gunstige ligging nabij het centrum en uitvalswegen.
Kenmerken
Overdracht
- Vraagprijs
- € 400.000 k.k.
- Vraagprijs per m²
- € 4.651
- Aangeboden sinds
- 17 november 2025
- Status
- Beschikbaar
- Aanvaarding
- In overleg
Bouw
- Soort woning
- Woonhuis
- Bouwjaar
- 1962
- Soort dak
- Zadeldak
Oppervlakten en inhoud
- Oppervlakte wonen
- 86 m²
- Oppervlakte overige inpandige ruimte
- 14 m²
- Oppervlakte gebouwgebonden buitenruimte
- 7 m²
- Oppervlakte externe bergruimte
- 28 m²
- Perceel
- 182 m²
- Inhoud
- 362 m³
Indeling
- Aantal kamers
- 4
- Aantal slaapkamers
- 3
- Aantal badkamers
- 1
- Badkamervoorzieningen
- Ligbad, douche en wastafel
- Aantal woonlagen
- 3
- Voorzieningen
- Tv-kabel, buitenzonwering, glasvezel kabel en natuurlijke ventilatie
Energie
- Energielabel
- D
- Isolatie
- Gedeeltelijk dubbel glas
- Verwarming
- Cv-ketel
- Warm water
- Cv-ketel
- Cv-ketel
- Nefit Ecomline HR Excellent (combiketel uit 2001)
Buitenruimte
- Ligging
- Aan rustige weg, in woonwijk en in bosrijke omgeving
- Tuin
- Achtertuin en voortuin
- Achtertuin
- 60 m² gelegen op het westen met achterom
Bergruimte
- Schuur/berging
- Vrijstaand steen
- Voorzieningen
- Voorzien van elektra
Garage
- Soort garage
- Vrijstaand steen
- Capaciteit
- 1
- Voorzieningen
- Elektra