Word je warm van ons verhaal? Laten we samen kennismaken!
Neem contact op- 250 m²
- 713 m²
- 4
- A+
Omschrijving
In een rustige nieuwbouwwijk in Haarsteeg staat deze prachtige villa, perfect voor gezinnen die op zoek zijn naar ruimte, comfort en luxe. Met vier ruime slaapkamers en open zolder, twee moderne badkamers, op maat gemaakt interieur en een luxe bijgebouw met sauna in de tuin, is hier echt aan alles gedacht. De woning is zeer hoogwaardig afgewerkt, ruim van opzet, ideaal voor gezinnen met opgroeiende kinderen die ieder hun eigen plek nodig hebben. Ook op het gebied van duurzaamheid scoort deze woning hoog: energielabel A, een moderne cv-ketel, vloerverwarming én zonnepanelen. De combinatie van comfort, luxe en energiezuinig wonen maakt dit huis uniek in zijn soort. Je geniet hier dagelijks van een heerlijke leefomgeving met volop licht en ruimte. Kortom: een droomhuis voor het hele gezin.
INDELING
Begane grond:
Bij binnenkomst in de woning word je direct verwelkomd door een ruime entreehal met een prachtige vide die direct een gevoel van luxe en openheid geeft. Vanuit de hal heb je toegang tot het toilet, de trap naar de eerste verdieping, de woonkamer en de keuken. De royale woonkamer is een heerlijke leefruimte met volop daglicht dankzij de grote raampartijen. Hier is meer dan genoeg ruimte voor een comfortabele zithoek én een grote eettafel. De keuken ensuite is een echte eyecatcher: luxe uitgevoerd met een kookeiland en inbouwapparatuur zoals een koelkast, combi-oven en vaatwasser. De schuifpui in de keuken opent naar de overkapping en de achtertuin, waardoor binnen en buiten naadloos in elkaar overlopen. Aangrenzend aan de keuken bevindt zich de praktische bijkeuken met kastenwand, vanuit de bijkeuken is de wasruimte bereikbaar met opstelplaats voor de wasmachine en droger in de op maat gemaakte kastenwand. Tot slot is er nog een ruime inpandige garage met volop bergruimte en de opstelplaats voor de cv-ketel en meterkast. De ruimte heeft dezelfde hoogwaardige afwerking als het huis en kan ideaal gebruikt worden als fitnessruimte of speelkamer.
Eerste verdieping:
De eerste verdieping bereik je via de trap in de entreehal. Hier vind je vier royale slaapkamers, een inloopkast, een moderne badkamer en een apart toilet. De hoofdslaapkamer is bijzonder ruim en straalt pure luxe uit, met een eigen badkamer voorzien van dubbele wastafel en inloopdouche, ingebouwde kasten én extra ruimte voor een inloopkast. Dankzij de dakkapellen geniet je hier van een prachtig licht en extra vloeroppervlak. De overige drie slaapkamers zijn ook groot genoeg voor tweepersoonsbedden en beschikken deels over inbouwkasten. Eén van de kamers wordt momenteel gebruikt als doorloop naar de tweede verdieping, maar is uiteraard ook als slaapkamer in te richten. Vanuit de overloop heb je toegang tot de tweede badkamer, voorzien van een ligbad, inloopdouche en dubbele wastafel met modern meubel.
Tweede verdieping:
De tweede verdieping is bereikbaar via een vaste trap en doet momenteel dienst als ruime bergzolder. Hier kun je eenvoudig al je seizoensspullen, koffers en overige niet-dagelijkse items netjes opbergen. Deze ruimte biedt tevens mogelijkheden voor het creëren van een extra (werk)kamer of hobbyruimte.
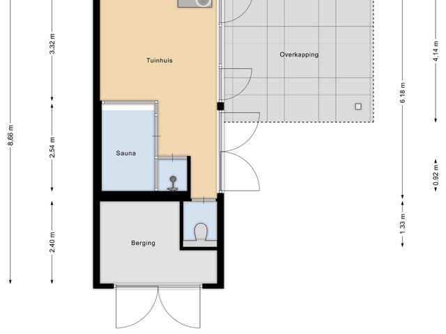
TUIN
De op het zuiden gelegen tuin is werkelijk een oase van rust en comfort, met een indrukwekkende breedte van maar liefst 24 meter. De tuin is keurig onderhouden en biedt diverse gezellige zithoeken, waaronder een overkapping direct aan het huis. Achterin de tuin staat een luxe bijgebouw dat van alle gemakken is voorzien: een heerlijke sauna, douche en toilet maken dit tot een ware wellnessruimte. Het bijgebouw is bovendien ruim genoeg voor een loungeset, waardoor je hier een tweede woonkamer in de tuin kunt creëren. Dit is de perfecte plek om te ontspannen, tot rust te komen of juist te genieten van lange zomeravonden met familie en vrienden. Tegen het bijgebouw aan treffen we ook nog een berging voor het opslaan van tuingereedschap.
LOCATIE
De woning ligt in een kindvriendelijke woonwijk in Haarsteeg, een dorp met een fijne, landelijke sfeer. Het dorp zelf beschikt onder andere over een basisschool, een voetbalclub en diverse voorzieningen. Voor de dagelijkse boodschappen en andere voorzieningen ben je binnen 5 minuten in het centrum van Vlijmen. Zoek je toch liever de stad op? Dankzij de goede verbinding met de A59 ben je binnen een kwartier in het centrum van 's-Hertogenbosch, waar leuke winkels en gezellige terrasjes te vinden zijn. Hierdoor woon je heerlijk in een landelijke omgeving maar met de voorzieningen van de stad binnen handbereik.
PLUSPUNTEN
- Vrijstaande, luxe woning uit 2019;
- Echt instapklaar en hoogwaardig afgewerkt;
- Onderhoudsarm, o.a. dakkapellen en dakoverstekken/goten van polyester dus geen schilderwerk;
- Vloerverwarming;
- Vier ruime slaapkamers en zolder;
- Hoofdslaapkamer compleet met eigen badkamer;
- Twee badkamers;
- Inpandige garage;
- Tuin op het zuiden;
- Luxe bijgebouw met eigen sauna;
- Energielabel A;
- 20 Zonnepanelen uit 2025;
Toon meer
INDELING
Begane grond:
Bij binnenkomst in de woning word je direct verwelkomd door een ruime entreehal met een prachtige vide die direct een gevoel van luxe en openheid geeft. Vanuit de hal heb je toegang tot het toilet, de trap naar de eerste verdieping, de woonkamer en de keuken. De royale woonkamer is een heerlijke leefruimte met volop daglicht dankzij de grote raampartijen. Hier is meer dan genoeg ruimte voor een comfortabele zithoek én een grote eettafel. De keuken ensuite is een echte eyecatcher: luxe uitgevoerd met een kookeiland en inbouwapparatuur zoals een koelkast, combi-oven en vaatwasser. De schuifpui in de keuken opent naar de overkapping en de achtertuin, waardoor binnen en buiten naadloos in elkaar overlopen. Aangrenzend aan de keuken bevindt zich de praktische bijkeuken met kastenwand, vanuit de bijkeuken is de wasruimte bereikbaar met opstelplaats voor de wasmachine en droger in de op maat gemaakte kastenwand. Tot slot is er nog een ruime inpandige garage met volop bergruimte en de opstelplaats voor de cv-ketel en meterkast. De ruimte heeft dezelfde hoogwaardige afwerking als het huis en kan ideaal gebruikt worden als fitnessruimte of speelkamer.
Eerste verdieping:
De eerste verdieping bereik je via de trap in de entreehal. Hier vind je vier royale slaapkamers, een inloopkast, een moderne badkamer en een apart toilet. De hoofdslaapkamer is bijzonder ruim en straalt pure luxe uit, met een eigen badkamer voorzien van dubbele wastafel en inloopdouche, ingebouwde kasten én extra ruimte voor een inloopkast. Dankzij de dakkapellen geniet je hier van een prachtig licht en extra vloeroppervlak. De overige drie slaapkamers zijn ook groot genoeg voor tweepersoonsbedden en beschikken deels over inbouwkasten. Eén van de kamers wordt momenteel gebruikt als doorloop naar de tweede verdieping, maar is uiteraard ook als slaapkamer in te richten. Vanuit de overloop heb je toegang tot de tweede badkamer, voorzien van een ligbad, inloopdouche en dubbele wastafel met modern meubel.
Tweede verdieping:
De tweede verdieping is bereikbaar via een vaste trap en doet momenteel dienst als ruime bergzolder. Hier kun je eenvoudig al je seizoensspullen, koffers en overige niet-dagelijkse items netjes opbergen. Deze ruimte biedt tevens mogelijkheden voor het creëren van een extra (werk)kamer of hobbyruimte.
TUIN
De op het zuiden gelegen tuin is werkelijk een oase van rust en comfort, met een indrukwekkende breedte van maar liefst 24 meter. De tuin is keurig onderhouden en biedt diverse gezellige zithoeken, waaronder een overkapping direct aan het huis. Achterin de tuin staat een luxe bijgebouw dat van alle gemakken is voorzien: een heerlijke sauna, douche en toilet maken dit tot een ware wellnessruimte. Het bijgebouw is bovendien ruim genoeg voor een loungeset, waardoor je hier een tweede woonkamer in de tuin kunt creëren. Dit is de perfecte plek om te ontspannen, tot rust te komen of juist te genieten van lange zomeravonden met familie en vrienden. Tegen het bijgebouw aan treffen we ook nog een berging voor het opslaan van tuingereedschap.
LOCATIE
De woning ligt in een kindvriendelijke woonwijk in Haarsteeg, een dorp met een fijne, landelijke sfeer. Het dorp zelf beschikt onder andere over een basisschool, een voetbalclub en diverse voorzieningen. Voor de dagelijkse boodschappen en andere voorzieningen ben je binnen 5 minuten in het centrum van Vlijmen. Zoek je toch liever de stad op? Dankzij de goede verbinding met de A59 ben je binnen een kwartier in het centrum van 's-Hertogenbosch, waar leuke winkels en gezellige terrasjes te vinden zijn. Hierdoor woon je heerlijk in een landelijke omgeving maar met de voorzieningen van de stad binnen handbereik.
PLUSPUNTEN
- Vrijstaande, luxe woning uit 2019;
- Echt instapklaar en hoogwaardig afgewerkt;
- Onderhoudsarm, o.a. dakkapellen en dakoverstekken/goten van polyester dus geen schilderwerk;
- Vloerverwarming;
- Vier ruime slaapkamers en zolder;
- Hoofdslaapkamer compleet met eigen badkamer;
- Twee badkamers;
- Inpandige garage;
- Tuin op het zuiden;
- Luxe bijgebouw met eigen sauna;
- Energielabel A;
- 20 Zonnepanelen uit 2025;
Kenmerken
Overdracht
- Vraagprijs
- € 1.325.000 k.k.
- Vraagprijs per m²
- € 5.300
- Aangeboden sinds
- 21 oktober 2025
- Status
- Verkocht onder voorbehoud
- Aanvaarding
- In overleg
Bouw
- Soort woning
- Woonhuis
- Bouwjaar
- 2019
- Soort dak
- Dwarskap
Oppervlakten en inhoud
- Oppervlakte wonen
- 250 m²
- Oppervlakte overige inpandige ruimte
- 48 m²
- Oppervlakte gebouwgebonden buitenruimte
- 24 m²
- Oppervlakte externe bergruimte
- 30 m²
- Perceel
- 713 m²
- Inhoud
- 1107 m³
Indeling
- Aantal kamers
- 6
- Aantal slaapkamers
- 4
- Aantal badkamers
- 3
- Badkamervoorzieningen
- Sauna, ligbad, dubbele wastafel, wastafelmeubel, inloopdouche en vloerverwarming
- Aantal woonlagen
- 4
- Voorzieningen
- Mechanische ventilatie, tv-kabel, glasvezel kabel en zonnepanelen
Energie
- Energielabel
- A+
- Isolatie
- Dakisolatie, muurisolatie, vloerisolatie, volledig geïsoleerd en hr glas
- Verwarming
- Cv-ketel
- Warm water
- Cv-ketel
- Cv-ketel
- Combiketel uit 2019
Buitenruimte
- Ligging
- Aan rustige weg, in woonwijk en in bosrijke omgeving
- Tuin
- Tuin rondom
- Tuin rondom
- Met achterom
Bergruimte
- Schuur/berging
- Vrijstaand hout
- Voorzieningen
- Voorzien van verwarming, voorzien van elektra en voorzien van water
Garage
- Soort garage
- Inpandig
- Capaciteit
- 1
- Voorzieningen
- Elektra