Word je warm van ons verhaal? Laten we samen kennismaken!
Neem contact op- 76 m²
- 2
- A
Omschrijving
Benedenwoning met eigen privé parkeerplaats en berging op afgesloten terrein!
Unieke locatie met enerzijds het bruisende centrum van 's-Hertogenbosch en anderzijds het groene Prins Hendrikpark - IJzeren Vrouw. Op enkele minuten loopafstand komt u in de sfeervolle binnenstad met haar kroegen en kleine restaurants. Toch woont u hier op een erg rustige plek.
Alle voorzieningen, zoals supermarkten voor dagelijkse boodschappen, zijn op enkele minuten loopafstand bereikbaar. Hier zou u willen wonen! Belangrijk is te noemen dat het station 's-Hertogenbosch CS op circa 5 minuten fietsen is en u bijvoorbeeld binnen het uur op de Dam in Amsterdam staat! En hadden we al genoemd dat Het Bossche Broek binnen enkele minuten bereikbaar is? Een fantastisch en door de historie gevormd uitgebreid natuurgebied. Kortom, meer dan genoeg te ontdekken in de directe omgeving van de woning!
Indeling
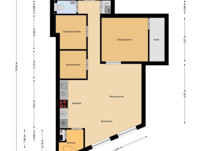
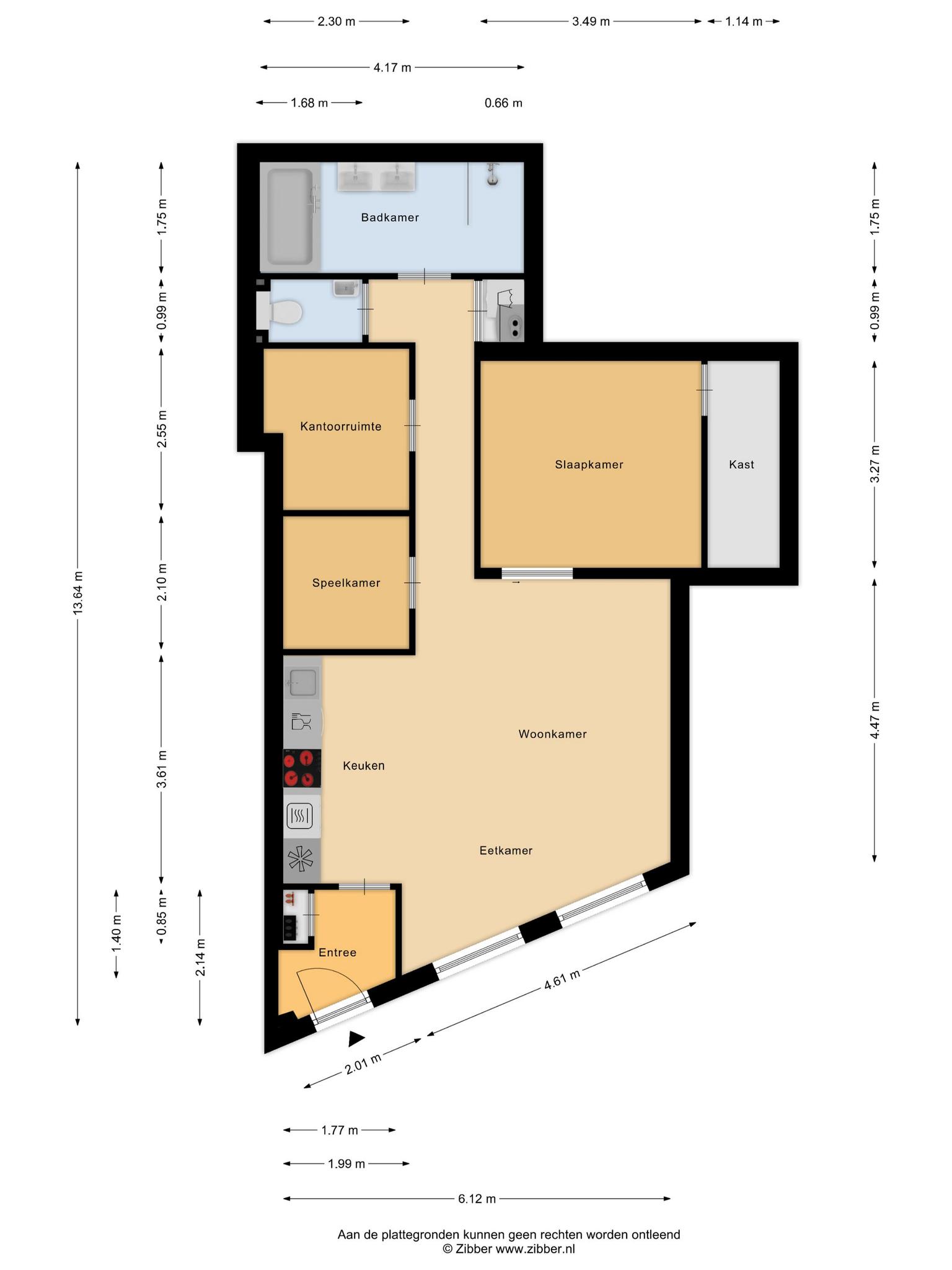
Dit appartement heeft een eigen voordeur die direct via de straat te bereiken is. De hal biedt toegang tot de garderobe en meterkast. Via een deur komen we in de woonkamer. Dit appartement uit 2017 is fantastisch afgewerkt en voorzien van grote raampartijen aan de voorzijde van het appartement. De open keuken is van alle gemakken voorzien en alle wanden zijn strak gestuct. Op de vloer ligt een tegelvloer met vloerverwarming.
Via een houten schuifdeur is de ruime slaapkamer met vaste kast bereikbaar. Vanuit de hal zijn de overige ruimtes te bereiken. De eerste ruimte wordt door de huidige bewoner gebruikt als logeerkamer, maar is ook geschikt als kantoorruimte. Daarnaast is de voormalige eetruimte omgebouwd tot een extra kamer, die nu wordt gebruikt als babykamer, wat de flexibiliteit en mogelijkheden van dit appartement benadrukt.
De toiletruimte is strak afgewerkt en voorzien van een hangend toilet en fonteintje. In een aparte ruimte is de wasmachineaansluiting en CV combiketel weggewerkt.
De ruime badkamer is voorzien van een dubbele wastafel, douche en ligbad. Achter de woning ligt een klein afgesloten parkeerterrein waar dit appartement een privé parkeerplaats heeft. Dit terrein is via het hek aan de zijkant van het gebouw te bereiken. Tevens vindt u hier de eigen privé berging.
Het appartement is onderdeel van een kleinschalige VvE. De maandelijkse bijdrage bedraagt €104,11
Bijzonderheden:
- Privé parkeerplaats en berging op afgesloten terrein achter het complex;
- Goed geïsoleerde woning;
- Gehele woning voorzien van vloerverwarming;
- Ruime open keuken voorzien van alle gemakken;
- Badkamer voorzien van inloopdouche, dubbele wastafels en ligbad.
Toon meer
Unieke locatie met enerzijds het bruisende centrum van 's-Hertogenbosch en anderzijds het groene Prins Hendrikpark - IJzeren Vrouw. Op enkele minuten loopafstand komt u in de sfeervolle binnenstad met haar kroegen en kleine restaurants. Toch woont u hier op een erg rustige plek.
Alle voorzieningen, zoals supermarkten voor dagelijkse boodschappen, zijn op enkele minuten loopafstand bereikbaar. Hier zou u willen wonen! Belangrijk is te noemen dat het station 's-Hertogenbosch CS op circa 5 minuten fietsen is en u bijvoorbeeld binnen het uur op de Dam in Amsterdam staat! En hadden we al genoemd dat Het Bossche Broek binnen enkele minuten bereikbaar is? Een fantastisch en door de historie gevormd uitgebreid natuurgebied. Kortom, meer dan genoeg te ontdekken in de directe omgeving van de woning!
Indeling
Dit appartement heeft een eigen voordeur die direct via de straat te bereiken is. De hal biedt toegang tot de garderobe en meterkast. Via een deur komen we in de woonkamer. Dit appartement uit 2017 is fantastisch afgewerkt en voorzien van grote raampartijen aan de voorzijde van het appartement. De open keuken is van alle gemakken voorzien en alle wanden zijn strak gestuct. Op de vloer ligt een tegelvloer met vloerverwarming.
Via een houten schuifdeur is de ruime slaapkamer met vaste kast bereikbaar. Vanuit de hal zijn de overige ruimtes te bereiken. De eerste ruimte wordt door de huidige bewoner gebruikt als logeerkamer, maar is ook geschikt als kantoorruimte. Daarnaast is de voormalige eetruimte omgebouwd tot een extra kamer, die nu wordt gebruikt als babykamer, wat de flexibiliteit en mogelijkheden van dit appartement benadrukt.
De toiletruimte is strak afgewerkt en voorzien van een hangend toilet en fonteintje. In een aparte ruimte is de wasmachineaansluiting en CV combiketel weggewerkt.
De ruime badkamer is voorzien van een dubbele wastafel, douche en ligbad. Achter de woning ligt een klein afgesloten parkeerterrein waar dit appartement een privé parkeerplaats heeft. Dit terrein is via het hek aan de zijkant van het gebouw te bereiken. Tevens vindt u hier de eigen privé berging.
Het appartement is onderdeel van een kleinschalige VvE. De maandelijkse bijdrage bedraagt €104,11
Bijzonderheden:
- Privé parkeerplaats en berging op afgesloten terrein achter het complex;
- Goed geïsoleerde woning;
- Gehele woning voorzien van vloerverwarming;
- Ruime open keuken voorzien van alle gemakken;
- Badkamer voorzien van inloopdouche, dubbele wastafels en ligbad.
Kenmerken
Overdracht
- Aangeboden sinds
- 19 juni 2025
- Status
- Verkocht
- Aanvaarding
- In overleg
- Bijdrage VvE
- € 104,11 per maand
Bouw
- Soort woning
- Appartement
- Soort appartement
- Bovenwoning
- Bouwjaar
- 2017
- Soort dak
- Plat dak
Oppervlakten en inhoud
- Oppervlakte wonen
- 76 m²
- Oppervlakte externe bergruimte
- 3 m²
- Inhoud
- 250 m³
Indeling
- Aantal kamers
- 4
- Aantal slaapkamers
- 2
- Aantal badkamers
- 1
- Badkamervoorzieningen
- Ligbad, dubbele wastafel en inloopdouche
- Aantal woonlagen
- 1
- Gelegen op
- 1
- Voorzieningen
- Mechanische ventilatie en tv-kabel
Energie
- Energielabel
- A
- Isolatie
- Dakisolatie, muurisolatie en vloerisolatie
- Verwarming
- Cv-ketel
- Warm water
- Cv-ketel
- Cv-ketel
- Remeha (combiketel uit 2020)
Buitenruimte
- Ligging
- In centrum
- Tuin
- Geen tuin
Bergruimte
- Schuur/berging
- Vrijstaand hout
Garage
- Soort garage
- Geen garage
Vereniging van Eigenaren
- Inschrijving KvK
- Ja
- Jaarlijkse vergadering
- Ja
- Periodieke bijdrage
- Reservefonds aanwezig
- Ja
- Onderhoudsplan
- Ja
- Opstalverzekering
- Ja