Word je warm van ons verhaal? Laten we samen kennismaken!
Neem contact op- 83 m²
- 2
- A
Omschrijving
Modern, luxe afgewerkt 3 kamer appartement, gelegen op de 11e verdieping, met prachtig uitzicht in het bruisende Paleiskwartier.
In het hart van het levendige Paleiskwartier in ’s-Hertogenbosch ligt dit stijlvolle en comfortabele appartement. Met een ruim balkon, een luxe keuken met kookeiland en een weids uitzicht is dit de ideale plek voor wie van modern wonen houdt, maar ook wil genieten van rust en ruimte. Dit appartement is opgeleverd in 2017, is fijn ingedeeld, goed afgewerkt en ontworpen voor optimaal woonplezier.
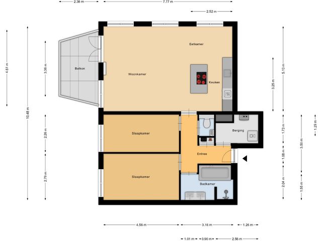
Indeling
Via de verzorgde, gezamenlijke entree met hoog plafond kom je bij het trappenhuis en de liftinstallatie. Voor de goede bereikbaarheid van het appartement zijn er twee liftinstallaties geplaatst.
In het appartement kom je via de entree kom je in de ruime hal die toegang geeft tot alle vertrekken. De lichte woonkamer en keuken vormen samen één open leefruimte met grote raampartijen, waardoor er veel daglicht binnenvalt en je optimaal kunt genieten van het prachtige uitzicht.
De moderne open keuken is geplaatst in een wandopstelling met een fraai kookeiland en afgewerkt in hoogglans. De keuken is voorzien van voldoende kastruimte met diverse Siemens inbouwapparatuur zoals een vaatwasser, koelkast, vriezer en stoomoven. Het kookeiland beschikt over een grote inductiekookplaat (inclusief flexibele zone) en eveneens over ruime lades die zorgen voor voldoende opbergruimte. Tijdens het koken kijk je gezellig de woonkamer in of geniet je van het prachtige uitzicht.
Vanuit de woonkamer stap je zo het royale balkon op, waar je in alle rust kunt ontspannen. Er is voldoende ruimte voor een zithoek en beplanting en de glazen wanden zorgen voor een vrij uitzicht! Hier kijk je uit op het Westerpark, de Vughtse Gement en de bruisende Onderwijsboulevard.
Het appartement beschikt over twee goed bemeten slaapkamers met net als de rest van het huis een strakke vloer met grootformaat tegels. Door de ligging aan de voorzijde is het uitzicht ook vanuit de slaapkamer te bewonderen.
De luxe badkamer is van alle gemakken voorzien en beschikt over een ligbad, dubbele wastafel met wastafelmeubel, een ruime inloopdouche met hand- en regendouche en handdoek-radiator.
Vanuit de hal is ook de berging, een aparte meterkast en het separate toilet bereikbaar. De berging heeft een wasmachineaansluiting en hier is de DUCO mechanische ventilatie geïnstalleerd. Daarnaast is er voldoende opbergruimte. Het toilet is luxe afgewerkt met een zwevend toilet en fonteitje
Parkeerkelder
In het souterrain van het complex bevindt zich op niveau -2 een privé berging en een parkeerplaats in de afsluitbare parkeerkelder. Op niveau -1 bevindt zich de gemeenschappelijke fietsenstalling. De parkeerkelder is toegankelijk via een elektrisch bedienbare poort.
Locatie
Het Paleiskwartier staat bekend om zijn moderne architectuur, gezellige horeca en uitstekende bereikbaarheid. Op loopafstand vind je het Centraal Station, supermarkten, restaurants, bioscoop en gezellige cafés. Bovendien ben je via de Paleisbrug binnen enkele minuten in de historische binnenstad van ’s-Hertogenbosch of op de uitvalswegen richting de rest van Nederland. De uitvalswegen naar de snelweg zijn binnen een aantal minuten bereikbaar. Voor natuurliefhebbers is er ook genoeg te doen. Naast het prachtige groene uitzicht zit je zo in 'De Gement' voor een wandeling of fietstocht en je fietst zo door naar de Loonse en Drunense duinen.
Bijzonderheden
- Hoekappartement met prachtig vrij uitzicht over onder andere de stad met de Sint Jans kathedraal en de Vughtse Gement
- Moderne keuken met kookeiland
- Luxe afgewerkte badkamer met ligbad, inloopdouche en dubbele wastafel
- Ruim balkon met vrij uitzicht
- Een (nieuw) aangelegde gemeenschappelijke binnentuin
- Eigen parkeerplaats en gemeenschappelijke fietsenstalling in afgesloten parkeergarage
- Gelegen in het bruisende Paleiskwartier met alle voorzieningen op loopafstand
Toon meer
In het hart van het levendige Paleiskwartier in ’s-Hertogenbosch ligt dit stijlvolle en comfortabele appartement. Met een ruim balkon, een luxe keuken met kookeiland en een weids uitzicht is dit de ideale plek voor wie van modern wonen houdt, maar ook wil genieten van rust en ruimte. Dit appartement is opgeleverd in 2017, is fijn ingedeeld, goed afgewerkt en ontworpen voor optimaal woonplezier.
Indeling
Via de verzorgde, gezamenlijke entree met hoog plafond kom je bij het trappenhuis en de liftinstallatie. Voor de goede bereikbaarheid van het appartement zijn er twee liftinstallaties geplaatst.
In het appartement kom je via de entree kom je in de ruime hal die toegang geeft tot alle vertrekken. De lichte woonkamer en keuken vormen samen één open leefruimte met grote raampartijen, waardoor er veel daglicht binnenvalt en je optimaal kunt genieten van het prachtige uitzicht.
De moderne open keuken is geplaatst in een wandopstelling met een fraai kookeiland en afgewerkt in hoogglans. De keuken is voorzien van voldoende kastruimte met diverse Siemens inbouwapparatuur zoals een vaatwasser, koelkast, vriezer en stoomoven. Het kookeiland beschikt over een grote inductiekookplaat (inclusief flexibele zone) en eveneens over ruime lades die zorgen voor voldoende opbergruimte. Tijdens het koken kijk je gezellig de woonkamer in of geniet je van het prachtige uitzicht.
Vanuit de woonkamer stap je zo het royale balkon op, waar je in alle rust kunt ontspannen. Er is voldoende ruimte voor een zithoek en beplanting en de glazen wanden zorgen voor een vrij uitzicht! Hier kijk je uit op het Westerpark, de Vughtse Gement en de bruisende Onderwijsboulevard.
Het appartement beschikt over twee goed bemeten slaapkamers met net als de rest van het huis een strakke vloer met grootformaat tegels. Door de ligging aan de voorzijde is het uitzicht ook vanuit de slaapkamer te bewonderen.
De luxe badkamer is van alle gemakken voorzien en beschikt over een ligbad, dubbele wastafel met wastafelmeubel, een ruime inloopdouche met hand- en regendouche en handdoek-radiator.
Vanuit de hal is ook de berging, een aparte meterkast en het separate toilet bereikbaar. De berging heeft een wasmachineaansluiting en hier is de DUCO mechanische ventilatie geïnstalleerd. Daarnaast is er voldoende opbergruimte. Het toilet is luxe afgewerkt met een zwevend toilet en fonteitje
Parkeerkelder
In het souterrain van het complex bevindt zich op niveau -2 een privé berging en een parkeerplaats in de afsluitbare parkeerkelder. Op niveau -1 bevindt zich de gemeenschappelijke fietsenstalling. De parkeerkelder is toegankelijk via een elektrisch bedienbare poort.
Locatie
Het Paleiskwartier staat bekend om zijn moderne architectuur, gezellige horeca en uitstekende bereikbaarheid. Op loopafstand vind je het Centraal Station, supermarkten, restaurants, bioscoop en gezellige cafés. Bovendien ben je via de Paleisbrug binnen enkele minuten in de historische binnenstad van ’s-Hertogenbosch of op de uitvalswegen richting de rest van Nederland. De uitvalswegen naar de snelweg zijn binnen een aantal minuten bereikbaar. Voor natuurliefhebbers is er ook genoeg te doen. Naast het prachtige groene uitzicht zit je zo in 'De Gement' voor een wandeling of fietstocht en je fietst zo door naar de Loonse en Drunense duinen.
Bijzonderheden
- Hoekappartement met prachtig vrij uitzicht over onder andere de stad met de Sint Jans kathedraal en de Vughtse Gement
- Moderne keuken met kookeiland
- Luxe afgewerkte badkamer met ligbad, inloopdouche en dubbele wastafel
- Ruim balkon met vrij uitzicht
- Een (nieuw) aangelegde gemeenschappelijke binnentuin
- Eigen parkeerplaats en gemeenschappelijke fietsenstalling in afgesloten parkeergarage
- Gelegen in het bruisende Paleiskwartier met alle voorzieningen op loopafstand
Kenmerken
Overdracht
- Aangeboden sinds
- 16 augustus 2025
- Status
- Verkocht
- Aanvaarding
- In overleg
- Bijdrage VvE
- € 223,00 per maand
Bouw
- Soort woning
- Appartement
- Soort appartement
- Portiekflat
- Bouwjaar
- 2017
Oppervlakten en inhoud
- Oppervlakte wonen
- 83 m²
- Oppervlakte gebouwgebonden buitenruimte
- 10 m²
- Oppervlakte externe bergruimte
- 17 m²
- Inhoud
- 275 m³
Indeling
- Aantal kamers
- 3
- Aantal slaapkamers
- 2
- Aantal badkamers
- 1
- Badkamervoorzieningen
- Ligbad, dubbele wastafel, wastafelmeubel en inloopdouche
- Aantal woonlagen
- 1
- Voorzieningen
- Mechanische ventilatie en lift
Energie
- Energielabel
- A
- Isolatie
- Volledig geïsoleerd en hr glas
- Verwarming
- Stadsverwarming en vloerverwarming geheel
- Warm water
- Stadsverwarming
Buitenruimte
- Ligging
- In centrum, in woonwijk en vrij uitzicht
- Tuin
- Geen tuin
Bergruimte
- Schuur/berging
- Inpandig
- Voorzieningen
- Voorzien van elektra
Garage
- Soort garage
- Geen garage
Vereniging van Eigenaren
- Inschrijving KvK
- Ja
- Jaarlijkse vergadering
- Ja
- Periodieke bijdrage
- Reservefonds aanwezig
- Ja
- Onderhoudsplan
- Ja
- Opstalverzekering
- Ja