Word je warm van ons verhaal? Laten we samen kennismaken!
Neem contact op- 172 m²
- 316 m²
- 5
- B
Omschrijving
Deze sfeervolle, vrijstaande woning met maar liefst 5 ruime slaapkamers met een zonnige tuin op het zuiden is een echte aanrader! De woning is goed onderhouden en ligt op loopafstand van het gezellige centrum. Bovendien beschikt de woning over een energielabel B.
Indeling
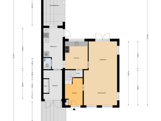
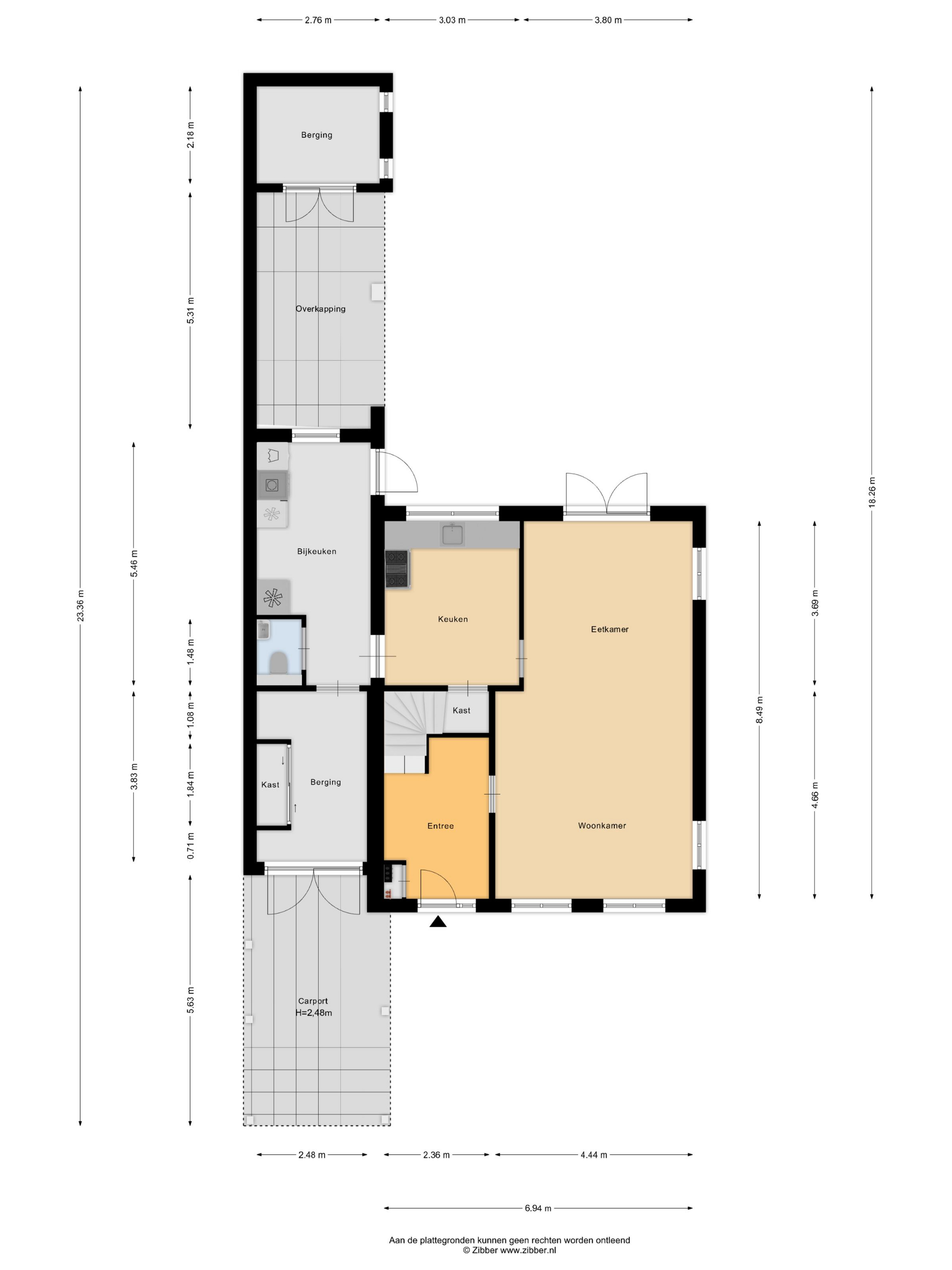
Begane grond:
Bij binnenkomst treffen we een lichte hal met natuurstenen vloer, meterkast en trapopgang. Vanuit de hal bereiken we de ruime woonkamer, die eveneens een natuurstenen vloer heeft en voorzien is van vloerverwarming en openslaande deuren naar de tuin.
Aangrenzend ligt de gezellige woonkeuken met een praktische kelderkast en een op maat gemaakt keukenblok in hoekopstelling. De keuken is uitgerust met een Boretti 6-pits gasfornuis en oven, afzuigkap, spoelbak, granieten werkblad en voldoende kastruimte.
Vanuit de keuken heb je toegang tot de bijkeuken, waar zich ook de toiletruimte bevindt, aansluitingen voor de wasmachine en droger, en een deur naar zowel de tuin met overkapping als de inpandige berging aan de voorzijde. De gehele begane grond is voorzien van comfortabele vloerverwarming. De carport is bereikbaar via de berging en biedt toegang tot de oprit en de straat.
Eerste verdieping:
Op de eerste verdieping zijn drie zeer ruime slaapkamers te vinden. De grootste slaapkamer (ca. 15 m²) ligt aan de voorzijde en de andere twee slaapkamers (beide ca. 13 m²) aan de achterzijde. De moderne badkamer (uit 2014) is volledig betegeld en voorzien van een inloopdouche, wandcloset en dubbel wastafelmeubel.
Tweede verdieping:
Via een vaste trap kom je op de tweede verdieping. Hier vinden we twee ruime slaapkamers (beide ca. 12 m²), beide voorzien van een vaste kastenwand en wastafel. Daarnaast is er een handige kast op de overloop waar de cv-ketel en een grote boiler (combisysteem) zijn opgesteld.
Tuin:
De achtertuin, gelegen op het zuiden, biedt volop privacy en is ideaal voor tuinliefhebbers. Met een diepte van 9 meter en een breedte van 12 meter heb je voldoende ruimte om te ontspannen op het terras bij de openslaande deuren, onder de overkapping (2015) of op het gazon. Via de zijkant is de tuin toegankelijk.
Carport:
Aan de voorkant van de woning vind je de berging met een deur naar de carport, die toegang geeft tot de oprit. De carport biedt extra beschutting voor de auto.
Kortom, een ruime, instapklare woning met veel comfort en een uitstekende ligging.
Bijzonderheden:
- Waterput gezamenlijk in gebruik met de buren;
- Ruime woning met 5 volwaardige slaapkamers;
- Jonge woning uit 2006 met energielabel B;
- Woning beschikt grotendeels over horren;
- Ruime oprit met ruimte voor twee auto's, waarvan één onder de carport;
- Moderne badkamer en opstelling met inloopdouche (2014);
- In de garage is krachtstroom aanwezig;
- Oplevering in overleg.
Toon meer
Indeling
Begane grond:
Bij binnenkomst treffen we een lichte hal met natuurstenen vloer, meterkast en trapopgang. Vanuit de hal bereiken we de ruime woonkamer, die eveneens een natuurstenen vloer heeft en voorzien is van vloerverwarming en openslaande deuren naar de tuin.
Aangrenzend ligt de gezellige woonkeuken met een praktische kelderkast en een op maat gemaakt keukenblok in hoekopstelling. De keuken is uitgerust met een Boretti 6-pits gasfornuis en oven, afzuigkap, spoelbak, granieten werkblad en voldoende kastruimte.
Vanuit de keuken heb je toegang tot de bijkeuken, waar zich ook de toiletruimte bevindt, aansluitingen voor de wasmachine en droger, en een deur naar zowel de tuin met overkapping als de inpandige berging aan de voorzijde. De gehele begane grond is voorzien van comfortabele vloerverwarming. De carport is bereikbaar via de berging en biedt toegang tot de oprit en de straat.
Eerste verdieping:
Op de eerste verdieping zijn drie zeer ruime slaapkamers te vinden. De grootste slaapkamer (ca. 15 m²) ligt aan de voorzijde en de andere twee slaapkamers (beide ca. 13 m²) aan de achterzijde. De moderne badkamer (uit 2014) is volledig betegeld en voorzien van een inloopdouche, wandcloset en dubbel wastafelmeubel.
Tweede verdieping:
Via een vaste trap kom je op de tweede verdieping. Hier vinden we twee ruime slaapkamers (beide ca. 12 m²), beide voorzien van een vaste kastenwand en wastafel. Daarnaast is er een handige kast op de overloop waar de cv-ketel en een grote boiler (combisysteem) zijn opgesteld.
Tuin:
De achtertuin, gelegen op het zuiden, biedt volop privacy en is ideaal voor tuinliefhebbers. Met een diepte van 9 meter en een breedte van 12 meter heb je voldoende ruimte om te ontspannen op het terras bij de openslaande deuren, onder de overkapping (2015) of op het gazon. Via de zijkant is de tuin toegankelijk.
Carport:
Aan de voorkant van de woning vind je de berging met een deur naar de carport, die toegang geeft tot de oprit. De carport biedt extra beschutting voor de auto.
Kortom, een ruime, instapklare woning met veel comfort en een uitstekende ligging.
Bijzonderheden:
- Waterput gezamenlijk in gebruik met de buren;
- Ruime woning met 5 volwaardige slaapkamers;
- Jonge woning uit 2006 met energielabel B;
- Woning beschikt grotendeels over horren;
- Ruime oprit met ruimte voor twee auto's, waarvan één onder de carport;
- Moderne badkamer en opstelling met inloopdouche (2014);
- In de garage is krachtstroom aanwezig;
- Oplevering in overleg.
Kenmerken
Overdracht
- Aangeboden sinds
- 4 augustus 2025
- Status
- Verkocht
- Aanvaarding
- In overleg
Bouw
- Soort woning
- Woonhuis
- Bouwjaar
- 2006
- Soort dak
- Zadeldak
Oppervlakten en inhoud
- Oppervlakte wonen
- 172 m²
- Oppervlakte overige inpandige ruimte
- 10 m²
- Oppervlakte gebouwgebonden buitenruimte
- 35 m²
- Oppervlakte externe bergruimte
- 6 m²
- Perceel
- 316 m²
- Inhoud
- 622 m³
Indeling
- Aantal kamers
- 7
- Aantal slaapkamers
- 5
- Aantal badkamers
- 1
- Badkamervoorzieningen
- Toilet, dubbele wastafel, wastafelmeubel en inloopdouche
- Aantal woonlagen
- 3
- Voorzieningen
- Tv-kabel, glasvezel kabel en natuurlijke ventilatie
Energie
- Energielabel
- B
- Isolatie
- Dakisolatie, muurisolatie, vloerisolatie, dubbel glas en volledig geïsoleerd
- Verwarming
- Cv-ketel en vloerverwarming gedeeltelijk
- Warm water
- Cv-ketel
- Cv-ketel
- Nefit (combiketel uit 2006)
Buitenruimte
- Ligging
- Aan rustige weg, in woonwijk en in bosrijke omgeving
- Tuin
- Achtertuin en voortuin
- Achtertuin
- 112 m² gelegen op het zuiden met achterom
Bergruimte
- Schuur/berging
- Aangebouwd hout
- Voorzieningen
- Voorzien van elektra
Garage
- Soort garage
- Carport en geen garage