Word je warm van ons verhaal? Laten we samen kennismaken!
Neem contact op- 150 m²
- 424 m²
- 4
- B
Omschrijving
Deze prachtig gerenoveerde 2-onder-1-kap woning is een droomhuis voor gezinnen die op zoek zijn naar rust, ruimte en comfort. De woning is volledig vernieuwd, inclusief een moderne keuken uit oktober 2024, en biedt je alle ruimte om te genieten van het gezinsleven. Dankzij de grote raampartijen komt het daglicht volop naar binnen en creëert het een lichte, open sfeer. De woning beschikt over vier slaapkamers, perfect voor een gezin of een thuiswerkplek. Daarnaast is de tuin met tuinkeuken en overkapping een ideale plek voor buitenleven. Wacht niet langer en ontdek waarom dit huis de ideale plek is voor jou en je gezin!
INDELING
BEGANE GROND:
Via de voordeur betreden we de entreehal welke toegang biedt tot de woonkamer. De ruime woonkamer van deze woning is de ideale plek om te ontspannen en te genieten van het gezinsleven. Dankzij de grote raampartijen komt er volop natuurlijk licht naar binnen, wat de ruimte heerlijk luchtig en open maakt. De gezellige gashaard zorgt voor extra sfeer, terwijl de airco voor een aangename temperatuur zorgt, zelfs op de warme zomerdagen. Door de dubbele tuindeuren heb je direct toegang tot de tuin, waardoor je de buitenruimte naadloos bij je woonkamer kunt betrekken. Of je nu een gezellige zithoek of een eettafel wilt plaatsen, de ruimte biedt volop mogelijkheden om het naar jouw wens in te richten. De moderne keuken, in oktober 2024 geplaatst, is van alle gemakken voorzien, met inbouwapparatuur zoals een vaatwasser, inductiekookplaat, koelkast en oven. Aan de achterzijde van de woning treffen we nog een extra kamer, welke geheel naar eigen wens is in te richten en kan gebruikt worden als ruimte om te ontspannen, hobbyruimte of kantoorruimte. Achter deze kamer treffen we nog een diepe berging met opstelplaats voor witgoedapparatuur, welke geschikt is voor het bergen van de fietsen of tuingereedschap.
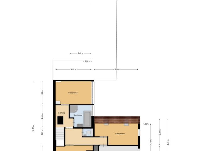
EERSTE VERDIEPING
Op de eerste verdieping vind je maar liefst vier slaapkamers, ideaal voor een gezin of voor diegenen die behoefte hebben aan extra werk- of hobbyruimtes. Alle kamers zijn voorzien van nieuw stucwerk, waardoor de ruimte strak en fris aanvoelt. De luxe badkamer is uitgerust met een douche, ligbad en een wastafel, de perfecte plek om te ontspannen na een lange dag. De vierde slaapkamer is momenteel ingericht als een praktische inloopkast, maar biedt uiteraard de mogelijkheid om ook als slaapkamer of werkkamer te dienen. Deze verdieping biedt volop flexibiliteit en comfort voor het hele gezin.
ZOLDER
De woning is voorzien van een ruime bergzolder welke bereikbaar is middels een vlizotrap. Dankzij deze bergzolder heb je voldoende ruimte in de woning om de spullen op te bergen die je niet alledaags gebruikt.
TUIN
De ruime, diepe tuin, gelegen op het noorden, is een zonnig paradijs waar je het hele jaar door kunt genieten van de buitenlucht. Dankzij de diepte komt er veel zon binnen, terwijl je kunt genieten van het vrije uitzicht en privacy. Er is volop ruimte voor verschillende zithoeken, waardoor je altijd een fijne plek vindt om te relaxen of gezellig te dineren. De tuin is voorzien van een tuinkeuken bij de overkapping, ideaal voor barbecues of buitenkoken, en een berging voor het opbergen van tuinspullen. Dit is de perfecte plek om te genieten van het buitenleven, ongeacht het seizoen! En dankzij de dubbele tuindeuren in de woonkamer staat de tuin heerlijk in directe verbinding met de woning!
LOCATIE
Deze woning is gelegen op een uitstekende locatie aan de Hoofdstraat in Sprang-Capelle, een rustige en gezellige plek die ideaal is voor gezinnen. Je vindt hier alles wat je nodig hebt binnen handbereik, van lokale winkels tot scholen en sportfaciliteiten. Dankzij de centrale ligging ben je snel in de omliggende natuur, perfect voor wandel- en fietstochten. Bovendien ben je met de auto in een mum van tijd in nabijgelegen steden zoals ’s-Hertogenbosch en Tilburg, waar je kunt genieten van het stadsleven. Een uitstekende combinatie van rust en bereikbaarheid!
BIJZONDERHEDEN
- Volledig gerenoveerd, dus instapklaar
- Nieuwe keuken (oktober 2024) met luxe inbouwapparatuur
- Wanden recent gestuct
- Ruime woonkamer met veel lichtinval en genoeg plek voor een eet- en zithoek
- 4 slaapkamers, perfect voor een gezin
- Grote tuin met veel zon en een vrij uitzicht
- Tuinkeuken, ideaal voor een gezellig barbecue
Toon meer
INDELING
BEGANE GROND:
Via de voordeur betreden we de entreehal welke toegang biedt tot de woonkamer. De ruime woonkamer van deze woning is de ideale plek om te ontspannen en te genieten van het gezinsleven. Dankzij de grote raampartijen komt er volop natuurlijk licht naar binnen, wat de ruimte heerlijk luchtig en open maakt. De gezellige gashaard zorgt voor extra sfeer, terwijl de airco voor een aangename temperatuur zorgt, zelfs op de warme zomerdagen. Door de dubbele tuindeuren heb je direct toegang tot de tuin, waardoor je de buitenruimte naadloos bij je woonkamer kunt betrekken. Of je nu een gezellige zithoek of een eettafel wilt plaatsen, de ruimte biedt volop mogelijkheden om het naar jouw wens in te richten. De moderne keuken, in oktober 2024 geplaatst, is van alle gemakken voorzien, met inbouwapparatuur zoals een vaatwasser, inductiekookplaat, koelkast en oven. Aan de achterzijde van de woning treffen we nog een extra kamer, welke geheel naar eigen wens is in te richten en kan gebruikt worden als ruimte om te ontspannen, hobbyruimte of kantoorruimte. Achter deze kamer treffen we nog een diepe berging met opstelplaats voor witgoedapparatuur, welke geschikt is voor het bergen van de fietsen of tuingereedschap.
EERSTE VERDIEPING
Op de eerste verdieping vind je maar liefst vier slaapkamers, ideaal voor een gezin of voor diegenen die behoefte hebben aan extra werk- of hobbyruimtes. Alle kamers zijn voorzien van nieuw stucwerk, waardoor de ruimte strak en fris aanvoelt. De luxe badkamer is uitgerust met een douche, ligbad en een wastafel, de perfecte plek om te ontspannen na een lange dag. De vierde slaapkamer is momenteel ingericht als een praktische inloopkast, maar biedt uiteraard de mogelijkheid om ook als slaapkamer of werkkamer te dienen. Deze verdieping biedt volop flexibiliteit en comfort voor het hele gezin.
ZOLDER
De woning is voorzien van een ruime bergzolder welke bereikbaar is middels een vlizotrap. Dankzij deze bergzolder heb je voldoende ruimte in de woning om de spullen op te bergen die je niet alledaags gebruikt.
TUIN
De ruime, diepe tuin, gelegen op het noorden, is een zonnig paradijs waar je het hele jaar door kunt genieten van de buitenlucht. Dankzij de diepte komt er veel zon binnen, terwijl je kunt genieten van het vrije uitzicht en privacy. Er is volop ruimte voor verschillende zithoeken, waardoor je altijd een fijne plek vindt om te relaxen of gezellig te dineren. De tuin is voorzien van een tuinkeuken bij de overkapping, ideaal voor barbecues of buitenkoken, en een berging voor het opbergen van tuinspullen. Dit is de perfecte plek om te genieten van het buitenleven, ongeacht het seizoen! En dankzij de dubbele tuindeuren in de woonkamer staat de tuin heerlijk in directe verbinding met de woning!
LOCATIE
Deze woning is gelegen op een uitstekende locatie aan de Hoofdstraat in Sprang-Capelle, een rustige en gezellige plek die ideaal is voor gezinnen. Je vindt hier alles wat je nodig hebt binnen handbereik, van lokale winkels tot scholen en sportfaciliteiten. Dankzij de centrale ligging ben je snel in de omliggende natuur, perfect voor wandel- en fietstochten. Bovendien ben je met de auto in een mum van tijd in nabijgelegen steden zoals ’s-Hertogenbosch en Tilburg, waar je kunt genieten van het stadsleven. Een uitstekende combinatie van rust en bereikbaarheid!
BIJZONDERHEDEN
- Volledig gerenoveerd, dus instapklaar
- Nieuwe keuken (oktober 2024) met luxe inbouwapparatuur
- Wanden recent gestuct
- Ruime woonkamer met veel lichtinval en genoeg plek voor een eet- en zithoek
- 4 slaapkamers, perfect voor een gezin
- Grote tuin met veel zon en een vrij uitzicht
- Tuinkeuken, ideaal voor een gezellig barbecue
Kenmerken
Overdracht
- Aangeboden sinds
- 4 augustus 2025
- Status
- Verkocht
- Aanvaarding
- In overleg
Bouw
- Soort woning
- Woonhuis
- Bouwjaar
- 1915
- Soort dak
- Dwarskap
Oppervlakten en inhoud
- Oppervlakte wonen
- 150 m²
- Oppervlakte overige inpandige ruimte
- 15 m²
- Oppervlakte externe bergruimte
- 6 m²
- Perceel
- 424 m²
- Inhoud
- 587 m³
Indeling
- Aantal kamers
- 6
- Aantal slaapkamers
- 4
- Aantal badkamers
- 1
- Badkamervoorzieningen
- Ligbad, douche, wastafel en wastafelmeubel
- Aantal woonlagen
- 3
- Voorzieningen
- Mechanische ventilatie, rolluiken, tv-kabel, airconditioning, rookkanaal, dakraam en zonnepanelen
Energie
- Energielabel
- B
- Isolatie
- Dakisolatie, muurisolatie, vloerisolatie en hr glas
- Verwarming
- Cv-ketel en gashaard
- Warm water
- Cv-ketel
- Cv-ketel
- Vaillant HR Solide Plus (combiketel uit 2010)
Buitenruimte
- Ligging
- In woonwijk, vrij uitzicht, open ligging, in bosrijke omgeving en landelijk gelegen
- Tuin
- Achtertuin en zijtuin
- Achtertuin
- 257 m² gelegen op het noorden met achterom
Bergruimte
- Schuur/berging
- Aangebouwd hout
- Voorzieningen
- Voorzien van elektra en voorzien van water
Garage
- Soort garage
- Geen garage