Word je warm van ons verhaal? Laten we samen kennismaken!
Neem contact op- 119 m²
- 154 m²
- 4
- A++++
Omschrijving
Ben jij op zoek naar een energiezuinige woning? Deze prachtige woning uit 2021 heeft een energielabel A++++ en is volledig uitgerust met duurzame technologieën, zoals 24 zonnepanelen, een warmtepomp en balansventilatie. Gelegen in het gewilde Geerpark in Vlijmen, een kindvriendelijke wijk, biedt deze woning niet alleen optimaal wooncomfort, maar ook de perfecte locatie voor jonge gezinnen die rust en ruimte zoeken en een plek waar de kinderen kunnen opgroeien.
BEGANE GROND
Je betreedt de woning via de entreehal, waar je direct toegang hebt tot de meterkast, het toilet en de trap naar de eerste verdieping. Via de entreehal kom je in een lichte en open ruimte. De woonkamer is ruim en biedt volop mogelijkheden om een gezellige zithoek te creëren. Via de woonkamer heb je directe toegang tot de achtertuin, waardoor je in de zomer het binnenleven makkelijk naar buiten kunt halen. In de woonkamer vind je ook een ruime provisiekast. De moderne open keuken is voorzien van diverse inbouwapparatuur zoals een oven, vaatwasser, inductieplaat en afzuigkap. De open indeling maakt het de ideale plek om te koken en tegelijkertijd in contact te blijven met de rest van het gezin. De strakke afwerking zorgt voor een eigentijdse uitstraling.
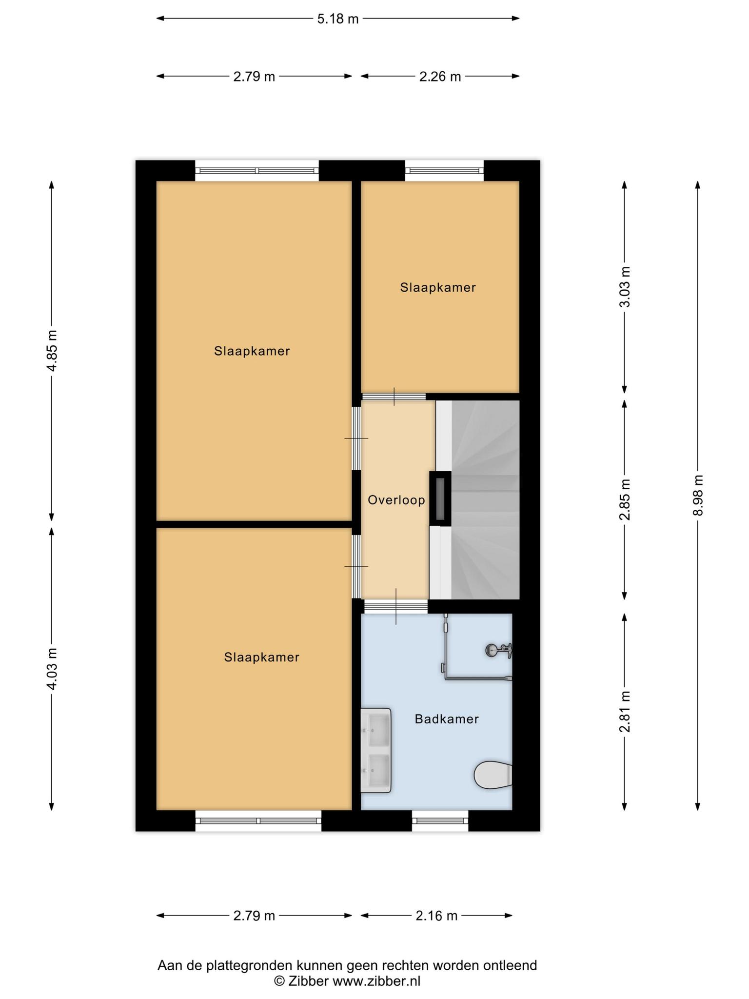
EERSTE VERDIEPING
Op de eerste verdieping vind je drie slaapkamers, waarvan twee ruim genoeg zijn voor een comfortabel tweepersoonsbed en een kledingkast. De derde slaapkamer is perfect voor een leuke kinderkamer, maar kan ook uitstekend dienen als inloopkast of kantoorruimte, afhankelijk van jouw behoeften. De moderne badkamer is voorzien van een inloopdouche, een toilet en een dubbele wastafel met meubel, voor optimaal comfort en gemak.
TWEEDE VERDIEPING
De tweede verdieping is via een vaste trap te bereiken. Hier vind je een ruime extra slaapkamer, ideaal voor een logeerkamer, tienerkamer of een andere functie naar keuze. Daarnaast is er een opstelplaats voor zowel de wasmachine als de wasdroger, wat deze verdieping bijzonder praktisch maakt. De inbouwkast herbergt de warmtepomp en de balansventilatie unit. Ook is er extra berging aanwezig, perfect voor het opbergen van bijvoorbeeld kerstspullen, vakantiekoffers of andere items die je niet dagelijks nodig hebt.
TUIN
De tuin ligt op het zuiden, wat betekent dat je de hele dag kunt genieten van de zon. De ruimte is perfect ingericht voor ontspanning en buitenleven, met veel privacy en meerdere zitgedeeltes waar je kunt genieten van zowel de zon als de schaduw. Een houten berging, voorzien van elektra, biedt praktische opbergruimte voor tuinmeubelen, gereedschap of andere benodigdheden. Bovendien beschikt de tuin over een achterom, waardoor je gemakkelijk toegang hebt tot de achterzijde van de woning.
LOCATIE
De woning ligt in het rustige en gewilde Geerpark in Vlijmen, een ideale locatie voor jonge gezinnen. De wijk is kindvriendelijk en biedt een rustige, veilige omgeving. Daarnaast zijn alle benodigde voorzieningen, zoals scholen, winkels en openbaar vervoer, binnen handbereik. Voor de dagelijkse boodschappen kun je terecht in het centrum van Vlijmen. Zoek je liever de stad op? Vlijmen ligt op een gunstige afstand van zowel 's-Hertogenbosch als Waalwijk, waardoor je snel toegang hebt tot de voorzieningen en werkgelegenheid van grotere steden. Voor een ontspannen wandeling of een fietstocht kun je de natuurgebieden en parken in de omgeving verkennen, zoals de Drunense Duinen.
BIJZONDERHEDEN
- Hoekwoning uit 2021;
- Tuin op het zuiden;
- Energielabel A++++;
- 4 slaapkamers;
- Moderne keuken en badkamer;
- 24 zonnepanelen, balansventilatie en warmtepomp;
- Vloerverwarming op de begane grond en eerste verdieping;
- Gelegen in het gewilde Geerpark in Vlijmen.
Toon meer
BEGANE GROND
Je betreedt de woning via de entreehal, waar je direct toegang hebt tot de meterkast, het toilet en de trap naar de eerste verdieping. Via de entreehal kom je in een lichte en open ruimte. De woonkamer is ruim en biedt volop mogelijkheden om een gezellige zithoek te creëren. Via de woonkamer heb je directe toegang tot de achtertuin, waardoor je in de zomer het binnenleven makkelijk naar buiten kunt halen. In de woonkamer vind je ook een ruime provisiekast. De moderne open keuken is voorzien van diverse inbouwapparatuur zoals een oven, vaatwasser, inductieplaat en afzuigkap. De open indeling maakt het de ideale plek om te koken en tegelijkertijd in contact te blijven met de rest van het gezin. De strakke afwerking zorgt voor een eigentijdse uitstraling.
EERSTE VERDIEPING
Op de eerste verdieping vind je drie slaapkamers, waarvan twee ruim genoeg zijn voor een comfortabel tweepersoonsbed en een kledingkast. De derde slaapkamer is perfect voor een leuke kinderkamer, maar kan ook uitstekend dienen als inloopkast of kantoorruimte, afhankelijk van jouw behoeften. De moderne badkamer is voorzien van een inloopdouche, een toilet en een dubbele wastafel met meubel, voor optimaal comfort en gemak.
TWEEDE VERDIEPING
De tweede verdieping is via een vaste trap te bereiken. Hier vind je een ruime extra slaapkamer, ideaal voor een logeerkamer, tienerkamer of een andere functie naar keuze. Daarnaast is er een opstelplaats voor zowel de wasmachine als de wasdroger, wat deze verdieping bijzonder praktisch maakt. De inbouwkast herbergt de warmtepomp en de balansventilatie unit. Ook is er extra berging aanwezig, perfect voor het opbergen van bijvoorbeeld kerstspullen, vakantiekoffers of andere items die je niet dagelijks nodig hebt.
TUIN
De tuin ligt op het zuiden, wat betekent dat je de hele dag kunt genieten van de zon. De ruimte is perfect ingericht voor ontspanning en buitenleven, met veel privacy en meerdere zitgedeeltes waar je kunt genieten van zowel de zon als de schaduw. Een houten berging, voorzien van elektra, biedt praktische opbergruimte voor tuinmeubelen, gereedschap of andere benodigdheden. Bovendien beschikt de tuin over een achterom, waardoor je gemakkelijk toegang hebt tot de achterzijde van de woning.
LOCATIE
De woning ligt in het rustige en gewilde Geerpark in Vlijmen, een ideale locatie voor jonge gezinnen. De wijk is kindvriendelijk en biedt een rustige, veilige omgeving. Daarnaast zijn alle benodigde voorzieningen, zoals scholen, winkels en openbaar vervoer, binnen handbereik. Voor de dagelijkse boodschappen kun je terecht in het centrum van Vlijmen. Zoek je liever de stad op? Vlijmen ligt op een gunstige afstand van zowel 's-Hertogenbosch als Waalwijk, waardoor je snel toegang hebt tot de voorzieningen en werkgelegenheid van grotere steden. Voor een ontspannen wandeling of een fietstocht kun je de natuurgebieden en parken in de omgeving verkennen, zoals de Drunense Duinen.
BIJZONDERHEDEN
- Hoekwoning uit 2021;
- Tuin op het zuiden;
- Energielabel A++++;
- 4 slaapkamers;
- Moderne keuken en badkamer;
- 24 zonnepanelen, balansventilatie en warmtepomp;
- Vloerverwarming op de begane grond en eerste verdieping;
- Gelegen in het gewilde Geerpark in Vlijmen.
Kenmerken
Overdracht
- Aangeboden sinds
- 5 augustus 2025
- Status
- Verkocht
- Aanvaarding
- In overleg
Bouw
- Soort woning
- Woonhuis
- Bouwjaar
- 2021
- Soort dak
- Zadeldak
Oppervlakten en inhoud
- Oppervlakte wonen
- 119 m²
- Oppervlakte externe bergruimte
- 5 m²
- Perceel
- 154 m²
- Inhoud
- 423 m³
Indeling
- Aantal kamers
- 5
- Aantal slaapkamers
- 4
- Aantal badkamers
- 1
- Badkamervoorzieningen
- Toilet, douche, dubbele wastafel en wastafelmeubel
- Aantal woonlagen
- 3
- Voorzieningen
- Mechanische ventilatie, tv-kabel, dakraam, glasvezel kabel, zonnepanelen en balansventilatie
Energie
- Energielabel
- A++++
- Isolatie
- Dakisolatie, muurisolatie, vloerisolatie, dubbel glas, volledig geïsoleerd en hr glas
- Verwarming
- Vloerverwarming gedeeltelijk en warmtepomp
- Warm water
- Elektrische boiler eigendom
Buitenruimte
- Ligging
- Aan water, aan park, aan rustige weg, in woonwijk en in bosrijke omgeving
- Tuin
- Achtertuin, voortuin en zijtuin
- Achtertuin
- 60 m² gelegen op het zuiden met achterom
Bergruimte
- Schuur/berging
- Vrijstaand hout
- Voorzieningen
- Voorzien van elektra
Garage
- Soort garage
- Geen garage