Word je warm van ons verhaal? Laten we samen kennismaken!
Neem contact op- 80 m²
- 2
- A
Omschrijving
Sfeervol en modern 3-kamerappartement met eigen parkeerplaats en berging, gelegen in het bruisende Paleiskwartier!
Op een fijne locatie aan het Kanseliersplein bevindt zich dit prachtige appartement op de derde verdieping van een modern complex uit 2020. Het appartement is met oog voor detail afgewerkt en combineert comfort met een eigentijdse uitstraling.
Dit appartement bevindt zich in het Paleiskwartier, een moderne en zeer gewilde stadswijk direct grenst aan de historische binnenstad en het Centraal Station van ’s-Hertogenbosch.
De ligging combineert het beste van beide werelden: de sfeer, voorzieningen en charme van de binnenstad binnen handbereik, én de rust, ruimte en moderne architectuur van een nieuw stadsdeel.
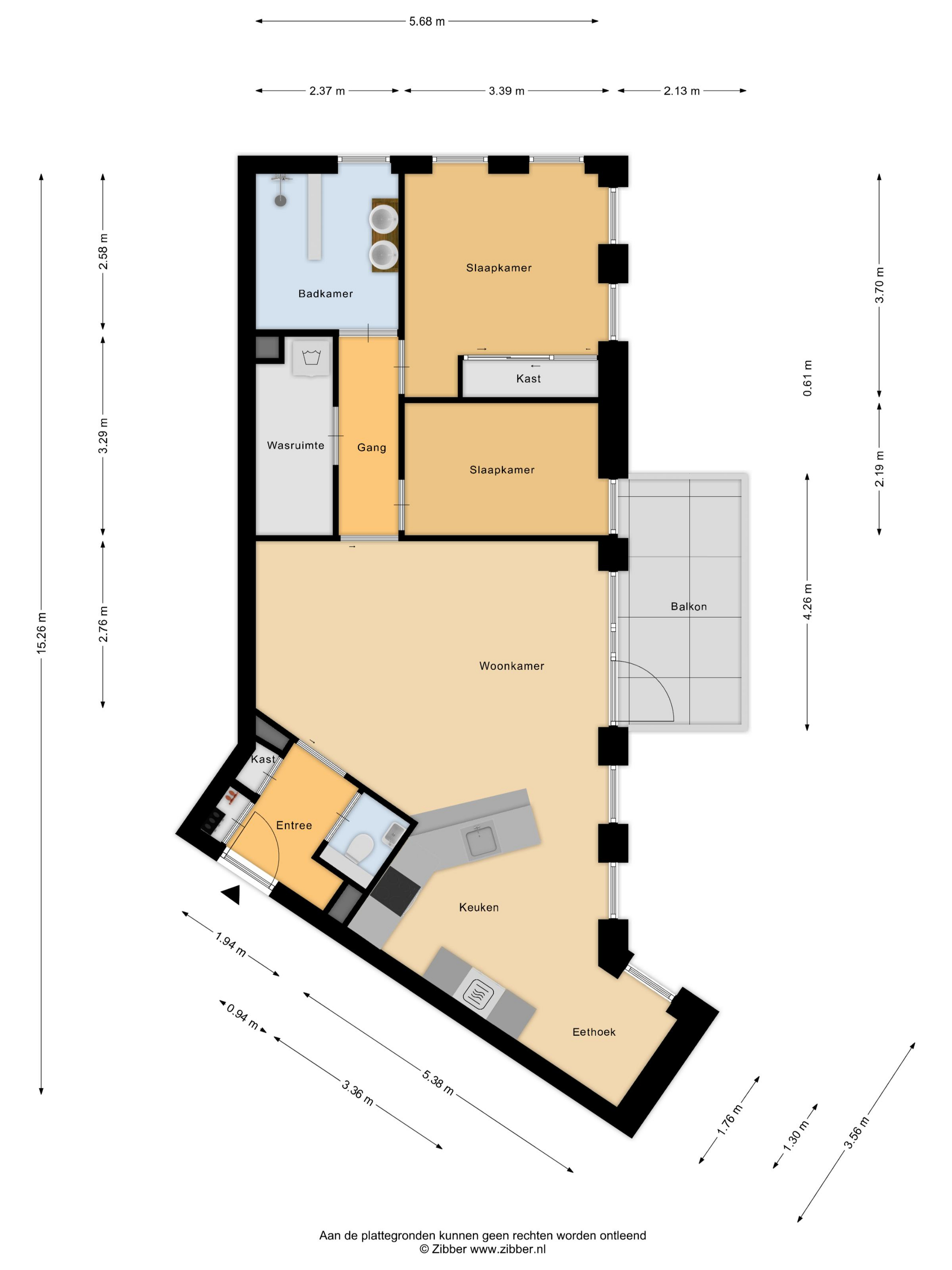
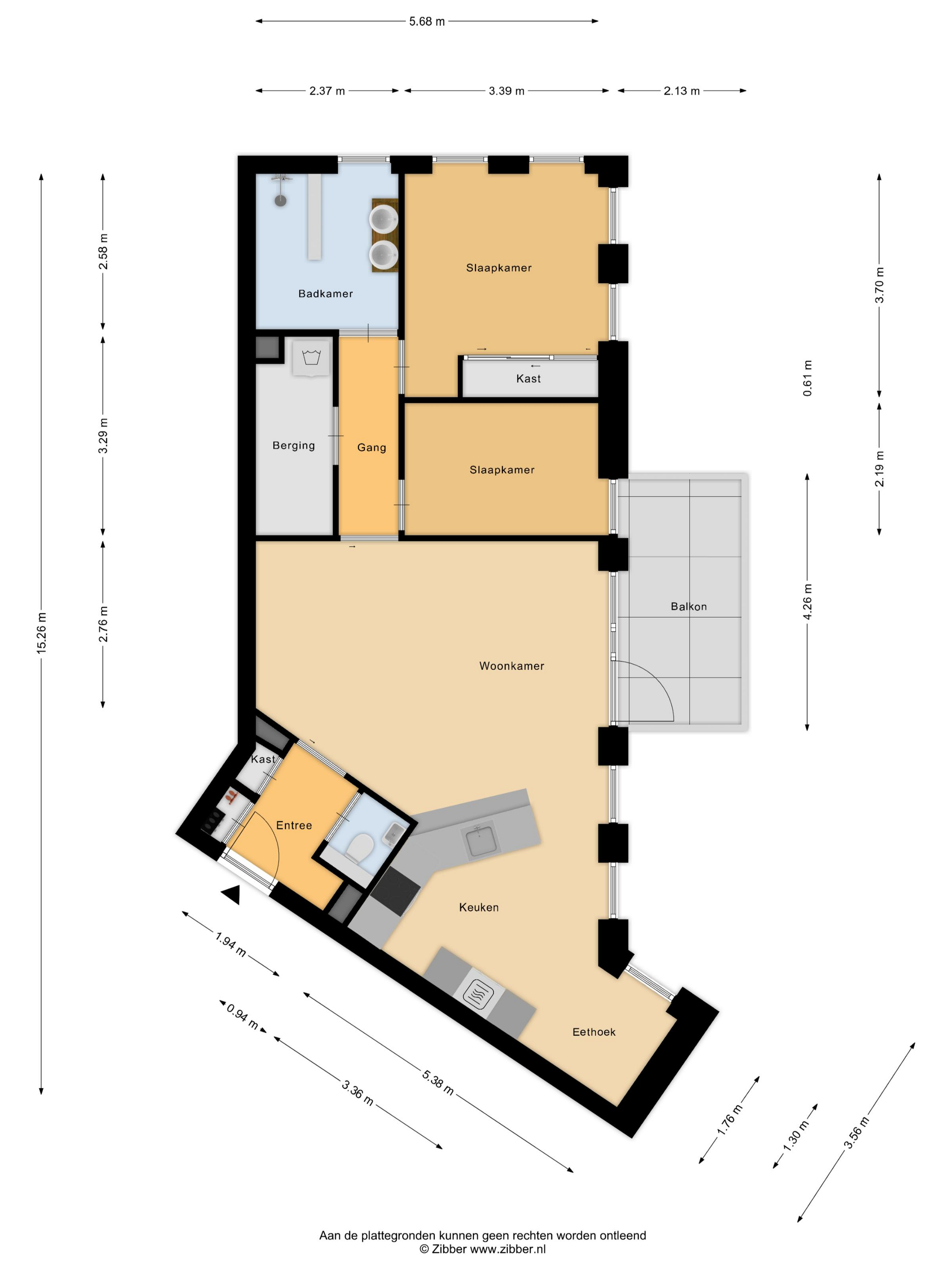
INDELING
Begane grond
De centrale entree met bellentableau en videofoon-installatie biedt toegang tot de lift, het trappenhuis en het souterrain met persoonlijke berging. Om de hoek bevindt zich de gemeenschappelijke fietsenberging. De privé-parkeerplaats bevindt zich in de garage van het tegenover gelegen complex Belvédère.
DERDE VERDIEPING:
Via de entree bereik je de hal met garderoberuimte en een modern toilet met hangcloset en fonteintje. Vanuit hier stap je binnen in de lichte woonkamer met grote raampartijen die zorgen voor veel natuurlijk daglicht. De ruimte is voorzien van een prachtige visgraat vloer en stijlvolle stalen glazen deuren met een softclosesysteem, die het geheel een luxe en warme uitstraling geven.
De open keuken vormt het hart van het appartement. Deze is uitgerust met een modern spoeleiland dat de keuken op een natuurlijke manier met de woonkamer verbindt. Verder beschikt de keuken over een ruime kastenwand en hoogwaardige inbouwapparatuur, waaronder een koelkast, vriezer, combi oven/magnetron en kookplaat met geïntegreerd afzuigsysteem.
Het appartement beschikt over twee slaapkamers, waarvan vooral de hoofdslaapkamer ruim van formaat is. De moderne badkamer is stijlvol ingericht met een inloopdouche, dubbele wastafel met meubel en een verzorgde afwerking.
Daarnaast is er een separate berging met wasmachineaansluiting in de woning aanwezig, en een extra berging in het souterrain.
Buitenruimte
Via de woonkamer is toegang tot een fijn balkon, ideaal om te genieten van de buitenlucht.
Parkeren
Bij het appartement hoort een eigen parkeerplaats in een nabijgelegen parkeergarage.
Bijzonderheden
- Gelegen op de derde verdieping van een modern complex (bouwjaar 2020)
- Voorzien van een prachtige visgraat vloer en stalen glazen deuren
- Luxe keuken met spoeleiland, ruime kastenwand en hoogwaardige inbouwapparatuur
- Toilet met hangcloset en fonteintje
- Sfeervolle badkamer met inloopdouche en dubbele wastafel
- Veel ramen en dus heerlijk licht
- Berging in de woning en extra berging in het souterrain
- Eigen parkeerplaats in nabijgelegen parkeergarage
Toon meer
Op een fijne locatie aan het Kanseliersplein bevindt zich dit prachtige appartement op de derde verdieping van een modern complex uit 2020. Het appartement is met oog voor detail afgewerkt en combineert comfort met een eigentijdse uitstraling.
Dit appartement bevindt zich in het Paleiskwartier, een moderne en zeer gewilde stadswijk direct grenst aan de historische binnenstad en het Centraal Station van ’s-Hertogenbosch.
De ligging combineert het beste van beide werelden: de sfeer, voorzieningen en charme van de binnenstad binnen handbereik, én de rust, ruimte en moderne architectuur van een nieuw stadsdeel.
INDELING
Begane grond
De centrale entree met bellentableau en videofoon-installatie biedt toegang tot de lift, het trappenhuis en het souterrain met persoonlijke berging. Om de hoek bevindt zich de gemeenschappelijke fietsenberging. De privé-parkeerplaats bevindt zich in de garage van het tegenover gelegen complex Belvédère.
DERDE VERDIEPING:
Via de entree bereik je de hal met garderoberuimte en een modern toilet met hangcloset en fonteintje. Vanuit hier stap je binnen in de lichte woonkamer met grote raampartijen die zorgen voor veel natuurlijk daglicht. De ruimte is voorzien van een prachtige visgraat vloer en stijlvolle stalen glazen deuren met een softclosesysteem, die het geheel een luxe en warme uitstraling geven.
De open keuken vormt het hart van het appartement. Deze is uitgerust met een modern spoeleiland dat de keuken op een natuurlijke manier met de woonkamer verbindt. Verder beschikt de keuken over een ruime kastenwand en hoogwaardige inbouwapparatuur, waaronder een koelkast, vriezer, combi oven/magnetron en kookplaat met geïntegreerd afzuigsysteem.
Het appartement beschikt over twee slaapkamers, waarvan vooral de hoofdslaapkamer ruim van formaat is. De moderne badkamer is stijlvol ingericht met een inloopdouche, dubbele wastafel met meubel en een verzorgde afwerking.
Daarnaast is er een separate berging met wasmachineaansluiting in de woning aanwezig, en een extra berging in het souterrain.
Buitenruimte
Via de woonkamer is toegang tot een fijn balkon, ideaal om te genieten van de buitenlucht.
Parkeren
Bij het appartement hoort een eigen parkeerplaats in een nabijgelegen parkeergarage.
Bijzonderheden
- Gelegen op de derde verdieping van een modern complex (bouwjaar 2020)
- Voorzien van een prachtige visgraat vloer en stalen glazen deuren
- Luxe keuken met spoeleiland, ruime kastenwand en hoogwaardige inbouwapparatuur
- Toilet met hangcloset en fonteintje
- Sfeervolle badkamer met inloopdouche en dubbele wastafel
- Veel ramen en dus heerlijk licht
- Berging in de woning en extra berging in het souterrain
- Eigen parkeerplaats in nabijgelegen parkeergarage
Kenmerken
Overdracht
- Aangeboden sinds
- 5 oktober 2025
- Status
- Verkocht
- Aanvaarding
- In overleg
- Bijdrage VvE
- € 198,02 per maand
Bouw
- Soort woning
- Appartement
- Soort appartement
- Portiekflat
- Bouwjaar
- 2020
Oppervlakten en inhoud
- Oppervlakte wonen
- 80 m²
- Oppervlakte gebouwgebonden buitenruimte
- 9 m²
- Oppervlakte externe bergruimte
- 18 m²
- Inhoud
- 266 m³
Indeling
- Aantal kamers
- 3
- Aantal slaapkamers
- 2
- Aantal badkamers
- 1
- Badkamervoorzieningen
- Dubbele wastafel, wastafelmeubel, inloopdouche en vloerverwarming
- Aantal woonlagen
- 1
- Gelegen op
- 3
- Voorzieningen
- Mechanische ventilatie en lift
Energie
- Energielabel
- A
- Isolatie
- Dakisolatie, muurisolatie, vloerisolatie, volledig geïsoleerd en hr glas
- Verwarming
- Stadsverwarming en vloerverwarming geheel
- Warm water
- Stadsverwarming
Buitenruimte
- Ligging
- In centrum
- Tuin
- Geen tuin
Bergruimte
- Schuur/berging
- Inpandig
Garage
- Soort garage
- Parkeerkelder
Vereniging van Eigenaren
- Inschrijving KvK
- Ja
- Jaarlijkse vergadering
- Ja
- Periodieke bijdrage
- Reservefonds aanwezig
- Ja
- Onderhoudsplan
- Ja
- Opstalverzekering
- Ja