Word je warm van ons verhaal? Laten we samen kennismaken!
Neem contact op- 141 m²
- 152 m²
- 3
- A+
Omschrijving
Verrassend ruime hoekwoning in gewilde wijk Klein Brabant met een energielabel A+.
Op een uitstekende locatie in Vught-Zuid vindt u deze verrassend ruime energiezuinige hoekwoning met zonnige achtertuin, dakterras, twee badkamers, een carport en een royale berging. De woning is recent gemoderniseerd en biedt tal van duurzame en luxe extra’s. Laat u verrassen door de royale vertrekken en het wooncomfort dat deze woning te bieden heeft!
Rustig wonen in een kindvriendelijke omgeving
De woning ligt in een rustige, kindvriendelijke buurt aan de rand van een groenrijk beschermd buitengebied. De omgeving nodigt uit tot prachtige wandel- en fietstochten en biedt alle voorzieningen binnen handbereik. Het centrum van Vught, natuurgebieden zoals Het Bossche Broek, De IJzeren Man en de Vughtse Heide, en steden zoals ’s-Hertogenbosch zijn op korte afstand bereikbaar. Ook scholen, kinderopvang, en uitvalswegen zoals de N65 en station Vught liggen in de directe nabijheid.
Duurzaam en modern wonen
De woning is nageïsoleerd met spouw-, vloer- en dakisolatie en voorzien van een hybride warmtepomp en 11 zonnepanelen, wat zorgt voor energiezuinig wooncomfort. In 2019 is de keuken vernieuwd en voorzien van hoogwaardige inbouwapparatuur, waaronder een Bora inductiekookplaat, combi-oven/magnetron, vaatwasser, Quooker en een koel-/vriescombinatie.
Begane grond
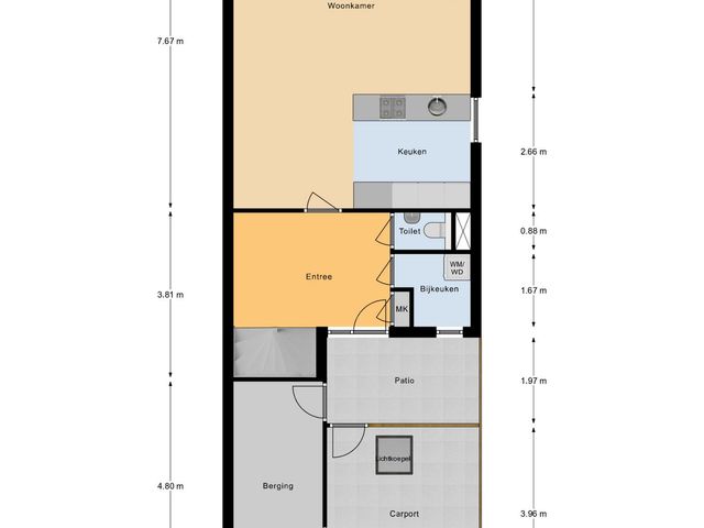
Via de carport bereikt u de entree van de woning. Hier is voldoende ruimte om uw auto te parkeren en geeft u toegang tot de royale berging aan de voorzijde van de woning gelegen.
Ruime hal met meterkast, garderobe en toiletruimte met toilet en fonteintje geeft toegang tot de tuingerichte living, de wasruimte en de trap naar de eerste verdieping.
De sfeervolle living heeft een open uitstraling en biedt veel indelingsvrijheid. Dankzij de grote schuifpui is er veel lichtinval en directe toegang tot de zonnige achtertuin op het westen. De halfopen keuken heeft uitzicht op de tuin en biedt volop werk- en opbergruimte. Met de luxe apparatuur kookt u met gemak voor uw gezin of gasten.
Eerste verdieping
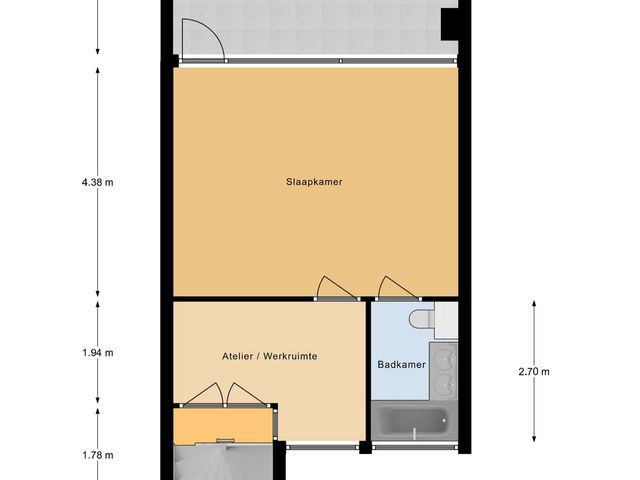
De overloop geeft toegang tot de werkkamer en de hoofdslaapkamer. De hoofdslaapkamer is zeer royaal en biedt directe toegang tot het zonnige dakterras aan de achterzijde van de woning. Het dakterras en achtergevel zijn gerenoveerd en voorzien van fraai en modern geveltimmerwerk. De badkamer is volledig vernieuwd en is in een lichte kleurstelling en voorzien van een hangend toilet, dubbel wastafelmeubel met verlichting en een ligbad met douchemogelijkheid.
Tweede verdieping
Via een vaste trap bereikt u de tweede verdieping. De ruime overloop leidt naar twee verrassend ruime slaapkamers, een royale doucheruimte en een technische ruimte met binnenunit van de warmtepomp en bergruimtes. De slaapkamers hebben een fijne lichtinval en bieden veel mogelijkheden.
Buitenruimte
De tuin is bereikbaar via de schuifpui in de woonkamer en ligt op het westen, waardoor u kunt genieten van zowel de middag- als avondzon. De tuin is onderhoudsvriendelijk ingericht met betegeling en borders met groenblijvende beplanting. Aan de achterzijde van de woning is een ruime parkeerplaats met voldoende parkeergelegenheid voor uw gasten.
Bijzonderheden
- Gelegen in de gewilde wijk Klein Brabant;
- Nageïsoleerd: spouw-, vloer- en dakisolatie;
- Hybride cv ketel met elektrische boiler;
- Achtergevel gerenoveerd met nieuwe geveltimmerwerk, schoorsteen opnieuw opgemetseld en zijgevel opnieuw gevoegd;
- Voorzien van 11 zonnepanelen en een hybride warmtepomp;
- Luxe keuken (2019) met Bora inductiekookplaat, combi-oven/magnetron, vaatwasser, Quooker en koel-/vriescombinatie;
- Nieuwe vloeren op de eerste en tweede verdieping;
- Zonnige achtertuin op het westen;
- Ruime carport en royale berging.
Laat u verrassen door deze moderne en energiezuinige woning op een toplocatie! Neem contact met ons op voor een bezichtiging.
Toon meer
Op een uitstekende locatie in Vught-Zuid vindt u deze verrassend ruime energiezuinige hoekwoning met zonnige achtertuin, dakterras, twee badkamers, een carport en een royale berging. De woning is recent gemoderniseerd en biedt tal van duurzame en luxe extra’s. Laat u verrassen door de royale vertrekken en het wooncomfort dat deze woning te bieden heeft!
Rustig wonen in een kindvriendelijke omgeving
De woning ligt in een rustige, kindvriendelijke buurt aan de rand van een groenrijk beschermd buitengebied. De omgeving nodigt uit tot prachtige wandel- en fietstochten en biedt alle voorzieningen binnen handbereik. Het centrum van Vught, natuurgebieden zoals Het Bossche Broek, De IJzeren Man en de Vughtse Heide, en steden zoals ’s-Hertogenbosch zijn op korte afstand bereikbaar. Ook scholen, kinderopvang, en uitvalswegen zoals de N65 en station Vught liggen in de directe nabijheid.
Duurzaam en modern wonen
De woning is nageïsoleerd met spouw-, vloer- en dakisolatie en voorzien van een hybride warmtepomp en 11 zonnepanelen, wat zorgt voor energiezuinig wooncomfort. In 2019 is de keuken vernieuwd en voorzien van hoogwaardige inbouwapparatuur, waaronder een Bora inductiekookplaat, combi-oven/magnetron, vaatwasser, Quooker en een koel-/vriescombinatie.
Begane grond
Via de carport bereikt u de entree van de woning. Hier is voldoende ruimte om uw auto te parkeren en geeft u toegang tot de royale berging aan de voorzijde van de woning gelegen.
Ruime hal met meterkast, garderobe en toiletruimte met toilet en fonteintje geeft toegang tot de tuingerichte living, de wasruimte en de trap naar de eerste verdieping.
De sfeervolle living heeft een open uitstraling en biedt veel indelingsvrijheid. Dankzij de grote schuifpui is er veel lichtinval en directe toegang tot de zonnige achtertuin op het westen. De halfopen keuken heeft uitzicht op de tuin en biedt volop werk- en opbergruimte. Met de luxe apparatuur kookt u met gemak voor uw gezin of gasten.
Eerste verdieping
De overloop geeft toegang tot de werkkamer en de hoofdslaapkamer. De hoofdslaapkamer is zeer royaal en biedt directe toegang tot het zonnige dakterras aan de achterzijde van de woning. Het dakterras en achtergevel zijn gerenoveerd en voorzien van fraai en modern geveltimmerwerk. De badkamer is volledig vernieuwd en is in een lichte kleurstelling en voorzien van een hangend toilet, dubbel wastafelmeubel met verlichting en een ligbad met douchemogelijkheid.
Tweede verdieping
Via een vaste trap bereikt u de tweede verdieping. De ruime overloop leidt naar twee verrassend ruime slaapkamers, een royale doucheruimte en een technische ruimte met binnenunit van de warmtepomp en bergruimtes. De slaapkamers hebben een fijne lichtinval en bieden veel mogelijkheden.
Buitenruimte
De tuin is bereikbaar via de schuifpui in de woonkamer en ligt op het westen, waardoor u kunt genieten van zowel de middag- als avondzon. De tuin is onderhoudsvriendelijk ingericht met betegeling en borders met groenblijvende beplanting. Aan de achterzijde van de woning is een ruime parkeerplaats met voldoende parkeergelegenheid voor uw gasten.
Bijzonderheden
- Gelegen in de gewilde wijk Klein Brabant;
- Nageïsoleerd: spouw-, vloer- en dakisolatie;
- Hybride cv ketel met elektrische boiler;
- Achtergevel gerenoveerd met nieuwe geveltimmerwerk, schoorsteen opnieuw opgemetseld en zijgevel opnieuw gevoegd;
- Voorzien van 11 zonnepanelen en een hybride warmtepomp;
- Luxe keuken (2019) met Bora inductiekookplaat, combi-oven/magnetron, vaatwasser, Quooker en koel-/vriescombinatie;
- Nieuwe vloeren op de eerste en tweede verdieping;
- Zonnige achtertuin op het westen;
- Ruime carport en royale berging.
Laat u verrassen door deze moderne en energiezuinige woning op een toplocatie! Neem contact met ons op voor een bezichtiging.
Kenmerken
Overdracht
- Aangeboden sinds
- 5 augustus 2025
- Status
- Verkocht
- Aanvaarding
- In overleg
Bouw
- Soort woning
- Woonhuis
- Bouwjaar
- 1975
- Soort dak
- Plat dak
Oppervlakten en inhoud
- Oppervlakte wonen
- 141 m²
- Oppervlakte overige inpandige ruimte
- 11 m²
- Oppervlakte gebouwgebonden buitenruimte
- 38 m²
- Perceel
- 152 m²
- Inhoud
- 513 m³
Indeling
- Aantal kamers
- 5
- Aantal slaapkamers
- 3
- Aantal badkamers
- 2
- Badkamervoorzieningen
- Douche, ligbad en dubbele wastafel
- Aantal woonlagen
- 3
- Voorzieningen
- Mechanische ventilatie, tv-kabel, buitenzonwering, rookkanaal, schuifpui, glasvezel kabel en zonnepanelen
Energie
- Energielabel
- A+
- Isolatie
- Dakisolatie, muurisolatie, vloerisolatie en hr glas
- Verwarming
- Cv-ketel
- Warm water
- Elektrische boiler eigendom
- Cv-ketel
- Hybride (combiketel uit 2019)
Buitenruimte
- Ligging
- Aan rustige weg en in woonwijk
- Tuin
- Achtertuin
- Achtertuin
- 49 m² gelegen op het westen
Bergruimte
- Schuur/berging
- Aangebouwd steen
- Voorzieningen
- Voorzien van elektra
Garage
- Soort garage
- Carport en geen garage