Word je warm van ons verhaal? Laten we samen kennismaken!
Neem contact op- 116 m²
- 190 m²
- 3
- C
Omschrijving
Rustig wonen vlakbij het centrum klinkt als een tegenstelling, maar in dit geval is het meer dan waar. De Langendijkstraat is een verkeersluwe straat welke als zeer kindvriendelijk wordt bestempeld. De woning is verrassend ruim te noemen met een royale woonkamer en een heuse tuinkamer aan de achterzijde. Ondanks dat de woning al behoorlijk compleet is, is deze uiteraard naar eigen wens in te vullen. Uitbouwen hoeft niet meer, dit is al voor je gedaan.
Klinkt dit als muziek in jouw oren? Wacht dan niet te lang met bellen of mailen. Doe het vandaag nog en plan een bezichtiging, voordat iemand anders het doet. Wij zien je graag aan Langendijkstraat 30.
INDELING
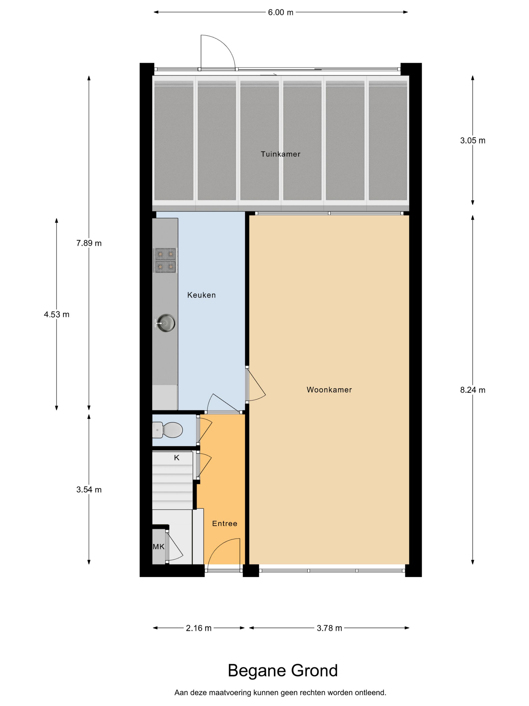
Begane grond:
Via de voortuin en voordeur kom je binnen in de entree/hal. Hier vind je de toiletruimte, meterkast en trapopgang met trapkast naar de eerste verdieping. Vanuit de hal stap je de keuken binnen met daarin een keukenblok in een moderne rechte opstelling en is voorzien van diverse inbouwapparatuur. In de keuken is een deur naar de woonkamer. Een ruime woonkamer met een grote raampartij voor een mooie lichtinval. Aan de voorzijde een leuke zithoek en aan de achterzijde plaats genoeg voor de eettafel. Daarnaast kan de eettafel ook in de aangebouwde serre/tuinkamer. Dit is een prachtig verlengstuk van je keuken en zorgt voor veel woongenot. Of je hier nu lekker lang wilt tafelen of juist liever wilt ontspannen met een goed boek op de bank. Het kan hier! Hier is ook een schuifpui naar de achtertuin aanwezig.
Eerste verdieping:
Via de overloop met trapopgang naar de tweede verdieping zijn de slaapkamers, badkamer en wasruimte bereikbaar. Aan de achterkant bevindt zich de masterbedroom met vaste kast én inloopkast, aan de voorzijde eveneens een royale slaapkamer met genoeg ruimte voor een tweepersoons bed. De voormalige badkamer is inmiddels in gebruik als wasruimte en hier zijn dan ook de aansluitingen voor de wasapparatuur gemaakt. De nieuwe badkamer is aangrenzen aan de masterbedroom gerealiseerd en is met recht een complete badkamer te noemen met een ligbad, douche, wastafel en tweede toilet.
Tweede verdieping:
Middels de vaste trap is de zolder bereikbaar waar naast bergruimte ook de CV-ketel te vinden is. Op deze verdieping is aan de achterzijde een brede dakkapel geplaatst waardoor er een extra slaapkamer is gerealiseerd.
TUIN
De keurig aangelegde tuin is georiënteerd op het noorden, maar door de diepte van de tuin is hier volop de zon aanwezig. Dankzij de schuifpui in de tuinkamer worden binnen en buiten naadloos met elkaar verbonden, waardoor je volop kunt genieten van de tuin en de frisse buitenlucht om heerlijk te ontspannen. Extra ontspanning vinden we in de Grijsbar, de bar welke aan de achterzijde van het perceel in de tuin gebouwd is. Een leuke en gezellig bar die kan zorgen voor de nodige gezellige avonden. Ga je toch liever naar het café in het dorp? Geen probleem in de berging naast de bar is voldoende plaats voor je caféracer, maar ook voor je tuingereedschap en andere zaken.
LOCATIE
Deze woning ligt in een kindvriendelijke wijk in Kaatsheuvel, een ideale plek voor gezinnen op loopafstand van het centrum. Voor je dagelijkse boodschappen kun je terecht in het gezellige dorp, waar je ook verschillende leuke winkeltjes vindt. Zoek je de stad op? Tilburg en Den Bosch zijn binnen 25 minuten te bereiken. Wil je lekker ontspannen in de natuur? De Loonse en Drunense Duinen bieden prachtige wandelroutes en fietstochten. En met de kinderen eropuit? Kaatsheuvel is natuurlijk beroemd om de Efteling, de perfecte bestemming voor een magisch dagje uit!
BIJZONDERHEDEN
- Veel ruimte en comfort;
- Energielabel C;
- Verzorgde achtertuin;
- Gezellig bar;
- Praktische berging aangrenzend aan de bar;
- 3 royale slaapkamers;
- Schuifpui in de serre/tuinkamer;
- Kindvriendelijke wijk;
- Dichtbij Nationaal Park De Loonse en Drunense Duinen;
- Dichtbij de Efteling.
Toon meer
Klinkt dit als muziek in jouw oren? Wacht dan niet te lang met bellen of mailen. Doe het vandaag nog en plan een bezichtiging, voordat iemand anders het doet. Wij zien je graag aan Langendijkstraat 30.
INDELING
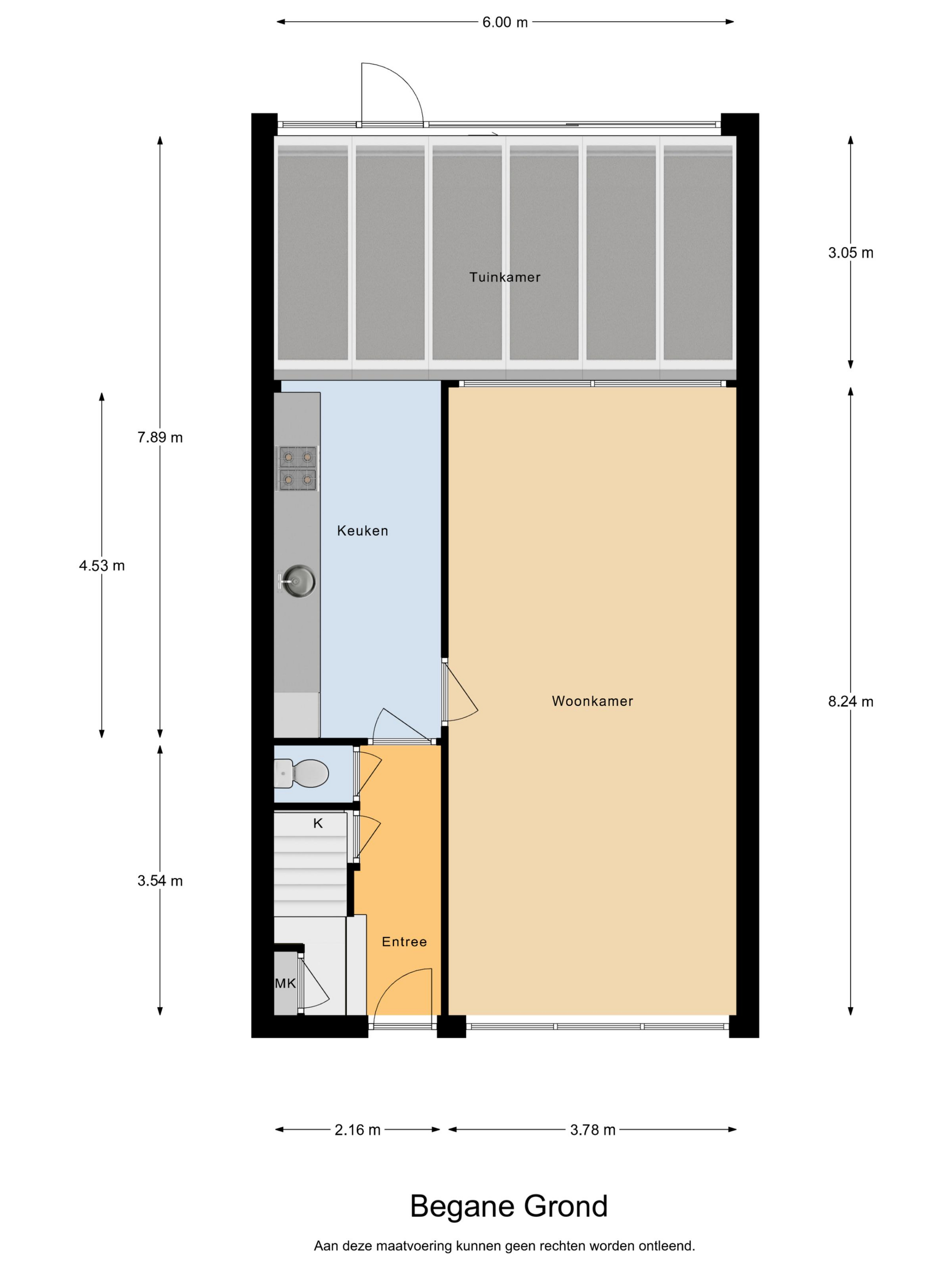
Begane grond:
Via de voortuin en voordeur kom je binnen in de entree/hal. Hier vind je de toiletruimte, meterkast en trapopgang met trapkast naar de eerste verdieping. Vanuit de hal stap je de keuken binnen met daarin een keukenblok in een moderne rechte opstelling en is voorzien van diverse inbouwapparatuur. In de keuken is een deur naar de woonkamer. Een ruime woonkamer met een grote raampartij voor een mooie lichtinval. Aan de voorzijde een leuke zithoek en aan de achterzijde plaats genoeg voor de eettafel. Daarnaast kan de eettafel ook in de aangebouwde serre/tuinkamer. Dit is een prachtig verlengstuk van je keuken en zorgt voor veel woongenot. Of je hier nu lekker lang wilt tafelen of juist liever wilt ontspannen met een goed boek op de bank. Het kan hier! Hier is ook een schuifpui naar de achtertuin aanwezig.
Eerste verdieping:
Via de overloop met trapopgang naar de tweede verdieping zijn de slaapkamers, badkamer en wasruimte bereikbaar. Aan de achterkant bevindt zich de masterbedroom met vaste kast én inloopkast, aan de voorzijde eveneens een royale slaapkamer met genoeg ruimte voor een tweepersoons bed. De voormalige badkamer is inmiddels in gebruik als wasruimte en hier zijn dan ook de aansluitingen voor de wasapparatuur gemaakt. De nieuwe badkamer is aangrenzen aan de masterbedroom gerealiseerd en is met recht een complete badkamer te noemen met een ligbad, douche, wastafel en tweede toilet.
Tweede verdieping:
Middels de vaste trap is de zolder bereikbaar waar naast bergruimte ook de CV-ketel te vinden is. Op deze verdieping is aan de achterzijde een brede dakkapel geplaatst waardoor er een extra slaapkamer is gerealiseerd.
TUIN
De keurig aangelegde tuin is georiënteerd op het noorden, maar door de diepte van de tuin is hier volop de zon aanwezig. Dankzij de schuifpui in de tuinkamer worden binnen en buiten naadloos met elkaar verbonden, waardoor je volop kunt genieten van de tuin en de frisse buitenlucht om heerlijk te ontspannen. Extra ontspanning vinden we in de Grijsbar, de bar welke aan de achterzijde van het perceel in de tuin gebouwd is. Een leuke en gezellig bar die kan zorgen voor de nodige gezellige avonden. Ga je toch liever naar het café in het dorp? Geen probleem in de berging naast de bar is voldoende plaats voor je caféracer, maar ook voor je tuingereedschap en andere zaken.
LOCATIE
Deze woning ligt in een kindvriendelijke wijk in Kaatsheuvel, een ideale plek voor gezinnen op loopafstand van het centrum. Voor je dagelijkse boodschappen kun je terecht in het gezellige dorp, waar je ook verschillende leuke winkeltjes vindt. Zoek je de stad op? Tilburg en Den Bosch zijn binnen 25 minuten te bereiken. Wil je lekker ontspannen in de natuur? De Loonse en Drunense Duinen bieden prachtige wandelroutes en fietstochten. En met de kinderen eropuit? Kaatsheuvel is natuurlijk beroemd om de Efteling, de perfecte bestemming voor een magisch dagje uit!
BIJZONDERHEDEN
- Veel ruimte en comfort;
- Energielabel C;
- Verzorgde achtertuin;
- Gezellig bar;
- Praktische berging aangrenzend aan de bar;
- 3 royale slaapkamers;
- Schuifpui in de serre/tuinkamer;
- Kindvriendelijke wijk;
- Dichtbij Nationaal Park De Loonse en Drunense Duinen;
- Dichtbij de Efteling.
Kenmerken
Overdracht
- Aangeboden sinds
- 9 september 2025
- Status
- Verkocht
- Aanvaarding
- In overleg
Bouw
- Soort woning
- Woonhuis
- Bouwjaar
- 1962
- Soort dak
- Zadeldak
Oppervlakten en inhoud
- Oppervlakte wonen
- 116 m²
- Oppervlakte overige inpandige ruimte
- 13 m²
- Oppervlakte externe bergruimte
- 18 m²
- Perceel
- 190 m²
- Inhoud
- 420 m³
Indeling
- Aantal kamers
- 5
- Aantal slaapkamers
- 3
- Aantal badkamers
- 1
- Badkamervoorzieningen
- Ligbad, toilet, douche en wastafel
- Aantal woonlagen
- 3
- Voorzieningen
- Mechanische ventilatie en tv-kabel
Energie
- Energielabel
- C
- Isolatie
- Dakisolatie, muurisolatie en dubbel glas
- Verwarming
- Cv-ketel
- Warm water
- Cv-ketel
- Cv-ketel
- Bosch 29 VRC (combiketel uit 2006)
Buitenruimte
- Ligging
- In woonwijk
- Tuin
- Achtertuin en voortuin
- Achtertuin
- 67 m² gelegen op het noorden met achterom
Bergruimte
- Schuur/berging
- Vrijstaand steen
- Voorzieningen
- Voorzien van verwarming, voorzien van elektra en voorzien van water
Garage
- Soort garage
- Geen garage