Word je warm van ons verhaal? Laten we samen kennismaken!
Neem contact op- 70 m²
- 458 m²
- 2
Omschrijving
Aan de buitenrand op één van de mooiste locaties van Recreatiepark Landgoed De Zandleij in Cromvoirt (NBr), is deze recreatiebungalow gelegen met een prachtig vrij uitzicht over de achtergelegen landerijen op eigen grond! Er kan nog een veranda aangebouwd worden en indien gewenst een zwembad aangelegd worden.
De Zandleij is een vernieuwd park met vrijstaande, duurzame nieuwbouwwoningen, met een eigen parkeerplaats bij de woning. Een beschutte ligging en veel privacy zorgen voor een ultiem vakantiegevoel, hier komt u tot rust.
De woning is in 2017 volledig en zeer goed geïsoleerd gebouwd en voorzien van aluminium kozijnen met triple glas en openslaande tuindeuren met op diverse plaatsen screens welke elektrisch bedienbaar zijn. Alle ruimtes kunnen worden verwarmd middels een heteluchtsysteem wat tevens kan koelen. Het warme tapwater komt van een elektrische boiler.
De keurig afgewerkte en moderne woning heeft 2 slaapkamers, een apart toilet en een badkamer. De vloer is afgewerkt met pvc en de muren zijn voorzien van stucwerk. Een hellend plafond in combinatie met de grote raampartijen maakt dat deze woning zowel ruimtelijk als gezellig en knus aanvoelt.
TOPS:
-Lage parkkosten
-Degelijke betonnen bebouwing
-Zeer hoge isolatie waarde
-Eigen grond met vrij uitzicht
-Hele dag zon
Routing:
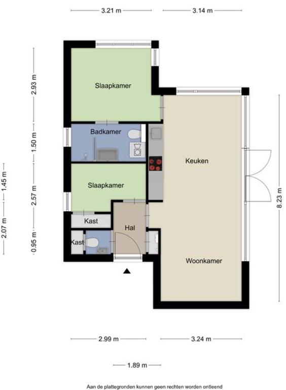
•Entree met hal, toiletruimte en deur naar de 2e slaapkamer en toegang tot de woonkamer.
•Lichte woonkamer en keuken. Het keukenmeubel is uitgerust een elektrische kookplaat, een oven, een vaatwasser, de spoelbak met mengkraan en een koelkast met vriezer.
•Aansluitend is de slaapkamer gelegen met en-suite de badkamer.
•Badkamer met een inloopdouche, een wastafelmeubel, een 2e toilet en de aansluiting voor de wasmachine en de droger.
Bij de entree is een buiten berging met stroom aanwezig met ruimte voor opslag en bijvoorbeeld de fiets(en).
De bungalow wordt omringd door de tuin, welke op het zuid/westen is gelegen, waardoor er optimaal van het buitenleven geprofiteerd kan worden. In de tuin is een terras aanwezig.
Kenmerken:
- Bouwjaar: 2018, eerste eigenaar
- Volledig geïsoleerd
- Woonoppervlakte: 56m2 (70m2 oppervak woning)
- Perceel oppervlakte: 458m2 eigen grond
- Parkkosten voor 2024: € 50,83 per maand excl. water-elektra etc.
- Het is mogelijk om individuele zonnepanelen te plaatsen op het dak
- Permanente bewoning is niet toegestaan, wel is verhuur mogelijk
- De stoffering en meubilering van de woning is ter overname
- Aanvaarding per direct mogelijk
Op loopafstand van het vakantiepark ligt De IJzeren Man, een recreatieplas voor jong en oud; van een frisse duik in het water, een wandeling rondom het gebied tot een bezoek aan het strand, het klimbos of een van de hoogwaardige horecagelegenheden zoals o.a. de beachclub.
Ook liefhebbers van de paardensport of golfsport kunnen in deze omgeving volop terecht. Zo zijn er diverse paardenmaneges en pensionstallen in nabijheid gelegen, alsmede het Nationaal Park de Loonse en Drunense Duinen. Dit unieke natuurgebied is een van de grootste stuifzandgebieden van West-Europa.
Golfbaan Bernadus in Cromvoirt is een unieke 18-holes golfbaan in hartje Brabant - waar onder andere het Dutch Open wordt gespeeld - en is ontworpen als een uitdagende baan voor elk niveau.
Vanaf Recreatiepark Landgoed De Zandleij ontdekt u de unieke natuurgebieden met de auto, fiets of te voet. En tot slot: De Efteling is op 20 minuten gelegen en vergeet vooral niet Den Bosch te ontdekken!
Toon meer
De Zandleij is een vernieuwd park met vrijstaande, duurzame nieuwbouwwoningen, met een eigen parkeerplaats bij de woning. Een beschutte ligging en veel privacy zorgen voor een ultiem vakantiegevoel, hier komt u tot rust.
De woning is in 2017 volledig en zeer goed geïsoleerd gebouwd en voorzien van aluminium kozijnen met triple glas en openslaande tuindeuren met op diverse plaatsen screens welke elektrisch bedienbaar zijn. Alle ruimtes kunnen worden verwarmd middels een heteluchtsysteem wat tevens kan koelen. Het warme tapwater komt van een elektrische boiler.
De keurig afgewerkte en moderne woning heeft 2 slaapkamers, een apart toilet en een badkamer. De vloer is afgewerkt met pvc en de muren zijn voorzien van stucwerk. Een hellend plafond in combinatie met de grote raampartijen maakt dat deze woning zowel ruimtelijk als gezellig en knus aanvoelt.
TOPS:
-Lage parkkosten
-Degelijke betonnen bebouwing
-Zeer hoge isolatie waarde
-Eigen grond met vrij uitzicht
-Hele dag zon
Routing:
•Entree met hal, toiletruimte en deur naar de 2e slaapkamer en toegang tot de woonkamer.
•Lichte woonkamer en keuken. Het keukenmeubel is uitgerust een elektrische kookplaat, een oven, een vaatwasser, de spoelbak met mengkraan en een koelkast met vriezer.
•Aansluitend is de slaapkamer gelegen met en-suite de badkamer.
•Badkamer met een inloopdouche, een wastafelmeubel, een 2e toilet en de aansluiting voor de wasmachine en de droger.
Bij de entree is een buiten berging met stroom aanwezig met ruimte voor opslag en bijvoorbeeld de fiets(en).
De bungalow wordt omringd door de tuin, welke op het zuid/westen is gelegen, waardoor er optimaal van het buitenleven geprofiteerd kan worden. In de tuin is een terras aanwezig.
Kenmerken:
- Bouwjaar: 2018, eerste eigenaar
- Volledig geïsoleerd
- Woonoppervlakte: 56m2 (70m2 oppervak woning)
- Perceel oppervlakte: 458m2 eigen grond
- Parkkosten voor 2024: € 50,83 per maand excl. water-elektra etc.
- Het is mogelijk om individuele zonnepanelen te plaatsen op het dak
- Permanente bewoning is niet toegestaan, wel is verhuur mogelijk
- De stoffering en meubilering van de woning is ter overname
- Aanvaarding per direct mogelijk
Op loopafstand van het vakantiepark ligt De IJzeren Man, een recreatieplas voor jong en oud; van een frisse duik in het water, een wandeling rondom het gebied tot een bezoek aan het strand, het klimbos of een van de hoogwaardige horecagelegenheden zoals o.a. de beachclub.
Ook liefhebbers van de paardensport of golfsport kunnen in deze omgeving volop terecht. Zo zijn er diverse paardenmaneges en pensionstallen in nabijheid gelegen, alsmede het Nationaal Park de Loonse en Drunense Duinen. Dit unieke natuurgebied is een van de grootste stuifzandgebieden van West-Europa.
Golfbaan Bernadus in Cromvoirt is een unieke 18-holes golfbaan in hartje Brabant - waar onder andere het Dutch Open wordt gespeeld - en is ontworpen als een uitdagende baan voor elk niveau.
Vanaf Recreatiepark Landgoed De Zandleij ontdekt u de unieke natuurgebieden met de auto, fiets of te voet. En tot slot: De Efteling is op 20 minuten gelegen en vergeet vooral niet Den Bosch te ontdekken!
Kenmerken
Overdracht
- Vraagprijs
- € 320.000 k.k.
- Vraagprijs per m²
- € 4.571
- Aangeboden sinds
- 5 november 2025
- Status
- Beschikbaar
- Aanvaarding
- Per datum
Bouw
- Soort woning
- Woonhuis
- Bouwjaar
- 2018
- Soort dak
- Plat dak
Oppervlakten en inhoud
- Oppervlakte wonen
- 70 m²
- Oppervlakte externe bergruimte
- 6 m²
- Perceel
- 458 m²
- Inhoud
- 183 m³
Indeling
- Aantal kamers
- 3
- Aantal slaapkamers
- 2
- Aantal badkamers
- 1
- Badkamervoorzieningen
- Toilet, douche, wastafelmeubel en wasmachineaansluiting
- Aantal woonlagen
- 1
- Voorzieningen
- Mechanische ventilatie, tv-kabel, buitenzonwering en schuifpui
Energie
- Isolatie
- Volledig geïsoleerd
- Verwarming
- Hete lucht verwarming
Buitenruimte
- Tuin
- Tuin rondom
- Tuin rondom
- Met achterom
Bergruimte
- Schuur/berging
- Vrijstaand hout
Garage
- Soort garage
- Geen garage