Word je warm van ons verhaal? Laten we samen kennismaken!
Neem contact op- 109 m²
- 128 m²
- 3
- B
Omschrijving
Gelegen aan de rand van Oudheusden bevindt zich deze zeer nette, uitgebouwde tussenwoning met berging, vernieuwde achtertuin, woonkeuken, 3 slaapkamers en waskamer. De woning is in 2022 voorzien van 8 zonnepanelen en heeft energielabel B. Bijna de gehele woning is voorzien van dubbel glas.
Lopend of met de fiets bevindt u zich binnen enkele minuten in de rust van de natuur en bij de supermarkt om de hoek.
Door de ligging aan de rand van Oudheusden zijn de uitvalswegen snel bereikbaar en bent u binnen enkele minuten op de snelweg. Maar ook de vesting Heusden ligt op slechts 5 minuten fietsafstand. Even een boodschap halen, naar de bakker of een terrasje pakken, je bent er zo.
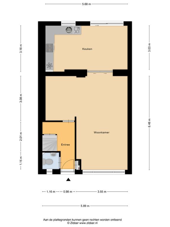
INDELING
Begane grond:
Entree met vernieuwde meterkast (2022), toilet, trapkast, trapopgang naar eerste verdieping en toegang tot de woonkamer. De woonkamer heeft prettig lichtinval door de grote ramen aan de voorzijde. De aangebouwde woonkeuken is te bereiken door middel van schuifdeuren tussen de woonkamer en de woonkeuken. De keuken is voorzien van een keukenblok in hoekopstelling met prettig veel kastruimte en diverse inbouwapparatuur, zoals een gasfornuis, vaatwasser, koelkast, afzuigkap, diepvries en oven. De gehele begane grond is afgewerkt met plavuizen, in de woonkamer en woonkeuken voorzien van vloerverwarming. Vanuit de woonkeuken is er middels een schuifpui toegang tot de tuin. Het raam aan de voorkant bij de voortuin beschikt over een zonnescherm.
Eerste verdieping:
De overloop geeft toegang tot twee slaapkamers, de waskamer (voormalige slaapkamer) en de badkamer. De badkamer is volledig betegeld en voorzien van een douche en wastafel.
Zolder:
Door middel van een vaste trap is de overloop op de zolder te bereiken. Hier is de opstelling van de cv-combiketel (Nefit Topline uit 2007, gereviseerd). De overloop geeft toegang tot de vierde slaapkamer. De dakkapel aan de achterzijde van de woning geeft veel extra ruimte op deze verdieping.
Buiten:
De fijne en onderhoudsvriendelijke achtertuin is volledig betegeld en beschikt over een stenen berging gelegen achter in de tuin. Er is een zonneluifel aanwezig en de tuin is mooi aangelegd met sierbestrating, plantenborders en leuke boompjes. De tuin heeft een achterom via de berging.
Toon meer
Lopend of met de fiets bevindt u zich binnen enkele minuten in de rust van de natuur en bij de supermarkt om de hoek.
Door de ligging aan de rand van Oudheusden zijn de uitvalswegen snel bereikbaar en bent u binnen enkele minuten op de snelweg. Maar ook de vesting Heusden ligt op slechts 5 minuten fietsafstand. Even een boodschap halen, naar de bakker of een terrasje pakken, je bent er zo.
INDELING
Begane grond:
Entree met vernieuwde meterkast (2022), toilet, trapkast, trapopgang naar eerste verdieping en toegang tot de woonkamer. De woonkamer heeft prettig lichtinval door de grote ramen aan de voorzijde. De aangebouwde woonkeuken is te bereiken door middel van schuifdeuren tussen de woonkamer en de woonkeuken. De keuken is voorzien van een keukenblok in hoekopstelling met prettig veel kastruimte en diverse inbouwapparatuur, zoals een gasfornuis, vaatwasser, koelkast, afzuigkap, diepvries en oven. De gehele begane grond is afgewerkt met plavuizen, in de woonkamer en woonkeuken voorzien van vloerverwarming. Vanuit de woonkeuken is er middels een schuifpui toegang tot de tuin. Het raam aan de voorkant bij de voortuin beschikt over een zonnescherm.
Eerste verdieping:
De overloop geeft toegang tot twee slaapkamers, de waskamer (voormalige slaapkamer) en de badkamer. De badkamer is volledig betegeld en voorzien van een douche en wastafel.
Zolder:
Door middel van een vaste trap is de overloop op de zolder te bereiken. Hier is de opstelling van de cv-combiketel (Nefit Topline uit 2007, gereviseerd). De overloop geeft toegang tot de vierde slaapkamer. De dakkapel aan de achterzijde van de woning geeft veel extra ruimte op deze verdieping.
Buiten:
De fijne en onderhoudsvriendelijke achtertuin is volledig betegeld en beschikt over een stenen berging gelegen achter in de tuin. Er is een zonneluifel aanwezig en de tuin is mooi aangelegd met sierbestrating, plantenborders en leuke boompjes. De tuin heeft een achterom via de berging.
Kenmerken
Overdracht
- Aangeboden sinds
- 21 oktober 2025
- Status
- Verkocht
- Aanvaarding
- In overleg
Bouw
- Soort woning
- Woonhuis
- Bouwjaar
- 1979
- Soort dak
- Zadeldak
Oppervlakten en inhoud
- Oppervlakte wonen
- 109 m²
- Oppervlakte externe bergruimte
- 12 m²
- Perceel
- 128 m²
- Inhoud
- 391 m³
Indeling
- Aantal kamers
- 7
- Aantal slaapkamers
- 3
- Aantal badkamers
- 1
- Badkamervoorzieningen
- Douche en wastafelmeubel
- Aantal woonlagen
- 3
- Voorzieningen
- Schuifpui, glasvezel kabel en zonnepanelen
Energie
- Energielabel
- B
- Isolatie
- Dakisolatie, vloerisolatie en grotendeels dubbelglas
- Verwarming
- Cv-ketel
- Warm water
- Cv-ketel
- Cv-ketel
- Nefit Topline (combiketel uit 2007)
Buitenruimte
- Tuin
- Achtertuin en voortuin
- Achtertuin
- 65 m² gelegen op het noordwesten met achterom
Bergruimte
- Schuur/berging
- Vrijstaand steen
Garage
- Soort garage
- Geen garage