Word je warm van ons verhaal? Laten we samen kennismaken!
Neem contact op- 156 m²
- 250 m²
- 5
- A
Omschrijving
Unieke kans!! De woning is in 2017 opgeleverd, zeer goed afgewerkt, instapklaar en is aan de achterzijde uitgebouwd met een serre/tuinkamer. De woning is voorzien van 4 slaapkamers en 2 badkamers.
Strak en keurige hoekwoning op rustige locatie aan de rand van Vlijmen met eigen oprit en gunstig gelegen tuin op het zuid-oosten. De architectuur is speels en modern. De woonwijk grenst aan het Zuiderpark en is bekend vanwege de royale en groene opzet. De dorpse voorzieningen zijn binnen handbereik, de afstand tot het centrum van ’s-Hertogenbosch bedraagt slechts tien autominuten. De woning is voorzien van airco. De airco's zijn geplaatst in de woonkamer, op zolder en in de serre in 2021.
Begane grond:
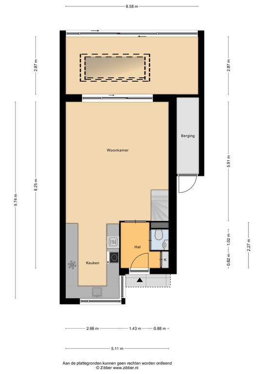
Hal/entree met toiletruimte, meterkast, en toegang tot de sfeervolle woonkamer die voorzien is van grote raampartijen vanuit de serre waardoor er veel natuurlijke lichtinval is.
Vanuit de woonkamer is de keuken (2022) te bereiken, de keuken is voorzien van een eiken houten parket vloer met vloerverwarming en is zeer luxe afgewerkt. De keuken is voorzien van diverse inbouwapparatuur, te weten: koelkast, vriezer, vaatwasser, combi oven, oven, inductiekookplaat met afzuigkap (Bora) en een wijnklimaatkast.
Doordat de woning is uitgebouwd aan de achterzijde waar de serre is gecreëerd, biedt de leefruimte op de begane grond veel verschillende mogelijkheden om naar eigen wens in te delen. Door grote schuifdeuren is de serre volledig bij de woonkamer te betrekken. De woonkamer is voorzien van een houten eiken houtvloer.
Eerste verdieping:
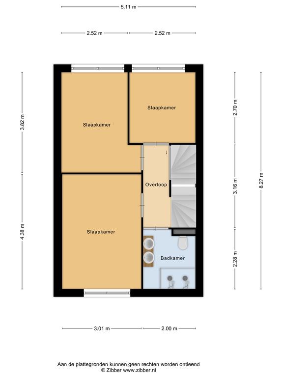
Via de overloop, zijn de drie volwaardige slaapkamers en de badkamer bereikbaar. Tevens bevindt zich hier de vaste trap naar de tweede verdieping. Twee slaapkamers bevinden zich aan de achterzijde van de woning de andere slaapkamer bevindt zich aan de voorzijde. De slaapkamers op deze verdieping zijn allemaal voorzien van rolluiken. De badkamer is volledig betegeld en zeer modern afgewerkt en is voorzien van een toilet, dubbele wastafel, designradiator, en een dubbele douche.
Tweede verdieping:
Via de overloop, is de wasruimte met C.V. installatie (2017) en de ruime 4de slaapkamer bereikbaar, hier is zeer creatief met de ruimte omgegaan. Het slaapgedeelte is verhoogd welke met een trap bereikbaar is en daardoor geniet de kamer van veel ruimte. De slaapkamer is voorzien van een inbouwkast en een nette laminaat vloer. Ook is er op deze verdieping een tweede badkamer geplaatst welke is voorzien van een whirlpool en toilet.
Tuin:
De ruime achtertuin is gunstig gelegen op het zuidoosten, waardoor je veel zon hebt. De tuin is onderhoudsvriendelijke en beschikt over een mooie tegelvloer, koivijver en een gazon.
Achter in de tuin staat een ruime overkapping, waar zich een bar bevind voor een gezellig zomeravond. Naast de veranda bevindt zich nog een opbergruimte. Via de oprit naast de entree is nog een berging waar eventueel fietsen gestald kunnen worden.
Algemeen:
- In 2017 opgeleverd;
- Diepe achtertuin op het zuid-oosten;
- Woonkamer voorzien van vloerverwarming;
- De woning is zeer luxe afgewerkt;
- Meterkast met 9 groepen;
- 2 badkamers;
- Basisscholen en diverse voorzieningen op loopafstand;
- De A59 is snel en eenvoudig te bereiken;
Toon meer
Strak en keurige hoekwoning op rustige locatie aan de rand van Vlijmen met eigen oprit en gunstig gelegen tuin op het zuid-oosten. De architectuur is speels en modern. De woonwijk grenst aan het Zuiderpark en is bekend vanwege de royale en groene opzet. De dorpse voorzieningen zijn binnen handbereik, de afstand tot het centrum van ’s-Hertogenbosch bedraagt slechts tien autominuten. De woning is voorzien van airco. De airco's zijn geplaatst in de woonkamer, op zolder en in de serre in 2021.
Begane grond:
Hal/entree met toiletruimte, meterkast, en toegang tot de sfeervolle woonkamer die voorzien is van grote raampartijen vanuit de serre waardoor er veel natuurlijke lichtinval is.
Vanuit de woonkamer is de keuken (2022) te bereiken, de keuken is voorzien van een eiken houten parket vloer met vloerverwarming en is zeer luxe afgewerkt. De keuken is voorzien van diverse inbouwapparatuur, te weten: koelkast, vriezer, vaatwasser, combi oven, oven, inductiekookplaat met afzuigkap (Bora) en een wijnklimaatkast.
Doordat de woning is uitgebouwd aan de achterzijde waar de serre is gecreëerd, biedt de leefruimte op de begane grond veel verschillende mogelijkheden om naar eigen wens in te delen. Door grote schuifdeuren is de serre volledig bij de woonkamer te betrekken. De woonkamer is voorzien van een houten eiken houtvloer.
Eerste verdieping:
Via de overloop, zijn de drie volwaardige slaapkamers en de badkamer bereikbaar. Tevens bevindt zich hier de vaste trap naar de tweede verdieping. Twee slaapkamers bevinden zich aan de achterzijde van de woning de andere slaapkamer bevindt zich aan de voorzijde. De slaapkamers op deze verdieping zijn allemaal voorzien van rolluiken. De badkamer is volledig betegeld en zeer modern afgewerkt en is voorzien van een toilet, dubbele wastafel, designradiator, en een dubbele douche.
Tweede verdieping:
Via de overloop, is de wasruimte met C.V. installatie (2017) en de ruime 4de slaapkamer bereikbaar, hier is zeer creatief met de ruimte omgegaan. Het slaapgedeelte is verhoogd welke met een trap bereikbaar is en daardoor geniet de kamer van veel ruimte. De slaapkamer is voorzien van een inbouwkast en een nette laminaat vloer. Ook is er op deze verdieping een tweede badkamer geplaatst welke is voorzien van een whirlpool en toilet.
Tuin:
De ruime achtertuin is gunstig gelegen op het zuidoosten, waardoor je veel zon hebt. De tuin is onderhoudsvriendelijke en beschikt over een mooie tegelvloer, koivijver en een gazon.
Achter in de tuin staat een ruime overkapping, waar zich een bar bevind voor een gezellig zomeravond. Naast de veranda bevindt zich nog een opbergruimte. Via de oprit naast de entree is nog een berging waar eventueel fietsen gestald kunnen worden.
Algemeen:
- In 2017 opgeleverd;
- Diepe achtertuin op het zuid-oosten;
- Woonkamer voorzien van vloerverwarming;
- De woning is zeer luxe afgewerkt;
- Meterkast met 9 groepen;
- 2 badkamers;
- Basisscholen en diverse voorzieningen op loopafstand;
- De A59 is snel en eenvoudig te bereiken;
Kenmerken
Overdracht
- Aangeboden sinds
- 21 oktober 2025
- Status
- Verkocht
- Aanvaarding
- In overleg
Bouw
- Soort woning
- Woonhuis
- Bouwjaar
- 2017
Oppervlakten en inhoud
- Oppervlakte wonen
- 156 m²
- Oppervlakte overige inpandige ruimte
- 4 m²
- Oppervlakte gebouwgebonden buitenruimte
- 1 m²
- Oppervlakte externe bergruimte
- 8 m²
- Perceel
- 250 m²
- Inhoud
- 574 m³
Indeling
- Aantal kamers
- 7
- Aantal slaapkamers
- 5
- Aantal badkamers
- 2
- Badkamervoorzieningen
- Toilet, dubbele wastafel, inloopdouche en ligbad
- Aantal woonlagen
- 4
- Voorzieningen
- Mechanische ventilatie, rolluiken, tv-kabel, schuifpui en dakraam
Energie
- Energielabel
- A
- Isolatie
- Dakisolatie, muurisolatie, vloerisolatie en dubbel glas
- Verwarming
- Cv-ketel en vloerverwarming gedeeltelijk
- Warm water
- Cv-ketel
- Cv-ketel
- Intergas (combiketel uit 2017)
Buitenruimte
- Ligging
- Aan bosrand, aan rustige weg, in woonwijk en in bosrijke omgeving
- Tuin
- Achtertuin en voortuin
- Achtertuin
- 68 m² gelegen op het zuidoosten met achterom
Bergruimte
- Schuur/berging
- Vrijstaand hout
- Voorzieningen
- Voorzien van elektra
Garage
- Soort garage
- Geen garage