Word je warm van ons verhaal? Laten we samen kennismaken!
Neem contact op- 117 m²
- 284 m²
- 4
- C
Omschrijving
Royale 2-onder-1-kapwoning met oprit, grote garage, deels uitgebouwde keuken en diepe tuin met overkapping in de geliefde wijk Vliedberg
In de fijne en centraal gelegen wijk Vliedberg staat deze royale 2-onder-1-kapwoning met eigen oprit, grote garage, een deels uitgebouwde keuken en een verrassend diepe achtertuin met overkapping en ruimte voor een volwaardige buitenkeuken. De woning ademt ruimte, licht en comfort, met een grote woonkamer, drie slaapkamers op de eerste verdieping en een vierde kamer op zolder. Daarbij liggen winkels, scholen, sportclubs en het complete winkelaanbod van zowel Vliedberg als Vlijmen op loop- en fietsafstand.
INDELING
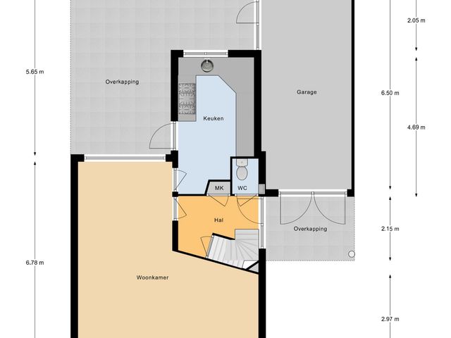
Begane grond:
Bij binnenkomst in de hal vind je direct het separate toilet, de meterkast en toegang tot de voorraadkast. Vanuit hier loop je door naar de woonkamer, warm, uitnodigend en heerlijk licht dankzij de brede raampartijen aan de voorzijde. De zithoek biedt volop ruimte voor een royale hoekbank en aan de achterzijde is de eethoek gesitueerd. Aan de achterzijde ligt de afgesloten keuken, die door de uitbouw merkbaar ruimer is geworden. De keuken staat in een praktische U-opstelling en is uitgerust met onder andere een groot gasfornuis met oven, afzuigkap, vaatwasser en inbouwmagnetron. Vanuit de keuken loop je zo de tuin in.
Eerste verdieping:
De overloop biedt extra kastruimte en geeft toegang tot drie slaapkamers. De hoofdslaapkamer aan de voorzijde is opvallend licht en royaal uitgevoerd, met voldoende plek voor een tweepersoonsbed en een grote kledingkast. De twee andere slaapkamers zijn ruim genoeg voor diverse indelingen en kunnen uitstekend dienen als kantoorruimte, kinderkamer, logeerkamer of inloopkast. De badkamer is volledig uitgerust met een ligbad, inloopdouche, toilet en wastafel. Dankzij het dakraam, de lichte afwerking en het natuurlijke licht voelt de ruimte ruim en prettig aan.
Tweede verdieping:
Via de vaste trap bereik je de tweede verdieping, waar de overloop ruimte biedt aan de cv-installatie (2023) en extra bergruimte. Aansluitend ligt een keurige slaapkamer met handige bergschotten en een eigen wastafel, waardoor deze verdieping perfect dienst kan doen als extra slaapkamer.
Buitenruimte:
De diepe achtertuin is aangelegd met een combinatie van gazon en bestrating, waardoor je meerdere zit-, speel- en gebruiksplekken hebt. Direct aan de woning bevindt zich een ruime overdekte overkapping, ideaal voor een comfortabele zithoek waar je het hele jaar door beschut kunt genieten. Achter de garage is bovendien een extra overdekte ruimte ingericht, perfect als buitenkeuken of hobbyplek.
De garage is zowel vanuit de tuin als vanaf de oprit bereikbaar en biedt volop opslagruimte. Hier bevinden zich tevens de wasmachine- en drogeraansluitingen.
Bijzonderheden:
- Royale 2-onder-1-kapwoning op een ruim perceel;
- Eigen oprit én grote garage;
- Deels uitgebouwde keuken in praktische U-opstelling;
- Vier slaapkamers, waarvan één op de tweede verdieping;
- Badkamer met ligbad, inloopdouche, toilet en wastafel, plus dakraam;
- Cv-installatie (2023) en energielabel C;
- Diepe achtertuin met gazon, bestrating en grote overkapping;
- Rustige, kindvriendelijke ligging in de gewilde wijk Vliedberg;
- Winkels, scholen, sportvoorzieningen en uitvalswegen in de directe nabijheid.
Toon meer
In de fijne en centraal gelegen wijk Vliedberg staat deze royale 2-onder-1-kapwoning met eigen oprit, grote garage, een deels uitgebouwde keuken en een verrassend diepe achtertuin met overkapping en ruimte voor een volwaardige buitenkeuken. De woning ademt ruimte, licht en comfort, met een grote woonkamer, drie slaapkamers op de eerste verdieping en een vierde kamer op zolder. Daarbij liggen winkels, scholen, sportclubs en het complete winkelaanbod van zowel Vliedberg als Vlijmen op loop- en fietsafstand.
INDELING
Begane grond:
Bij binnenkomst in de hal vind je direct het separate toilet, de meterkast en toegang tot de voorraadkast. Vanuit hier loop je door naar de woonkamer, warm, uitnodigend en heerlijk licht dankzij de brede raampartijen aan de voorzijde. De zithoek biedt volop ruimte voor een royale hoekbank en aan de achterzijde is de eethoek gesitueerd. Aan de achterzijde ligt de afgesloten keuken, die door de uitbouw merkbaar ruimer is geworden. De keuken staat in een praktische U-opstelling en is uitgerust met onder andere een groot gasfornuis met oven, afzuigkap, vaatwasser en inbouwmagnetron. Vanuit de keuken loop je zo de tuin in.
Eerste verdieping:
De overloop biedt extra kastruimte en geeft toegang tot drie slaapkamers. De hoofdslaapkamer aan de voorzijde is opvallend licht en royaal uitgevoerd, met voldoende plek voor een tweepersoonsbed en een grote kledingkast. De twee andere slaapkamers zijn ruim genoeg voor diverse indelingen en kunnen uitstekend dienen als kantoorruimte, kinderkamer, logeerkamer of inloopkast. De badkamer is volledig uitgerust met een ligbad, inloopdouche, toilet en wastafel. Dankzij het dakraam, de lichte afwerking en het natuurlijke licht voelt de ruimte ruim en prettig aan.
Tweede verdieping:
Via de vaste trap bereik je de tweede verdieping, waar de overloop ruimte biedt aan de cv-installatie (2023) en extra bergruimte. Aansluitend ligt een keurige slaapkamer met handige bergschotten en een eigen wastafel, waardoor deze verdieping perfect dienst kan doen als extra slaapkamer.
Buitenruimte:
De diepe achtertuin is aangelegd met een combinatie van gazon en bestrating, waardoor je meerdere zit-, speel- en gebruiksplekken hebt. Direct aan de woning bevindt zich een ruime overdekte overkapping, ideaal voor een comfortabele zithoek waar je het hele jaar door beschut kunt genieten. Achter de garage is bovendien een extra overdekte ruimte ingericht, perfect als buitenkeuken of hobbyplek.
De garage is zowel vanuit de tuin als vanaf de oprit bereikbaar en biedt volop opslagruimte. Hier bevinden zich tevens de wasmachine- en drogeraansluitingen.
Bijzonderheden:
- Royale 2-onder-1-kapwoning op een ruim perceel;
- Eigen oprit én grote garage;
- Deels uitgebouwde keuken in praktische U-opstelling;
- Vier slaapkamers, waarvan één op de tweede verdieping;
- Badkamer met ligbad, inloopdouche, toilet en wastafel, plus dakraam;
- Cv-installatie (2023) en energielabel C;
- Diepe achtertuin met gazon, bestrating en grote overkapping;
- Rustige, kindvriendelijke ligging in de gewilde wijk Vliedberg;
- Winkels, scholen, sportvoorzieningen en uitvalswegen in de directe nabijheid.
Kenmerken
Overdracht
- Vraagprijs
- € 500.000 k.k.
- Vraagprijs per m²
- € 4.274
- Aangeboden sinds
- 4 december 2025
- Status
- Beschikbaar
- Aanvaarding
- In overleg
Bouw
- Soort woning
- Woonhuis
- Bouwjaar
- 1970
- Soort dak
- Zadeldak
Oppervlakten en inhoud
- Oppervlakte wonen
- 117 m²
- Oppervlakte overige inpandige ruimte
- 20 m²
- Oppervlakte gebouwgebonden buitenruimte
- 39 m²
- Perceel
- 284 m²
- Inhoud
- 471 m³
Indeling
- Aantal kamers
- 6
- Aantal slaapkamers
- 4
- Aantal badkamers
- 1
- Badkamervoorzieningen
- Ligbad, toilet, douche en wastafel
- Aantal woonlagen
- 3
- Voorzieningen
- Tv-kabel, dakraam, glasvezel kabel en natuurlijke ventilatie
Energie
- Energielabel
- C
- Isolatie
- Muurisolatie en hr glas
- Verwarming
- Cv-ketel
- Warm water
- Cv-ketel
- Cv-ketel
- Nefit ProLine NxT HRC30 CW5 (combiketel uit 2023)
Buitenruimte
- Ligging
- In woonwijk en in bosrijke omgeving
- Tuin
- Achtertuin
- Achtertuin
- 177 m² gelegen op het noorden
Garage
- Soort garage
- Aangebouwd steen
- Capaciteit
- 1
- Voorzieningen
- Elektra