Word je warm van ons verhaal? Laten we samen kennismaken!
Neem contact op- 59 m²
- 1
- A
Omschrijving
Ruim 2 kamer appartement met berging en privé parkeerplaats.
Het appartement is gelegen in het Paleiskwartier direct nabij het Centraal Station, het Bourgondische centrum van ’s-Hertogenbosch. Op een steenworpafstand bevinden zich gezellige restaurants, een supermarkt, bioscoop Kinepolis, het culinaire plein, de Paleisbrug en diverse culturele voorzieningen.
Het appartement is gelegen op de eerste verdieping van het complex, een vijf verdiepingen tellend hoogwaardig afgewerkt appartementencomplex dat in 2006 gebouwd is en voldoet aan alle hedendaagse wensen en wooneisen. In het Paleiskwartier wordt gebruik gemaakt van een zogenaamde koude- en warmteopslag t.b.v. de verwarming en warmwatervoorziening. Het Paleiskwartier is hiermee een voorbeeld op het gebied van duurzaam energiegebruik.
We komen het appartementencomplex binnen via het gezamenlijke entree. Hier bevindt zich het bellentableau met een videofooninstallatie en de brievenbussen. Vanuit deze centrale hal hebben we toegang tot het trappenhuis en de liften. Vanuit hier kunnen we de kelder bereiken alwaar zich een berging bevinden. De centrale hal is royaal en middels de lift zijn de verdiepingen te bereiken.
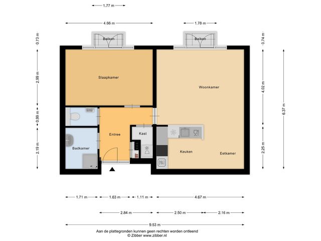
Het appartement betreft een zeer goed en modern afgewerkt 2-kamerappartement. De totale woonoppervlakte bedraagt circa 59 m2 en een balkon van circa 3 m2. Achter de voordeur komen we allereerst in de hal met meterkast, toilet met fonteintje en berging met de aansluitingen ten behoeve van de wasapparatuur. Aan het einde van de hal is de woonkamer gelegen. Vanuit de woonkamer kunnen we het balkon bereiken. De open keuken beschikt over een inductie kookplaat en afzuigkap.
De badkamer is uitgerust met een douchecabine en wastafel. Het geheel is afgewerkt in een lichte kleurstelling. In de hal bevindt zich ook nog een aparte bergruimte met de was- en drogeraansluitingen en de wisselaar voor de stadsverwarming en de mechanische afzuiging.
Bijzonderheden
- Per 1 mei 2025 beschikbaar
- Inclusief parkeerplaats
- Berging in het souterrain
- Nieuwe inductie kookplaat
- Balkon op het zuiden
- Servicekosten VvE; € 186,67 per maand
Toon meer
Het appartement is gelegen in het Paleiskwartier direct nabij het Centraal Station, het Bourgondische centrum van ’s-Hertogenbosch. Op een steenworpafstand bevinden zich gezellige restaurants, een supermarkt, bioscoop Kinepolis, het culinaire plein, de Paleisbrug en diverse culturele voorzieningen.
Het appartement is gelegen op de eerste verdieping van het complex, een vijf verdiepingen tellend hoogwaardig afgewerkt appartementencomplex dat in 2006 gebouwd is en voldoet aan alle hedendaagse wensen en wooneisen. In het Paleiskwartier wordt gebruik gemaakt van een zogenaamde koude- en warmteopslag t.b.v. de verwarming en warmwatervoorziening. Het Paleiskwartier is hiermee een voorbeeld op het gebied van duurzaam energiegebruik.
We komen het appartementencomplex binnen via het gezamenlijke entree. Hier bevindt zich het bellentableau met een videofooninstallatie en de brievenbussen. Vanuit deze centrale hal hebben we toegang tot het trappenhuis en de liften. Vanuit hier kunnen we de kelder bereiken alwaar zich een berging bevinden. De centrale hal is royaal en middels de lift zijn de verdiepingen te bereiken.
Het appartement betreft een zeer goed en modern afgewerkt 2-kamerappartement. De totale woonoppervlakte bedraagt circa 59 m2 en een balkon van circa 3 m2. Achter de voordeur komen we allereerst in de hal met meterkast, toilet met fonteintje en berging met de aansluitingen ten behoeve van de wasapparatuur. Aan het einde van de hal is de woonkamer gelegen. Vanuit de woonkamer kunnen we het balkon bereiken. De open keuken beschikt over een inductie kookplaat en afzuigkap.
De badkamer is uitgerust met een douchecabine en wastafel. Het geheel is afgewerkt in een lichte kleurstelling. In de hal bevindt zich ook nog een aparte bergruimte met de was- en drogeraansluitingen en de wisselaar voor de stadsverwarming en de mechanische afzuiging.
Bijzonderheden
- Per 1 mei 2025 beschikbaar
- Inclusief parkeerplaats
- Berging in het souterrain
- Nieuwe inductie kookplaat
- Balkon op het zuiden
- Servicekosten VvE; € 186,67 per maand
Kenmerken
Overdracht
- Aangeboden sinds
- 5 augustus 2025
- Status
- Verkocht
- Aanvaarding
- Per datum
- Bijdrage VvE
- € 186,67 per maand
Bouw
- Soort woning
- Appartement
- Soort appartement
- Portiekflat
- Bouwjaar
- 2006
Oppervlakten en inhoud
- Oppervlakte wonen
- 59 m²
- Oppervlakte gebouwgebonden buitenruimte
- 3 m²
- Oppervlakte externe bergruimte
- 4 m²
- Inhoud
- 195 m³
Indeling
- Aantal kamers
- 2
- Aantal slaapkamers
- 1
- Aantal badkamers
- 1
- Badkamervoorzieningen
- Douche en wastafel
- Aantal woonlagen
- 1
- Voorzieningen
- Mechanische ventilatie en balansventilatie
Energie
- Energielabel
- A
- Isolatie
- Volledig geïsoleerd
- Verwarming
- Stadsverwarming
- Warm water
- Centrale voorziening
Buitenruimte
- Tuin
- Geen tuin
Bergruimte
- Schuur/berging
- Inpandig
Garage
- Soort garage
- Parkeerkelder en parkeerplaats
Vereniging van Eigenaren
- Inschrijving KvK
- Ja
- Jaarlijkse vergadering
- Ja
- Periodieke bijdrage
- Reservefonds aanwezig
- Ja
- Onderhoudsplan
- Ja
- Opstalverzekering
- Ja