- 159 m²
- 3
- B
Omschrijving
Riant penthouse van circa 159 m2 in ’s-Hertogenbosch Zuid met 2 riante slaapkamers (mogelijkheid tot 3), 2 badkamers en een privé parkeerplaats. Mooi gelegen op de hoek van de 4e en tevens bovenste verdieping met zowel aan de voor- als aan de achterzijde een groot dakterras!
Gesitueerd in appartementencomplex Zuiderpoort met vrij en weids zicht over de omgeving, een bijzonder royale living, 2 slaapkamers (mogelijkheid tot 3), inpandige berging, gezamenlijke fietsstalling en een overdekte, privé parkeerplaats op het afgesloten binnenterrein. Wonen in Zuid, één van de meest gewilde stadsdelen, betekent wonen nabij de Bourgondische binnenstad, het Zuiderpark en het Bosche Broek. Diverse voorzieningen als een winkelcentrum met dagelijkse voorzieningen en een bushalte zijn binnen een straal van 100 meter bereikbaar. Comfortabel en fijn wonen op een perfecte locatie!
Begane grond:
Op de begane grond is de gezamenlijke, nette entree met brievenbussen, automatische deur en videofoon-installatie. Via de lift of trap is er toegang tot het appartement op de 4e verdieping. De carports zijn gelegen aan de achterzijde van het complex, waarvan één vaste parkeerplaats behoort tot het appartement. Het afgesloten terrein is op afstand te openen met afstandbediening. Op het terrein is een elektrische laadpaal aanwezig.
4e Verdieping:
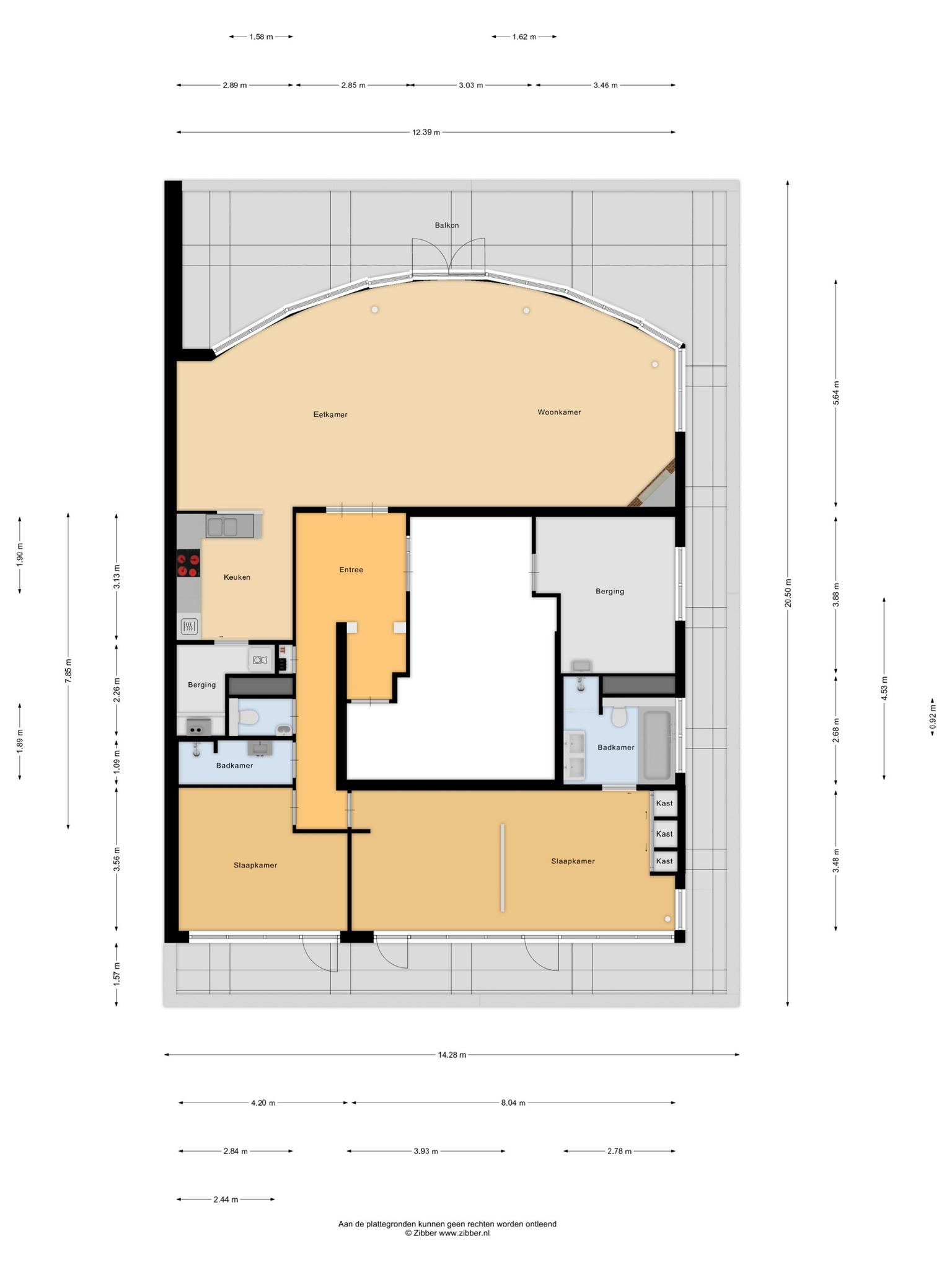
Vanuit de lift bereik je een portaal met enkel toegang tot dit penthouse en tot de eigen, ruime berging. Deze berging is eventueel om te bouwen als slaapkamer. Binnenkomst in de hal met dubbele, glazen deuren naar de riante living met een totale breedte van ruim 12 meter! De grote raampartijen met halfronde erker maken het tot een fantastisch lichte ruimte en bieden fraai en vrij uitzicht over de omgeving. Er is meer dan voldoende ruimte voor een riante zit- en eethoek. De living is afgewerkt met een gezellige gashaard en middels openslaande deuren is het dakterras bereikbaar. Het terras is gunstig gesitueerd op het zuidwesten, deels overkapt en strekt zich uit over de volle breedte van het penthouse. Het weidse uitzicht is vanaf dit niveau is erg mooi!
De keuken staat in open verbinding met de living en is voorzien van een keukenmeubel in een lichtgroene kleurstelling met een hoekvorming wandmeubel en diverse inbouwapparatuur zoals een combimagnetron, keramische kookplaat,afzuigkap, koelkast en een vaatwasser. Naast de keuken bevindt zich een bijkeuken met de aansluitingen voor de wasapparatuur, standplaats van de combi-ketel, mechanische ventilatie-unit en plek voor bijvoorbeeld een extra koelkast of vriezer.
Via de hal zijn ook de overige vertrekken bereikbaar, waaronder de 2 volwaardige slaapkamers aan de achterzijde van het complex. Beide slaapkamers beschikken over toegang tot het aldaar gesitueerde, 2e dakterras. Ditmaal gesitueerd op het noordoosten en wederom uitgestrekt over de volle breedte. Beide terrassen staan met elkaar in verbinding via een aan de zijkant gesitueerd loopgedeelte. De hoofdslaapkamer is wel zeer riant en heeft de luxe van een eigen badkamer en-suite. Desgewenst is deze slaapkamer eenvoudig op te splitsen in 2 kamers.
Deze badkamer is ingericht met een ligbad, douche, wastafelmeubel en een toilet. De andere slaapkamer kan gebruik maken van een 2e badkamer met douche en badmeubel. Tenslotte is er nog een gastentoilet.
Dit fantastische penthouse biedt veel comfort en is geheel voorzien van dubbele beglazing. Rustig en bijzonder gunstig gelegen aan de rand van het gezellige centrum van 's-Hertogenbosch. Er zijn diverse winkels en een supermarkt (Jumbo) aan de overzijde van de straat gelegen. Voor een heerlijke wandeling is er de keus tussen natuurgebied de Bossche Broek en het Zuiderpark. Beiden liggen in de zeer nabije omgeving van het penthouse. Liever een dagje winkelen? Tien minuutjes lopen en u staat midden in de gezellige binnenstad van 's-Hertogenbosch. Winkelcentra, sportvoorzieningen en uitvalswegen zijn tevens prima bereikbaar.
Bijzonderheden:
- Riant penthouse van ca. 159m2
- Zowel aan de voor- als achterzijde een groot dakterras
- Twee (mogelijkheid tot drie) slaapkamers en twee badkamers
- Privé parkeerplaats op afgesloten binnenterrein
- Gelegen in een gewilde wijk van 's-Hertogenbosch
- VvE-bijdrage €360,82 voor het appartement en €12,61 voor parkeren
Toon meer
Gesitueerd in appartementencomplex Zuiderpoort met vrij en weids zicht over de omgeving, een bijzonder royale living, 2 slaapkamers (mogelijkheid tot 3), inpandige berging, gezamenlijke fietsstalling en een overdekte, privé parkeerplaats op het afgesloten binnenterrein. Wonen in Zuid, één van de meest gewilde stadsdelen, betekent wonen nabij de Bourgondische binnenstad, het Zuiderpark en het Bosche Broek. Diverse voorzieningen als een winkelcentrum met dagelijkse voorzieningen en een bushalte zijn binnen een straal van 100 meter bereikbaar. Comfortabel en fijn wonen op een perfecte locatie!
Begane grond:
Op de begane grond is de gezamenlijke, nette entree met brievenbussen, automatische deur en videofoon-installatie. Via de lift of trap is er toegang tot het appartement op de 4e verdieping. De carports zijn gelegen aan de achterzijde van het complex, waarvan één vaste parkeerplaats behoort tot het appartement. Het afgesloten terrein is op afstand te openen met afstandbediening. Op het terrein is een elektrische laadpaal aanwezig.
4e Verdieping:
Vanuit de lift bereik je een portaal met enkel toegang tot dit penthouse en tot de eigen, ruime berging. Deze berging is eventueel om te bouwen als slaapkamer. Binnenkomst in de hal met dubbele, glazen deuren naar de riante living met een totale breedte van ruim 12 meter! De grote raampartijen met halfronde erker maken het tot een fantastisch lichte ruimte en bieden fraai en vrij uitzicht over de omgeving. Er is meer dan voldoende ruimte voor een riante zit- en eethoek. De living is afgewerkt met een gezellige gashaard en middels openslaande deuren is het dakterras bereikbaar. Het terras is gunstig gesitueerd op het zuidwesten, deels overkapt en strekt zich uit over de volle breedte van het penthouse. Het weidse uitzicht is vanaf dit niveau is erg mooi!
De keuken staat in open verbinding met de living en is voorzien van een keukenmeubel in een lichtgroene kleurstelling met een hoekvorming wandmeubel en diverse inbouwapparatuur zoals een combimagnetron, keramische kookplaat,afzuigkap, koelkast en een vaatwasser. Naast de keuken bevindt zich een bijkeuken met de aansluitingen voor de wasapparatuur, standplaats van de combi-ketel, mechanische ventilatie-unit en plek voor bijvoorbeeld een extra koelkast of vriezer.
Via de hal zijn ook de overige vertrekken bereikbaar, waaronder de 2 volwaardige slaapkamers aan de achterzijde van het complex. Beide slaapkamers beschikken over toegang tot het aldaar gesitueerde, 2e dakterras. Ditmaal gesitueerd op het noordoosten en wederom uitgestrekt over de volle breedte. Beide terrassen staan met elkaar in verbinding via een aan de zijkant gesitueerd loopgedeelte. De hoofdslaapkamer is wel zeer riant en heeft de luxe van een eigen badkamer en-suite. Desgewenst is deze slaapkamer eenvoudig op te splitsen in 2 kamers.
Deze badkamer is ingericht met een ligbad, douche, wastafelmeubel en een toilet. De andere slaapkamer kan gebruik maken van een 2e badkamer met douche en badmeubel. Tenslotte is er nog een gastentoilet.
Dit fantastische penthouse biedt veel comfort en is geheel voorzien van dubbele beglazing. Rustig en bijzonder gunstig gelegen aan de rand van het gezellige centrum van 's-Hertogenbosch. Er zijn diverse winkels en een supermarkt (Jumbo) aan de overzijde van de straat gelegen. Voor een heerlijke wandeling is er de keus tussen natuurgebied de Bossche Broek en het Zuiderpark. Beiden liggen in de zeer nabije omgeving van het penthouse. Liever een dagje winkelen? Tien minuutjes lopen en u staat midden in de gezellige binnenstad van 's-Hertogenbosch. Winkelcentra, sportvoorzieningen en uitvalswegen zijn tevens prima bereikbaar.
Bijzonderheden:
- Riant penthouse van ca. 159m2
- Zowel aan de voor- als achterzijde een groot dakterras
- Twee (mogelijkheid tot drie) slaapkamers en twee badkamers
- Privé parkeerplaats op afgesloten binnenterrein
- Gelegen in een gewilde wijk van 's-Hertogenbosch
- VvE-bijdrage €360,82 voor het appartement en €12,61 voor parkeren
Kenmerken
Overdracht
- Vraagprijs
- € 819.500 k.k.
- Vraagprijs per m²
- € 5.154
- Aangeboden sinds
- 19 juni 2025
- Status
- Beschikbaar
- Aanvaarding
- In overleg
- Bijdrage VvE
- € 373,43 per maand
Bouw
- Soort woning
- Appartement
- Soort appartement
- Penthouse
- Bouwjaar
- 1995
Oppervlakten en inhoud
- Oppervlakte wonen
- 159 m²
- Oppervlakte gebouwgebonden buitenruimte
- 70 m²
- Oppervlakte externe bergruimte
- 12 m²
- Inhoud
- 525 m³
Indeling
- Aantal kamers
- 4
- Aantal slaapkamers
- 3
- Aantal badkamers
- 2
- Badkamervoorzieningen
- Douche, wastafel, ligbad, toilet en dubbele wastafel
- Aantal woonlagen
- 1
- Voorzieningen
- Mechanische ventilatie, lift en natuurlijke ventilatie
Energie
- Energielabel
- B
- Isolatie
- Dakisolatie, muurisolatie, vloerisolatie en dubbel glas
- Verwarming
- Cv-ketel
- Warm water
- Cv-ketel
- Cv-ketel
- Remeha (combiketel)
Buitenruimte
- Tuin
- Geen tuin
Bergruimte
- Schuur/berging
- Inpandig
Garage
- Soort garage
- Geen garage
Vereniging van Eigenaren
- Inschrijving KvK
- Ja
- Jaarlijkse vergadering
- Ja
- Periodieke bijdrage
- Reservefonds aanwezig
- Ja
- Onderhoudsplan
- Ja
- Opstalverzekering
- Ja