Word je warm van ons verhaal? Laten we samen kennismaken!
Neem contact op- 119 m²
- 259 m²
- 3
- C
Omschrijving
Uitgebouwde twee-onder-één-kapwoning met dubbeldiepe ruime garage en een grote privacy biedende achtertuin.
De woning beschikt over drie met mogelijkheid tot vier slaapkamers en is gelegen aan een rustige woonstraat. Het prachtige polderlandschap met fiets- en wandelroutes ligt om de hoek. Op korte afstand is de dorpskern van de Vliedberg te vinden met haar winkelvoorzieningen. Verder zijn er goede aansluitingen op het wegennet en is het bruisende centrum van Den Bosch op 10 minuten afstand.
INDELING:
Begane grond
Vanuit de hal/entree heeft u toegang tot de meterkast, garderobe, trapopgang naar de eerste verdieping en de woonkamer. De woonkamer met aan de voorzijde van de woning het zitgedeelte met erker en aan de achterzijde de aanbouw met keuken en eetgedeelte. Vanuit de woonkamer heeft u toegang tot deze aanbouw. De keuken is uitgebouwd en geplaatst in een L-opstelling en voorzien van een inductiekookplaat, koelkast, afzuigkap, vaatwasser, combi-oven en een spoelbak. Er is voldoende lichtinval aanwezig door het het grote raam in de achtergevel. Vanuit de keuken heeft u toegang tot de bijkeuken met toiletruimte. De toiletruimte is uitgevoerd in een lichte kleurstelling en voorzien van een wandcloset en natuurlijke ventilatie.
De tuin is prima onderhouden en voorzien van een grote veranda, terras en plantenborders. De tuin geeft u toegang tot de dubbel diepe garage. De garage is ruim van opzet door de verbreding en is voorzien van water, (kracht)stroom en voldoende opbergruimte. De voorgelegen oprit biedt ruimte voor meerdere auto's.
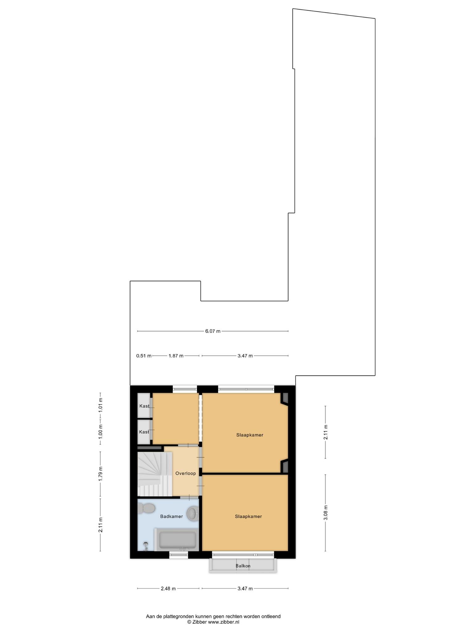
Eerste verdieping
Vanuit de overloop heeft u toegang tot de twee, voorheen drie slaapkamers, badkamer en de vaste trapopgang naar de tweede verdieping. De badkamer is uitgevoerd in een lichte kleurstelling en gesitueerd aan de voorzijde van de woning. De badkamer is voorzien van een ruime douche met thermostaatkraan, ligbad, hangcloset en wastafel.
Slaapkamer één is aan de achterzijde van de woning gelegen. Deze slaapkamer is vergroot doordat er twee slaapkamers zijn samengevoegd tot één. Deze kamer is naar eigen inzicht weer te splitsen naar twee slaapkamers. Slaapkamer twee is aan de voorzijde van de woning gesitueerd.
Tweede verdieping
Vanuit de vaste trapopgang bereikt u de voorzolder met voldoende bergruimte achter de schuifwanden voor opslag alsook de opstelling van de cv-ketel. De derde slaapkamer op de zolder beschikt over een dakkapel.
Bijzonderheden:
- Halfvrijstaande woning met ruime garage, oprit en een achterom;
- Ruime woning met veel daglicht dankzij de erker aan de voorzijde;
- Uitgebouwde keuken;
- Drie slaapkamers, met mogelijkheid tot vier;
- Gelegen in een rustige woonomgeving nabij alle voorzieningen;
Toon meer
De woning beschikt over drie met mogelijkheid tot vier slaapkamers en is gelegen aan een rustige woonstraat. Het prachtige polderlandschap met fiets- en wandelroutes ligt om de hoek. Op korte afstand is de dorpskern van de Vliedberg te vinden met haar winkelvoorzieningen. Verder zijn er goede aansluitingen op het wegennet en is het bruisende centrum van Den Bosch op 10 minuten afstand.
INDELING:
Begane grond
Vanuit de hal/entree heeft u toegang tot de meterkast, garderobe, trapopgang naar de eerste verdieping en de woonkamer. De woonkamer met aan de voorzijde van de woning het zitgedeelte met erker en aan de achterzijde de aanbouw met keuken en eetgedeelte. Vanuit de woonkamer heeft u toegang tot deze aanbouw. De keuken is uitgebouwd en geplaatst in een L-opstelling en voorzien van een inductiekookplaat, koelkast, afzuigkap, vaatwasser, combi-oven en een spoelbak. Er is voldoende lichtinval aanwezig door het het grote raam in de achtergevel. Vanuit de keuken heeft u toegang tot de bijkeuken met toiletruimte. De toiletruimte is uitgevoerd in een lichte kleurstelling en voorzien van een wandcloset en natuurlijke ventilatie.
De tuin is prima onderhouden en voorzien van een grote veranda, terras en plantenborders. De tuin geeft u toegang tot de dubbel diepe garage. De garage is ruim van opzet door de verbreding en is voorzien van water, (kracht)stroom en voldoende opbergruimte. De voorgelegen oprit biedt ruimte voor meerdere auto's.
Eerste verdieping
Vanuit de overloop heeft u toegang tot de twee, voorheen drie slaapkamers, badkamer en de vaste trapopgang naar de tweede verdieping. De badkamer is uitgevoerd in een lichte kleurstelling en gesitueerd aan de voorzijde van de woning. De badkamer is voorzien van een ruime douche met thermostaatkraan, ligbad, hangcloset en wastafel.
Slaapkamer één is aan de achterzijde van de woning gelegen. Deze slaapkamer is vergroot doordat er twee slaapkamers zijn samengevoegd tot één. Deze kamer is naar eigen inzicht weer te splitsen naar twee slaapkamers. Slaapkamer twee is aan de voorzijde van de woning gesitueerd.
Tweede verdieping
Vanuit de vaste trapopgang bereikt u de voorzolder met voldoende bergruimte achter de schuifwanden voor opslag alsook de opstelling van de cv-ketel. De derde slaapkamer op de zolder beschikt over een dakkapel.
Bijzonderheden:
- Halfvrijstaande woning met ruime garage, oprit en een achterom;
- Ruime woning met veel daglicht dankzij de erker aan de voorzijde;
- Uitgebouwde keuken;
- Drie slaapkamers, met mogelijkheid tot vier;
- Gelegen in een rustige woonomgeving nabij alle voorzieningen;
Kenmerken
Overdracht
- Aangeboden sinds
- 5 augustus 2025
- Status
- Verkocht
- Aanvaarding
- In overleg
Bouw
- Soort woning
- Woonhuis
- Bouwjaar
- 1961
- Soort dak
- Zadeldak
Oppervlakten en inhoud
- Oppervlakte wonen
- 119 m²
- Oppervlakte overige inpandige ruimte
- 19 m²
- Oppervlakte gebouwgebonden buitenruimte
- 25 m²
- Oppervlakte externe bergruimte
- 23 m²
- Perceel
- 259 m²
- Inhoud
- 490 m³
Indeling
- Aantal kamers
- 6
- Aantal slaapkamers
- 3
- Aantal badkamers
- 1
- Badkamervoorzieningen
- Ligbad, toilet, douche en wastafel
- Aantal woonlagen
- 3
- Voorzieningen
- Tv-kabel, rookkanaal en zonnepanelen
Energie
- Energielabel
- C
- Verwarming
- Cv-ketel
- Warm water
- Cv-ketel
Buitenruimte
- Ligging
- Aan rustige weg, in woonwijk, open ligging en in bosrijke omgeving
- Tuin
- Achtertuin en voortuin
- Achtertuin
- 74 m² gelegen op het noorden met achterom
Bergruimte
- Schuur/berging
- Vrijstaand hout
Garage
- Soort garage
- Aangebouwd steen
- Capaciteit
- 2
- Voorzieningen
- Verwarming, elektra en water