Word je warm van ons verhaal? Laten we samen kennismaken!
Neem contact op- 81 m²
- 189 m²
- 4
- E
Omschrijving
Ben jij op zoek naar een rustige plek met ruimte voor je gezin? Deze eindwoning biedt alles wat je nodig hebt: vier slaapkamers, een lichte woonkamer en een diepe tuin op het westen. Deze woning heeft veel potentie om helemaal naar je eigen smaakt in te richten.
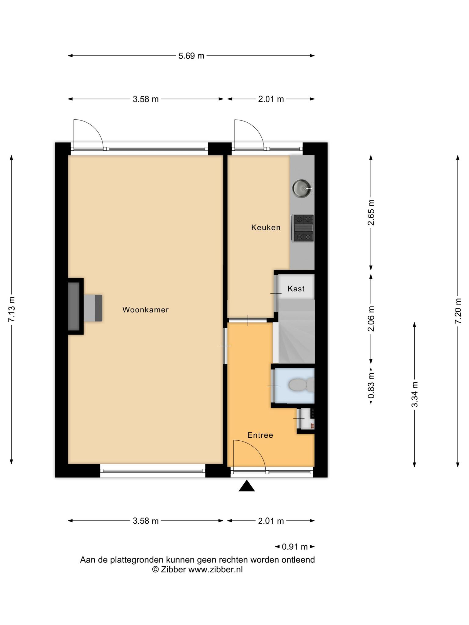
INDELING
Begane grond:
Je komt binnen in de hal die toegang biedt tot het toilet, meterkast, woonkamer en keuken. De lichte woonkamer is ruim en biedt voldoende plek voor een zithoek en eettafel. De elektrische haard voegt extra sfeer toe, perfect voor gezellige avonden. Door de grote ramen is er veel lichtinval, wat de ruimte nog groter doet aanvoelen. Aan de achterzijde van de entreehal treffen we de dichte keuken, welke voorzien is van diverse inbouwapparatuur. De tuin is zowel via de woonkamer als keuken te bereiken.
Eerste verdieping:
Op de eerste verdieping treffen we vier slaapkamers, waaronder twee ruime slaapkamers welke geschikt zijn voor een tweepersoonsbed. De andere twee slaapkamers zijn ideaal te gebruiken als kinderkamer, thuiswerkplek of inloopkast. De praktische badkamer is voorzien van een inloopdouche en wastafel. Deze verdieping biedt voldoende mogelijkheden om de woning in te richten zoals jij dat wilt.
Zolder:
De zolder is te bereiken middels een vlizotrap in één van de kamers. Deze zolder is ruim en ideaal te gebruiken als bergruimte. Hier kun je de spullen opslaan die je niet alledaags nodig hebt. Er zijn al diverse huizen in de wijk die de zolder hebben getransformeerd tot een extra slaapkamer. Er dient een vaste trapopgang en voldoende daglicht op de zolder gecreëerd worden om extra woonruimte hier te laten ontstaan.
Tuin:
De tuin ligt op het westen en is een heerlijke plek om van de zon te genieten. Deze tuin is ruim genoeg om een gezellige zithoek te creëren en is voorzien van een stenen berging voor het plaatsen van je fietsen of tuin gereedschap. Verder is de tuin voorzien van een achterom.
LOCATIE
Deze woning ligt in een kindvriendelijke woonwijk, ideaal voor gezinnen die op zoek zijn naar rust en ruimte. Het centrum van Drunen, met winkels voor de dagelijkse boodschappen, is dichtbij en binnen enkele minuten te bereiken. Bovendien ben je in slechts 15 minuten in het centrum van ’s-Hertogenbosch, waar je volop kunt genieten van de stadse voorzieningen. Ook de prachtige Drunense Duinen liggen binnen handbereik, perfect voor wandel- en fietstochten in de natuur.
BIJZONDERHEDEN
- 4 slaapkamers, ruimte genoeg voor het hele gezin;
- Tuin op het westen, volop zon;
- Veel lichtinval in de woonkamer;
- Elektrische haard voor extra sfeer;
- Woning naar eigen smaak in te richten;
- Rustige, kindvriendelijke wijk.
Toon meer
INDELING
Begane grond:
Je komt binnen in de hal die toegang biedt tot het toilet, meterkast, woonkamer en keuken. De lichte woonkamer is ruim en biedt voldoende plek voor een zithoek en eettafel. De elektrische haard voegt extra sfeer toe, perfect voor gezellige avonden. Door de grote ramen is er veel lichtinval, wat de ruimte nog groter doet aanvoelen. Aan de achterzijde van de entreehal treffen we de dichte keuken, welke voorzien is van diverse inbouwapparatuur. De tuin is zowel via de woonkamer als keuken te bereiken.
Eerste verdieping:
Op de eerste verdieping treffen we vier slaapkamers, waaronder twee ruime slaapkamers welke geschikt zijn voor een tweepersoonsbed. De andere twee slaapkamers zijn ideaal te gebruiken als kinderkamer, thuiswerkplek of inloopkast. De praktische badkamer is voorzien van een inloopdouche en wastafel. Deze verdieping biedt voldoende mogelijkheden om de woning in te richten zoals jij dat wilt.
Zolder:
De zolder is te bereiken middels een vlizotrap in één van de kamers. Deze zolder is ruim en ideaal te gebruiken als bergruimte. Hier kun je de spullen opslaan die je niet alledaags nodig hebt. Er zijn al diverse huizen in de wijk die de zolder hebben getransformeerd tot een extra slaapkamer. Er dient een vaste trapopgang en voldoende daglicht op de zolder gecreëerd worden om extra woonruimte hier te laten ontstaan.
Tuin:
De tuin ligt op het westen en is een heerlijke plek om van de zon te genieten. Deze tuin is ruim genoeg om een gezellige zithoek te creëren en is voorzien van een stenen berging voor het plaatsen van je fietsen of tuin gereedschap. Verder is de tuin voorzien van een achterom.
LOCATIE
Deze woning ligt in een kindvriendelijke woonwijk, ideaal voor gezinnen die op zoek zijn naar rust en ruimte. Het centrum van Drunen, met winkels voor de dagelijkse boodschappen, is dichtbij en binnen enkele minuten te bereiken. Bovendien ben je in slechts 15 minuten in het centrum van ’s-Hertogenbosch, waar je volop kunt genieten van de stadse voorzieningen. Ook de prachtige Drunense Duinen liggen binnen handbereik, perfect voor wandel- en fietstochten in de natuur.
BIJZONDERHEDEN
- 4 slaapkamers, ruimte genoeg voor het hele gezin;
- Tuin op het westen, volop zon;
- Veel lichtinval in de woonkamer;
- Elektrische haard voor extra sfeer;
- Woning naar eigen smaak in te richten;
- Rustige, kindvriendelijke wijk.
Kenmerken
Overdracht
- Aangeboden sinds
- 19 juni 2025
- Status
- Verkocht
- Aanvaarding
- In overleg
Bouw
- Soort woning
- Woonhuis
- Bouwjaar
- 1965
- Soort dak
- Zadeldak
Oppervlakten en inhoud
- Oppervlakte wonen
- 81 m²
- Oppervlakte overige inpandige ruimte
- 11 m²
- Oppervlakte externe bergruimte
- 13 m²
- Perceel
- 189 m²
- Inhoud
- 329 m³
Indeling
- Aantal kamers
- 5
- Aantal slaapkamers
- 4
- Aantal badkamers
- 1
- Badkamervoorzieningen
- Wastafel en inloopdouche
- Aantal woonlagen
- 3
- Voorzieningen
- Tv-kabel, rookkanaal, dakraam en natuurlijke ventilatie
Energie
- Energielabel
- E
- Isolatie
- Gedeeltelijk dubbel glas en geen isolatie
- Verwarming
- Cv-ketel
- Warm water
- Cv-ketel
- Cv-ketel
- Vaillant (combiketel uit 2018)
Buitenruimte
- Ligging
- Aan rustige weg, in woonwijk en in bosrijke omgeving
- Tuin
- Achtertuin en voortuin
- Achtertuin
- 85 m² gelegen op het westen met achterom
Bergruimte
- Schuur/berging
- Vrijstaand steen
- Voorzieningen
- Voorzien van elektra
Garage
- Soort garage
- Geen garage