Word je warm van ons verhaal? Laten we samen kennismaken!
Neem contact op- 98 m²
- 154 m²
- 3
- A+++
Omschrijving
Sfeervolle semi bungalow c.q hoekwoning met garage en drie slaapkamers én twee badkamers aan de Reitselaan 2 T 2 in Haaren. Deze zeer energiezuinige woning heeft een A+++ label!
Welkom in deze verrassend ruime en instapklare semi bungalow, gelegen op een rustige en groene locatie in Haaren. Deze moderne woning biedt drie volwaardige slaapkamers én twee badkamers – een zeldzame combinatie – en is daarmee ideaal voor starters, doorstromers of mensen die gelijkvloers willen wonen met extra comfort. Dankzij de grote raampartijen en houten kozijnen met HR++ glas geniet je overal van een fijne lichtinval en uitstekende isolatie.
Specificaties
Woonoppervlakte 97,5 m²
Externe bergruimte 17 m²
Inhoud 363 m³
Perceel 154 m²
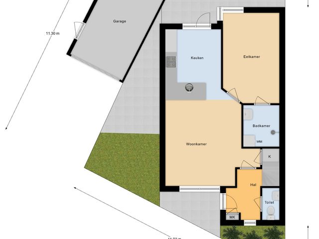
Indeling
Begane grond
Via de voordeur kom je binnen in de lichte entreehal. Hier vind je ruimte voor de garderobe, toegang tot het toilet en de trapopgang naar boven. De strakke afwerking en rustige kleuren creëren direct een warm welkom. Vanuit de hal is er toegang tot de woonkamer.
De ruime woonkamer is aan de voorzijde gelegen en tuingericht en staat in open verbinding met de keuken. Dankzij de grote ramen en de lichte vloer voelt de ruimte modern en sfeervol aan. De hoekligging zorgt voor extra privacy en licht. De gehele begane grondvloer is voorzien van comfortabele vloerverwarming (die zowel koelt als verwarmd).
De moderne keuken ligt aan de achterzijde van de woning en is voorzien van ruime werkbladen, een luxe oven, inductiekookplaat en voldoende kastruimte. Een fijne toevoeging is het gezellige bar aan de keuken. Het barretje maakt de keuken extra functioneel én uitnodigend.
Aangrenzend aan de eetkeuken bevindt zich een multifunctionele kamer die nu stijlvol is ingericht als eetkamer. De ruimte voelt warm en huiselijk aan en biedt voldoende plek voor een grote eettafel. Door de ligging naast de woonkamer en dichtbij de keuken is dit een heerlijke plek om te tafelen, maar de kamer kan desgewenst altijd weer als slaapkamer of kantoorruimte worden gebruikt.
De eerste badkamer is aansluitend aan de slaapkamer op de begane grond gelegen en voorzien van een ruime inloopdouche, wastafel en een frisse, moderne afwerking. Hier bevindt zich ook de aansluiting voor de wasmachine.
Eerste verdieping
De eerste verdieping van de woning is verrassend ruim en volledig doorgetrokken in dezelfde moderne, rustige stijl als beneden. De gehele verdieping is bovendien voorzien van vloerverwarming, wat niet alleen zorgt voor comfort, maar ook een strakke afwerking zonder radiatoren.
Aan de achterzijde ligt de royale hoofdslaapkamer. De grote dakkapel zorgt voor extra ruimte en lichtinval. De vloer bestaat uit een stijlvol houtlook visgraat vinyl, dat doorloopt over de gehele verdieping.
De kamer is praktisch ingedeeld, met ruimte voor een kingsize bed, kasten en een zit- of werkhoekje. Aan de voorzijde bevindt zich de tweede slaapkamer, eveneens ruim en licht. Het grote dakraam laat veel daglicht binnen.
De tweede badkamer is uitgevoerd in moderne grijs- en aardetinten. De combinatie van de betonlook tegels, het houten badkamermeubel en de strakke, ronde spiegel vormt een stijlvol geheel. Dankzij het grote dakraam valt er veel natuurlijk licht naar binnen en voelt de badkamer ruim en fris aan. De hoogwaardige afwerking past perfect bij de rest van de woning.
Via de eerste verdieping is ook middels een vlizotrap de zolder te bereiken.
Tuin en garage
De tuin ligt gunstig voor zon in de middag tot aan zonsondergang, waardoor je later op de dag volop van het zonlicht kunt genieten. Vooral aan de zijkant, waar de zitplek is, is het heerlijk vertoeven. De tuin is onderhoudsvriendelijk ingericht, met een ruim terras waar moeiteloos een grote eettafel past en voldoende plek is om te ontspannen. De groene erfafscheiding zorgt daarbij voor een gevoel van privacy en gezelligheid.
Aan de zijkant van het perceel bevindt zich de achterom, waardoor je gemakkelijk met fietsen, tuingereedschap of boodschappen achterlangs naar binnen kunt. Dit maakt de tuin ook praktisch bruikbaar voor dagelijks gebruik.
Een groot pluspunt is de vrijstaande garage, die niet alleen ruimte biedt voor het stallen van een auto, maar ook zeer geschikt is als extra bergruimte. De garage maakt de woning bijzonder compleet en biedt een uitstekende oplossing voor al je opbergbehoeften.
Omgeving
Haaren staat bekend als een groen en gemoedelijk dorp, perfect gelegen tussen grotere steden zoals Tilburg, Den Bosch en Eindhoven. Het is een omgeving waar rust en ruimte samenkomen met alle dagelijkse voorzieningen binnen handbereik. Het dorp heeft een vriendelijke en open sfeer, met winkels, basisscholen, sportvoorzieningen en gezellige horeca op korte afstand.
De ligging van Haaren is bovendien bijzonder gunstig voor wie veel onderweg is. Binnen enkele minuten rijd je de A65 op richting Tilburg of ’s-Hertogenbosch, en via de N65 en N624 ben je ook snel verbonden met uitvalswegen richting Eindhoven en de rest van Brabant. Hierdoor is de woning ideaal voor zowel forenzen als mensen die graag centraal wonen maar toch het dorpsgevoel willen behouden.
Daarnaast nodigt de omgeving uit tot wandelen en fietsen. Natuurgebieden zoals de Kampina, de Oisterwijkse Bossen en Vennen en het prachtige Landgoed Haarendael liggen op korte afstand en bieden volop mogelijkheden om te ontspannen in het groen.
Toon meer
Welkom in deze verrassend ruime en instapklare semi bungalow, gelegen op een rustige en groene locatie in Haaren. Deze moderne woning biedt drie volwaardige slaapkamers én twee badkamers – een zeldzame combinatie – en is daarmee ideaal voor starters, doorstromers of mensen die gelijkvloers willen wonen met extra comfort. Dankzij de grote raampartijen en houten kozijnen met HR++ glas geniet je overal van een fijne lichtinval en uitstekende isolatie.
Specificaties
Woonoppervlakte 97,5 m²
Externe bergruimte 17 m²
Inhoud 363 m³
Perceel 154 m²
Indeling
Begane grond
Via de voordeur kom je binnen in de lichte entreehal. Hier vind je ruimte voor de garderobe, toegang tot het toilet en de trapopgang naar boven. De strakke afwerking en rustige kleuren creëren direct een warm welkom. Vanuit de hal is er toegang tot de woonkamer.
De ruime woonkamer is aan de voorzijde gelegen en tuingericht en staat in open verbinding met de keuken. Dankzij de grote ramen en de lichte vloer voelt de ruimte modern en sfeervol aan. De hoekligging zorgt voor extra privacy en licht. De gehele begane grondvloer is voorzien van comfortabele vloerverwarming (die zowel koelt als verwarmd).
De moderne keuken ligt aan de achterzijde van de woning en is voorzien van ruime werkbladen, een luxe oven, inductiekookplaat en voldoende kastruimte. Een fijne toevoeging is het gezellige bar aan de keuken. Het barretje maakt de keuken extra functioneel én uitnodigend.
Aangrenzend aan de eetkeuken bevindt zich een multifunctionele kamer die nu stijlvol is ingericht als eetkamer. De ruimte voelt warm en huiselijk aan en biedt voldoende plek voor een grote eettafel. Door de ligging naast de woonkamer en dichtbij de keuken is dit een heerlijke plek om te tafelen, maar de kamer kan desgewenst altijd weer als slaapkamer of kantoorruimte worden gebruikt.
De eerste badkamer is aansluitend aan de slaapkamer op de begane grond gelegen en voorzien van een ruime inloopdouche, wastafel en een frisse, moderne afwerking. Hier bevindt zich ook de aansluiting voor de wasmachine.
Eerste verdieping
De eerste verdieping van de woning is verrassend ruim en volledig doorgetrokken in dezelfde moderne, rustige stijl als beneden. De gehele verdieping is bovendien voorzien van vloerverwarming, wat niet alleen zorgt voor comfort, maar ook een strakke afwerking zonder radiatoren.
Aan de achterzijde ligt de royale hoofdslaapkamer. De grote dakkapel zorgt voor extra ruimte en lichtinval. De vloer bestaat uit een stijlvol houtlook visgraat vinyl, dat doorloopt over de gehele verdieping.
De kamer is praktisch ingedeeld, met ruimte voor een kingsize bed, kasten en een zit- of werkhoekje. Aan de voorzijde bevindt zich de tweede slaapkamer, eveneens ruim en licht. Het grote dakraam laat veel daglicht binnen.
De tweede badkamer is uitgevoerd in moderne grijs- en aardetinten. De combinatie van de betonlook tegels, het houten badkamermeubel en de strakke, ronde spiegel vormt een stijlvol geheel. Dankzij het grote dakraam valt er veel natuurlijk licht naar binnen en voelt de badkamer ruim en fris aan. De hoogwaardige afwerking past perfect bij de rest van de woning.
Via de eerste verdieping is ook middels een vlizotrap de zolder te bereiken.
Tuin en garage
De tuin ligt gunstig voor zon in de middag tot aan zonsondergang, waardoor je later op de dag volop van het zonlicht kunt genieten. Vooral aan de zijkant, waar de zitplek is, is het heerlijk vertoeven. De tuin is onderhoudsvriendelijk ingericht, met een ruim terras waar moeiteloos een grote eettafel past en voldoende plek is om te ontspannen. De groene erfafscheiding zorgt daarbij voor een gevoel van privacy en gezelligheid.
Aan de zijkant van het perceel bevindt zich de achterom, waardoor je gemakkelijk met fietsen, tuingereedschap of boodschappen achterlangs naar binnen kunt. Dit maakt de tuin ook praktisch bruikbaar voor dagelijks gebruik.
Een groot pluspunt is de vrijstaande garage, die niet alleen ruimte biedt voor het stallen van een auto, maar ook zeer geschikt is als extra bergruimte. De garage maakt de woning bijzonder compleet en biedt een uitstekende oplossing voor al je opbergbehoeften.
Omgeving
Haaren staat bekend als een groen en gemoedelijk dorp, perfect gelegen tussen grotere steden zoals Tilburg, Den Bosch en Eindhoven. Het is een omgeving waar rust en ruimte samenkomen met alle dagelijkse voorzieningen binnen handbereik. Het dorp heeft een vriendelijke en open sfeer, met winkels, basisscholen, sportvoorzieningen en gezellige horeca op korte afstand.
De ligging van Haaren is bovendien bijzonder gunstig voor wie veel onderweg is. Binnen enkele minuten rijd je de A65 op richting Tilburg of ’s-Hertogenbosch, en via de N65 en N624 ben je ook snel verbonden met uitvalswegen richting Eindhoven en de rest van Brabant. Hierdoor is de woning ideaal voor zowel forenzen als mensen die graag centraal wonen maar toch het dorpsgevoel willen behouden.
Daarnaast nodigt de omgeving uit tot wandelen en fietsen. Natuurgebieden zoals de Kampina, de Oisterwijkse Bossen en Vennen en het prachtige Landgoed Haarendael liggen op korte afstand en bieden volop mogelijkheden om te ontspannen in het groen.
Kenmerken
Overdracht
- Vraagprijs
- € 500.000 k.k.
- Vraagprijs per m²
- € 5.102
- Aangeboden sinds
- 20 november 2025
- Status
- Verkocht onder voorbehoud
- Aanvaarding
- In overleg
Bouw
- Soort woning
- Woonhuis
- Bouwjaar
- 2023
- Soort dak
- Zadeldak
Oppervlakten en inhoud
- Oppervlakte wonen
- 98 m²
- Oppervlakte externe bergruimte
- 17 m²
- Perceel
- 154 m²
- Inhoud
- 363 m³
Indeling
- Aantal kamers
- 4
- Aantal slaapkamers
- 3
- Aantal badkamers
- 2
- Badkamervoorzieningen
- Douche, wastafel, wasmachineaansluiting, toilet en wastafelmeubel
- Aantal woonlagen
- 3
- Voorzieningen
- Mechanische ventilatie, tv-kabel en zonnepanelen
Energie
- Energielabel
- A+++
- Isolatie
- Dakisolatie, muurisolatie, vloerisolatie en volledig geïsoleerd
- Verwarming
- Vloerverwarming geheel en warmte terugwininstallatie
Buitenruimte
- Tuin
- Achtertuin
- Achtertuin
- 29 m² gelegen op het oosten met achterom
Garage
- Soort garage
- Vrijstaand steen
- Capaciteit
- 1