Word je warm van ons verhaal? Laten we samen kennismaken!
Neem contact op- 146 m²
- 236 m²
- 4
- D
Omschrijving
In het gezellige Drunen staat deze ruime tweekapper met vier slaapkamers en een heerlijke tuin op het westen. De woning biedt volop mogelijkheden om volledig naar eigen smaak in te richten. Dankzij de royale ruimtes, praktische indeling en fijne lichtinval vormt dit huis een ideale basis voor jarenlang woonplezier. Met zowel binnen als buiten alle ruimte voor het hele gezin is dit een plek waar je je direct thuis voelt. Hier geniet je van comfort, rust en tal van potenties om jouw droomwoning te creëren.
INDELING
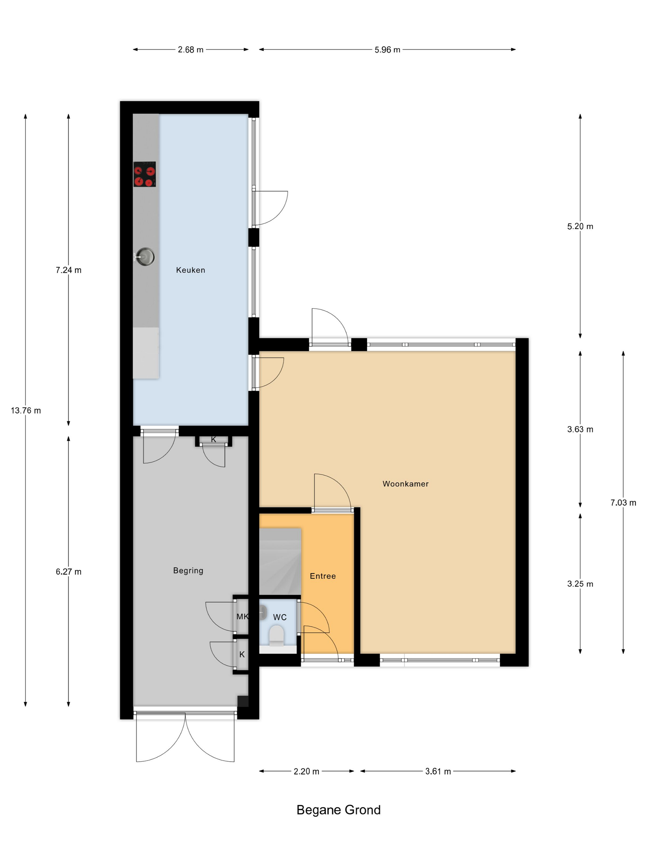
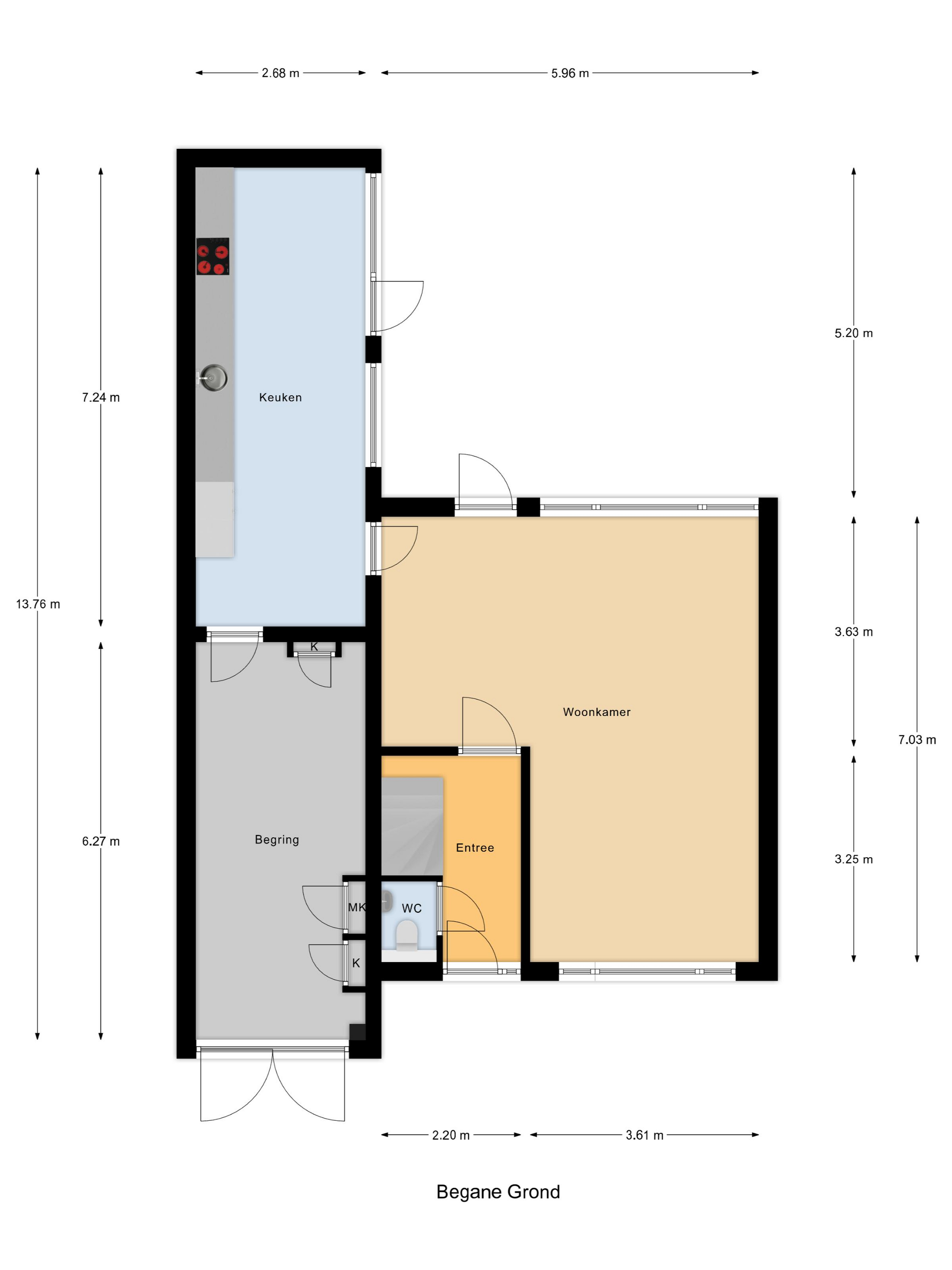
Begane grond:
Parkeer de auto op de oprit en betreed de woning via de voordeur. Via de entreehal heb je toegang tot het toilet, de trap naar de eerste verdieping en de woonkamer. De L-vormige woonkamer is heerlijk ruim en biedt voldoende plaats voor een gezellige zithoek en eettafel. Dankzij de grote raamkozijnen komt er volop daglicht binnen. Vanuit de woonkamer bereik je via de achterdeur de achtertuin. Aan de achterzijde betreden we de keuken, die met zijn diepte van circa 7 meter veel ruimte biedt en is voorzien van diverse inbouwapparatuur. Ook vanuit de keuken heb je toegang tot de achtertuin en de lichte uitstraling maakt het een fijne werkplek. Via de keuken bereik je bovendien een ruime berging, ideaal voor het stallen van fietsen of een scooter, en hier bevindt zich tevens de meterkast.
Eerste verdieping:
De overloop biedt toegang tot drie slaapkamers en een badkamer. De hoofdslaapkamer is ruim en biedt voldoende plaats voor een tweepersoonsbed en een grote kledingkast. De andere twee slaapkamers zijn perfect te gebruiken als kinderkamer, maar ook ideaal als kantoor of hobbyruimte. De badkamer is praktisch ingedeeld en voorzien van een douche, toilet en wastafel.
Tweede verdieping
De tweede verdieping is via een vaste trap te bereiken. Hier treffen we een overloop en een ruime slaapkamer die dankzij het dakkapel extra licht en ruimte biedt. Er is voldoende plaats voor een tweepersoonsbed en achter de knieschotten vind je extra bergruimte. Op de overloop bevindt zich bovendien de opstelplaats van de cv-ketel.
TUIN
De achtertuin is heerlijk gelegen op het westen, waardoor je hier de hele middag en avond van de zon kunt genieten. De tuin is royaal, met maar liefst 11 meter diepte en 9 meter breedte. Dit biedt alle mogelijkheden om de tuin volledig naar eigen smaak in te richten. Er is meer dan genoeg ruimte voor meerdere zitplekken in de zon of schaduw. Of je nu speeltoestellen voor de kinderen wilt plaatsen of juist lekker wilt tuinieren: deze tuin biedt het allemaal.
LOCATIE:
Deze woning is gelegen in rustige en kindvriendelijke woonwijk in het centrum van Drunen. Hierdoor liggen verschillende supermarkten, winkels en eetgelegenheden op loopafstand. Dankzij de korte afstand tot de A59 ben je binnen 15 minuten rijden in het bruisende centrum van Den Bosch. En voor de natuurliefhebbers liggen de prachtige Loonse en Drunense Duinen letterlijk om de hoek, de perfecte plek voor frisse lucht en ontspanning in de buitenlucht.
BIJZONDERHEDEN
- Ruime tweekapper;
- Ruime achtertuin op het westen;
- Vier slaapkamers;
- Eigen oprit;
- Gelegen in een kindvriendelijke wijk;
- Voorzieningen dichtbij;
- Goede bereikbaarheid;
- Drunense Duinen dichtbij.
Toon meer
INDELING
Begane grond:
Parkeer de auto op de oprit en betreed de woning via de voordeur. Via de entreehal heb je toegang tot het toilet, de trap naar de eerste verdieping en de woonkamer. De L-vormige woonkamer is heerlijk ruim en biedt voldoende plaats voor een gezellige zithoek en eettafel. Dankzij de grote raamkozijnen komt er volop daglicht binnen. Vanuit de woonkamer bereik je via de achterdeur de achtertuin. Aan de achterzijde betreden we de keuken, die met zijn diepte van circa 7 meter veel ruimte biedt en is voorzien van diverse inbouwapparatuur. Ook vanuit de keuken heb je toegang tot de achtertuin en de lichte uitstraling maakt het een fijne werkplek. Via de keuken bereik je bovendien een ruime berging, ideaal voor het stallen van fietsen of een scooter, en hier bevindt zich tevens de meterkast.
Eerste verdieping:
De overloop biedt toegang tot drie slaapkamers en een badkamer. De hoofdslaapkamer is ruim en biedt voldoende plaats voor een tweepersoonsbed en een grote kledingkast. De andere twee slaapkamers zijn perfect te gebruiken als kinderkamer, maar ook ideaal als kantoor of hobbyruimte. De badkamer is praktisch ingedeeld en voorzien van een douche, toilet en wastafel.
Tweede verdieping
De tweede verdieping is via een vaste trap te bereiken. Hier treffen we een overloop en een ruime slaapkamer die dankzij het dakkapel extra licht en ruimte biedt. Er is voldoende plaats voor een tweepersoonsbed en achter de knieschotten vind je extra bergruimte. Op de overloop bevindt zich bovendien de opstelplaats van de cv-ketel.
TUIN
De achtertuin is heerlijk gelegen op het westen, waardoor je hier de hele middag en avond van de zon kunt genieten. De tuin is royaal, met maar liefst 11 meter diepte en 9 meter breedte. Dit biedt alle mogelijkheden om de tuin volledig naar eigen smaak in te richten. Er is meer dan genoeg ruimte voor meerdere zitplekken in de zon of schaduw. Of je nu speeltoestellen voor de kinderen wilt plaatsen of juist lekker wilt tuinieren: deze tuin biedt het allemaal.
LOCATIE:
Deze woning is gelegen in rustige en kindvriendelijke woonwijk in het centrum van Drunen. Hierdoor liggen verschillende supermarkten, winkels en eetgelegenheden op loopafstand. Dankzij de korte afstand tot de A59 ben je binnen 15 minuten rijden in het bruisende centrum van Den Bosch. En voor de natuurliefhebbers liggen de prachtige Loonse en Drunense Duinen letterlijk om de hoek, de perfecte plek voor frisse lucht en ontspanning in de buitenlucht.
BIJZONDERHEDEN
- Ruime tweekapper;
- Ruime achtertuin op het westen;
- Vier slaapkamers;
- Eigen oprit;
- Gelegen in een kindvriendelijke wijk;
- Voorzieningen dichtbij;
- Goede bereikbaarheid;
- Drunense Duinen dichtbij.
Kenmerken
Overdracht
- Vraagprijs
- € 500.000 k.k.
- Vraagprijs per m²
- € 3.425
- Aangeboden sinds
- 5 december 2025
- Status
- Beschikbaar
- Aanvaarding
- In overleg
Bouw
- Soort woning
- Woonhuis
- Bouwjaar
- 1972
- Soort dak
- Zadeldak
Oppervlakten en inhoud
- Oppervlakte wonen
- 146 m²
- Perceel
- 236 m²
- Inhoud
- 518 m³
Indeling
- Aantal kamers
- 6
- Aantal slaapkamers
- 4
- Aantal badkamers
- 1
- Badkamervoorzieningen
- Toilet, douche en wastafel
- Aantal woonlagen
- 3
- Voorzieningen
- Mechanische ventilatie, rolluiken, tv-kabel, buitenzonwering en dakraam
Energie
- Energielabel
- D
- Isolatie
- Dakisolatie
- Verwarming
- Cv-ketel
- Warm water
- Cv-ketel
- Cv-ketel
- Nefit (combiketel)
Buitenruimte
- Ligging
- Aan rustige weg, in woonwijk en in bosrijke omgeving
- Tuin
- Achtertuin en voortuin
- Achtertuin
- 108 m² gelegen op het westen
Bergruimte
- Schuur/berging
- Inpandig
- Voorzieningen
- Voorzien van verwarming, voorzien van elektra en voorzien van water
Garage
- Soort garage
- Aangebouwd steen
- Capaciteit
- 1
- Voorzieningen
- Verwarming en elektra