Word je warm van ons verhaal? Laten we samen kennismaken!
Neem contact op- 158 m²
- 266 m²
- 4
- C
Omschrijving
Nieuwe (verlaagde) vraagprijs!
In het brede deel van de Sint Jorisstraat staat deze uitgebouwde twee-onder-een-kapwoning met een woonoppervlakte van bijna 160m2. De woning heeft vier (mogelijk vijf) slaapkamers, twee badkamers, een lichte woonkamer met houtkachel en een gezellige eetkeuken met bijkeuken. Parkeren kan op de oprit en in de diepe garage.
Deze woning is gesitueerd op een uitstekende locatie, tegenover een royale groenstrook met speelplek voor de allerkleinsten. Daarnaast zijn de centrumvoorzieningen, de natuurspeeltuin en de wandelroutes op loopafstand.
Indeling:
Begane grond:
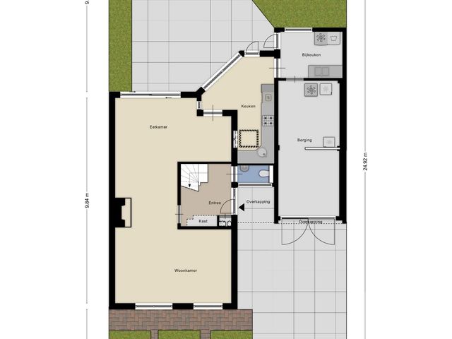
• Via de overdekte entree kom je in de ruime hal van deze verrassend ruime twee-onder-een-kapwoning. In de hal zie je een plavuizen vloer, meterkast met garderobe en de hardhouten trap naar de eerste verdieping. In de hoek van de hal is de deur naar de toiletruimte met een wandcloset en een fonteintje.
• De woonkamer is bijna 10 meter diep en heeft een mooie verdeling tussen het zit- en het eetgedeelte. De parketvloer en de schouw met houtkachel zorgen voor de juiste sfeer en bij het eetgedeelte is de schuifpui naar de tuin. Vanaf de bank kijk je naar de voortuin en de rustige straat. Door de ramen in de schuifpui valt de ochtendzon naar binnen en zie je het vele groen in de tuin.
• In de hoek van de woonkamer is de deur naar de gezellige, speels ingedeelde eetkeuken met vloerverwarming en een schuifpui naar de tuin en een lichtkoepel. Op de vloer liggen plavuizen en er is ruimte voor een eet-/ontbijttafel. De hoekopstelling heeft een granieten werkblad en diverse inbouwapparatuur: een 5-pits gaskookplaat, afzuigkap*, vaatwasser*, koelkast en een combi-oven.
• Naast de keuken bevinden zich de bijkeuken en de garage. De praktische bijkeuken heeft een deur naar de tuin en een deur naar de garage. Er is hier ruimte voor de opstelling van de wasapparatuur, voor extra witgoed en een tweede keukenblok met gootsteen. In de 6,5 meter diepe garage is ruimte voor een auto, fiets en het tuin-/klusgereedschap.
• *buitengebruik
Eerste verdieping:
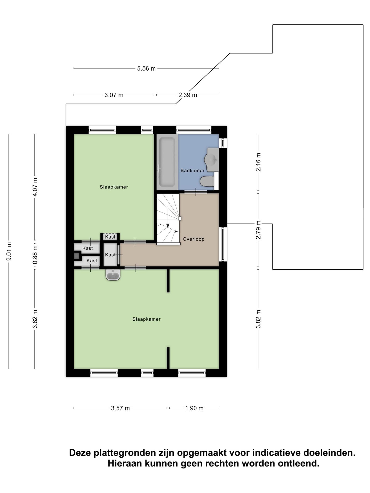
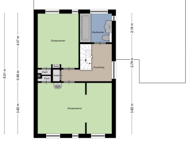
• Op de eerste verdieping zijn aan de overloop, twee slaapkamers (voorheen drie), een vaste kast en de badkamer gelegen. De twee slaapkamers aan de voorzijde zijn samengevoegd tot één zeer ruime hoofdslaapkamer met een vaste kast en een wastafel.
• Aan de achterzijde zijn de tweede slaapkamer en de badkamer met vloerverwarming gelegen.
• De badkamer is uitgevoerd met een ligbad, tweede toilet en een wastafelmeubel. Zowel de wanden als de vloer zijn in een lichte kleur betegeld en het plafond is voorzien van inbouwverlichting.
Tweede verdieping:
• Via een vaste trap te bereiken overloop van waaruit twee slaapkamers en de tweede badkamer te bereiken zijn.
• De slaapkamer aan de achterzijde heeft een brede dakkapel, een vaste kast in de schuinte van het dak en een deur naar een ruime berging.
• Aan de voorzijde is een mooie slaapkamer met een bergkast in de schuinte van het dak en een groot dakraam.
• De tweede badkamer heeft een dakraam, douche en een wastafel; perfect voor de kinderen en logeés.
• In de nok is een handige bergzolder, te bereiken via de houten trap die je op de overloop ziet.
Buitenleven:
• De woning heeft een ruime oprit en een groene voortuin met diverse beplanting, waaronder een mooie plataanboom. Vanuit de woonkamer, keuken en de bijkeuken heb je toegang tot de achtertuin, gesitueerd op het noordoosten. Hier heb je ruimte om buiten te zitten en de houten schuttingen zorgen voor privacy. In de borders staan diverse planten.
Specificaties:
Woonoppervlak: 158,20m²
Woonhuis inhoud: 627,94m³
Overig inpandige ruimte: 19,10m²
Gebouw gebonden buitenruimte: 3,5m²
Externe bergruimte 0m²
Bouwjaar: 1977
Perceel: 266m² groot
Energielabel: C
Aanvaarding: in overleg
ENTHOUSIAST geworden over deze zeer ruime woning op een uitstekende locatie? Een juiste beoordeling van de woning komt het beste tot zijn recht bij een persoonlijke rondleiding, die ik graag voor u verzorg.
Wonen in de heerlijkheid Helvoirt, een buitenplaats van Vught!
Een typisch en idyllisch Brabants dorpje in de gemeente Vught. In Helvoirt leef je in het Groene Woud tussen de natuurgebieden Helvoirts Broek en Nationaal Park de Loonse & Drunense Duinen. Er zijn volop mogelijkheden om in de nabijheid van de woning in de prachtige natuur te fietsen en te wandelen, waarbij je eventueel een stop kunt maken in een van de gezellige restaurants en cafés in de buurt.
Helvoirt is een verrassend dorp met diverse faciliteiten, winkels en een actief verenigingsleven.
Een plaats, die juist door de vele faciliteiten al snel een thuisgevoel geeft voor jong en oud.
In het dorp en de omgeving wordt het hele jaar door van alles georganiseerd; van festivals, concerten, sportevenementen tot culturele activiteiten. Bourgondisch Brabant is echt van toepassing op deze regio met volop mooie kleine en wat grotere plaatsen.
Binnen een paar minuten ben je bovendien in het eveneens gezellige Vught of Oisterwijk en het is nog geen kwartier rijden naar Den Bosch of Tilburg. In Helvoirt woon je vooral heel comfortabel met scholen, sportvelden en supermarkten op loopafstand.
Toon meer
In het brede deel van de Sint Jorisstraat staat deze uitgebouwde twee-onder-een-kapwoning met een woonoppervlakte van bijna 160m2. De woning heeft vier (mogelijk vijf) slaapkamers, twee badkamers, een lichte woonkamer met houtkachel en een gezellige eetkeuken met bijkeuken. Parkeren kan op de oprit en in de diepe garage.
Deze woning is gesitueerd op een uitstekende locatie, tegenover een royale groenstrook met speelplek voor de allerkleinsten. Daarnaast zijn de centrumvoorzieningen, de natuurspeeltuin en de wandelroutes op loopafstand.
Indeling:
Begane grond:
• Via de overdekte entree kom je in de ruime hal van deze verrassend ruime twee-onder-een-kapwoning. In de hal zie je een plavuizen vloer, meterkast met garderobe en de hardhouten trap naar de eerste verdieping. In de hoek van de hal is de deur naar de toiletruimte met een wandcloset en een fonteintje.
• De woonkamer is bijna 10 meter diep en heeft een mooie verdeling tussen het zit- en het eetgedeelte. De parketvloer en de schouw met houtkachel zorgen voor de juiste sfeer en bij het eetgedeelte is de schuifpui naar de tuin. Vanaf de bank kijk je naar de voortuin en de rustige straat. Door de ramen in de schuifpui valt de ochtendzon naar binnen en zie je het vele groen in de tuin.
• In de hoek van de woonkamer is de deur naar de gezellige, speels ingedeelde eetkeuken met vloerverwarming en een schuifpui naar de tuin en een lichtkoepel. Op de vloer liggen plavuizen en er is ruimte voor een eet-/ontbijttafel. De hoekopstelling heeft een granieten werkblad en diverse inbouwapparatuur: een 5-pits gaskookplaat, afzuigkap*, vaatwasser*, koelkast en een combi-oven.
• Naast de keuken bevinden zich de bijkeuken en de garage. De praktische bijkeuken heeft een deur naar de tuin en een deur naar de garage. Er is hier ruimte voor de opstelling van de wasapparatuur, voor extra witgoed en een tweede keukenblok met gootsteen. In de 6,5 meter diepe garage is ruimte voor een auto, fiets en het tuin-/klusgereedschap.
• *buitengebruik
Eerste verdieping:
• Op de eerste verdieping zijn aan de overloop, twee slaapkamers (voorheen drie), een vaste kast en de badkamer gelegen. De twee slaapkamers aan de voorzijde zijn samengevoegd tot één zeer ruime hoofdslaapkamer met een vaste kast en een wastafel.
• Aan de achterzijde zijn de tweede slaapkamer en de badkamer met vloerverwarming gelegen.
• De badkamer is uitgevoerd met een ligbad, tweede toilet en een wastafelmeubel. Zowel de wanden als de vloer zijn in een lichte kleur betegeld en het plafond is voorzien van inbouwverlichting.
Tweede verdieping:
• Via een vaste trap te bereiken overloop van waaruit twee slaapkamers en de tweede badkamer te bereiken zijn.
• De slaapkamer aan de achterzijde heeft een brede dakkapel, een vaste kast in de schuinte van het dak en een deur naar een ruime berging.
• Aan de voorzijde is een mooie slaapkamer met een bergkast in de schuinte van het dak en een groot dakraam.
• De tweede badkamer heeft een dakraam, douche en een wastafel; perfect voor de kinderen en logeés.
• In de nok is een handige bergzolder, te bereiken via de houten trap die je op de overloop ziet.
Buitenleven:
• De woning heeft een ruime oprit en een groene voortuin met diverse beplanting, waaronder een mooie plataanboom. Vanuit de woonkamer, keuken en de bijkeuken heb je toegang tot de achtertuin, gesitueerd op het noordoosten. Hier heb je ruimte om buiten te zitten en de houten schuttingen zorgen voor privacy. In de borders staan diverse planten.
Specificaties:
Woonoppervlak: 158,20m²
Woonhuis inhoud: 627,94m³
Overig inpandige ruimte: 19,10m²
Gebouw gebonden buitenruimte: 3,5m²
Externe bergruimte 0m²
Bouwjaar: 1977
Perceel: 266m² groot
Energielabel: C
Aanvaarding: in overleg
ENTHOUSIAST geworden over deze zeer ruime woning op een uitstekende locatie? Een juiste beoordeling van de woning komt het beste tot zijn recht bij een persoonlijke rondleiding, die ik graag voor u verzorg.
Wonen in de heerlijkheid Helvoirt, een buitenplaats van Vught!
Een typisch en idyllisch Brabants dorpje in de gemeente Vught. In Helvoirt leef je in het Groene Woud tussen de natuurgebieden Helvoirts Broek en Nationaal Park de Loonse & Drunense Duinen. Er zijn volop mogelijkheden om in de nabijheid van de woning in de prachtige natuur te fietsen en te wandelen, waarbij je eventueel een stop kunt maken in een van de gezellige restaurants en cafés in de buurt.
Helvoirt is een verrassend dorp met diverse faciliteiten, winkels en een actief verenigingsleven.
Een plaats, die juist door de vele faciliteiten al snel een thuisgevoel geeft voor jong en oud.
In het dorp en de omgeving wordt het hele jaar door van alles georganiseerd; van festivals, concerten, sportevenementen tot culturele activiteiten. Bourgondisch Brabant is echt van toepassing op deze regio met volop mooie kleine en wat grotere plaatsen.
Binnen een paar minuten ben je bovendien in het eveneens gezellige Vught of Oisterwijk en het is nog geen kwartier rijden naar Den Bosch of Tilburg. In Helvoirt woon je vooral heel comfortabel met scholen, sportvelden en supermarkten op loopafstand.
Kenmerken
Overdracht
- Aangeboden sinds
- 19 juni 2025
- Status
- Verkocht
- Aanvaarding
- In overleg
Bouw
- Soort woning
- Woonhuis
- Bouwjaar
- 1977
Oppervlakten en inhoud
- Oppervlakte wonen
- 158 m²
- Oppervlakte overige inpandige ruimte
- 19 m²
- Oppervlakte gebouwgebonden buitenruimte
- 4 m²
- Perceel
- 266 m²
- Inhoud
- 628 m³
Indeling
- Aantal kamers
- 5
- Aantal slaapkamers
- 4
- Aantal badkamers
- 2
- Badkamervoorzieningen
- Douche, wastafel, ligbad, toilet en wastafelmeubel
- Aantal woonlagen
- 3
Energie
- Energielabel
- C
- Isolatie
- Dakisolatie, vloerisolatie en gedeeltelijk dubbel glas
- Verwarming
- Cv-ketel, vloerverwarming gedeeltelijk en houtkachel
- Warm water
- Cv-ketel
- Cv-ketel
- Combiketel uit 2016
Buitenruimte
- Tuin
- Achtertuin en voortuin
- Achtertuin
- 103 m² gelegen op het noordoosten met achterom
Garage
- Soort garage
- Aangebouwd steen
- Capaciteit
- 1
- Voorzieningen
- Elektra