Word je warm van ons verhaal? Laten we samen kennismaken!
Neem contact op- 128 m²
- 159 m²
- 5
- D
Omschrijving
Op zoek naar een ruime eengezinswoning met garage, zonnige tuin en vijf slaapkamers? Deze woning heeft volop potentie!
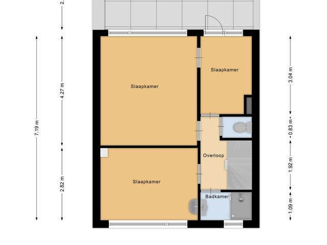
Indeling
Bij binnenkomst voel je gelijk de gezellige sfeer. De entreehal geeft toegang tot de eerste verdieping, de meterkast, trapkast, de toiletruimte en de woonkamer.
De uitgebouwde woonkamer beschikt over een sfeervolle zithoek aan de straatzijde. Dankzij de grote raampartijen aan zowel de voor- als achterzijde van de woning voelt deze ruimte ruimtelijk en licht aan. Daarnaast vind je hier de eethoek, waar met gemak een eettafel voor zes personen past. Dit is de ideale plek om samen met familie of vrienden te genieten van een maaltijd. Dankzij de schuifpui kun je deze ruimte in de zomer perfect verbinden met de tuin.
De halfopen eenvoudige keuken is voorzien van een dubbele wastafel, een 4-pits gasfornuis, een oven, een afzuigkap en een wasmachineaansluiting. Door de vele boven- en onderkastjes is er voldoende opbergruimte. Vanuit de keuken is de kelder onder de aanbouw te bereiken.
Eerste verdieping
Op de eerste verdieping bevinden zich drie slaapkamers. De kleinste slaapkamer biedt toegang tot het balkon en ligt, samen met de ouderslaapkamer, aan de achterzijde van de woning. De ouderslaapkamer is zeer ruim en staat in open verbinding met de kleine slaapkamer. Deze ruimte kan dus makkelijk dienen als kleedkamer.
De derde slaapkamer bevindt zich aan de voorzijde van de woning en is voorzien van een wastafel.
De badkamer is eenvoudig maar leuk gedecoreerd en beschikt over een douche, een wastafelmeubel en een radiator. Daarnaast is er op de overloop een separate toiletruimte.
Zolder
De zolder is zeer ruim. Via de voorzolder zijn de twee zolderkamers bereikbaar. Op de voorzolder bevindt zich de cv-ketel. De twee zolderkamers beschikken beide over een dakkapel, waardoor er voldoende daglicht binnenkomt. Deze twee slaapkamers kunnen ook eenvoudig samengevoegd worden tot een grote kamer.
Tuin en berging
De woning beschikt over een ruime achtertuin met een stenen berging en een garage. De tuin ligt op het zuidoosten, waardoor je al vroeg op de dag tot in de avond kunt genieten van een zonnige buitenruimte.
Vanuit de tuin heb je toegang tot de berging, waar je eenvoudig je spullen kunt opbergen. Vanuit de berging is er een doorgang naar de garage.
De garage is ruim genoeg om een auto te parkeren en is voorzien van een elektrische deur.
Aan de achterzijde van de garage is er tevens parkeermogelijkheid. Let op: deze parkeerplek bevindt zich op mandelig grond en is dus geen privé-eigendom, maar wordt gedeeld met andere bewoners.
Locatie:
Sniedersstraat 3 is gelegen in Vught-Zuid en de omgeving staat bekend om haar groene karakter. In de nabijheid bevinden zich diverse voorzieningen zoals scholen, winkels en sportfaciliteiten. Vught ligt gunstig via de A2 ben je binnen enkele minuten in 's-Hertogenbosch, terwijl de N65 zorgt voor een snelle verbinding naar Tilburg. Vught beschikt over een treinstation met directe verbindingen naar 's-Hertogenbosch, Eindhoven, Tilburg en Breda.
Bijzonderheden:
- De woning beschikt over 8 zonnepanelen uit 2021;
- Tuin gelegen op het zuidoosten voorzien van stenen berging, garage en achterom;
- De woning is gelegen in een rustige, eenrichting straat met enkel bestemmingsverkeer;
- De woning beschikt zowel aan de voor- als achterzijde over een brede dakkapel;
- Via de keuken is er toegang tot de kelder;
- De huidige bewoner heeft een hele leuke sfeer in de woning gebracht. De woning is echter op onderdelen nog gedateerd.
- Aanvaarding in overleg.
Toon meer
Indeling
Bij binnenkomst voel je gelijk de gezellige sfeer. De entreehal geeft toegang tot de eerste verdieping, de meterkast, trapkast, de toiletruimte en de woonkamer.
De uitgebouwde woonkamer beschikt over een sfeervolle zithoek aan de straatzijde. Dankzij de grote raampartijen aan zowel de voor- als achterzijde van de woning voelt deze ruimte ruimtelijk en licht aan. Daarnaast vind je hier de eethoek, waar met gemak een eettafel voor zes personen past. Dit is de ideale plek om samen met familie of vrienden te genieten van een maaltijd. Dankzij de schuifpui kun je deze ruimte in de zomer perfect verbinden met de tuin.
De halfopen eenvoudige keuken is voorzien van een dubbele wastafel, een 4-pits gasfornuis, een oven, een afzuigkap en een wasmachineaansluiting. Door de vele boven- en onderkastjes is er voldoende opbergruimte. Vanuit de keuken is de kelder onder de aanbouw te bereiken.
Eerste verdieping
Op de eerste verdieping bevinden zich drie slaapkamers. De kleinste slaapkamer biedt toegang tot het balkon en ligt, samen met de ouderslaapkamer, aan de achterzijde van de woning. De ouderslaapkamer is zeer ruim en staat in open verbinding met de kleine slaapkamer. Deze ruimte kan dus makkelijk dienen als kleedkamer.
De derde slaapkamer bevindt zich aan de voorzijde van de woning en is voorzien van een wastafel.
De badkamer is eenvoudig maar leuk gedecoreerd en beschikt over een douche, een wastafelmeubel en een radiator. Daarnaast is er op de overloop een separate toiletruimte.
Zolder
De zolder is zeer ruim. Via de voorzolder zijn de twee zolderkamers bereikbaar. Op de voorzolder bevindt zich de cv-ketel. De twee zolderkamers beschikken beide over een dakkapel, waardoor er voldoende daglicht binnenkomt. Deze twee slaapkamers kunnen ook eenvoudig samengevoegd worden tot een grote kamer.
Tuin en berging
De woning beschikt over een ruime achtertuin met een stenen berging en een garage. De tuin ligt op het zuidoosten, waardoor je al vroeg op de dag tot in de avond kunt genieten van een zonnige buitenruimte.
Vanuit de tuin heb je toegang tot de berging, waar je eenvoudig je spullen kunt opbergen. Vanuit de berging is er een doorgang naar de garage.
De garage is ruim genoeg om een auto te parkeren en is voorzien van een elektrische deur.
Aan de achterzijde van de garage is er tevens parkeermogelijkheid. Let op: deze parkeerplek bevindt zich op mandelig grond en is dus geen privé-eigendom, maar wordt gedeeld met andere bewoners.
Locatie:
Sniedersstraat 3 is gelegen in Vught-Zuid en de omgeving staat bekend om haar groene karakter. In de nabijheid bevinden zich diverse voorzieningen zoals scholen, winkels en sportfaciliteiten. Vught ligt gunstig via de A2 ben je binnen enkele minuten in 's-Hertogenbosch, terwijl de N65 zorgt voor een snelle verbinding naar Tilburg. Vught beschikt over een treinstation met directe verbindingen naar 's-Hertogenbosch, Eindhoven, Tilburg en Breda.
Bijzonderheden:
- De woning beschikt over 8 zonnepanelen uit 2021;
- Tuin gelegen op het zuidoosten voorzien van stenen berging, garage en achterom;
- De woning is gelegen in een rustige, eenrichting straat met enkel bestemmingsverkeer;
- De woning beschikt zowel aan de voor- als achterzijde over een brede dakkapel;
- Via de keuken is er toegang tot de kelder;
- De huidige bewoner heeft een hele leuke sfeer in de woning gebracht. De woning is echter op onderdelen nog gedateerd.
- Aanvaarding in overleg.
Kenmerken
Overdracht
- Aangeboden sinds
- 19 juni 2025
- Status
- Verkocht
- Aanvaarding
- In overleg
Bouw
- Soort woning
- Woonhuis
- Bouwjaar
- 1969
- Soort dak
- Zadeldak
Oppervlakten en inhoud
- Oppervlakte wonen
- 128 m²
- Oppervlakte gebouwgebonden buitenruimte
- 16 m²
- Oppervlakte externe bergruimte
- 23 m²
- Perceel
- 159 m²
- Inhoud
- 452 m³
Indeling
- Aantal kamers
- 6
- Aantal slaapkamers
- 5
- Aantal badkamers
- 1
- Badkamervoorzieningen
- Douche en wastafelmeubel
- Aantal woonlagen
- 3
- Voorzieningen
- Tv-kabel, buitenzonwering, rookkanaal en zonnepanelen
Energie
- Energielabel
- D
- Isolatie
- Gedeeltelijk dubbel glas
- Verwarming
- Cv-ketel
- Warm water
- Cv-ketel
- Cv-ketel
- HR combi ketel (combiketel uit 1997)
Buitenruimte
- Ligging
- In woonwijk
- Tuin
- Achtertuin en voortuin
- Achtertuin
- 43 m² gelegen op het zuidoosten met achterom
Bergruimte
- Schuur/berging
- Vrijstaand steen
- Voorzieningen
- Voorzien van elektra
Garage
- Soort garage
- Vrijstaand steen
- Capaciteit
- 1
- Voorzieningen
- Elektra en elektrische deur