Word je warm van ons verhaal? Laten we samen kennismaken!
Neem contact op- 69 m²
- 2
- B
Omschrijving
Welkom in het appartement aan de Stanleystraat 27! Het appartement dat met de fijne ligging een prachtig uitzicht over natuurgebied ''De Moerputten'' heeft.
Het appartement is gelegen op de derde verdieping in de wijk “Schutskamp” ('s-Hertogenbosch-West). Het complex is zichtbaar fraai afgewerkt en door de jaren heen goed onderhouden. Zo zijn de balkons in 2023 vrijwel geheel gerenoveerd en alle liften in het complex zijn in 2024 vernieuwd.
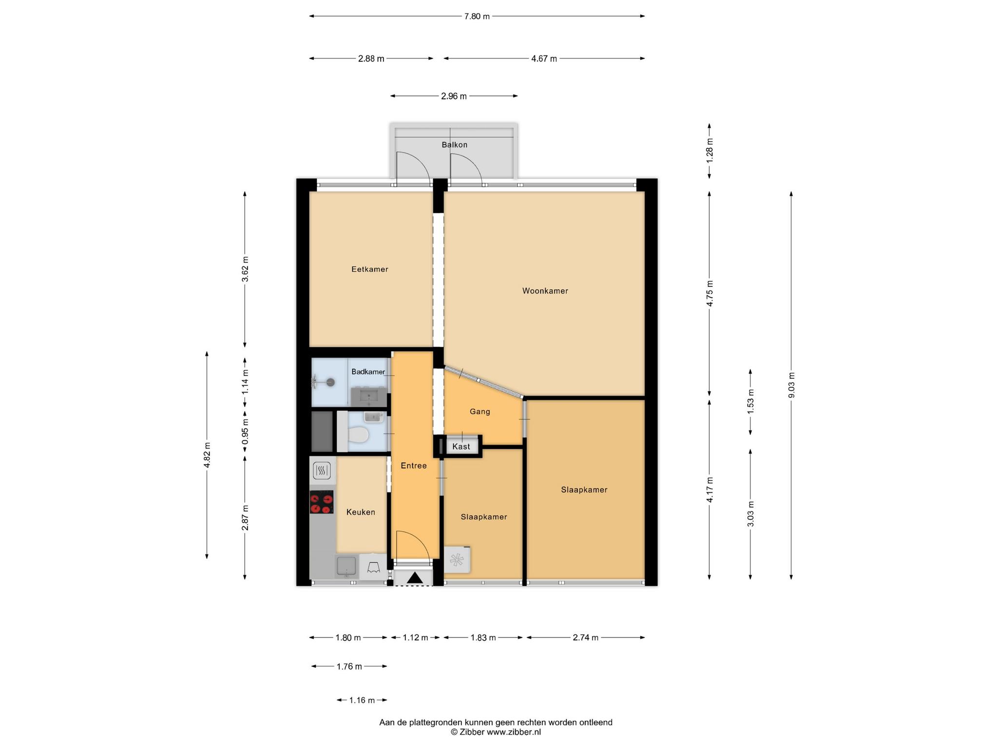
Indeling
Je betreedt de woning via de galerij welke met de lift of trap te bereiken is. De voordeur geeft toegang tot de ruime hal en verbindt alle ruimtes. De hal is netjes afgewerkt met een mooie laminaatvloer, net als de rest van je woning.
Keuken
De moderne keuken in lichte kleurstelling is vernieuwd en bevindt zich aan de achterzijde. De hoekopstelling heeft een inductiekookplaat,afzuigkap koelkast en een combi-oven. Tevens bevindt zich hier de aansluiting voor de wasmachine.
Slaapkamers
De grote slaapkamer biedt de mogelijkheid om in een kingsize bed wakker te worden met de ochtendzon. De tweede slaapkamer is ook ideaal als werkkamer, groot genoeg voor een bureau en een kast.
Badkamer en toilet
Het moderne toilet met wandcloset en fonteintje is separaat van de badkamer, wat ideaal is voor gasten. In de vernieuwde, geheel betegelde badkamer is de ruimte optimaal benut, met een fijn wastafelmeubel en een douchecabine.
De riante woonkamer is aan de voorzijde gelegen en biedt een weids uitzicht over de omgeving en geeft veel licht door de grote raampartijen. Vanaf je bank en eettafel geniet je maximaal van het altijd groene uitzicht en de ruimtelijkheid van de woning. Het balkon is op het zuiden gelegen en heeft een leuk uitzicht over de omgeving.
Extra opbergruimte
Op de begane grond vind je een ruime, droge en vorstvrije berging met voldoende plaats voor je fietsen.
Bijzonderheden:
- Instapklaar;
- Moderne keuken, badkamer en toilet;
- Ruim balkon met leuk uitzicht over een beschermd natuurgebied;
- Nieuwe meterkast met bedrading voorzien van 9 groepen en maar liefst 3 aardlekschakelaars;
- Op fietsafstand van station, stadscentrum en winkelcentrum 'Helftheuvel'.
De maandelijkse VvE bijdrage is €284,36 (exclusief €90,- voorschot stookkosten)
Locatie
Wanneer je bij dit appartement arriveert, kun je de prachtige, vrije en groene omgeving niet missen. Voor de deur ligt een groot veld met enkele grazers, wat slechts een voorproefje is van wat er nog meer te ontdekken valt. Iets verderop strekt zich een uitgestrekt natuurgebied uit: de Gement. Dit bijzondere gebied biedt volop mogelijkheden om te wandelen, fietsen en hardlopen. Hier vind je ook De Moerputten, een van de meest gefotografeerde wandelroutes van Den Bosch. Achter het complex bevinden zich tevens alle voorzieningen die je van een woonwijk mag verwachten, inclusief een aantal goede speciaalzaken zoals Enorm Engering en de Kleurenwaaier aan het Boschmeerplein. Om de hoek vind je de Helftheuvelpassage, een overdekt winkelcentrum dat de wijk overstijgt.
Overdekt winkelen kunt u in winkelcentrum “de Helftheuvelpassage', of in het centrum van 's-Hertogenbosch, dat op vijf fietsminuten gelegen is. De busverbinding bevindt zich op loopafstand en uitvalswegen zijn snel en goed te bereiken.
Het JBZ ziekenhuis bevindt zich op 5 minuten loopafstand en ook de voorzieningen van Het Paleiskwartier zijn binnen handbereik (vele restaurantjes e.d.).
Toon meer
Het appartement is gelegen op de derde verdieping in de wijk “Schutskamp” ('s-Hertogenbosch-West). Het complex is zichtbaar fraai afgewerkt en door de jaren heen goed onderhouden. Zo zijn de balkons in 2023 vrijwel geheel gerenoveerd en alle liften in het complex zijn in 2024 vernieuwd.
Indeling
Je betreedt de woning via de galerij welke met de lift of trap te bereiken is. De voordeur geeft toegang tot de ruime hal en verbindt alle ruimtes. De hal is netjes afgewerkt met een mooie laminaatvloer, net als de rest van je woning.
Keuken
De moderne keuken in lichte kleurstelling is vernieuwd en bevindt zich aan de achterzijde. De hoekopstelling heeft een inductiekookplaat,afzuigkap koelkast en een combi-oven. Tevens bevindt zich hier de aansluiting voor de wasmachine.
Slaapkamers
De grote slaapkamer biedt de mogelijkheid om in een kingsize bed wakker te worden met de ochtendzon. De tweede slaapkamer is ook ideaal als werkkamer, groot genoeg voor een bureau en een kast.
Badkamer en toilet
Het moderne toilet met wandcloset en fonteintje is separaat van de badkamer, wat ideaal is voor gasten. In de vernieuwde, geheel betegelde badkamer is de ruimte optimaal benut, met een fijn wastafelmeubel en een douchecabine.
De riante woonkamer is aan de voorzijde gelegen en biedt een weids uitzicht over de omgeving en geeft veel licht door de grote raampartijen. Vanaf je bank en eettafel geniet je maximaal van het altijd groene uitzicht en de ruimtelijkheid van de woning. Het balkon is op het zuiden gelegen en heeft een leuk uitzicht over de omgeving.
Extra opbergruimte
Op de begane grond vind je een ruime, droge en vorstvrije berging met voldoende plaats voor je fietsen.
Bijzonderheden:
- Instapklaar;
- Moderne keuken, badkamer en toilet;
- Ruim balkon met leuk uitzicht over een beschermd natuurgebied;
- Nieuwe meterkast met bedrading voorzien van 9 groepen en maar liefst 3 aardlekschakelaars;
- Op fietsafstand van station, stadscentrum en winkelcentrum 'Helftheuvel'.
De maandelijkse VvE bijdrage is €284,36 (exclusief €90,- voorschot stookkosten)
Locatie
Wanneer je bij dit appartement arriveert, kun je de prachtige, vrije en groene omgeving niet missen. Voor de deur ligt een groot veld met enkele grazers, wat slechts een voorproefje is van wat er nog meer te ontdekken valt. Iets verderop strekt zich een uitgestrekt natuurgebied uit: de Gement. Dit bijzondere gebied biedt volop mogelijkheden om te wandelen, fietsen en hardlopen. Hier vind je ook De Moerputten, een van de meest gefotografeerde wandelroutes van Den Bosch. Achter het complex bevinden zich tevens alle voorzieningen die je van een woonwijk mag verwachten, inclusief een aantal goede speciaalzaken zoals Enorm Engering en de Kleurenwaaier aan het Boschmeerplein. Om de hoek vind je de Helftheuvelpassage, een overdekt winkelcentrum dat de wijk overstijgt.
Overdekt winkelen kunt u in winkelcentrum “de Helftheuvelpassage', of in het centrum van 's-Hertogenbosch, dat op vijf fietsminuten gelegen is. De busverbinding bevindt zich op loopafstand en uitvalswegen zijn snel en goed te bereiken.
Het JBZ ziekenhuis bevindt zich op 5 minuten loopafstand en ook de voorzieningen van Het Paleiskwartier zijn binnen handbereik (vele restaurantjes e.d.).
Kenmerken
Overdracht
- Aangeboden sinds
- 19 juni 2025
- Status
- Verkocht
- Aanvaarding
- In overleg
- Bijdrage VvE
- € 284,36 per maand
Bouw
- Soort woning
- Appartement
- Soort appartement
- Galerijflat
- Bouwjaar
- 1967
- Soort dak
- Plat dak
Oppervlakten en inhoud
- Oppervlakte wonen
- 69 m²
- Oppervlakte gebouwgebonden buitenruimte
- 4 m²
- Oppervlakte externe bergruimte
- 5 m²
- Inhoud
- 228 m³
Indeling
- Aantal kamers
- 3
- Aantal slaapkamers
- 2
- Aantal badkamers
- 1
- Badkamervoorzieningen
- Douche en wastafel
- Aantal woonlagen
- 1
- Gelegen op
- 3
Energie
- Energielabel
- B
- Warm water
- Elektrische boiler eigendom
Buitenruimte
- Ligging
- In woonwijk
- Tuin
- Geen tuin
Bergruimte
- Schuur/berging
- Inpandig
Garage
- Soort garage
- Geen garage
Vereniging van Eigenaren
- Inschrijving KvK
- Ja
- Jaarlijkse vergadering
- Ja
- Periodieke bijdrage
- Reservefonds aanwezig
- Ja
- Onderhoudsplan
- Ja
- Opstalverzekering
- Ja