Word je warm van ons verhaal? Laten we samen kennismaken!
Neem contact op- 123 m²
- 223 m²
- 4
- C
Omschrijving
Welkom in deze moderne en tot in de puntjes afgewerkte woning waar comfort en ruimte moeiteloos samenkomen. Met maar liefst vier slaapkamers, een eigen oprit en een multifunctioneel bijgebouw is dit de ideale plek voor gezinnen of iedereen die op zoek is naar meer rust en leefruimte.
INDELING
Begane grond:
Je komt thuis en rijdt moeiteloos de oprit op waar ruimte genoeg is voor meerdere auto's. Vervolgens stap je binnen via de nette entreehal. Hier tref je direct de meterkast, het toilet, de trap naar de eerste verdieping, een handige trapkast en de toegang tot de living area. Zodra je de living binnenloopt valt je oog meteen op de moderne keuken met royaal kookeiland. Dankzij de lichtstraat boven de keuken baadt deze ruimte in natuurlijk daglicht, een heerlijke plek om te koken en samen te komen. De keuken is volledig uitgerust met een elektrische kookplaat, afzuigkap, combi-oven, koelkast en vaatwasser. Het kookeiland biedt bovendien plek voor een paar barkrukken, zodat je hier niet alleen kookt maar ook borrelt of ontbijt. Naast de keuken is er volop ruimte voor een eettafel en via de brede schuifpui stap je zo de tuin in en haal je buiten naar binnen. Daarnaast is er nog een extra deur naar buiten aan de zijkant van de woning. Loop je verder de hoek om dan wacht daar alle ruimte om een gezellige zithoek te creëren. De grote raampartijen zorgen voor een prettige hoeveelheid lichtinval en de elektrische haard zorgt voor warmte en gezelligheid, ideaal voor knusse avonden. De gehele begane grond is strak afgewerkt en voorzien van vloerverwarming, wat bijdraagt aan het woongenot van deze woning.
Eerste verdieping:
Via de trap in de hal bereik je de eerste verdieping waar je uitkomt op een overzichtelijke overloop. Vanuit de overloop heb je toegang tot twee royale slaapkamers, een moderne badkamer en een praktische berging met aansluitingen voor wasmachine en wasdroger, goed weggewerkt maar altijd binnen handbereik. beide slaapkamers zijn opvallend ruim en slim ingedeeld met ingebouwde kasten die zorgen voor een strakke en opgeruimde uitstraling. Hier heb je alle vrijheid om het naar eigen wens in te richten. De badkamer is modern en stijlvol afgewerkt met vloerverwarming voor dat extra beetje comfort. Je vindt hier een ligbad, ruime inloopdouche met regendouche en een wastafel met wastafelmeubel.
Tweede verdieping:
De tweede verdieping bereik je via een vaste trap die je brengt naar de overloop. Vanaf de overloop heb je toegang tot twee slaapkamers en twee ingebouwde kasten, perfect voor het opbergen van spullen die je niet dagelijks nodig hebt. Beide slaapkamers zijn voorzien van een dakraam dat zorgt voor natuurlijk licht en een prettige sfeer. Deze kamers zijn ideaal als kinderkamer, logeerkamer, rustige thuiswerkplek of creatieve hobbyruimte. De mogelijkheden zijn eindeloos.
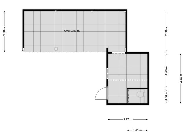
Achtertuin:
Stap via de schuifpui zo de achtertuin in, een fijne en onderhoudsvriendelijke buitenruimte waar je het gehele jaar door van kunt genieten. De tuin is gelegen op het noordoosten wat betekent dat je 's ochtends al heerlijk in het zonnetje zit. In de tuin staat een bijgebouw met een brede overkapping die zich uitstrekt over de volledige breedte van de tuin. Zelfs als het weer even niet meewerkt zit je hier comfortabel en droog. Het bijgebouw is ruim en beschikt over een eigen toilet wat het geschikt maakt voor allerlei doeleinden. Of je nu droomt van een thuiskantoor, een plek voor de kinderen of een hobbyruimte, deze ruimte past zich moeiteloos aan jouw wensen aan.
Locatie:
Deze woning is gelegen in het centrum van Oudheusden, in een rustige en kindvriendelijke woonwijk. Voor je dagelijkse boodschappen hoef je nooit ver: supermarkten, winkels en andere voorzieningen liggen op korte afstand, zodat je alles wat je nodig hebt snel bij de hand hebt. Bovendien ben je binnen een paar minuten in de charmante vestingstad Heusden, perfect voor een wandeling over de stadswallen, een terrasje aan de haven of een avondje uit eten. En heb je behoefte aan de stad? Binnen 20 minuten ben in het bruisende centrum van 's-Hertogenbosch. Ideaal voor werk of een dagje winkelen.
Bijzonderheden:
- Moderne en uitstekend onderhouden woning;
- Vloerverwarming;
- Vier slaapkamers;
- Ruime oprit;
- Moderne open keuken met kookeiland;
- Moderne badkamer;
- Multifunctioneel bijgebouw;
- Oplevering in overleg.
Toon meer
INDELING
Begane grond:
Je komt thuis en rijdt moeiteloos de oprit op waar ruimte genoeg is voor meerdere auto's. Vervolgens stap je binnen via de nette entreehal. Hier tref je direct de meterkast, het toilet, de trap naar de eerste verdieping, een handige trapkast en de toegang tot de living area. Zodra je de living binnenloopt valt je oog meteen op de moderne keuken met royaal kookeiland. Dankzij de lichtstraat boven de keuken baadt deze ruimte in natuurlijk daglicht, een heerlijke plek om te koken en samen te komen. De keuken is volledig uitgerust met een elektrische kookplaat, afzuigkap, combi-oven, koelkast en vaatwasser. Het kookeiland biedt bovendien plek voor een paar barkrukken, zodat je hier niet alleen kookt maar ook borrelt of ontbijt. Naast de keuken is er volop ruimte voor een eettafel en via de brede schuifpui stap je zo de tuin in en haal je buiten naar binnen. Daarnaast is er nog een extra deur naar buiten aan de zijkant van de woning. Loop je verder de hoek om dan wacht daar alle ruimte om een gezellige zithoek te creëren. De grote raampartijen zorgen voor een prettige hoeveelheid lichtinval en de elektrische haard zorgt voor warmte en gezelligheid, ideaal voor knusse avonden. De gehele begane grond is strak afgewerkt en voorzien van vloerverwarming, wat bijdraagt aan het woongenot van deze woning.
Eerste verdieping:
Via de trap in de hal bereik je de eerste verdieping waar je uitkomt op een overzichtelijke overloop. Vanuit de overloop heb je toegang tot twee royale slaapkamers, een moderne badkamer en een praktische berging met aansluitingen voor wasmachine en wasdroger, goed weggewerkt maar altijd binnen handbereik. beide slaapkamers zijn opvallend ruim en slim ingedeeld met ingebouwde kasten die zorgen voor een strakke en opgeruimde uitstraling. Hier heb je alle vrijheid om het naar eigen wens in te richten. De badkamer is modern en stijlvol afgewerkt met vloerverwarming voor dat extra beetje comfort. Je vindt hier een ligbad, ruime inloopdouche met regendouche en een wastafel met wastafelmeubel.
Tweede verdieping:
De tweede verdieping bereik je via een vaste trap die je brengt naar de overloop. Vanaf de overloop heb je toegang tot twee slaapkamers en twee ingebouwde kasten, perfect voor het opbergen van spullen die je niet dagelijks nodig hebt. Beide slaapkamers zijn voorzien van een dakraam dat zorgt voor natuurlijk licht en een prettige sfeer. Deze kamers zijn ideaal als kinderkamer, logeerkamer, rustige thuiswerkplek of creatieve hobbyruimte. De mogelijkheden zijn eindeloos.
Achtertuin:
Stap via de schuifpui zo de achtertuin in, een fijne en onderhoudsvriendelijke buitenruimte waar je het gehele jaar door van kunt genieten. De tuin is gelegen op het noordoosten wat betekent dat je 's ochtends al heerlijk in het zonnetje zit. In de tuin staat een bijgebouw met een brede overkapping die zich uitstrekt over de volledige breedte van de tuin. Zelfs als het weer even niet meewerkt zit je hier comfortabel en droog. Het bijgebouw is ruim en beschikt over een eigen toilet wat het geschikt maakt voor allerlei doeleinden. Of je nu droomt van een thuiskantoor, een plek voor de kinderen of een hobbyruimte, deze ruimte past zich moeiteloos aan jouw wensen aan.
Locatie:
Deze woning is gelegen in het centrum van Oudheusden, in een rustige en kindvriendelijke woonwijk. Voor je dagelijkse boodschappen hoef je nooit ver: supermarkten, winkels en andere voorzieningen liggen op korte afstand, zodat je alles wat je nodig hebt snel bij de hand hebt. Bovendien ben je binnen een paar minuten in de charmante vestingstad Heusden, perfect voor een wandeling over de stadswallen, een terrasje aan de haven of een avondje uit eten. En heb je behoefte aan de stad? Binnen 20 minuten ben in het bruisende centrum van 's-Hertogenbosch. Ideaal voor werk of een dagje winkelen.
Bijzonderheden:
- Moderne en uitstekend onderhouden woning;
- Vloerverwarming;
- Vier slaapkamers;
- Ruime oprit;
- Moderne open keuken met kookeiland;
- Moderne badkamer;
- Multifunctioneel bijgebouw;
- Oplevering in overleg.
Kenmerken
Overdracht
- Aangeboden sinds
- 19 juni 2025
- Status
- Verkocht
- Aanvaarding
- In overleg
Bouw
- Soort woning
- Woonhuis
- Bouwjaar
- 1957
- Soort dak
- Zadeldak
Oppervlakten en inhoud
- Oppervlakte wonen
- 123 m²
- Oppervlakte gebouwgebonden buitenruimte
- 5 m²
- Perceel
- 223 m²
- Inhoud
- 434 m³
Indeling
- Aantal kamers
- 5
- Aantal slaapkamers
- 4
- Aantal badkamers
- 1
- Badkamervoorzieningen
- Ligbad, wastafel, wastafelmeubel en inloopdouche
- Aantal woonlagen
- 3
- Voorzieningen
- Tv-kabel, schuifpui, dakraam, zonnepanelen en natuurlijke ventilatie
Energie
- Energielabel
- C
- Isolatie
- Dakisolatie, vloerisolatie en dubbel glas
- Verwarming
- Cv-ketel en vloerverwarming gedeeltelijk
- Warm water
- Cv-ketel
- Cv-ketel
- Nefit Pro-line NxT HRC 24/CW4 CT (combiketel uit 2019)
Buitenruimte
- Ligging
- Aan rustige weg, in centrum en in woonwijk
- Tuin
- Achtertuin en voortuin
- Achtertuin
- 79 m² gelegen op het noordoosten
Garage
- Soort garage
- Geen garage