Word je warm van ons verhaal? Laten we samen kennismaken!
Neem contact op- 122 m²
- 157 m²
- 4
- A
Omschrijving
Deze brede en ruime tussenwoning is gelegen in een kindvriendelijke wijk in Drunen en biedt een ideale woonomgeving voor jonge gezinnen. Met vier slaapkamers en een goed onderhouden tuin is er volop ruimte voor het hele gezin om te genieten. De woning beschikt over energielabel A, mede dankzij de grotendeels hardhouten kozijnen met HR-beglazing, 10 zonnepanelen en de cv-ketel uit 2019. Dit huis combineert comfort, energiezuinigheid en een fijne leefomgeving.
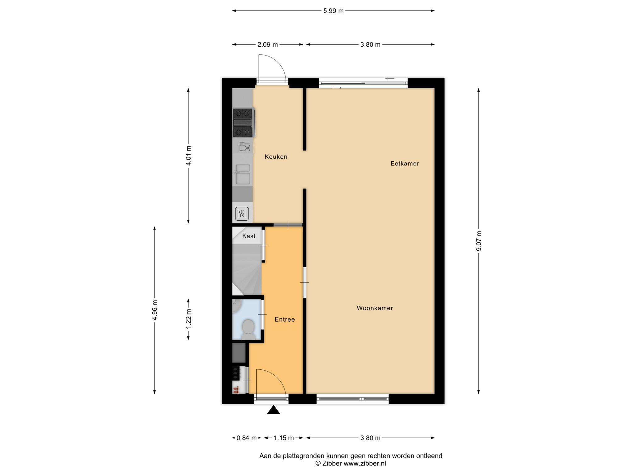
Begane grond:
Bij binnenkomst in de woning kom je in een ruime entreehal die toegang biedt tot de meterkast, het toilet, de trap naar de eerste verdieping, een handige trapkast, de woonkamer en de keuken. De woonkamer is bijzonder ruim en biedt voldoende plek voor een gezellige zithoek en een eettafel. Dankzij de schuifpui heb je direct toegang tot de achtertuin, wat het ideaal maakt voor buitenleven. De halfopen keuken, die in 2019 is geplaatst, is uitgerust met moderne apparatuur zoals een oven, combi-oven, vaatwasser, gaspit en koelkast. Vanuit de keuken is er tevens toegang tot de achtertuin De combinatie van de grote leefruimte en de moderne keuken maakt de begane grond tot een aangename plek voor het hele gezin met veel mogelijkheden.
Eerste verdieping:
Via de trap in de entreehal bereik je de overloop van de eerste verdieping, die toegang biedt tot drie ruime slaapkamers en de badkamer. De slaapkamers zijn van ruim formaat en bieden genoeg ruimte voor een tweepersoonsbed en een kledingkast. Door de grote raampartijen in de kamers valt er veel natuurlijk licht naar binnen, wat de kamers een lichte en luchtige uitstraling geeft. De badkamer is volledig uitgerust met een ligbad, douche, wasafel met meubel en toilet, waardoor er genoeg ruimte is voor het hele gezin. De indeling van de eerste verdieping is ideaal voor een gezinswoning, met een praktische en functionele ruimte voor iedereen. De slaapkamers bieden privacy en comfort voor elk gezinslid.
Tweede verdieping:
De tweede verdieping is bereikbaar via een vaste trap en biedt tal van mogelijkheden voor extra woonruimte. De verdieping is perfect te gebruiken als een extra slaapkamer of als een werkplek voor thuiswerken. Tevens is er op deze verdieping de opstelplaats voor de wasmachine, droger en de cv-ketel uit 2019. Het grote dakraam zorgt voor veel lichtinval, waardoor deze verdieping aangenaam en ruimtelijk aanvoelt. De mogelijkheden voor deze verdieping zijn eindeloos, van extra opslagruimte, een extra slaapkamer tot aan een comfortabele werkplek. Deze ruimte biedt veel potentie voor verschillende toepassingen.
Tuin:
De goed onderhouden tuin biedt veel privacy, waardoor je optimaal kunt genieten van je buitenruimte. Gelegen op het oosten, kun je hier heerlijk genieten van de ochtendzon, ideaal voor een kopje koffie of ontbijt in de buitenlucht. Er is voldoende ruimte voor een gezellig zitgedeelte, waar je kunt ontspannen of gasten kunt ontvangen. De tuin is voorzien van een berging, ideaal voor het opbergen van fietsen of tuingereedschap. Bovendien is er een achterom, wat de toegang naar de tuin vergemakkelijkt. Deze tuin biedt niet alleen privacy, maar ook veel praktische voordelen. Het is een ideale buitenruimte voor het hele gezin.
LOCATIE
De woning ligt in een rustige, kindvriendelijke woonwijk in Drunen, perfect voor gezinnen. Voor de dagelijkse boodschappen kun je terecht in het gezellige centrum van Drunen, waar je een divers aanbod aan winkels, restaurants en andere voorzieningen vindt. Heb je behoefte aan een dagje stad? Binnen een kwartiertje ben je in het bruisende Den Bosch, waar je kunt genieten van cultuur, winkelen en horeca. Verder liggen de prachtige Drunense Duinen op korte afstand, ideaal voor lange wandelingen of fietstochten in de natuur. Kortom, de locatie biedt alles voor zowel gemak als recreatie.
BIJZONDERHEDEN
- Energielabel A;
- 4 ruime slaapkamers;
- Tuin op het oosten;
- 10 zonnepanelen;
- CV-ketel uit 2019;
- HR-beglazing;
- Keuken uit 2019;
Toon meer
Begane grond:
Bij binnenkomst in de woning kom je in een ruime entreehal die toegang biedt tot de meterkast, het toilet, de trap naar de eerste verdieping, een handige trapkast, de woonkamer en de keuken. De woonkamer is bijzonder ruim en biedt voldoende plek voor een gezellige zithoek en een eettafel. Dankzij de schuifpui heb je direct toegang tot de achtertuin, wat het ideaal maakt voor buitenleven. De halfopen keuken, die in 2019 is geplaatst, is uitgerust met moderne apparatuur zoals een oven, combi-oven, vaatwasser, gaspit en koelkast. Vanuit de keuken is er tevens toegang tot de achtertuin De combinatie van de grote leefruimte en de moderne keuken maakt de begane grond tot een aangename plek voor het hele gezin met veel mogelijkheden.
Eerste verdieping:
Via de trap in de entreehal bereik je de overloop van de eerste verdieping, die toegang biedt tot drie ruime slaapkamers en de badkamer. De slaapkamers zijn van ruim formaat en bieden genoeg ruimte voor een tweepersoonsbed en een kledingkast. Door de grote raampartijen in de kamers valt er veel natuurlijk licht naar binnen, wat de kamers een lichte en luchtige uitstraling geeft. De badkamer is volledig uitgerust met een ligbad, douche, wasafel met meubel en toilet, waardoor er genoeg ruimte is voor het hele gezin. De indeling van de eerste verdieping is ideaal voor een gezinswoning, met een praktische en functionele ruimte voor iedereen. De slaapkamers bieden privacy en comfort voor elk gezinslid.
Tweede verdieping:
De tweede verdieping is bereikbaar via een vaste trap en biedt tal van mogelijkheden voor extra woonruimte. De verdieping is perfect te gebruiken als een extra slaapkamer of als een werkplek voor thuiswerken. Tevens is er op deze verdieping de opstelplaats voor de wasmachine, droger en de cv-ketel uit 2019. Het grote dakraam zorgt voor veel lichtinval, waardoor deze verdieping aangenaam en ruimtelijk aanvoelt. De mogelijkheden voor deze verdieping zijn eindeloos, van extra opslagruimte, een extra slaapkamer tot aan een comfortabele werkplek. Deze ruimte biedt veel potentie voor verschillende toepassingen.
Tuin:
De goed onderhouden tuin biedt veel privacy, waardoor je optimaal kunt genieten van je buitenruimte. Gelegen op het oosten, kun je hier heerlijk genieten van de ochtendzon, ideaal voor een kopje koffie of ontbijt in de buitenlucht. Er is voldoende ruimte voor een gezellig zitgedeelte, waar je kunt ontspannen of gasten kunt ontvangen. De tuin is voorzien van een berging, ideaal voor het opbergen van fietsen of tuingereedschap. Bovendien is er een achterom, wat de toegang naar de tuin vergemakkelijkt. Deze tuin biedt niet alleen privacy, maar ook veel praktische voordelen. Het is een ideale buitenruimte voor het hele gezin.
LOCATIE
De woning ligt in een rustige, kindvriendelijke woonwijk in Drunen, perfect voor gezinnen. Voor de dagelijkse boodschappen kun je terecht in het gezellige centrum van Drunen, waar je een divers aanbod aan winkels, restaurants en andere voorzieningen vindt. Heb je behoefte aan een dagje stad? Binnen een kwartiertje ben je in het bruisende Den Bosch, waar je kunt genieten van cultuur, winkelen en horeca. Verder liggen de prachtige Drunense Duinen op korte afstand, ideaal voor lange wandelingen of fietstochten in de natuur. Kortom, de locatie biedt alles voor zowel gemak als recreatie.
BIJZONDERHEDEN
- Energielabel A;
- 4 ruime slaapkamers;
- Tuin op het oosten;
- 10 zonnepanelen;
- CV-ketel uit 2019;
- HR-beglazing;
- Keuken uit 2019;
Kenmerken
Overdracht
- Aangeboden sinds
- 19 juni 2025
- Status
- Verkocht
- Aanvaarding
- In overleg
Bouw
- Soort woning
- Woonhuis
- Bouwjaar
- 1996
- Soort dak
- Zadeldak
Oppervlakten en inhoud
- Oppervlakte wonen
- 122 m²
- Oppervlakte externe bergruimte
- 7 m²
- Perceel
- 157 m²
- Inhoud
- 434 m³
Indeling
- Aantal kamers
- 5
- Aantal slaapkamers
- 4
- Aantal badkamers
- 1
- Badkamervoorzieningen
- Ligbad, toilet, douche, wastafel en wastafelmeubel
- Aantal woonlagen
- 3
- Voorzieningen
- Mechanische ventilatie, rolluiken, tv-kabel, buitenzonwering, schuifpui, dakraam, glasvezel kabel en zonnepanelen
Energie
- Energielabel
- A
- Isolatie
- Dakisolatie, muurisolatie, vloerisolatie, volledig geïsoleerd en hr glas
- Verwarming
- Cv-ketel
- Warm water
- Cv-ketel
- Cv-ketel
- Tzerra Ace (combiketel uit 2019)
Buitenruimte
- Ligging
- Aan rustige weg, in woonwijk en in bosrijke omgeving
- Tuin
- Achtertuin en voortuin
- Achtertuin
- 82 m² gelegen op het oosten met achterom
Bergruimte
- Schuur/berging
- Vrijstaand hout
- Voorzieningen
- Voorzien van elektra
Garage
- Soort garage
- Geen garage