Word je warm van ons verhaal? Laten we samen kennismaken!
Neem contact op- 100 m²
- 276 m²
- 3
- D
Omschrijving
Volledig gerenoveerde 2^1 kapwoning met grote multifunctionele garage c.q. schuur! Gelegen in het centrum van Helvoirt op een zuidelijk gelegen perceel van 276m2 en op loopafstand van de basisvoorzieningen. De royale garage c.q. schuur is circa 67m2 groot en in 2022 verbouwd.
De moderne woning heeft houten kozijnen met isolerende beglazing, dak en gedeeltelijk muurisolatie.
Parterre:
•Entree, hal met toilet, garderobe, trapopgang, meterkast en toegang tot de keuken.
•Lichte woonkamer met laminaatvloer en open keuken. De moderne keuken uit 2022 is uitgerust met veel kastruimte en inbouwapparatuur te weten: een inductiekookplaat, een afzuigkap, een vaatwasser, een combioven en een koelkast. Vanuit de keuken is ook een functionele kelder bereikbaar.
•Aansluitend is er toegang tot de bijkeuken. In de bijkeuken is de aansluiting voor de wasmachine aanwezig en ruimte voor overige witgoedapparatuur. Vanuit de bijkeuken is middels een tuindeur het terras te bereiken.
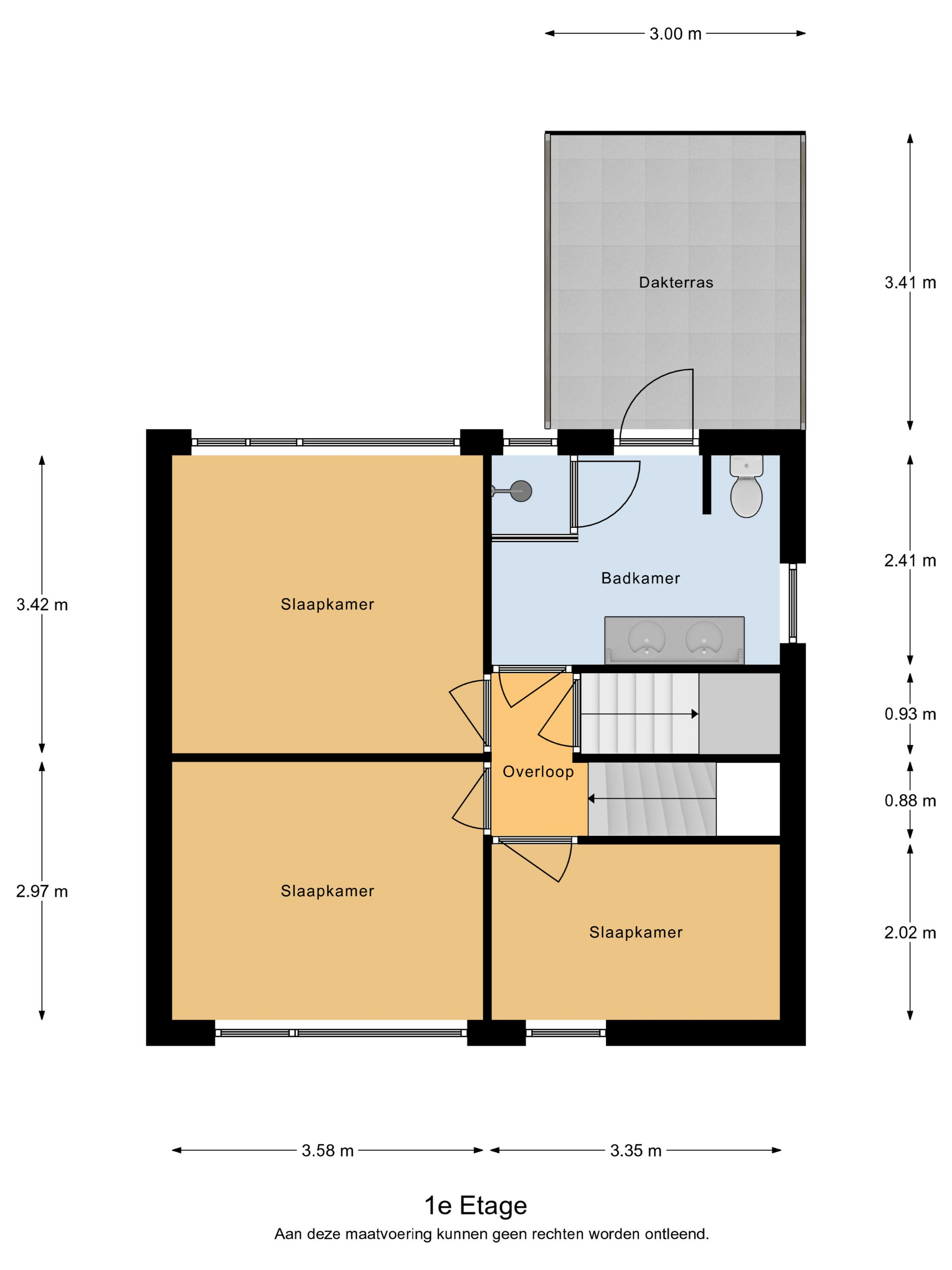
1ste verdieping betonvloer:
•Aan de overloop bevinden zich drie slaapkamers en de badkamer
•De slaapkamers zijn 12m2, 10,6m2 en 6,7m2 groot en allen zijn voorzien van dubbele beglazing, laminaatvloeren en stucwerkwanden.
•De royale badkamer is uitgerust met een douche, een tweede toilet en een dubbel wastafelmeubel.
2de verdieping houten balklaag:
•De tweede verdieping is te bereiken door middel van een vaste trap. Vierde kamer met onder de schuine kant ruimte voor berging en opslag. Tevens is er een dakraam aanwezig.
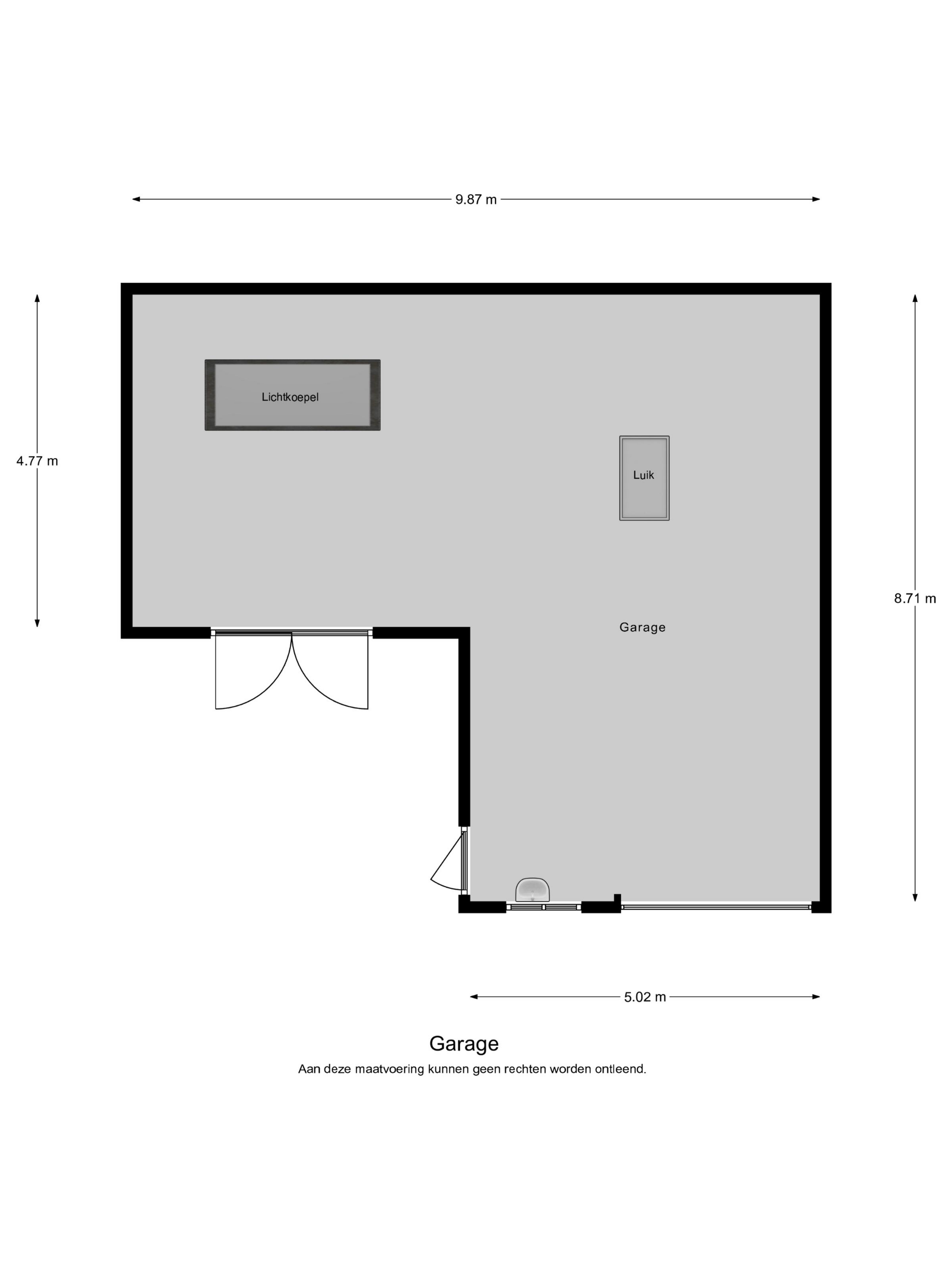
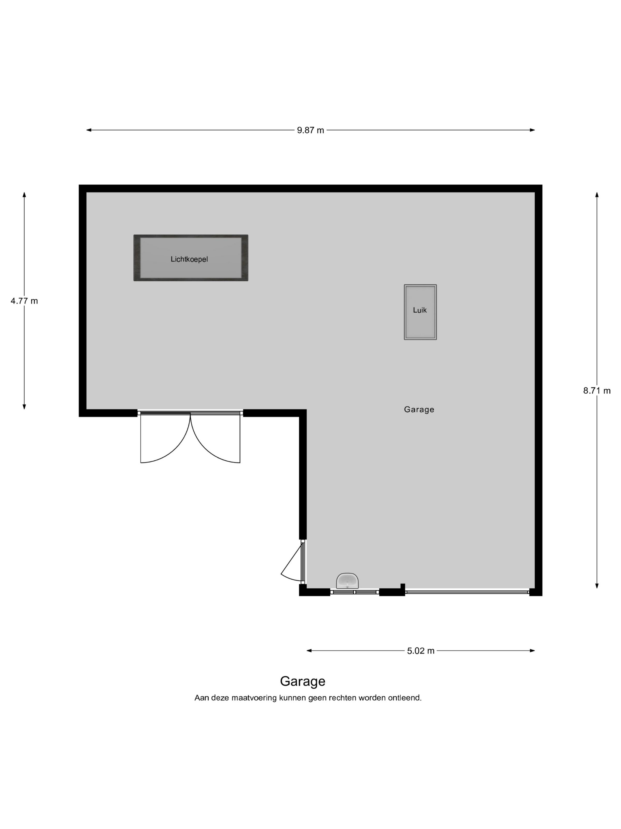
Schuur/multifunctionele ruimte:
In de tuin is een grote houten volledig gerenoveerde schuur/garage aanwezig met verdieping en werkput. Deze ruime schuur is een voor eenieder een fijne ruimte. De vloer is afgewerkt met een fraaie betonvloer en de ruimte heeft een stalen kanteldeur. Het dak en de muren zijn geïsoleerd.
De ruimte is mede door het aanwezige daglicht een fijne (thuis)werkplek, atelierruimte, vergaderruimte, werkplaats etc
De tuin is geheel voorzien van eveneens vernieuwde bestrating, schuttingen en een degelijke afsluitbare poort.
Specificaties:
Woonoppervlak: 99m²
Woonhuis inhoud: 425m³
Overig inpandige ruimte: 17m²
Externe berging: 67m2
Bouwjaar: 1966, renovatiejaar 2022/2023
Perceel: 276m² groot
Aanvaarding: in overleg
ENTHOUSIAST geworden over deze gemoderniseerde woning met enorme schuur? Een juiste beoordeling van de woning komt het beste tot zijn recht bij een persoonlijke rondleiding, die ik graag voor u verzorg.
Wonen in Helvoirt!
Een typisch en idyllisch Brabants dorpje in de gemeente Vught. In Helvoirt leef je in het Groene Woud tussen de natuurgebieden Helvoirts Broek en Nationaal Park de Loonse & Drunense Duinen. Er zijn volop mogelijkheden om in de nabijheid van de woning in de prachtige natuur te fietsen en te wandelen, waarbij je eventueel een stop kunt maken in een van de gezellige restaurants en cafés in de buurt.
Helvoirt is een verrassend dorp met diverse faciliteiten, winkels en een actief verenigingsleven.
Een plaats, die juist door de vele faciliteiten al snel een thuisgevoel geeft voor jong en oud.
In het dorp en de omgeving wordt het hele jaar door van alles georganiseerd; van festivals, concerten, sportevenementen tot culturele activiteiten. Bourgondisch Brabant is echt van toepassing op deze regio met volop mooie kleine en wat grotere plaatsen.
Binnen een paar minuten ben je bovendien in het eveneens gezellige Vught en het is nog geen kwartier rijden naar Den Bosch of Tilburg. In Helvoirt woon je vooral heel comfortabel met scholen, sportvelden en supermarkten op loopafstand.
Toon meer
De moderne woning heeft houten kozijnen met isolerende beglazing, dak en gedeeltelijk muurisolatie.
Parterre:
•Entree, hal met toilet, garderobe, trapopgang, meterkast en toegang tot de keuken.
•Lichte woonkamer met laminaatvloer en open keuken. De moderne keuken uit 2022 is uitgerust met veel kastruimte en inbouwapparatuur te weten: een inductiekookplaat, een afzuigkap, een vaatwasser, een combioven en een koelkast. Vanuit de keuken is ook een functionele kelder bereikbaar.
•Aansluitend is er toegang tot de bijkeuken. In de bijkeuken is de aansluiting voor de wasmachine aanwezig en ruimte voor overige witgoedapparatuur. Vanuit de bijkeuken is middels een tuindeur het terras te bereiken.
1ste verdieping betonvloer:
•Aan de overloop bevinden zich drie slaapkamers en de badkamer
•De slaapkamers zijn 12m2, 10,6m2 en 6,7m2 groot en allen zijn voorzien van dubbele beglazing, laminaatvloeren en stucwerkwanden.
•De royale badkamer is uitgerust met een douche, een tweede toilet en een dubbel wastafelmeubel.
2de verdieping houten balklaag:
•De tweede verdieping is te bereiken door middel van een vaste trap. Vierde kamer met onder de schuine kant ruimte voor berging en opslag. Tevens is er een dakraam aanwezig.
Schuur/multifunctionele ruimte:
In de tuin is een grote houten volledig gerenoveerde schuur/garage aanwezig met verdieping en werkput. Deze ruime schuur is een voor eenieder een fijne ruimte. De vloer is afgewerkt met een fraaie betonvloer en de ruimte heeft een stalen kanteldeur. Het dak en de muren zijn geïsoleerd.
De ruimte is mede door het aanwezige daglicht een fijne (thuis)werkplek, atelierruimte, vergaderruimte, werkplaats etc
De tuin is geheel voorzien van eveneens vernieuwde bestrating, schuttingen en een degelijke afsluitbare poort.
Specificaties:
Woonoppervlak: 99m²
Woonhuis inhoud: 425m³
Overig inpandige ruimte: 17m²
Externe berging: 67m2
Bouwjaar: 1966, renovatiejaar 2022/2023
Perceel: 276m² groot
Aanvaarding: in overleg
ENTHOUSIAST geworden over deze gemoderniseerde woning met enorme schuur? Een juiste beoordeling van de woning komt het beste tot zijn recht bij een persoonlijke rondleiding, die ik graag voor u verzorg.
Wonen in Helvoirt!
Een typisch en idyllisch Brabants dorpje in de gemeente Vught. In Helvoirt leef je in het Groene Woud tussen de natuurgebieden Helvoirts Broek en Nationaal Park de Loonse & Drunense Duinen. Er zijn volop mogelijkheden om in de nabijheid van de woning in de prachtige natuur te fietsen en te wandelen, waarbij je eventueel een stop kunt maken in een van de gezellige restaurants en cafés in de buurt.
Helvoirt is een verrassend dorp met diverse faciliteiten, winkels en een actief verenigingsleven.
Een plaats, die juist door de vele faciliteiten al snel een thuisgevoel geeft voor jong en oud.
In het dorp en de omgeving wordt het hele jaar door van alles georganiseerd; van festivals, concerten, sportevenementen tot culturele activiteiten. Bourgondisch Brabant is echt van toepassing op deze regio met volop mooie kleine en wat grotere plaatsen.
Binnen een paar minuten ben je bovendien in het eveneens gezellige Vught en het is nog geen kwartier rijden naar Den Bosch of Tilburg. In Helvoirt woon je vooral heel comfortabel met scholen, sportvelden en supermarkten op loopafstand.
Kenmerken
Overdracht
- Vraagprijs
- € 515.000 k.k.
- Vraagprijs per m²
- € 5.150
- Aangeboden sinds
- 29 oktober 2025
- Status
- Verkocht onder voorbehoud
- Aanvaarding
- In overleg
Bouw
- Soort woning
- Woonhuis
- Bouwjaar
- 1966
Oppervlakten en inhoud
- Oppervlakte wonen
- 100 m²
- Oppervlakte overige inpandige ruimte
- 17 m²
- Oppervlakte externe bergruimte
- 67 m²
- Perceel
- 276 m²
- Inhoud
- 425 m³
Indeling
- Aantal kamers
- 5
- Aantal slaapkamers
- 3
- Aantal badkamers
- 1
- Badkamervoorzieningen
- Toilet, douche, dubbele wastafel en wastafelmeubel
- Aantal woonlagen
- 3
- Voorzieningen
- Mechanische ventilatie en glasvezel kabel
Energie
- Energielabel
- D
- Isolatie
- Dakisolatie, muurisolatie en hr glas
- Verwarming
- Cv-ketel
- Warm water
- Cv-ketel
- Cv-ketel
- Valliant eco Tec plus (combiketel uit 2022)
Buitenruimte
- Ligging
- In woonwijk
- Tuin
- Achtertuin en voortuin
- Achtertuin
- 64 m² gelegen op het zuiden met achterom
Garage
- Soort garage
- Vrijstaand hout
- Capaciteit
- 3