Word je warm van ons verhaal? Laten we samen kennismaken!
Neem contact op- 132 m²
- 235 m²
- 3
- C
Omschrijving
Gemoderniseerde jaren '30 twee-onder-een-kap woning met behoud van authentieke sfeer en elementen, maar wel voorzien van alle gemakken die we vandaag de dag kennen. De woning is instapklaar en zonder meer uniek te noemen. Naast het huis is een ruime oprit met achterom en achter het huis ligt een fraai aangelegde tuin.
INDELING:
Begane grond:
Via de hal met originele granito vloer, kom je de woonkamer met open keuken binnen. De woonkamer is afgewerkt met een fraaie visgraat pvc-vloer en eveneens vloerverwarming. In de woonkamer zijn inbouwspots, wandverlichting en glas-in-lood ramen aan de voorzijde aanwezig. De wanden en het plafond zijn strak gestuct. In de woonkamer bevindt zich een houtkachel (aansluiting voor gashaard al aanwezig). De open keuken uit 2008 is voorzien van een koelkast, enkele spoelbak, 4-pits gasfornuis, afzuigkap (2019) en vaatwasser (2024). De keuken heeft een mooi granieten werkblad.
Achter de deur bij de keuken bevindt zich de aanbouw. Dit gedeelte is in 2010 aangebouwd, in 2021 is het dak voorzien van nieuwe dakbedekking. Via de eerste ruimte is er toegang tot de toiletruimte en toegang tot de pantry. In de pantry is een spoelbak, afzuigkap en wasmachineaansluiting aanwezig. De pantry heeft openslaande tuindeuren en toegang tot de berging.
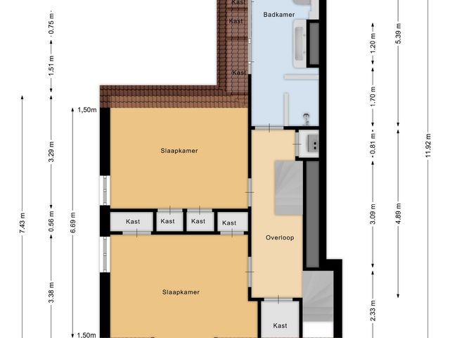
Eerste verdieping:
De eerste verdieping heeft twee slaapkamers, een inloopkast en een badkamer. De badkamer is voorzien van een ligbad, toilet (zwevend), dubbele wastafel en inloopdouche. De inloopdouche en het wastafelmeubel zijn in 2023 vernieuwd. Over de gehele bovenverdieping ligt een vernieuwde pvc visgraat vloer. Daarnaast zijn ook de wanden en het plafond van de bovenverdieping gestuct.
Tweede verdieping:
Via een vaste trap bereik je de voorzolder en zolderkamer met dakkapel. De voorzolder is voorzien van airco. Door de brede dakkapel dient de zolderkamer als extra slaapkamer.
Buiten:
Naast het huis ligt een ruime oprit en via de poort is de royale tuin te bereiken. De achtertuin, die op het noorden gesitueerd is, is voorzien van een beregeningsinstallatie. Door de royale afmetingen van de tuin kunt u op het hierin gesitueerde terras de hele dag genieten van de zon.
Bijzonderheden:
- Authentieke jaren '30 woning
- In 2008 is de woning gerenoveerd
- Uitstekende staat van onderhoud
- Houten kozijnen met HR++ glas
- Nog vele authentieke elementen: paneeldeuren, glas-in-loodramen en granito vloer in de hal
- Fraaie woonkamer met visgraat pvc-vloer en vloerverwarming
- Royaal aangelegde voortuin met oprit en achterom
- Gelegen op loopafstand van het centrum en nabij natuurpark de Moerputten
Toon meer
INDELING:
Begane grond:
Via de hal met originele granito vloer, kom je de woonkamer met open keuken binnen. De woonkamer is afgewerkt met een fraaie visgraat pvc-vloer en eveneens vloerverwarming. In de woonkamer zijn inbouwspots, wandverlichting en glas-in-lood ramen aan de voorzijde aanwezig. De wanden en het plafond zijn strak gestuct. In de woonkamer bevindt zich een houtkachel (aansluiting voor gashaard al aanwezig). De open keuken uit 2008 is voorzien van een koelkast, enkele spoelbak, 4-pits gasfornuis, afzuigkap (2019) en vaatwasser (2024). De keuken heeft een mooi granieten werkblad.
Achter de deur bij de keuken bevindt zich de aanbouw. Dit gedeelte is in 2010 aangebouwd, in 2021 is het dak voorzien van nieuwe dakbedekking. Via de eerste ruimte is er toegang tot de toiletruimte en toegang tot de pantry. In de pantry is een spoelbak, afzuigkap en wasmachineaansluiting aanwezig. De pantry heeft openslaande tuindeuren en toegang tot de berging.
Eerste verdieping:
De eerste verdieping heeft twee slaapkamers, een inloopkast en een badkamer. De badkamer is voorzien van een ligbad, toilet (zwevend), dubbele wastafel en inloopdouche. De inloopdouche en het wastafelmeubel zijn in 2023 vernieuwd. Over de gehele bovenverdieping ligt een vernieuwde pvc visgraat vloer. Daarnaast zijn ook de wanden en het plafond van de bovenverdieping gestuct.
Tweede verdieping:
Via een vaste trap bereik je de voorzolder en zolderkamer met dakkapel. De voorzolder is voorzien van airco. Door de brede dakkapel dient de zolderkamer als extra slaapkamer.
Buiten:
Naast het huis ligt een ruime oprit en via de poort is de royale tuin te bereiken. De achtertuin, die op het noorden gesitueerd is, is voorzien van een beregeningsinstallatie. Door de royale afmetingen van de tuin kunt u op het hierin gesitueerde terras de hele dag genieten van de zon.
Bijzonderheden:
- Authentieke jaren '30 woning
- In 2008 is de woning gerenoveerd
- Uitstekende staat van onderhoud
- Houten kozijnen met HR++ glas
- Nog vele authentieke elementen: paneeldeuren, glas-in-loodramen en granito vloer in de hal
- Fraaie woonkamer met visgraat pvc-vloer en vloerverwarming
- Royaal aangelegde voortuin met oprit en achterom
- Gelegen op loopafstand van het centrum en nabij natuurpark de Moerputten
Kenmerken
Overdracht
- Aangeboden sinds
- 5 augustus 2025
- Status
- Verkocht
- Aanvaarding
- In overleg
Bouw
- Soort woning
- Woonhuis
- Bouwjaar
- 1938
- Soort dak
- Samengesteld dak
Oppervlakten en inhoud
- Oppervlakte wonen
- 132 m²
- Oppervlakte overige inpandige ruimte
- 9 m²
- Oppervlakte gebouwgebonden buitenruimte
- 4 m²
- Perceel
- 235 m²
- Inhoud
- 500 m³
Indeling
- Aantal kamers
- 6
- Aantal slaapkamers
- 3
- Aantal badkamers
- 1
- Badkamervoorzieningen
- Ligbad, toilet, dubbele wastafel, wastafelmeubel en inloopdouche
- Aantal woonlagen
- 3
- Voorzieningen
- Mechanische ventilatie, tv-kabel en airconditioning
Energie
- Energielabel
- C
- Isolatie
- Dakisolatie, muurisolatie, vloerisolatie, grotendeels dubbelglas en hr glas
- Verwarming
- Cv-ketel en houtkachel
- Warm water
- Cv-ketel
- Cv-ketel
- Integas (combiketel uit 2008)
Buitenruimte
- Ligging
- Aan rustige weg, in centrum, in woonwijk, open ligging en in bosrijke omgeving
- Tuin
- Achtertuin, voortuin en zijtuin
- Achtertuin
- 150 m² gelegen op het noorden met achterom
Bergruimte
- Schuur/berging
- Aangebouwd steen
Garage
- Soort garage
- Garage mogelijk en geen garage