Word je warm van ons verhaal? Laten we samen kennismaken!
Neem contact op- 100 m²
- 440 m²
- 2
- B
Omschrijving
Charmante jaren ’40 woning met een zonnige voortuin met zicht op de voorgelegen weilanden. De woning is uitgebouwd met een fraaie lichte serre. De woning, voorzien van zonnepanelen, is zeer goed onderhouden en geïsoleerd en heeft een energielabel B. Naast de woning is een royale garage gebouwd met zolder voor extra berging.
Je woont hier met een gevoel van het vrije buitenleven en je loopt dan ook zo de natuur in. Bij deze woning kom je ook niet door de voordeur binnen, maar maak je gebruik van de Brabantse gastvrije “achterom”.
Door de centrale ligging bij de N65 bent u binnen 15 minuten in steden als ’s-Hertogenbosch en Tilburg.
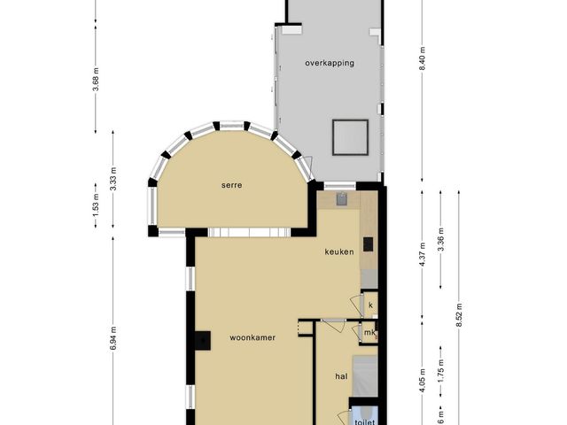
Parterre:
•Entree, hal met wandtoilet, trapopgang, meterkast en toegang tot de woonkamer.
•Woonkamer met open keuken en aangebouwde lichte serre.
•Door de vele aanwezige ramen is de woonruimte heerlijk licht en is er voldoende ruimte voor de eettafel en de zithoek.
•De zithoek heeft een gaskachel en de pvc-vloer loopt door over de gehele begane grondvloer.
•Het keukenmeubel is voorzien van een gasfornuis, afzuigkap, een vaatwasser, een diepvries, een koelkast een combioven en een spoelbak. Enkele apparaten zijn recent vernieuwd. Praktische bergingskast naast het keukenmeubel.
•Vanuit de serre zijn er loopdeuren naar de garage en naar de overkapping.
•Onder de overkapping die is afgesloten met een glazen schuifwand is een gezellige zithoek gecreëerd met houthaard en tv-aansluiting. De basis is al gelegd voor een man-cave of chillruimte.
1ste verdieping houten balklaag:
•Aan de overloop grenzen in totaal 2 slaapkamers, de badkamer, de waskamer en de vaste hardhouten trap naar de 2e verdieping.
•De moderne badkamer is voorzien van een douche, een wandtoilet en een wastafelmeubel. De ruimte is ruim en licht door de brede dakkapel en heeft een elektrische vloerverwarming.
•Slaapkamer 1 heeft een vaste kast, screens, airconditioning en een dakkapel.
•Slaapkamer 2 heeft een dakkapel, screens en de gehele verdieping is afgewerkt met een laminaatvloer.
•Praktische waskamer met dakraam en de aansluitingen voor de wasmachine en de droger. Daarnaast is er nog ruimte voor een extra kast of witgoedapparaat.
2de verdieping houten balklaag:
•De ruimte is keurig afgewerkt met een groot dakraam. De ruimte is nu als berging in gebruik, maar kan zeker functioneel zijn als werkkamer of logeerkamer.
•Op de voorzolder is de cv-ketel uit 2013 geïnstalleerd.
Buitenleven:
•Royale garage is in 1998 gebouwd met een elektrisch bedienbare sectionaal deur en vliering voor extra berging. De garage is in spouw gezet en het dak is voorzien van dakisolatieplaten.
•Het dak van de woning is in 1995 vernieuwd. Toen zijn er isolatieplaten aangebracht en zijn de originele dakpannen teruggeplaatst. In april 2023 zijn er 12 zonnepanelen geplaatst op het dak van de woning.
•Oprit en houten tuinpoort met toegang tot de achtertuin. In de achtertuin bevindt zich een houten berging.
•Een zonnige diepe tuin, gelegen op het oosten. De tuin heeft diverse groene borders en is ruim voorzien van bestrating. Hierdoor is er de mogelijkheid om op veel plaatsen een fijne zit- of eethoek te plaatsen.
Specificaties:
Bouwjaar: circa 1940
Perceeloppervlak: 440m²
Inhoud van de woning: 380m³
Woonoppervlak: 99,5m²
Overige inpandige ruimte: 6,4m²
Externe bergruimte: 23,20m²
Energielabel: B
Aanvaarding: in overleg
ENTHOUSIAST geworden over deze 2^1 kapwoning met een heerlijke zonnige tuin en een vrije uitkijk over de weilanden?
Een juiste beoordeling van de woning komt het beste tot zijn recht bij een persoonlijke rondleiding, welke wij graag voor u verzorgen.
Wonen in de heerlijkheid Helvoirt, een buitenplaats van Vught!
Een typisch en idyllisch Brabants dorpje in de gemeente Vught. In Helvoirt leef je in het Groene Woud tussen de natuurgebieden Helvoirts Broek en Nationaal Park de Loonse & Drunense Duinen. Er zijn volop mogelijkheden om in de nabijheid van de woning in de prachtige natuur te fietsen en te wandelen, waarbij je eventueel een stop kunt maken in een van de gezellige restaurants en cafés in de buurt.
Helvoirt is een verrassend dorp met diverse faciliteiten, winkels en een actief verenigingsleven.
Een plaats, die juist door de vele faciliteiten al snel een thuisgevoel geeft voor jong en oud.
In het dorp en de omgeving wordt het hele jaar door van alles georganiseerd; van festivals, concerten, sportevenementen tot culturele activiteiten. Bourgondisch Brabant is echt van toepassing op deze regio met volop mooie kleine en wat grotere plaatsen.
Binnen een paar minuten ben je bovendien in het eveneens gezellige Vught of Oisterwijk en het is nog geen kwartier rijden naar Den Bosch of Tilburg. In Helvoirt woon je vooral heel comfortabel met scholen, sportvelden en supermarkten op loopafstand.
Toon meer
Je woont hier met een gevoel van het vrije buitenleven en je loopt dan ook zo de natuur in. Bij deze woning kom je ook niet door de voordeur binnen, maar maak je gebruik van de Brabantse gastvrije “achterom”.
Door de centrale ligging bij de N65 bent u binnen 15 minuten in steden als ’s-Hertogenbosch en Tilburg.
Parterre:
•Entree, hal met wandtoilet, trapopgang, meterkast en toegang tot de woonkamer.
•Woonkamer met open keuken en aangebouwde lichte serre.
•Door de vele aanwezige ramen is de woonruimte heerlijk licht en is er voldoende ruimte voor de eettafel en de zithoek.
•De zithoek heeft een gaskachel en de pvc-vloer loopt door over de gehele begane grondvloer.
•Het keukenmeubel is voorzien van een gasfornuis, afzuigkap, een vaatwasser, een diepvries, een koelkast een combioven en een spoelbak. Enkele apparaten zijn recent vernieuwd. Praktische bergingskast naast het keukenmeubel.
•Vanuit de serre zijn er loopdeuren naar de garage en naar de overkapping.
•Onder de overkapping die is afgesloten met een glazen schuifwand is een gezellige zithoek gecreëerd met houthaard en tv-aansluiting. De basis is al gelegd voor een man-cave of chillruimte.
1ste verdieping houten balklaag:
•Aan de overloop grenzen in totaal 2 slaapkamers, de badkamer, de waskamer en de vaste hardhouten trap naar de 2e verdieping.
•De moderne badkamer is voorzien van een douche, een wandtoilet en een wastafelmeubel. De ruimte is ruim en licht door de brede dakkapel en heeft een elektrische vloerverwarming.
•Slaapkamer 1 heeft een vaste kast, screens, airconditioning en een dakkapel.
•Slaapkamer 2 heeft een dakkapel, screens en de gehele verdieping is afgewerkt met een laminaatvloer.
•Praktische waskamer met dakraam en de aansluitingen voor de wasmachine en de droger. Daarnaast is er nog ruimte voor een extra kast of witgoedapparaat.
2de verdieping houten balklaag:
•De ruimte is keurig afgewerkt met een groot dakraam. De ruimte is nu als berging in gebruik, maar kan zeker functioneel zijn als werkkamer of logeerkamer.
•Op de voorzolder is de cv-ketel uit 2013 geïnstalleerd.
Buitenleven:
•Royale garage is in 1998 gebouwd met een elektrisch bedienbare sectionaal deur en vliering voor extra berging. De garage is in spouw gezet en het dak is voorzien van dakisolatieplaten.
•Het dak van de woning is in 1995 vernieuwd. Toen zijn er isolatieplaten aangebracht en zijn de originele dakpannen teruggeplaatst. In april 2023 zijn er 12 zonnepanelen geplaatst op het dak van de woning.
•Oprit en houten tuinpoort met toegang tot de achtertuin. In de achtertuin bevindt zich een houten berging.
•Een zonnige diepe tuin, gelegen op het oosten. De tuin heeft diverse groene borders en is ruim voorzien van bestrating. Hierdoor is er de mogelijkheid om op veel plaatsen een fijne zit- of eethoek te plaatsen.
Specificaties:
Bouwjaar: circa 1940
Perceeloppervlak: 440m²
Inhoud van de woning: 380m³
Woonoppervlak: 99,5m²
Overige inpandige ruimte: 6,4m²
Externe bergruimte: 23,20m²
Energielabel: B
Aanvaarding: in overleg
ENTHOUSIAST geworden over deze 2^1 kapwoning met een heerlijke zonnige tuin en een vrije uitkijk over de weilanden?
Een juiste beoordeling van de woning komt het beste tot zijn recht bij een persoonlijke rondleiding, welke wij graag voor u verzorgen.
Wonen in de heerlijkheid Helvoirt, een buitenplaats van Vught!
Een typisch en idyllisch Brabants dorpje in de gemeente Vught. In Helvoirt leef je in het Groene Woud tussen de natuurgebieden Helvoirts Broek en Nationaal Park de Loonse & Drunense Duinen. Er zijn volop mogelijkheden om in de nabijheid van de woning in de prachtige natuur te fietsen en te wandelen, waarbij je eventueel een stop kunt maken in een van de gezellige restaurants en cafés in de buurt.
Helvoirt is een verrassend dorp met diverse faciliteiten, winkels en een actief verenigingsleven.
Een plaats, die juist door de vele faciliteiten al snel een thuisgevoel geeft voor jong en oud.
In het dorp en de omgeving wordt het hele jaar door van alles georganiseerd; van festivals, concerten, sportevenementen tot culturele activiteiten. Bourgondisch Brabant is echt van toepassing op deze regio met volop mooie kleine en wat grotere plaatsen.
Binnen een paar minuten ben je bovendien in het eveneens gezellige Vught of Oisterwijk en het is nog geen kwartier rijden naar Den Bosch of Tilburg. In Helvoirt woon je vooral heel comfortabel met scholen, sportvelden en supermarkten op loopafstand.
Kenmerken
Overdracht
- Aangeboden sinds
- 5 augustus 2025
- Status
- Verkocht
- Aanvaarding
- In overleg
Bouw
- Soort woning
- Woonhuis
- Bouwjaar
- 1940
Oppervlakten en inhoud
- Oppervlakte wonen
- 100 m²
- Oppervlakte overige inpandige ruimte
- 6 m²
- Oppervlakte gebouwgebonden buitenruimte
- 27 m²
- Oppervlakte externe bergruimte
- 23 m²
- Perceel
- 440 m²
- Inhoud
- 380 m³
Indeling
- Aantal kamers
- 5
- Aantal slaapkamers
- 2
- Aantal badkamers
- 1
- Badkamervoorzieningen
- Toilet, douche, wastafelmeubel en vloerverwarming
- Aantal woonlagen
- 3
Energie
- Energielabel
- B
- Isolatie
- Dakisolatie, muurisolatie en dubbel glas
- Verwarming
- Cv-ketel, vloerverwarming gedeeltelijk en gashaard
- Warm water
- Cv-ketel
- Cv-ketel
- Remeha (combiketel uit 2013)
Buitenruimte
- Tuin
- Achtertuin en voortuin
Garage
- Soort garage
- Vrijstaand steen
- Capaciteit
- 1
- Voorzieningen
- Elektra, vliering en elektrische deur