Word je warm van ons verhaal? Laten we samen kennismaken!
Neem contact op- 122 m²
- 151 m²
- 5
- C
Omschrijving
Gelegen in een groene, rustige en kindvriendelijke woonwijk in Drunen biedt deze royale tussenwoning alles wat je zoekt. Voor gezinnen met kinderen is dit een ideale locatie. Met maar liefst vijf slaapkamers, ruime woonkamer, een extra bijkeuken en tuinberging van 15 m2 is er meer dan genoeg ruimte. Op loopafstand vind je het centrum van Drunen met supermarkten, winkels en verschillende eetgelegenheden. Alles is dichtbij en makkelijk bereikbaar. Dankzij de gunstige ligging nabij de A59 sta je binnen 15 minuten in het centrum van Den Bosch of Waalwijk, ideaal voor werk, school of een dagje uit. Voor de natuurliefhebbers liggen de indrukwekkende Loonse en Drunense Duinen om de hoek. Of je nu houdt van wandelen, fietsen of gewoon even wilt uitwaaien is dit de ideale plek.
INDELING
Begane grond:
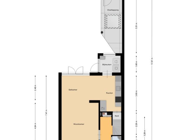
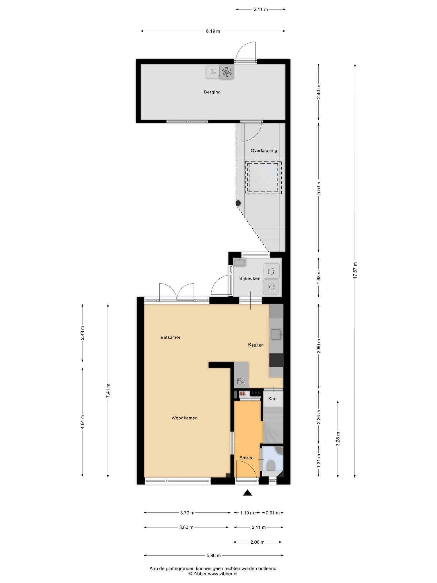
Bij binnenkomst stap je de entreehal in waar je direct toegang hebt tot het toilet, bergkast, de vernieuwde meterkast, de trap naar de eerste verdieping en de deur naar de woonkamer. Praktisch en overzichtelijk, precies zoals je het hebben wilt. De woonkamer voelt meteen ruim aan. Er is meer dan genoeg plek voor gezellige zithoek en een eettafel waar je met gemak met het hele gezin aan kunt zitten. Door de grote raampartijen aan de voorzijde is er een mooi en vrij uitzicht op de groenstrook die voor de woning gelegen is. De openslaande deuren naar de achtertuin maken het plaatje compleet en zorgen voor een fijne verbinding tussen binnen en buiten. De keuken (voorzien van nieuwe apparatuur in 2020) is van alle gemakken voorzien: een elektrische kookplaat, afzuiging, oven, koelkast en een vaatwasser maken koken hier een plezier. Extra handig is de voorraadkast waar je alles netjes kunt opbergen. Aansluitend aan de keuken vindt je de bijkeuken met wasbak en aansluitingen voor wasmachine en droger. Via de bijkeuken loop je bovendien zo de tuin in.
Eerste verdieping:
De eerste verdieping bereik via de overloop die toegang biedt tot drie slaapkamers en de badkamer. Twee van de drie slaapkamers zijn ruim van formaat en bieden voldoende plek voor een tweepersoonsbed en eventuele andere meubels. De hoofdslaapkamer is voorzien van ingebouwde kledingkast, wat zorgt voor extra gemak en een opgeruimde uitstraling. De derde slaapkamer is perfect als kinderkamer of rustige thuiswerkplek. Ook deze kamer beschikt over een inbouwkast, wat de ruimte optimaal benut. De badkamer is modern uitgevoerd en van alle gemakken voorzien. Hier vind je een inloopdouche met regendouche, toilet en een wastafel met strak wastafelmeubel.
Tweede verdieping:
De tweede verdieping bereik je via een vaste trap. Je komt uit op een lichte overloop waar het dakraam zorgt voor daglicht. Hier bevindt zich ook de cv-ketel (2023) en heb je toegang tot extra opbergruimte en twee slaapkamers. Beide slaapkamers zijn lekker ruim en bieden volop mogelijkheden, of je ze nu inricht als slaapkamer, logeerkamer of hobbyruimte. Dankzij de dakkapellen zijn de kamers extra licht en ruim. Daarnaast is er opbergruimte achter de knieschotten, ideaal om spullen die je niet dagelijks gebruikt netjes uit het zicht op te bergen.
Buitenleven:
De achtertuin is gelegen op het oosten, waardoor het een heerlijke plek is om je dag te beginnen met een kop koffie in de ochtendzon, ook is de middagzon is volop aanwezig in de tuin. Dankzij de zonwering aan de achterzijde van de woning zit je op warme dagen ook lekker beschut en comfortabel. Onder de overkapping, voorzien van een raam in het dak voor extra licht kun je het hele jaar door genieten van het buitenleven. Regen of zon, dit is een fijne plek om tot rust te komen, een boek te lezen of met vrienden te borrelen. Achterin de tuin vind je een ruime berging van maar liefst 15m2 voor fietsen, gereedschap of tuinmeubels. En dankzij de praktische achterom, bereikbaar via de berging is de tuin ook makkelijk van buitenaf toegankelijk.
Bijzonderheden:
- cv-ketel uit 2023;
- Begane grond recent gestuct;
- Meterkast vernieuwd in 2020 en nieuwe schakelmateriaal op de begane grond;
- Keuken voorzien van nieuwe keukenapparatuur;
- Vijf slaapkamers;
- Twee dakkapellen;
- Ruime en lichte woonkamer met vrij uitzicht;
- Achtertuin op het oosten;
- Energielabel C.
Toon meer
INDELING
Begane grond:
Bij binnenkomst stap je de entreehal in waar je direct toegang hebt tot het toilet, bergkast, de vernieuwde meterkast, de trap naar de eerste verdieping en de deur naar de woonkamer. Praktisch en overzichtelijk, precies zoals je het hebben wilt. De woonkamer voelt meteen ruim aan. Er is meer dan genoeg plek voor gezellige zithoek en een eettafel waar je met gemak met het hele gezin aan kunt zitten. Door de grote raampartijen aan de voorzijde is er een mooi en vrij uitzicht op de groenstrook die voor de woning gelegen is. De openslaande deuren naar de achtertuin maken het plaatje compleet en zorgen voor een fijne verbinding tussen binnen en buiten. De keuken (voorzien van nieuwe apparatuur in 2020) is van alle gemakken voorzien: een elektrische kookplaat, afzuiging, oven, koelkast en een vaatwasser maken koken hier een plezier. Extra handig is de voorraadkast waar je alles netjes kunt opbergen. Aansluitend aan de keuken vindt je de bijkeuken met wasbak en aansluitingen voor wasmachine en droger. Via de bijkeuken loop je bovendien zo de tuin in.
Eerste verdieping:
De eerste verdieping bereik via de overloop die toegang biedt tot drie slaapkamers en de badkamer. Twee van de drie slaapkamers zijn ruim van formaat en bieden voldoende plek voor een tweepersoonsbed en eventuele andere meubels. De hoofdslaapkamer is voorzien van ingebouwde kledingkast, wat zorgt voor extra gemak en een opgeruimde uitstraling. De derde slaapkamer is perfect als kinderkamer of rustige thuiswerkplek. Ook deze kamer beschikt over een inbouwkast, wat de ruimte optimaal benut. De badkamer is modern uitgevoerd en van alle gemakken voorzien. Hier vind je een inloopdouche met regendouche, toilet en een wastafel met strak wastafelmeubel.
Tweede verdieping:
De tweede verdieping bereik je via een vaste trap. Je komt uit op een lichte overloop waar het dakraam zorgt voor daglicht. Hier bevindt zich ook de cv-ketel (2023) en heb je toegang tot extra opbergruimte en twee slaapkamers. Beide slaapkamers zijn lekker ruim en bieden volop mogelijkheden, of je ze nu inricht als slaapkamer, logeerkamer of hobbyruimte. Dankzij de dakkapellen zijn de kamers extra licht en ruim. Daarnaast is er opbergruimte achter de knieschotten, ideaal om spullen die je niet dagelijks gebruikt netjes uit het zicht op te bergen.
Buitenleven:
De achtertuin is gelegen op het oosten, waardoor het een heerlijke plek is om je dag te beginnen met een kop koffie in de ochtendzon, ook is de middagzon is volop aanwezig in de tuin. Dankzij de zonwering aan de achterzijde van de woning zit je op warme dagen ook lekker beschut en comfortabel. Onder de overkapping, voorzien van een raam in het dak voor extra licht kun je het hele jaar door genieten van het buitenleven. Regen of zon, dit is een fijne plek om tot rust te komen, een boek te lezen of met vrienden te borrelen. Achterin de tuin vind je een ruime berging van maar liefst 15m2 voor fietsen, gereedschap of tuinmeubels. En dankzij de praktische achterom, bereikbaar via de berging is de tuin ook makkelijk van buitenaf toegankelijk.
Bijzonderheden:
- cv-ketel uit 2023;
- Begane grond recent gestuct;
- Meterkast vernieuwd in 2020 en nieuwe schakelmateriaal op de begane grond;
- Keuken voorzien van nieuwe keukenapparatuur;
- Vijf slaapkamers;
- Twee dakkapellen;
- Ruime en lichte woonkamer met vrij uitzicht;
- Achtertuin op het oosten;
- Energielabel C.
Kenmerken
Overdracht
- Aangeboden sinds
- 19 juni 2025
- Status
- Verkocht
- Aanvaarding
- In overleg
Bouw
- Soort woning
- Woonhuis
- Bouwjaar
- 1974
- Soort dak
- Zadeldak
Oppervlakten en inhoud
- Oppervlakte wonen
- 122 m²
- Oppervlakte gebouwgebonden buitenruimte
- 10 m²
- Oppervlakte externe bergruimte
- 15 m²
- Perceel
- 151 m²
- Inhoud
- 431 m³
Indeling
- Aantal kamers
- 6
- Aantal slaapkamers
- 5
- Aantal badkamers
- 1
- Badkamervoorzieningen
- Toilet, wastafel, wastafelmeubel en inloopdouche
- Aantal woonlagen
- 3
- Voorzieningen
- Rolluiken, tv-kabel, buitenzonwering, dakraam, glasvezel kabel en natuurlijke ventilatie
Energie
- Energielabel
- C
- Isolatie
- Dakisolatie, vloerisolatie en dubbel glas
- Verwarming
- Cv-ketel
- Warm water
- Cv-ketel
- Cv-ketel
- ATAG (combiketel uit 2023)
Buitenruimte
- Ligging
- Aan rustige weg, in woonwijk en in bosrijke omgeving
- Tuin
- Achtertuin en voortuin
- Achtertuin
- 48 m² gelegen op het oosten met achterom
Bergruimte
- Schuur/berging
- Vrijstaand steen
- Voorzieningen
- Voorzien van elektra
Garage
- Soort garage
- Geen garage