- 77 m²
- 1165 m²
- 3
- B
Omschrijving
Welkom in deze verrassend stijlvolle en volledig instapklare vrijstaande woning op de geliefde "De Noenes" te Haaren. Gelegen aan een rustig groen buurtschap met veel privacy, vormt dit huis een perfecte combinatie van luxe, comfort en sfeer. Binnenkomen voelt direct als thuiskomen.
Op deze unieke locatie staat in een parkachtige tuin deze complete als nieuwe 3-kamer woning. Wat direct opvalt is de moderne uitstraling en perfectie in afwerking. Aan alles is gedacht; betonvloer voorzien van vloerverwarming over de gehele benedenverdieping, hardhouten kozijnen met isolerende beglazing. Het klinkt cliché, maar hier is het iedere dag, ieder jaargetijde, ongeacht het weer genieten van het goede leven.
Vanuit het toegangspad komt u bij een middelhoog hekwerk welke toegang geeft tot het grote perceel (1.165 m² eigen grond!). Hier is op de inrit parkeerplek voor wel 4 auto’s (carport).
Specificaties
Woonoppervlakte: 77 m²
Gebouwgebonden buitenruimte: 46 m²
Externe bergruimte: 16m²
Perceeloppervlak: 1.165 m² eigen grond
Indeling woning
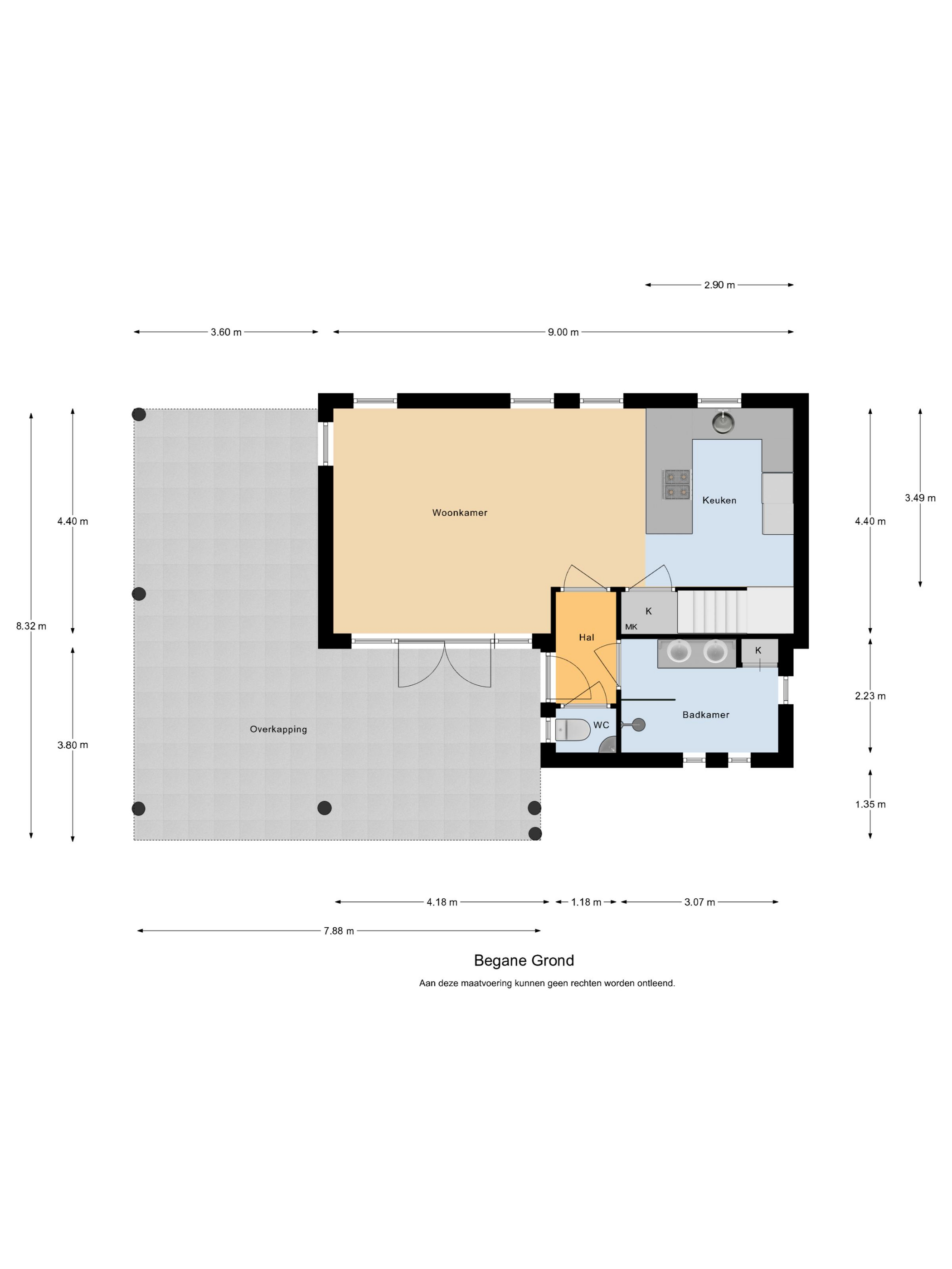
Begane grond
Bij binnenkomst tref je de verzorgde hal met garderobe. Vanuit hier heb je direct toegang tot een separate toiletruimte. Deze is stijlvol afgewerkt met grote moderne wandtegels, een strak wandcloset en een modern fonteintje. De afwerking is tot in detail verzorgd en sluit naadloos aan op de rest van het interieur.
De royale woonkamer is voorzien van grote raampartijen, pvcvloer met vloerverwarming die doorgetrokken is over gehele begane grond en openslaande deuren naar de prachtige overkapping en tuin.
De vernieuwde open keuken is een absolute eyecatcher. Hoogwaardige zwarte kasten worden gecombineerd met een strak wit composiet werkblad en een moderne, luxe afwerking. De keuken is uitgerust met een inductie kookplaat met ingebouwde afzuiging, een ingebouwde vaatwasser, een ingebouwde koel-vriescombinatie, een combi-magnetron en een waterzuiveringsinstallatie. Dankzij de efficiënte U-opstelling is er volop werkruimte en comfort. Aansluitend vind je de gezellige eethoek met ruimte voor een grote eettafel. Vanuit de keuken is ook de meter/kelderkast te vinden en de trap naar de eerste verdieping.
De vernieuwde badkamer bevindt zich in de hal bij binnenkomst. De ruimte straalt rust en luxe uit dankzij de warme kleurtonen, het gebruik van hoogwaardige materialen en de doordachte indeling. De royale inloopdouche is voorzien van een glazen wand en stijlvolle douche, terwijl de dubbele wastafel met bijpassend meubel en ronde spiegel zorgt voor een elegante uitstraling. Er is ruim voldoende opbergruimte aanwezig dankzij de kastenwand.
De combinatie van natuursteenlook tegels, visgraat accentwand en modern sanitair maakt dit een badkamer die comfortabel, sfeervol is en klaar voor dagelijks gemak.
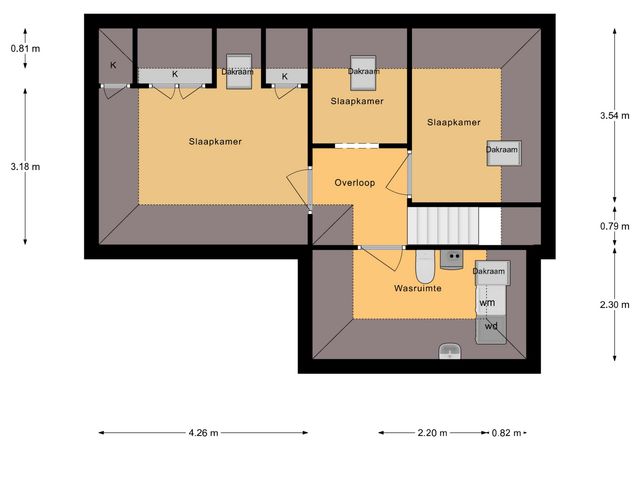
Eerste verdieping
De eerste verdieping van deze woning biedt verrassend veel ruimte en is slim ingedeeld. Je vindt hier drie slaapkamers, allen sfeervol afgewerkt met laminaatvloeren en lichte kleuren en voorzien van dakramen die zorgen voor prettig daglicht. De schuine kapconstructie zorgt bij de slaapkamers voor een karakteristieke uitstraling en biedt dankzij de knieschotten extra opbergruimte.
De centrale overloop geeft toegang tot alle vertrekken, inclusief de ruime wasruimte. Deze is voorzien van een dakraam, aansluiting voor wasmachine en droger, een extra toilet, een wastafel en de cv-installatie. Een praktische en lichte ruimte.
Tuin
De woning wordt omringd door een prachtig aangelegde en zeer royale tuin, een echte oase van rust en privacy. Het groen rondom zorgt voor volledige beschutting, waardoor je hier in alle rust kunt genieten van het buitenleven. Of je nu wilt ontspannen onder de overkapping met een goed boek of uitgebreid wilt dineren met vrienden en familie: de tuin biedt ruimte én sfeer voor elk moment.
De overkapping is voorzien van een stijlvolle houten constructie met een lichtdoorlatend dak en vormt een verlengstuk van de woonkamer. Hierdoor ontstaat een perfecte overgang tussen binnen en buiten – ideaal voor lange zomeravonden of beschut loungen in het voor- en najaar.
Verderop in de tuin vind je meerdere gezellige zitplekken, een ruime grasweide, fraaie borders en een houten berging – perfect voor tuingereedschap of fietsen. De tuin is fraai aangelegd met volwassen beplanting en is voorzien van een beregening installatie. De tuin biedt een oase aan rust en is goed onderhouden.
Haaren De Noenes
Wilt u vrij wonen midden in de natuur, in een gebied waar wonen nog wordt beleefd als vakantie vieren? Dan is deze (recreatie)woning* zeker een bezichtiging waard! “De Noenes” in Haaren (gemeente Oisterwijk) is een fraai en groene buurtschap, met in totaal ongeveer 240 woningen allen op eigen grond en grotendeels vast bewoond.
De woning is aangesloten op water, gas, glasvezel, elektra en op het gemeentelijk riool.
Bijzonderheden
- Vloerverwarming op de gehele begane grond;
- Energielabel B;
- Glasvezel internet
- Strakke moderne keuken 2020;
- Moderne badkamer en toilet 2021;
- Bouwjaar woning 1994
- Aanvaarding in overleg;
*NOTE
De gemeente heeft een wijziging van het huidige bestemmingsplan in procedure gebracht waarmee permanente bewoning wordt geformaliseerd en een verruiming van de bouwmogelijkheden tot 90m2 en480m3 inhoud en 7m bouwhoogte wordt mogelijk gemaakt.
FINANCIERING:
Hoewel de gemeente een bestemmingsplan in procedure heeft gebracht waarin de permanente bewoning op de Noenes wordt gelegaliseerd is de officiële huidige bestemming van de woning nog recreatief.
Zolang het nieuwe bestemmingsplan nog in procedure is en dus nog niet van kracht is, is het mogelijk dat de woning niet volledig middels een hypothecaire geldlening gefinancierd kan worden. Voor recreatiewoningen gelden immers andere financieringsregels. Wij adviseren u daarom voor een bezichtiging te onderzoeken of u deze woning zou kunnen financieren.
Toon meer
Op deze unieke locatie staat in een parkachtige tuin deze complete als nieuwe 3-kamer woning. Wat direct opvalt is de moderne uitstraling en perfectie in afwerking. Aan alles is gedacht; betonvloer voorzien van vloerverwarming over de gehele benedenverdieping, hardhouten kozijnen met isolerende beglazing. Het klinkt cliché, maar hier is het iedere dag, ieder jaargetijde, ongeacht het weer genieten van het goede leven.
Vanuit het toegangspad komt u bij een middelhoog hekwerk welke toegang geeft tot het grote perceel (1.165 m² eigen grond!). Hier is op de inrit parkeerplek voor wel 4 auto’s (carport).
Specificaties
Woonoppervlakte: 77 m²
Gebouwgebonden buitenruimte: 46 m²
Externe bergruimte: 16m²
Perceeloppervlak: 1.165 m² eigen grond
Indeling woning
Begane grond
Bij binnenkomst tref je de verzorgde hal met garderobe. Vanuit hier heb je direct toegang tot een separate toiletruimte. Deze is stijlvol afgewerkt met grote moderne wandtegels, een strak wandcloset en een modern fonteintje. De afwerking is tot in detail verzorgd en sluit naadloos aan op de rest van het interieur.
De royale woonkamer is voorzien van grote raampartijen, pvcvloer met vloerverwarming die doorgetrokken is over gehele begane grond en openslaande deuren naar de prachtige overkapping en tuin.
De vernieuwde open keuken is een absolute eyecatcher. Hoogwaardige zwarte kasten worden gecombineerd met een strak wit composiet werkblad en een moderne, luxe afwerking. De keuken is uitgerust met een inductie kookplaat met ingebouwde afzuiging, een ingebouwde vaatwasser, een ingebouwde koel-vriescombinatie, een combi-magnetron en een waterzuiveringsinstallatie. Dankzij de efficiënte U-opstelling is er volop werkruimte en comfort. Aansluitend vind je de gezellige eethoek met ruimte voor een grote eettafel. Vanuit de keuken is ook de meter/kelderkast te vinden en de trap naar de eerste verdieping.
De vernieuwde badkamer bevindt zich in de hal bij binnenkomst. De ruimte straalt rust en luxe uit dankzij de warme kleurtonen, het gebruik van hoogwaardige materialen en de doordachte indeling. De royale inloopdouche is voorzien van een glazen wand en stijlvolle douche, terwijl de dubbele wastafel met bijpassend meubel en ronde spiegel zorgt voor een elegante uitstraling. Er is ruim voldoende opbergruimte aanwezig dankzij de kastenwand.
De combinatie van natuursteenlook tegels, visgraat accentwand en modern sanitair maakt dit een badkamer die comfortabel, sfeervol is en klaar voor dagelijks gemak.
Eerste verdieping
De eerste verdieping van deze woning biedt verrassend veel ruimte en is slim ingedeeld. Je vindt hier drie slaapkamers, allen sfeervol afgewerkt met laminaatvloeren en lichte kleuren en voorzien van dakramen die zorgen voor prettig daglicht. De schuine kapconstructie zorgt bij de slaapkamers voor een karakteristieke uitstraling en biedt dankzij de knieschotten extra opbergruimte.
De centrale overloop geeft toegang tot alle vertrekken, inclusief de ruime wasruimte. Deze is voorzien van een dakraam, aansluiting voor wasmachine en droger, een extra toilet, een wastafel en de cv-installatie. Een praktische en lichte ruimte.
Tuin
De woning wordt omringd door een prachtig aangelegde en zeer royale tuin, een echte oase van rust en privacy. Het groen rondom zorgt voor volledige beschutting, waardoor je hier in alle rust kunt genieten van het buitenleven. Of je nu wilt ontspannen onder de overkapping met een goed boek of uitgebreid wilt dineren met vrienden en familie: de tuin biedt ruimte én sfeer voor elk moment.
De overkapping is voorzien van een stijlvolle houten constructie met een lichtdoorlatend dak en vormt een verlengstuk van de woonkamer. Hierdoor ontstaat een perfecte overgang tussen binnen en buiten – ideaal voor lange zomeravonden of beschut loungen in het voor- en najaar.
Verderop in de tuin vind je meerdere gezellige zitplekken, een ruime grasweide, fraaie borders en een houten berging – perfect voor tuingereedschap of fietsen. De tuin is fraai aangelegd met volwassen beplanting en is voorzien van een beregening installatie. De tuin biedt een oase aan rust en is goed onderhouden.
Haaren De Noenes
Wilt u vrij wonen midden in de natuur, in een gebied waar wonen nog wordt beleefd als vakantie vieren? Dan is deze (recreatie)woning* zeker een bezichtiging waard! “De Noenes” in Haaren (gemeente Oisterwijk) is een fraai en groene buurtschap, met in totaal ongeveer 240 woningen allen op eigen grond en grotendeels vast bewoond.
De woning is aangesloten op water, gas, glasvezel, elektra en op het gemeentelijk riool.
Bijzonderheden
- Vloerverwarming op de gehele begane grond;
- Energielabel B;
- Glasvezel internet
- Strakke moderne keuken 2020;
- Moderne badkamer en toilet 2021;
- Bouwjaar woning 1994
- Aanvaarding in overleg;
*NOTE
De gemeente heeft een wijziging van het huidige bestemmingsplan in procedure gebracht waarmee permanente bewoning wordt geformaliseerd en een verruiming van de bouwmogelijkheden tot 90m2 en480m3 inhoud en 7m bouwhoogte wordt mogelijk gemaakt.
FINANCIERING:
Hoewel de gemeente een bestemmingsplan in procedure heeft gebracht waarin de permanente bewoning op de Noenes wordt gelegaliseerd is de officiële huidige bestemming van de woning nog recreatief.
Zolang het nieuwe bestemmingsplan nog in procedure is en dus nog niet van kracht is, is het mogelijk dat de woning niet volledig middels een hypothecaire geldlening gefinancierd kan worden. Voor recreatiewoningen gelden immers andere financieringsregels. Wij adviseren u daarom voor een bezichtiging te onderzoeken of u deze woning zou kunnen financieren.
Kenmerken
Overdracht
- Vraagprijs
- € 575.000 k.k.
- Vraagprijs per m²
- € 7.468
- Aangeboden sinds
- 14 augustus 2025
- Status
- Verkocht onder voorbehoud
- Aanvaarding
- In overleg
Bouw
- Soort woning
- Woonhuis
- Bouwjaar
- 1994
Oppervlakten en inhoud
- Oppervlakte wonen
- 77 m²
- Oppervlakte gebouwgebonden buitenruimte
- 46 m²
- Oppervlakte externe bergruimte
- 16 m²
- Perceel
- 1165 m²
- Inhoud
- 277 m³
Indeling
- Aantal kamers
- 5
- Aantal slaapkamers
- 3
- Aantal badkamers
- 1
- Badkamervoorzieningen
- Wastafelmeubel en inloopdouche
- Aantal woonlagen
- 2
- Voorzieningen
- Dakraam en glasvezel kabel
Energie
- Energielabel
- B
- Isolatie
- Dakisolatie, muurisolatie, vloerisolatie en dubbel glas
- Verwarming
- Cv-ketel en vloerverwarming gedeeltelijk
- Warm water
- Cv-ketel
- Cv-ketel
- Remeha Tzerra M 39c plus (combiketel uit 2018)
Buitenruimte
- Tuin
- Tuin rondom
- Tuin rondom
- Met achterom
Bergruimte
- Schuur/berging
- Vrijstaand hout
Garage
- Soort garage
- Carport