Word je warm van ons verhaal? Laten we samen kennismaken!
Neem contact op- 146 m²
- 278 m²
- 4
- B
Omschrijving
Deze verrassend ruime en modern afgewerkte woning aan de Van Agtlaan 15 in Vlijmen beschikt over maar liefst vier volwaardige slaapkamers, een luxe serre én een inpandige garage! De begane grond biedt een stijlvolle, open leefruimte met veel lichtinval en een moderne keuken met bijkeuken. De fraai aangelegde tuin, royale oprit met carport, het hoge afwerkingsniveau én de aanwezigheid van 10 zonnepanelen maken dit een complete gezinswoning met volop comfort, duurzaamheid en praktische extra’s.
Locatie:
De Vijfhoeven is een rustige en groene woonwijk in Vlijmen, geliefd bij gezinnen en mensen die op zoek zijn naar ruimte en comfort. De wijk kenmerkt zich door brede straten, veel openbaar groen en een kindvriendelijke opzet met speeltuintjes en basisscholen in de buurt. Daarnaast zijn alle voorzieningen zoals winkels, sportverenigingen en uitvalswegen richting ’s-Hertogenbosch en de A59 snel bereikbaar.
INDELING
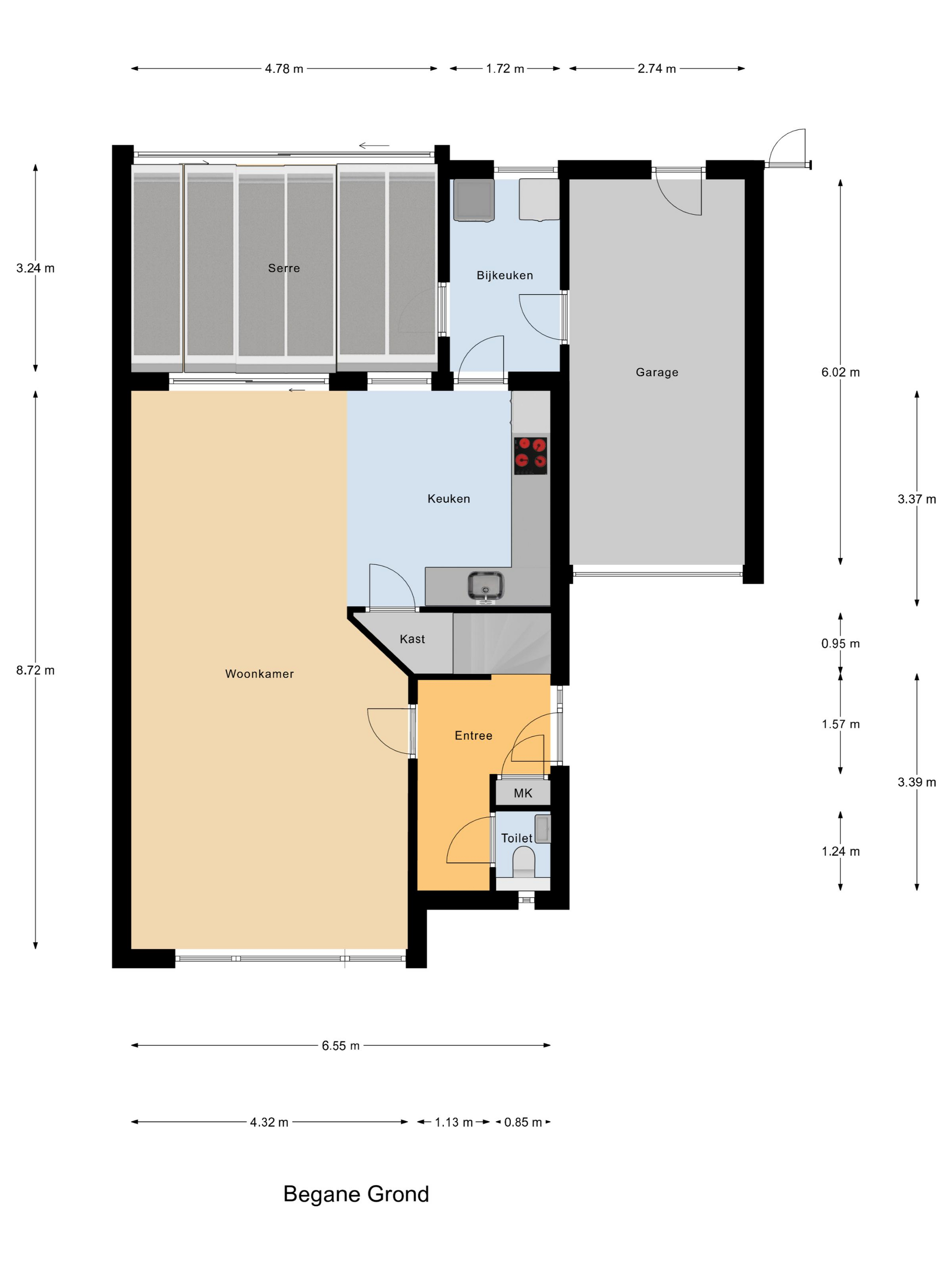
Begane grond:
Zodra je de woning binnenstapt via de ruime hal, word je direct verrast door de ruimte en de strakke afwerking. De begane grond is modern ingericht met een stijlvolle zwarte tegelvloer en lichte kleurstellingen, wat zorgt voor een frisse en eigentijdse uitstraling. De woonkamer is ruim opgezet en slim ingedeeld. Aan de voorzijde bevindt zich de gezellige zitkamer, waar met gemak een royale bank, salontafel, extra zitplekken én een tv-meubel geplaatst kunnen worden. Dankzij de grote raampartijen aan zowel de voor- als achterzijde baadt de hele ruimte in natuurlijk daglicht. Aan de achterzijde vind je de eetkamer, waar voldoende plek is voor een grote eettafel om uitgebreid te tafelen met familie of vrienden. De keuken, die voorheen afgesloten was, is inmiddels volledig geïntegreerd in de leefruimte. Hierdoor is een open sfeer ontstaan waarin koken en leven samenkomen. De moderne keuken is uitgevoerd in lichte kleuren en voorzien van hoogwaardige inbouwapparatuur, waaronder een inductiekookplaat, combi-oven, afzuigkap, vaatwasser, koelkast en een spoelbak. Extra opbergruimte vind je in de kastruimte langs het aanrechtblad – ideaal voor voorraad en keukengerei. Direct grenzend aan de keuken bevindt zich de praktische bijkeuken, met aansluitingen voor de wasmachine en droger. Hier is bovendien ruimte voor een extra koelkast en/of vriezer – een fijne aanvulling voor het dagelijks gemak. In de hal tref je verder nog een keurig afgewerkt, apart toilet met fonteintje én de meterkast.
Eerste verdieping:
Via de vaste trap bereiken we de eerste verdieping, waar een praktische en comfortabele indeling wacht. Hier bevinden zich drie volwaardige slaapkamers en een complete badkamer. De hoofdslaapkamer is ruim van formaat en biedt meer dan voldoende plek voor een groot tweepersoonsbed met nachtkastjes. Een ingebouwde kledingkast zorgt voor extra gemak en biedt royale opbergruimte voor kleding, schoenen en andere spullen.
De tweede slaapkamer, direct naastgelegen, beschikt eveneens over een ingebouwde kast en is zeer geschikt als kinderkamer, logeerkamer of thuiskantoor. De derde slaapkamer is extra licht en ruim dankzij een dakkapel, wat deze kamer multifunctioneel inzetbaar maakt.
De badkamer is netjes afgewerkt en voorzien van alle gemakken: een ligbad, aparte douche, wastafel met modern meubel en een toilet. Een fijne, complete ruimte waar je de dag ontspannen kunt beginnen of eindigen.
Tweede verdieping:
De tweede verdieping is via een vaste trap bereikbaar en biedt verrassend veel ruimte. Hier vinden we de vierde slaapkamer en een ruime overloop. De vierde slaapkamer leent zich uitstekend als hoofdslaapkamer, tienerkamer of rustige werkplek. Er is voldoende ruimte voor een tweepersoonsbed met nachtkastjes, en de kastruimte onder de knieschotten biedt praktische opbergmogelijkheden. Dankzij het dakraam is de kamer bovendien aangenaam licht en kan er extra worden geventileerd. De ruime overloop biedt plaats aan de CV-installatie en vormt tevens een handige plek voor het opbergen van extra spullen, koffers of seizoensgebonden items.
Serre:
Een absoluut pluspunt van deze woning is de prachtige serre, die direct vanuit de woonkamer toegankelijk is. Deze sfeervolle ruimte vormt een verlengde van zowel de zit- als eetkamer en is daarmee een ideale plek om het hele jaar door van te genieten. De serre is volledig afsluitbaar, voorzien van zonwering in het dak én uitgerust met een warmtelamp, waardoor het ook in de koudere maanden een comfortabele plek blijft. Of je nu wilt ontspannen met een boek, gezellig wilt borrelen met vrienden of juist wilt genieten van het uitzicht op de tuin – in deze extra leefruimte zit je altijd goed.
Garage + oprit:
Extra praktisch is de inpandig te bereiken garage op de begane grond. Deze multifunctionele ruimte is ideaal voor het stallen van fietsen, kleine voertuigen en tuinspullen. Vanuit de garage heb je direct toegang tot zowel de bijkeuken als de carport, en via openslaande deuren bereik je eenvoudig de oprit aan de voorzijde van de woning. De oprit en carport bieden plek voor meerdere auto’s en zijn ruim genoeg om ook een camper, caravan of aanhanger te kunnen stallen – ideaal voor wie net dat beetje extra ruimte zoekt.
Buitenruimte:
De modern aangelegde achtertuin is een fijne plek om te ontspannen. Dankzij de combinatie van groenperkjes, sierbestrating en kiezelzones heeft de tuin een verzorgde uitstraling. De tuin is breed bemeten en biedt meerdere mogelijkheden voor het plaatsen van een eettafel of loungeset – ideaal voor wie op elk moment van de dag een zonnige zitplek wil vinden. Door de groene omgeving geniet je hier van veel privacy. Bovendien is er een praktische achterom naast de woning, wat het gemakkelijk maakt om met fietsen, tuinspullen of afvalcontainers de tuin te bereiken.
Bijzonderheden:
- Wonen op een rustige en kindvriendelijke locatie;
- Moderne en strakke afwerking;
- Open keuken met hoogwaardige inbouwapparatuur;
- Bijkeuken met plek voor de wasmachine en droger;
- Inpandig te bereiken garage;
- Verwarmde serre met elektrische zonwering;
- Voorzien van 10 zonnepanelen;
- Ruime oprit met carport;
- Oplevering in overleg.
Toon meer
Locatie:
De Vijfhoeven is een rustige en groene woonwijk in Vlijmen, geliefd bij gezinnen en mensen die op zoek zijn naar ruimte en comfort. De wijk kenmerkt zich door brede straten, veel openbaar groen en een kindvriendelijke opzet met speeltuintjes en basisscholen in de buurt. Daarnaast zijn alle voorzieningen zoals winkels, sportverenigingen en uitvalswegen richting ’s-Hertogenbosch en de A59 snel bereikbaar.
INDELING
Begane grond:
Zodra je de woning binnenstapt via de ruime hal, word je direct verrast door de ruimte en de strakke afwerking. De begane grond is modern ingericht met een stijlvolle zwarte tegelvloer en lichte kleurstellingen, wat zorgt voor een frisse en eigentijdse uitstraling. De woonkamer is ruim opgezet en slim ingedeeld. Aan de voorzijde bevindt zich de gezellige zitkamer, waar met gemak een royale bank, salontafel, extra zitplekken én een tv-meubel geplaatst kunnen worden. Dankzij de grote raampartijen aan zowel de voor- als achterzijde baadt de hele ruimte in natuurlijk daglicht. Aan de achterzijde vind je de eetkamer, waar voldoende plek is voor een grote eettafel om uitgebreid te tafelen met familie of vrienden. De keuken, die voorheen afgesloten was, is inmiddels volledig geïntegreerd in de leefruimte. Hierdoor is een open sfeer ontstaan waarin koken en leven samenkomen. De moderne keuken is uitgevoerd in lichte kleuren en voorzien van hoogwaardige inbouwapparatuur, waaronder een inductiekookplaat, combi-oven, afzuigkap, vaatwasser, koelkast en een spoelbak. Extra opbergruimte vind je in de kastruimte langs het aanrechtblad – ideaal voor voorraad en keukengerei. Direct grenzend aan de keuken bevindt zich de praktische bijkeuken, met aansluitingen voor de wasmachine en droger. Hier is bovendien ruimte voor een extra koelkast en/of vriezer – een fijne aanvulling voor het dagelijks gemak. In de hal tref je verder nog een keurig afgewerkt, apart toilet met fonteintje én de meterkast.
Eerste verdieping:
Via de vaste trap bereiken we de eerste verdieping, waar een praktische en comfortabele indeling wacht. Hier bevinden zich drie volwaardige slaapkamers en een complete badkamer. De hoofdslaapkamer is ruim van formaat en biedt meer dan voldoende plek voor een groot tweepersoonsbed met nachtkastjes. Een ingebouwde kledingkast zorgt voor extra gemak en biedt royale opbergruimte voor kleding, schoenen en andere spullen.
De tweede slaapkamer, direct naastgelegen, beschikt eveneens over een ingebouwde kast en is zeer geschikt als kinderkamer, logeerkamer of thuiskantoor. De derde slaapkamer is extra licht en ruim dankzij een dakkapel, wat deze kamer multifunctioneel inzetbaar maakt.
De badkamer is netjes afgewerkt en voorzien van alle gemakken: een ligbad, aparte douche, wastafel met modern meubel en een toilet. Een fijne, complete ruimte waar je de dag ontspannen kunt beginnen of eindigen.
Tweede verdieping:
De tweede verdieping is via een vaste trap bereikbaar en biedt verrassend veel ruimte. Hier vinden we de vierde slaapkamer en een ruime overloop. De vierde slaapkamer leent zich uitstekend als hoofdslaapkamer, tienerkamer of rustige werkplek. Er is voldoende ruimte voor een tweepersoonsbed met nachtkastjes, en de kastruimte onder de knieschotten biedt praktische opbergmogelijkheden. Dankzij het dakraam is de kamer bovendien aangenaam licht en kan er extra worden geventileerd. De ruime overloop biedt plaats aan de CV-installatie en vormt tevens een handige plek voor het opbergen van extra spullen, koffers of seizoensgebonden items.
Serre:
Een absoluut pluspunt van deze woning is de prachtige serre, die direct vanuit de woonkamer toegankelijk is. Deze sfeervolle ruimte vormt een verlengde van zowel de zit- als eetkamer en is daarmee een ideale plek om het hele jaar door van te genieten. De serre is volledig afsluitbaar, voorzien van zonwering in het dak én uitgerust met een warmtelamp, waardoor het ook in de koudere maanden een comfortabele plek blijft. Of je nu wilt ontspannen met een boek, gezellig wilt borrelen met vrienden of juist wilt genieten van het uitzicht op de tuin – in deze extra leefruimte zit je altijd goed.
Garage + oprit:
Extra praktisch is de inpandig te bereiken garage op de begane grond. Deze multifunctionele ruimte is ideaal voor het stallen van fietsen, kleine voertuigen en tuinspullen. Vanuit de garage heb je direct toegang tot zowel de bijkeuken als de carport, en via openslaande deuren bereik je eenvoudig de oprit aan de voorzijde van de woning. De oprit en carport bieden plek voor meerdere auto’s en zijn ruim genoeg om ook een camper, caravan of aanhanger te kunnen stallen – ideaal voor wie net dat beetje extra ruimte zoekt.
Buitenruimte:
De modern aangelegde achtertuin is een fijne plek om te ontspannen. Dankzij de combinatie van groenperkjes, sierbestrating en kiezelzones heeft de tuin een verzorgde uitstraling. De tuin is breed bemeten en biedt meerdere mogelijkheden voor het plaatsen van een eettafel of loungeset – ideaal voor wie op elk moment van de dag een zonnige zitplek wil vinden. Door de groene omgeving geniet je hier van veel privacy. Bovendien is er een praktische achterom naast de woning, wat het gemakkelijk maakt om met fietsen, tuinspullen of afvalcontainers de tuin te bereiken.
Bijzonderheden:
- Wonen op een rustige en kindvriendelijke locatie;
- Moderne en strakke afwerking;
- Open keuken met hoogwaardige inbouwapparatuur;
- Bijkeuken met plek voor de wasmachine en droger;
- Inpandig te bereiken garage;
- Verwarmde serre met elektrische zonwering;
- Voorzien van 10 zonnepanelen;
- Ruime oprit met carport;
- Oplevering in overleg.
Kenmerken
Overdracht
- Vraagprijs
- € 625.000 k.k.
- Vraagprijs per m²
- € 4.281
- Aangeboden sinds
- 7 november 2025
- Status
- Beschikbaar
- Aanvaarding
- In overleg
Bouw
- Soort woning
- Woonhuis
- Bouwjaar
- 1993
- Soort dak
- Zadeldak
Oppervlakten en inhoud
- Oppervlakte wonen
- 146 m²
- Oppervlakte overige inpandige ruimte
- 17 m²
- Perceel
- 278 m²
- Inhoud
- 527 m³
Indeling
- Aantal kamers
- 5
- Aantal slaapkamers
- 4
- Aantal badkamers
- 1
- Badkamervoorzieningen
- Ligbad, toilet, douche, wastafel en wastafelmeubel
- Aantal woonlagen
- 3
- Voorzieningen
- Tv-kabel, buitenzonwering, schuifpui, dakraam, glasvezel kabel en zonnepanelen
Energie
- Energielabel
- B
- Isolatie
- Dakisolatie, muurisolatie, vloerisolatie en hr glas
- Verwarming
- Cv-ketel
- Warm water
- Cv-ketel
- Cv-ketel
- Remeha (combiketel uit 2020)
Buitenruimte
- Ligging
- Aan rustige weg, in woonwijk en in bosrijke omgeving
- Tuin
- Achtertuin en voortuin
- Achtertuin
- 68 m² gelegen op het noordwesten met achterom
Garage
- Soort garage
- Aangebouwd steen
- Capaciteit
- 1
- Voorzieningen
- Elektra