Word je warm van ons verhaal? Laten we samen kennismaken!
Neem contact op- 126 m²
- 218 m²
- 4
- B
Omschrijving
Moderne en verrassend ruime hoekwoning met eigen oprit, dakkapel én vier slaapkamers, gelegen in een kindvriendelijke buurt in Cromvoirt
Deze goed onderhouden hoekwoning uit 1999 is gelegen op een rustige, kindvriendelijke locatie in het dorp Cromvoirt. De woning biedt een lichte woonkamer met vloerverwarming, vier volwaardige slaapkamers, een ruime badkamer, een dakkapel op de tweede verdieping én een zonnige tuin op het oosten.
Ligging
De woning bevindt zich in een rustige straat op loopafstand van recreatieplas De IJzeren Man en de prachtige natuur van Vught en Cromvoirt, ideaal voor wandel- en natuurliefhebbers. Binnen 10 minuten rijden sta je in 's-Hertogenbosch.
Begane grond
Via de entree met ruime hal krijg je toegang tot het toilet, de meterkast, trapopgang en de woonkamer. De lichte en tuingerichte woonkamer is voorzien van vloerverwarming en openslaande deuren naar het terras. Dit zorgt voor een prettige verbinding met de tuin en veel daglichtinval.
Aan de voorzijde van de woning bevindt zich de half open keuken, uitgevoerd in een lichte kleurstelling met een natuurstenen werkblad. De keuken is voorzien van diverse inbouwapparatuur, waaronder een vaatwasser, keramische kookplaat, afzuigkap, combi-oven en koelkast.
Eerste verdieping
Op de eerste verdieping bevinden zich drie slaapkamers, elk met een prettige lichtinval en praktische indeling. De badkamer is volledig betegeld en beschikt over een ligbad, inloopdouche, tweede toilet en een dubbele wastafel met meubel. Via de overloop is er een vaste trap naar de tweede verdieping.
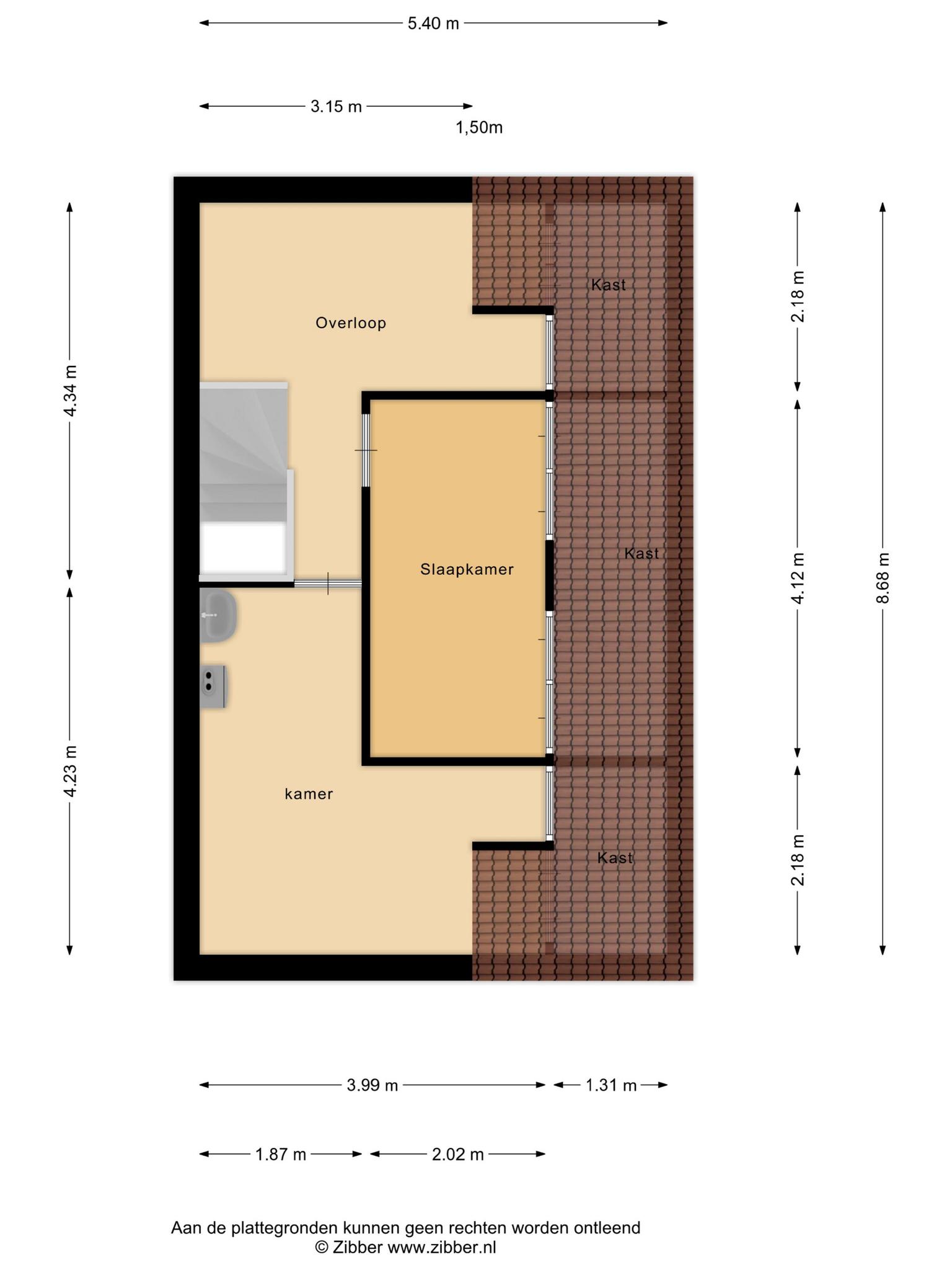
Tweede verdieping
De tweede verdieping is verrassend ruim dankzij de geplaatste dakkapel, die zorgt voor extra licht en ruimte. Hier vind je de vierde slaapkamer, een praktische werkplek op de voorzolder en een aparte wasruimte met opstelling van CV-combiketel Intergas (2023).
Tuin
De fraai aangelegde achtertuin is gelegen op het oosten en beschikt over een groot terras, gazon, diverse borders en een achterom. Achterin de tuin staat een ruime stenen berging met elektra, ideaal voor fietsen, gereedschap of extra opslag. Via een poort is de ruime oprit vanuit de achtertuin bereikbaar.
Bijzonderheden:
- Vloerverwarming in keuken en woonkamer,
- Vier slaapkamers, waaronder één op zolder met dakkapel,
- Extra waskamer op de zolder,
- Volledig geïsoleerd en goed onderhouden,
- Gelegen in rustige, kindvriendelijke omgeving,
- Nabij natuur en recreatiegebied de IJzeren Man,
- Ruime tuin met achterom en stenen berging,
- Rolluik slaapkamer voorzijde.
Toon meer
Deze goed onderhouden hoekwoning uit 1999 is gelegen op een rustige, kindvriendelijke locatie in het dorp Cromvoirt. De woning biedt een lichte woonkamer met vloerverwarming, vier volwaardige slaapkamers, een ruime badkamer, een dakkapel op de tweede verdieping én een zonnige tuin op het oosten.
Ligging
De woning bevindt zich in een rustige straat op loopafstand van recreatieplas De IJzeren Man en de prachtige natuur van Vught en Cromvoirt, ideaal voor wandel- en natuurliefhebbers. Binnen 10 minuten rijden sta je in 's-Hertogenbosch.
Begane grond
Via de entree met ruime hal krijg je toegang tot het toilet, de meterkast, trapopgang en de woonkamer. De lichte en tuingerichte woonkamer is voorzien van vloerverwarming en openslaande deuren naar het terras. Dit zorgt voor een prettige verbinding met de tuin en veel daglichtinval.
Aan de voorzijde van de woning bevindt zich de half open keuken, uitgevoerd in een lichte kleurstelling met een natuurstenen werkblad. De keuken is voorzien van diverse inbouwapparatuur, waaronder een vaatwasser, keramische kookplaat, afzuigkap, combi-oven en koelkast.
Eerste verdieping
Op de eerste verdieping bevinden zich drie slaapkamers, elk met een prettige lichtinval en praktische indeling. De badkamer is volledig betegeld en beschikt over een ligbad, inloopdouche, tweede toilet en een dubbele wastafel met meubel. Via de overloop is er een vaste trap naar de tweede verdieping.
Tweede verdieping
De tweede verdieping is verrassend ruim dankzij de geplaatste dakkapel, die zorgt voor extra licht en ruimte. Hier vind je de vierde slaapkamer, een praktische werkplek op de voorzolder en een aparte wasruimte met opstelling van CV-combiketel Intergas (2023).
Tuin
De fraai aangelegde achtertuin is gelegen op het oosten en beschikt over een groot terras, gazon, diverse borders en een achterom. Achterin de tuin staat een ruime stenen berging met elektra, ideaal voor fietsen, gereedschap of extra opslag. Via een poort is de ruime oprit vanuit de achtertuin bereikbaar.
Bijzonderheden:
- Vloerverwarming in keuken en woonkamer,
- Vier slaapkamers, waaronder één op zolder met dakkapel,
- Extra waskamer op de zolder,
- Volledig geïsoleerd en goed onderhouden,
- Gelegen in rustige, kindvriendelijke omgeving,
- Nabij natuur en recreatiegebied de IJzeren Man,
- Ruime tuin met achterom en stenen berging,
- Rolluik slaapkamer voorzijde.
Kenmerken
Overdracht
- Aangeboden sinds
- 19 juni 2025
- Status
- Verkocht
- Aanvaarding
- In overleg
Bouw
- Soort woning
- Woonhuis
- Bouwjaar
- 1999
- Soort dak
- Lessenaarsdak
Oppervlakten en inhoud
- Oppervlakte wonen
- 126 m²
- Oppervlakte gebouwgebonden buitenruimte
- 1 m²
- Oppervlakte externe bergruimte
- 8 m²
- Perceel
- 218 m²
- Inhoud
- 448 m³
Indeling
- Aantal kamers
- 6
- Aantal slaapkamers
- 4
- Aantal badkamers
- 1
- Badkamervoorzieningen
- Ligbad, toilet, dubbele wastafel en inloopdouche
- Aantal woonlagen
- 3
- Voorzieningen
- Mechanische ventilatie en tv-kabel
Energie
- Energielabel
- B
- Isolatie
- Dakisolatie, muurisolatie, vloerisolatie en dubbel glas
- Verwarming
- Cv-ketel en vloerverwarming gedeeltelijk
- Warm water
- Cv-ketel
- Cv-ketel
- Intergas HRE28/24A (combiketel uit 2023)
Buitenruimte
- Ligging
- Aan rustige weg en in woonwijk
- Tuin
- Achtertuin
- Achtertuin
- 100 m² gelegen op het oosten met achterom
Bergruimte
- Schuur/berging
- Vrijstaand steen
- Voorzieningen
- Voorzien van elektra
Garage
- Soort garage
- Geen garage